Скачать Типовые материалы для проектирования 407-03-539.90 Альбом 2. Планы ОРУ, ячейки и узлыДата актуализации: 10.08.2017 Типовые материалы для проектирования 407-03-539.90
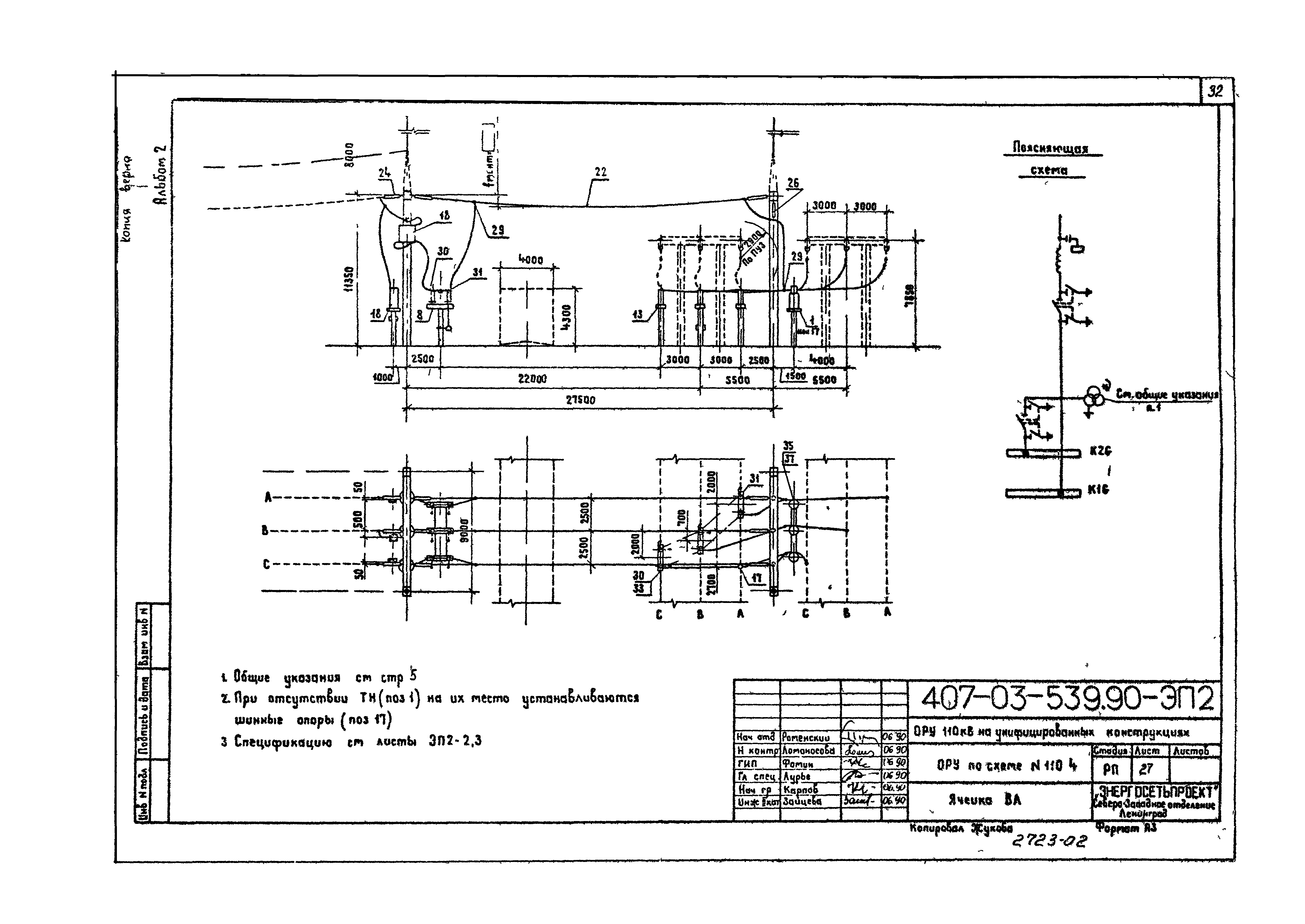
Альбом 2. Планы ОРУ, ячейки и узлыОбозначение: | Типовые материалы для проектирования 407-03-539.90 | Обозначение англ: | 407-03-539.90 | Статус: | cправочные материалы, мп, тпр | Название рус.: | Альбом 2. Планы ОРУ, ячейки и узлы | Дата добавления в базу: | 01.09.2013 | Дата актуализации: | 05.05.2017 | Дата введения: | 30.05.1990 | Оглавление: | ОРУ по схеме №110-4. План и схема заполнения ОРУ по схеме №110-4. Спецификация оборудования и материалов к листу ЭП2-1 ОРУ по схеме №110-4Н. План и схема заполнения ОРУ по схеме №110-4Н. Спецификация оборудования и материалов к листу ЭП2-4 ОРУ по схеме №110-5. План и схема заполнения ОРУ по схеме №110-5. Спецификация оборудования и материалов к листу ЭП2-7 ОРУ по схеме №110-5Н. План и схема заполнения ОРУ по схеме №110-5Н. Спецификация оборудования и материалов к листу ЭП2-10 ОРУ по схеме №110-5АН. План и схема заполнения ОРУ по схеме №110-5АН. Спецификация оборудования и материалов к листу ЭП2-13 ОРУ по схеме №110-6. План и схема заполнения ОРУ по схеме №110-6. Спецификация оборудования и материалов к листу ЭП2-13 ОРУ по схеме №110-12. План и схема заполнения (вариант с шинными пролетами Lmax = 27 м) ОРУ по схеме №110-12. План и схема заполнения (вариант с шинными пролетами Lmax = 18 м) ОРУ по схеме №110-12. Спецификация оборудования и материалов к листу ЭП2-19, 20 ОРУ по схеме №110-13. План и схема заполнения (вариант с шинными пролетами Lmax = 27 м) ОРУ по схеме №110-13. План и схема заполнения (вариант с шинными пролетами Lmax = 18 м) ОРУ по схеме №110-13. Спецификация оборудования и материалов к листу ЭП2-23, 24 ОРУ по схеме №110-4. Ячейка ВЛ ОРУ по схемам №110-4, 110-5. Ячейка трансформатора Т1 (Т2) ОРУ по схемам №110-4Н, 110-5АН, 110-6. Ячейка ВЛ1 и шинных аппаратов ОРУ по схемам №110-4Н, 110-5АН, 110-6. Ячейка ВЛ2 и шинных аппаратов ОРУ по схеме №110-4Н. Ячейка трансформатора Т1 ОРУ по схеме №110-4Н. Ячейка трансформатора Т2 ОРУ по схеме №110-4Н. Ячейка перемычки ОРУ по схемам №110-5. Ячейка ВЛ1 и шинные аппараты ОРУ по схемам №110-5. Ячейка ВЛ2 и шинные аппараты ОРУ по схемам №110-5. Ячейка трансформатора Т2 ОРУ по схеме №110-5, 110-5Н, 110-5АН. Ячейка перемычки ОРУ по схеме №110-5Н. Ячейка ВЛ1 ОРУ по схеме №110-5Н. Ячейка ВЛ2 ОРУ по схеме №110-5Н. Ячейка трансформатора Т1 ОРУ по схеме №110-5Н. Ячейка трансформатора Т2 ОРУ по схеме №110-5АН. Ячейка трансформатора Т1 ОРУ по схемам №110-5АН, 110-12. Ячейка трансформатора Т2 (вариант 1 для схемы №110-12) ОРУ по схеме №110-6. Ячейка ВЛ3 ОРУ по схеме №110-6. Ячейка перемычки и трансформатора Т1 (Т2) ОРУ по схеме №110-12. Ячейка ВЛ от 1-й системы шин ОРУ по схеме №110-12. Ячейка ВЛ от 2-й системы шин ОРУ по схеме №110-12. Ячейка трансформатора Т1 (вариант 1) ОРУ по схеме №110-12. Ячейка трансформатора Т2 (вариант 2) ОРУ по схемам №110-12, 110-13. Ячейка шиносоединительного (секционного) выключателя и шинных аппаратов 2-й системы (секции) шин (вариант 1) ОРУ по схемам №110-12, 110-13. Ячейка шиносоединительного (секционного) выключателя и шинных аппаратов 2-й системы (секции) шин (вариант 2) ОРУ по схемам №110-12, 110-13. Ячейка обходного выключателя и шинных аппаратов 1-й системы (секций) шин ОРУ по схемам №110-12, 110-13. Ячейка шиносоединительного (секционного) выключателя. Пример (вариант 1) ОРУ по схемам №110-12, 110-13. Ячейка шиносоединительного (секционного) выключателя. Пример (вариант 2) ОРУ по схеме №110-12. Ячейка ВЛ от 1-й системы шин в сторону трансформаторов. Пример ОРУ по схеме №110-13. Ячейка ВЛ ОРУ по схеме №110-13. Ячейка трансформатора Т1 (Т2) (вариант 1) ОРУ по схеме №110-13. Ячейка трансформатора Т1 (Т2) (вариант 2) ОРУ по схеме №110-14. Узел секционирования сборных шин ОРУ по схеме №110-14. Узел выключателя ВМТ-110Б с трансформатором тока ОРУ по схеме №110-14. Узел выключателя ВВБК-110Б с трансформатором тока Узел выключателя ВМТ-110Б с трансформатором тока Узел выключателя ВВБК-110Б с трансформатором тока Узел оборудования ВЧ связи с высокочастотным заградителем ВЗ-630-0.5У1 Узел оборудования ВЧ связи с высокочастотным заградителем ВЗ-1250-0.5У1 Узлы присоединения проводов к выводам аппаратов ОРУ по схемам №110-4, 110-4Н. Сборные шины ОРУ по схемам №110-5, 110-5Н. Сборные шины ОРУ по схеме №110-5АН. Сборные шины ОРУ по схеме №110-6. Сборные шины ОРУ по схеме №110-12. Сборные шины (пролет Lmax = 27 м) ОРУ по схеме №110-12. Сборные шины (пролет Lmax = 18 м) ОРУ по схемам №110-12, 110-13. Сборные шины (пролет Lmax = 27 м) ОРУ по схемам №110-12, 110-13. Сборные шины (пролет Lmax = 18 м) ОРУ по схеме №110-13. Сборные шины (пролет Lmax = 27 м) ОРУ по схеме №110-13. Сборные шины (пролет Lmax = 18 м) ОРУ по схеме №110-1 без учета расширения. План, вид и схема заполнения ОРУ по схеме №110-3 без учета расширения. План, вид и схема заполнения ОРУ по схеме №110-3 без учета расширения. Спецификация оборудования и материалов к листу ЭП2-79 ОРУ по схеме №110-3Н без учета расширения. План, вид и схема заполнения ОРУ по схеме №110-3Н без учета расширения. Спецификация оборудования и материалов к листу ЭП2-81 ОРУ по схеме №110-4 без учета расширения. План, вид и схема заполнения ОРУ по схеме №110-4 без учета расширения. Спецификация оборудования и материалов к листу ЭП2-83 ОРУ по схеме №110-4Н без учета расширения. План, вид и схема заполнения ОРУ по схеме №110-4Н без учета расширения. Спецификация оборудования и материалов к листу ЭП2-85 ОРУ по схеме №110-5 без учета расширения. План, вид и схема заполнения ОРУ по схеме №110-5 без учета расширения. Спецификация оборудования и материалов к листу ЭП2-87 ОРУ по схеме №110-5Н без учета расширения. План, вид и схема заполнения ОРУ по схеме №110-5Н без учета расширения. Спецификация оборудования и материалов к листу ЭП2-89 ОРУ по схеме №110-5АН без учета расширения. План, вид и схема заполнения ОРУ по схеме №110-5АН без учета расширения. Спецификация оборудования и материалов к листу ЭП2-91 ОРУ по схеме №110-4 без учета расширения. Ячейка ВЛ-трансформатор ОРУ по схемам №110-4, 110-4Н, 110-5АН без учета расширения. Ячейка перемычки и шинных аппаратов ОРУ по схеме №110-4Н без учета расширения. Ячейка ВЛ-трансформатор ОРУ по схеме №110-5 без учета расширения. Ячейка ВЛ-трансформатор Т1 ОРУ по схеме №110-5 без учета расширения. Ячейка ВЛ-трансформатор Т2 ОРУ по схемам №110-5, 110-5АН без учета расширения. Ячейка перемычки и шинных аппаратов ОРУ по схеме №110-5Н без учета расширения. Ячейка ВЛ-трансформатор Т1 ОРУ по схеме №110-5Н без учета расширения. Ячейка ВЛ-трансформатор Т2 ОРУ по схеме №110-5Н без учета расширения. Ячейка перемычки ОРУ по схеме №110-5АН без учета расширения. Ячейка ВЛ-трансформатор Спецификация оборудования | Разработан: | Северо-западное отделение института Энергосетьпроект
| Утверждён: | 30.05.1990 Минэнерго СССР (USSR Minenergo 37)
| Издан: | Энергосетьпроект (1990 г. )
| Расположен в: |
| Заменяет собой: | |
                                                                                                                       
|