Скачать Типовой проект 902-2-388.85 Альбом 3. Строительная часть. Узлы, деталиДата актуализации: 10.08.2017 Типовой проект 902-2-388.85
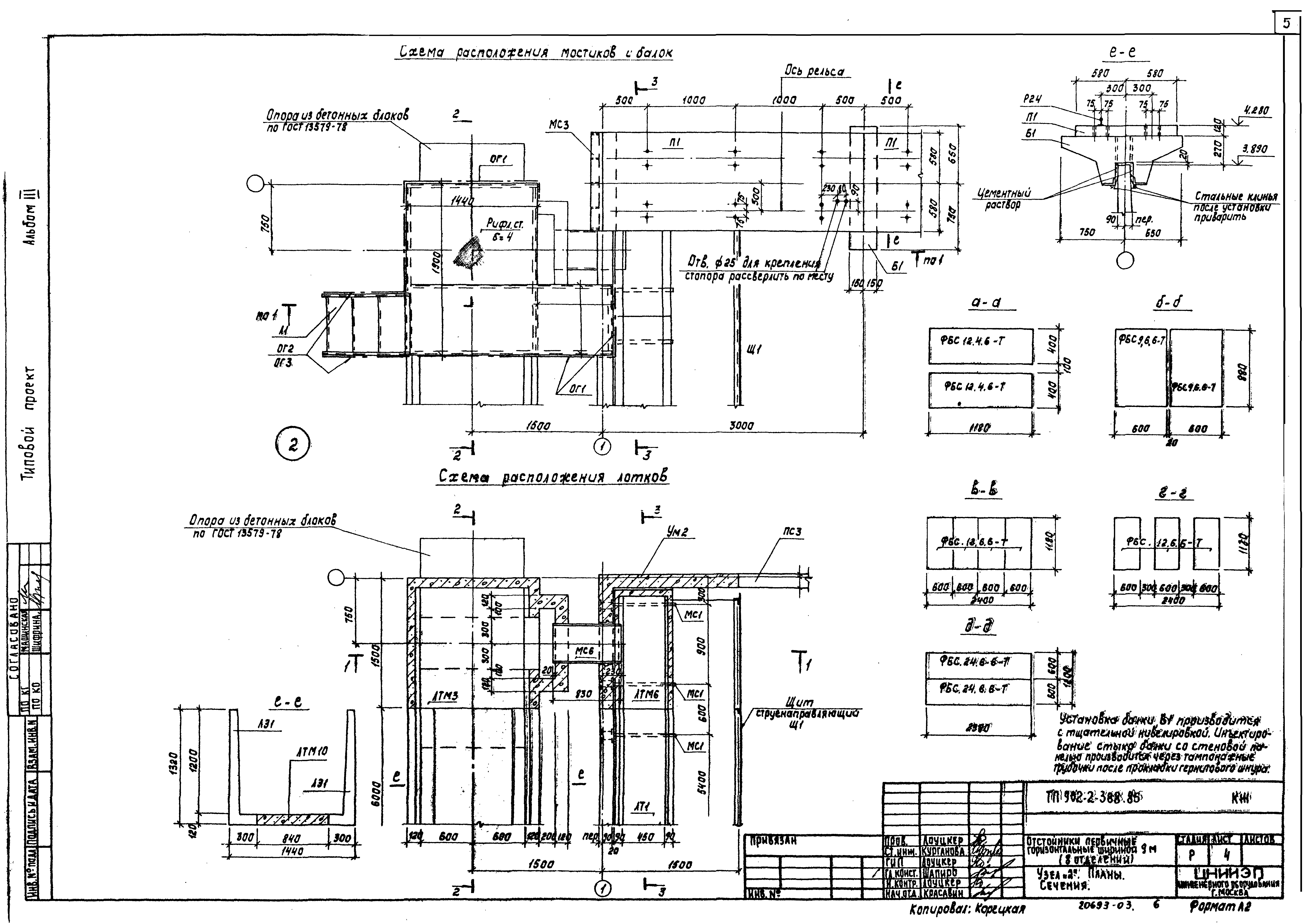
Альбом 3. Строительная часть. Узлы, деталиОбозначение: | Типовой проект 902-2-388.85 | Обозначение англ: | 902-2-388.85 | Статус: | не определен законодательством | Название рус.: | Альбом 3. Строительная часть. Узлы, детали | Дата добавления в базу: | 01.09.2013 | Дата актуализации: | 05.05.2017 | Дата введения: | 01.12.1985 | Оглавление: | Общие данные Узел 1 и 3. Планы. Разрез 6-6 Узел 1. Разрезы 1-1, 4-4, 5-5. Узел 2. Разрезы 2-2, 3-3 Узел 2. Планы. Сечения Узел 4. Планы. Разрезы 7-7, 8-8 Узел 5. Планы. Разрезы 9-9, 10-10 Набетонка по днищу. План. Разрезы. Опалубочный чертеж днища. Узлы Днище. Армирование. Узлы Монолитные участки стен. Опалубочный чертеж Монолитные участки стен Ум1…Ум4. Армирование. Узлы 1, 2 Монолитные участки стен Ум5…Ум10, Ум11. Армирование Монолитные участки лотков Лтм1…Лтм4. Армирование Монолитные участки лотков Лтм5…Лтм11. Опалубочный чертеж. Армирование Монолитные участки лотков. Спецификация | Разработан: | ЦНИИЭП инженерного оборудования
| Утверждён: | 22.07.1974 Госгражданстрой (Gosgrazhdanstroy 164)
| Расположен в: |
|
              
|