Скачать Серия 3.501-104 Часть 3. Блоки заводского изготовленияДата актуализации: 10.08.2017 Серия 3.501-104
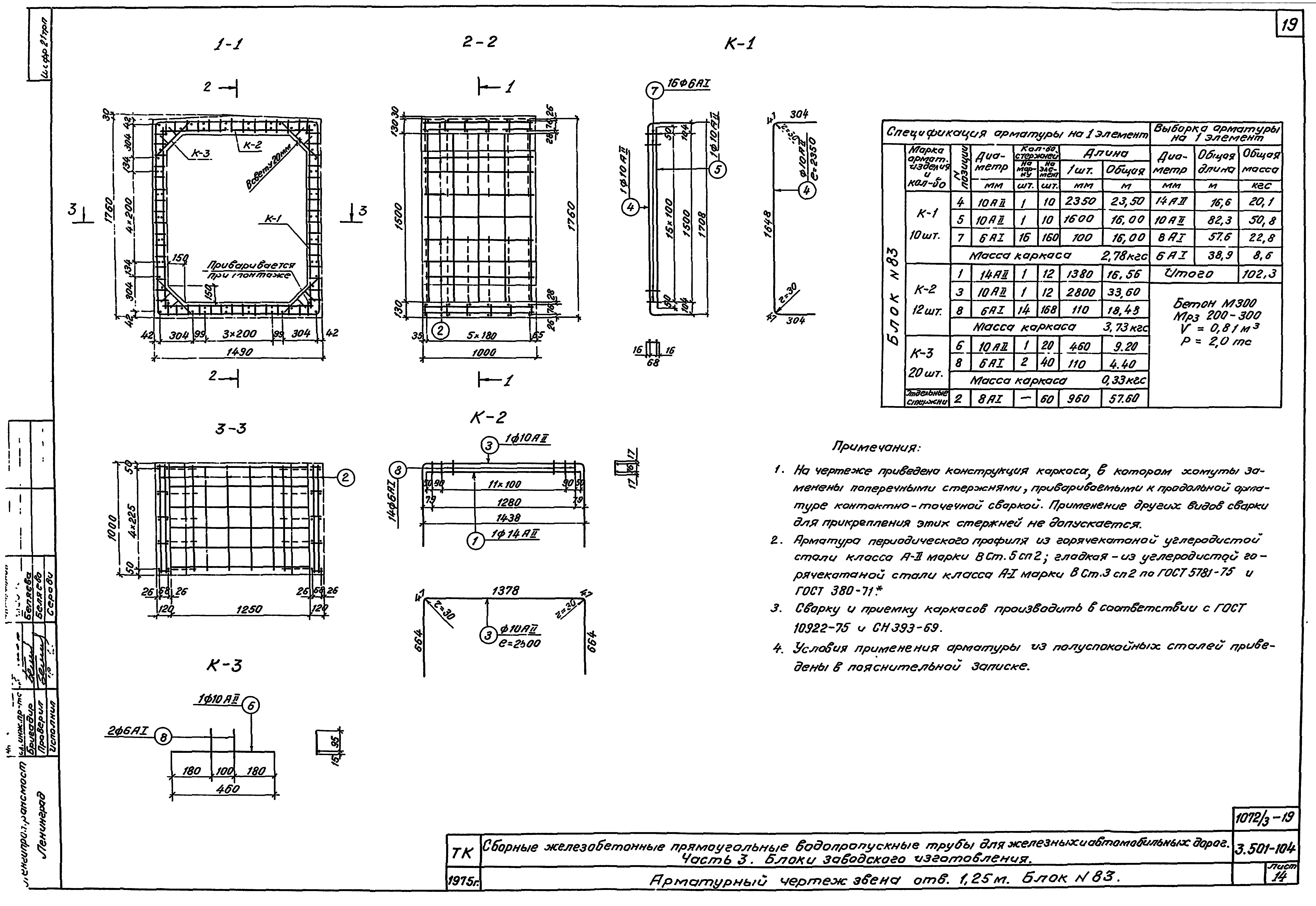
Часть 3. Блоки заводского изготовленияОбозначение: | Серия 3.501-104 | Обозначение англ: | Series 3.501-104 | Статус: | заменен | Название рус.: | Часть 3. Блоки заводского изготовления | Дата добавления в базу: | 01.09.2013 | Дата актуализации: | 05.05.2017 | Дата введения: | 01.07.1994 | Оглавление: | Титульный лист Содержание Пояснительная записка Общая часть Блоки труб отв. 1.0 и 2х1.0 м Блоки труб отв. 1.25 и 2х1.25 м Блоки труб отв. 1.5 и 2х1.5 м Блоки труб отв. 2.0 и 2х2.0 м Блоки труб отв. 2.5 и 2х2.5 м Блоки труб отв. 3.0 и 2х3.0 м Блоки труб отв. 4.0 и 2х4.0 м Ведомость расхода материалов на блоки Конструкция блоков Арматурный чертеж фундаментных плит. Блоки №18, 19, 20 и 42 Арматурный чертеж фундаментных плит. Блоки №43, 44, 45 и 46 Арматурный чертеж звена отв. 1.0 м. Блок №80 Арматурный чертеж звена отв. 1.0 м. Блок №81 Арматурный чертеж звена отв. 1.0 м. Блок №82 Арматурный чертеж звена отв. 1.25 м. Блок №83 Арматурный чертеж звена отв. 1.25 м. Блок №84 Арматурный чертеж звена отв. 1.25 м. Блок №85 Арматурный чертеж звена отв. 1.5 м. Блок №86 Арматурный чертеж звена отв. 1.5 м. Блок №87 Арматурный чертеж звена отв. 1.5 м. Блок №88 Арматурный чертеж звена отв. 2.0 м. Блок №47 Арматурный чертеж звена отв. 2.0 м. Блок №48 Арматурный чертеж звена отв. 2.0 м. Блок №89 Арматурный чертеж звена отв. 2.5 м. Блок №49 Арматурный чертеж звена отв. 2.5 м. Блок №50 Арматурный чертеж звена отв. 2.5 м. Блок №90 Арматурный чертеж звена отв. 3.0 м. Блок №91 Арматурный чертеж звена отв. 3.0 м. Блок №92 Арматурный чертеж звена отв. 3.0 м. Блок №93 Арматурный чертеж звена отв. 4.0 м. Блок №94 Арматурный чертеж звена отв. 4.0 м. Блок №95 Арматурный чертеж звена отв. 4.0 м. Блок №96 Арматурный чертеж повышенного звена отв. 1.0 м. Блок №97 Арматурный чертеж повышенного звена отв. 1.25 м. Блок №100 Арматурный чертеж повышенного звена отв. 1.5 м. Блок №103 Арматурный чертеж повышенного звена отв. 2.0 м. Блок №51 Арматурный чертеж повышенного звена отв. 2.5 м. Блок №54 Арматурный чертеж входного звена отв. 1.0 м. Блок №98 Арматурный чертеж входного звена отв. 1.25 м. Блок №101 Арматурный чертеж входного звена отв. 1.5 м. Блок №104 Арматурный чертеж входного звена отв. 2.0 м. Блок №52 Арматурный чертеж входного звена отв. 2.5 м. Блок №55 Арматурный чертеж выходного звена отв. 1.0 м. Блок №99 Арматурный чертеж выходного звена отв. 1.25 м. Блок №102 Арматурный чертеж выходного звена отв. 1.5 м. Блок №105 Арматурный чертеж выходного звена отв. 2.0 м. Блок №53 Арматурный чертеж выходного звена отв. 2.5 м. Блок №56 Арматурный чертеж выходного звена отв. 3.0 м. Блок №106 Арматурный чертеж выходного звена отв. 4.0 м. Блок №107 Арматурный чертеж откосного крыла оголовка. Блок №57пл Арматурный чертеж откосного крыла оголовка. Блок №58пл Арматурный чертеж откосного крыла оголовка. Блок №59пл Арматурный чертеж откосного крыла оголовка. Блок №108пл Строповочные приспособления звеньев | Разработан: | Ленгипротрансмост
| Расположен в: |
| Чем заменён: | |
                                                             
|