Информационная система
«Ёшкин Кот»

Скачать базу одним архивом
Скачать обновления
История создания базы
Карта сайта

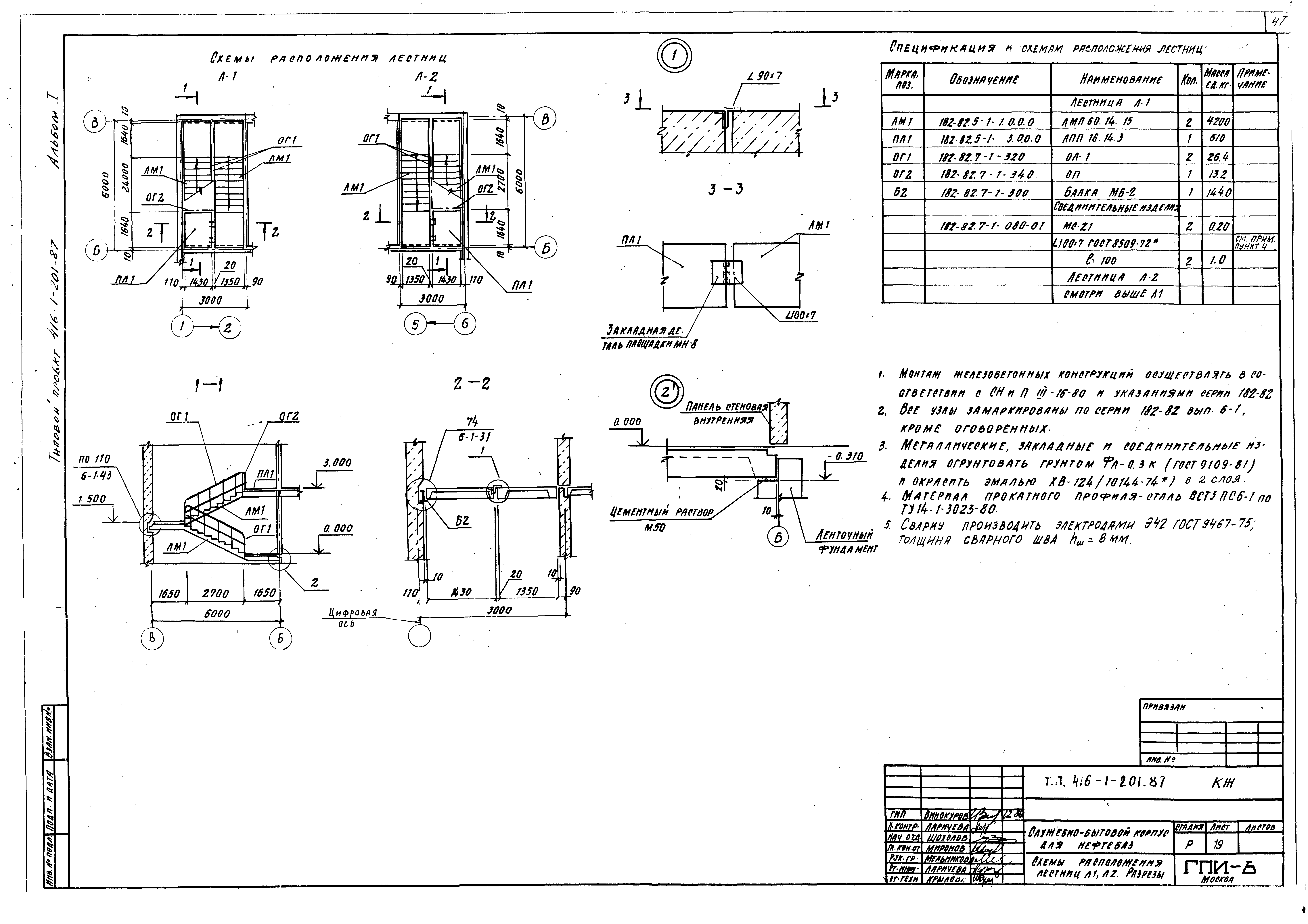
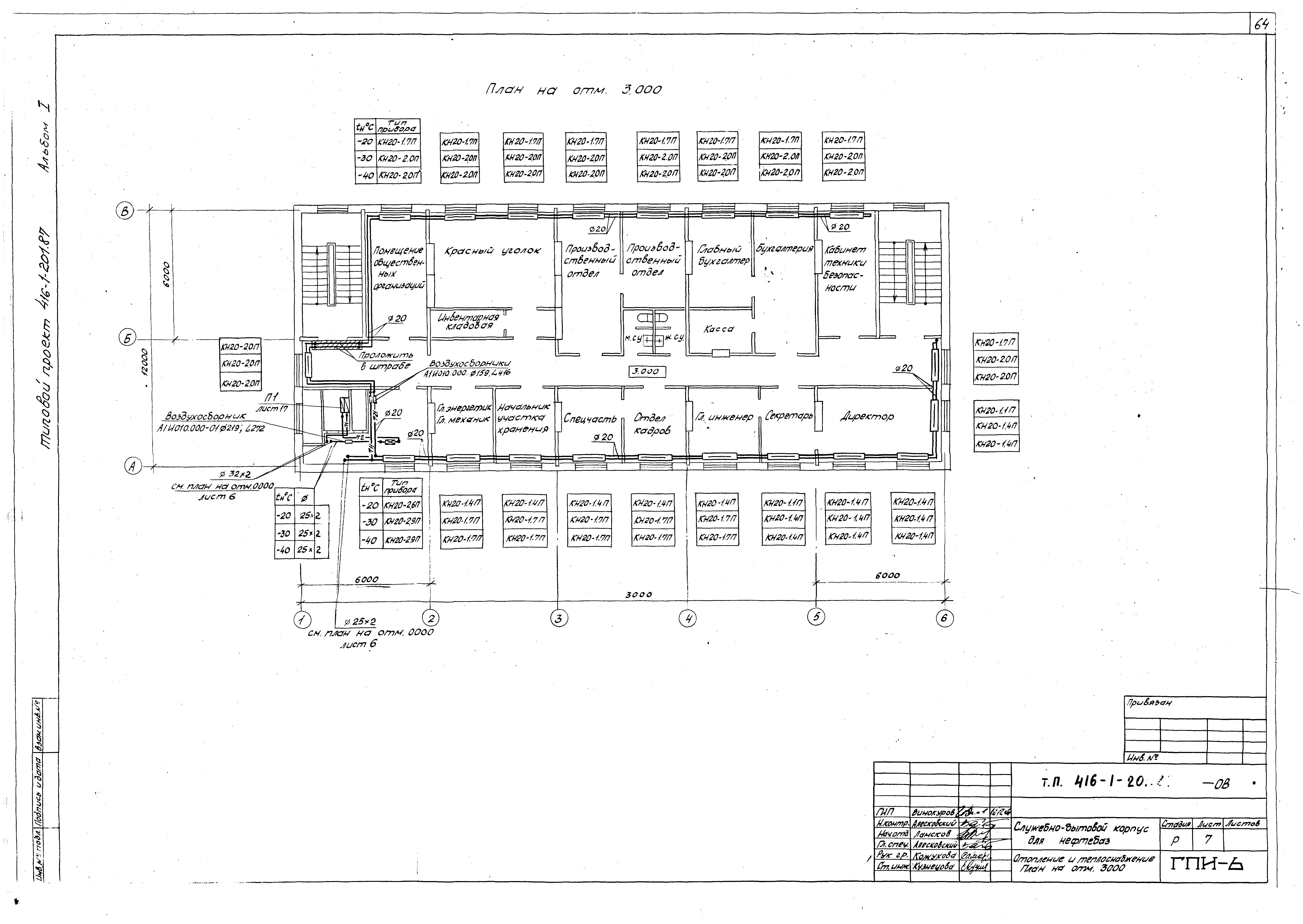
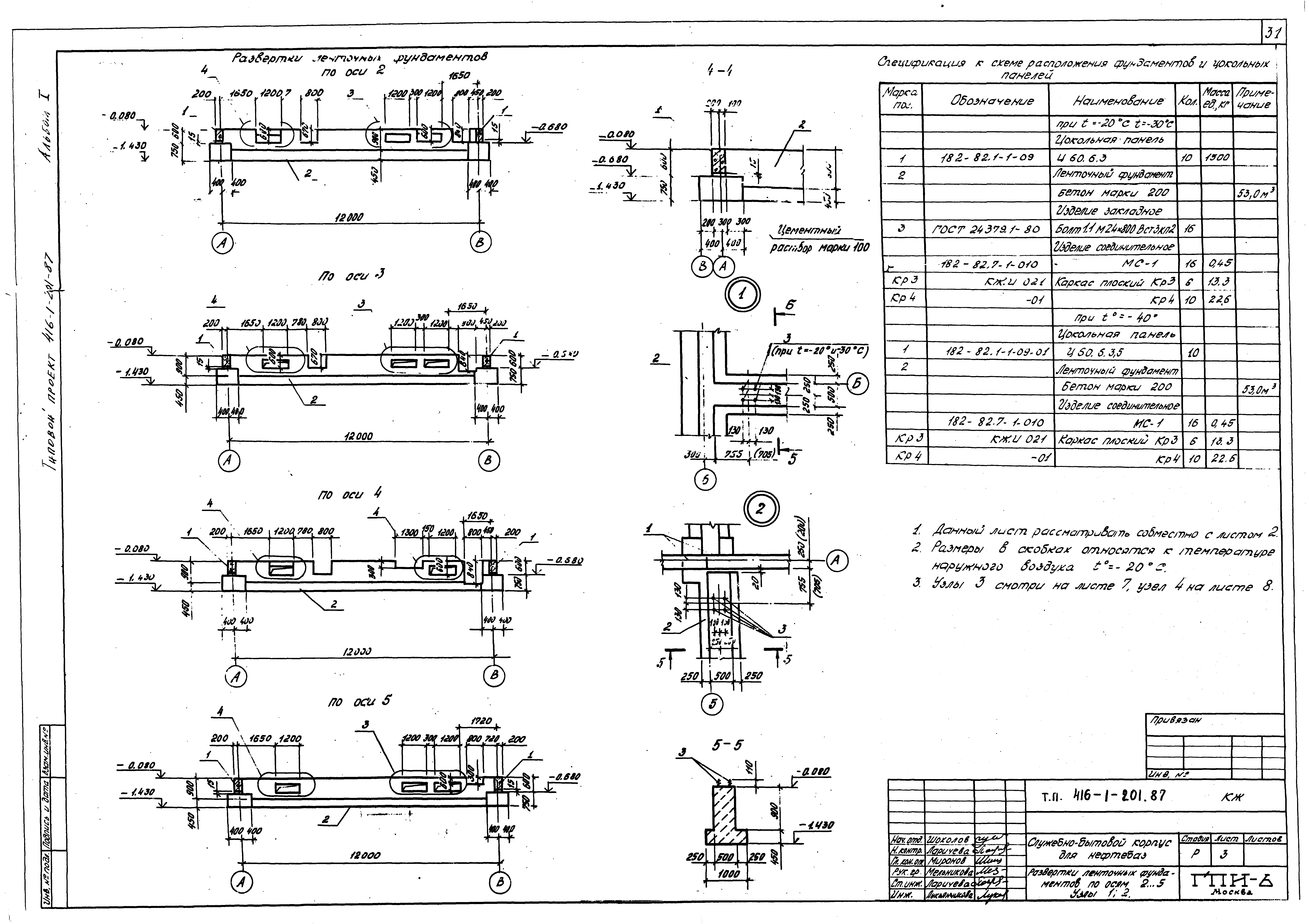
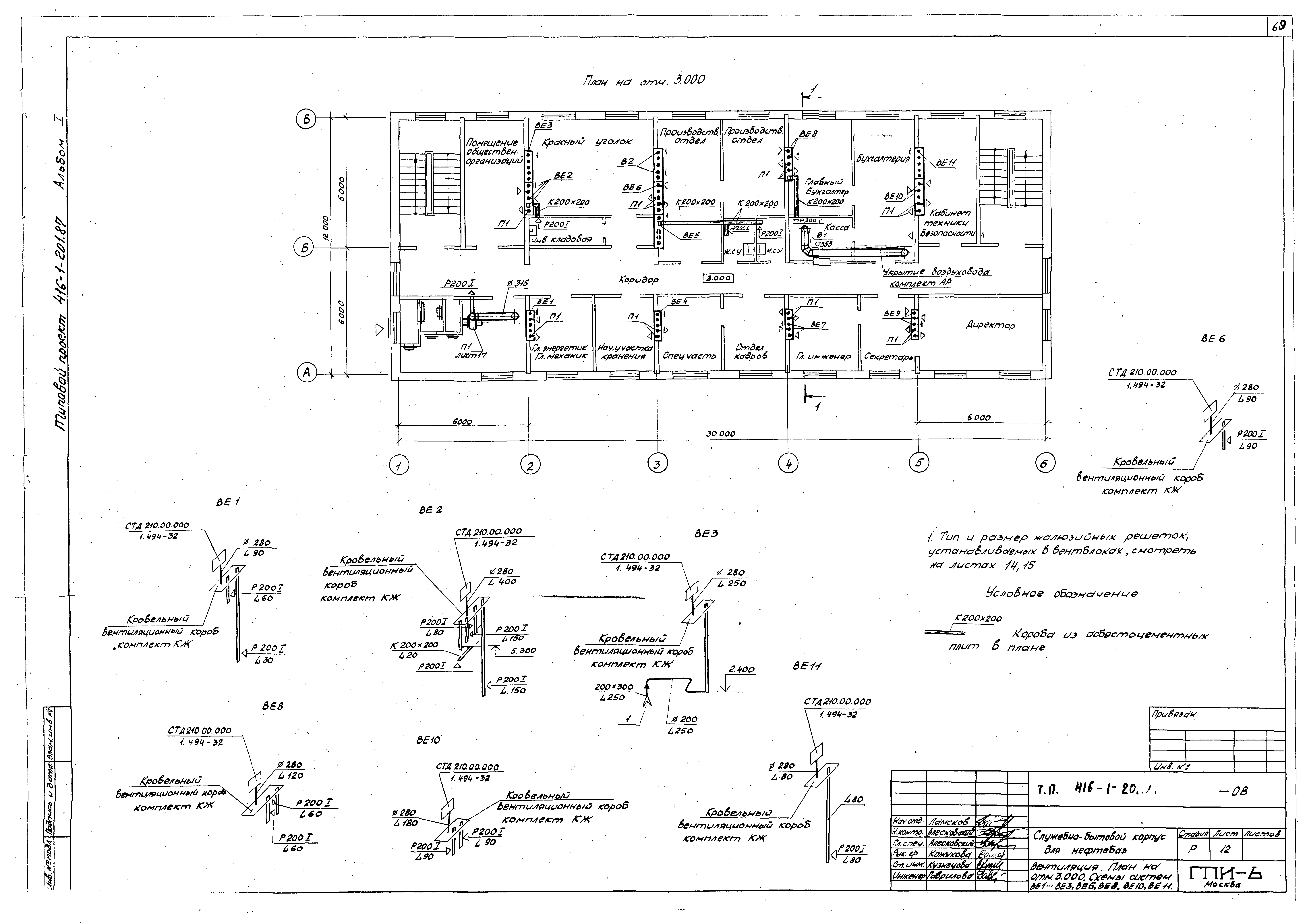
Скачать Типовой проект 416-1-201.87 Альбом I. Архитектурно-строительные чертежи. Чертежи санитарно-технических систем и устройств. Технологические чертежи буфета

Дата актуализации: 10.08.2017

Типовой проект 416-1-201.87

Альбом I. Архитектурно-строительные чертежи. Чертежи санитарно-технических систем и устройств. Технологические чертежи буфета

Обозначение: Типовой проект 416-1-201.87
Обозначение англ: 416-1-201.87
Статус:не определен законодательством
Название рус.:Альбом I. Архитектурно-строительные чертежи. Чертежи санитарно-технических систем и устройств. Технологические чертежи буфета
Дата добавления в базу:01.09.2013
Дата актуализации:05.05.2017
Дата введения:26.09.1986
Разработан: ЦНИИпромзданий
ГПИ-6 Госкомлегпрома
Гипроторг
Утверждён:26.09.1986 ГПИ-6 (193)
Расположен в:Техническая документация Строительство Справочные документы Типовые строительные конструкции, изделия и узлы Общероссийский строительный каталог Промышленные предприятия, здания и сооружения Предприятия, здания и сооружения промышленности и электроэнергетики Ремонтные предприятия. Административно-бытовые, производственные и вспомогательные здания и сооружения промышленных предприятий Здания административно-бытовые, заводоуправления и конторы
Типовой проект 416-1-201.87Типовой проект 416-1-201.87Типовой проект 416-1-201.87Типовой проект 416-1-201.87Типовой проект 416-1-201.87Типовой проект 416-1-201.87Типовой проект 416-1-201.87Типовой проект 416-1-201.87Типовой проект 416-1-201.87Типовой проект 416-1-201.87Типовой проект 416-1-201.87Типовой проект 416-1-201.87Типовой проект 416-1-201.87Типовой проект 416-1-201.87Типовой проект 416-1-201.87Типовой проект 416-1-201.87Типовой проект 416-1-201.87Типовой проект 416-1-201.87Типовой проект 416-1-201.87Типовой проект 416-1-201.87Типовой проект 416-1-201.87Типовой проект 416-1-201.87Типовой проект 416-1-201.87Типовой проект 416-1-201.87Типовой проект 416-1-201.87Типовой проект 416-1-201.87Типовой проект 416-1-201.87Типовой проект 416-1-201.87Типовой проект 416-1-201.87Типовой проект 416-1-201.87Типовой проект 416-1-201.87Типовой проект 416-1-201.87Типовой проект 416-1-201.87Типовой проект 416-1-201.87Типовой проект 416-1-201.87Типовой проект 416-1-201.87Типовой проект 416-1-201.87Типовой проект 416-1-201.87Типовой проект 416-1-201.87Типовой проект 416-1-201.87Типовой проект 416-1-201.87Типовой проект 416-1-201.87Типовой проект 416-1-201.87Типовой проект 416-1-201.87Типовой проект 416-1-201.87Типовой проект 416-1-201.87Типовой проект 416-1-201.87Типовой проект 416-1-201.87Типовой проект 416-1-201.87Типовой проект 416-1-201.87Типовой проект 416-1-201.87Типовой проект 416-1-201.87Типовой проект 416-1-201.87Типовой проект 416-1-201.87Типовой проект 416-1-201.87Типовой проект 416-1-201.87Типовой проект 416-1-201.87Типовой проект 416-1-201.87Типовой проект 416-1-201.87Типовой проект 416-1-201.87Типовой проект 416-1-201.87Типовой проект 416-1-201.87Типовой проект 416-1-201.87Типовой проект 416-1-201.87Типовой проект 416-1-201.87Типовой проект 416-1-201.87Типовой проект 416-1-201.87Типовой проект 416-1-201.87Типовой проект 416-1-201.87Типовой проект 416-1-201.87Типовой проект 416-1-201.87Типовой проект 416-1-201.87Типовой проект 416-1-201.87Типовой проект 416-1-201.87Типовой проект 416-1-201.87Типовой проект 416-1-201.87Типовой проект 416-1-201.87Типовой проект 416-1-201.87Типовой проект 416-1-201.87Типовой проект 416-1-201.87Типовой проект 416-1-201.87

© 2013 Ёшкин Кот :-) Карта сайта