Информационная система
«Ёшкин Кот»

Скачать базу одним архивом
Скачать обновления
История создания базы
Карта сайта

Скачать Серия 1.489-1 Выпуск 1. Железобетонные конструкции (рабочие чертежи)

Дата актуализации: 10.08.2017

Серия 1.489-1

Выпуск 1. Железобетонные конструкции (рабочие чертежи)

Обозначение: Серия 1.489-1
Обозначение англ: Series 1.489-1
Статус:не действует
Название рус.:Выпуск 1. Железобетонные конструкции (рабочие чертежи)
Дата добавления в базу:01.09.2013
Дата актуализации:05.05.2017
Дата введения:01.03.1974
Дата окончания срока действия:01.05.1999
Оглавление:Содержание
Пояснительная записка
Перекрытие над шахтой П-1
Перекрытие над шахтой П-2
Перекрытие над шахтой П-3
Перекрытие над шахтой П-4
Перекрытие над шахтой П-5
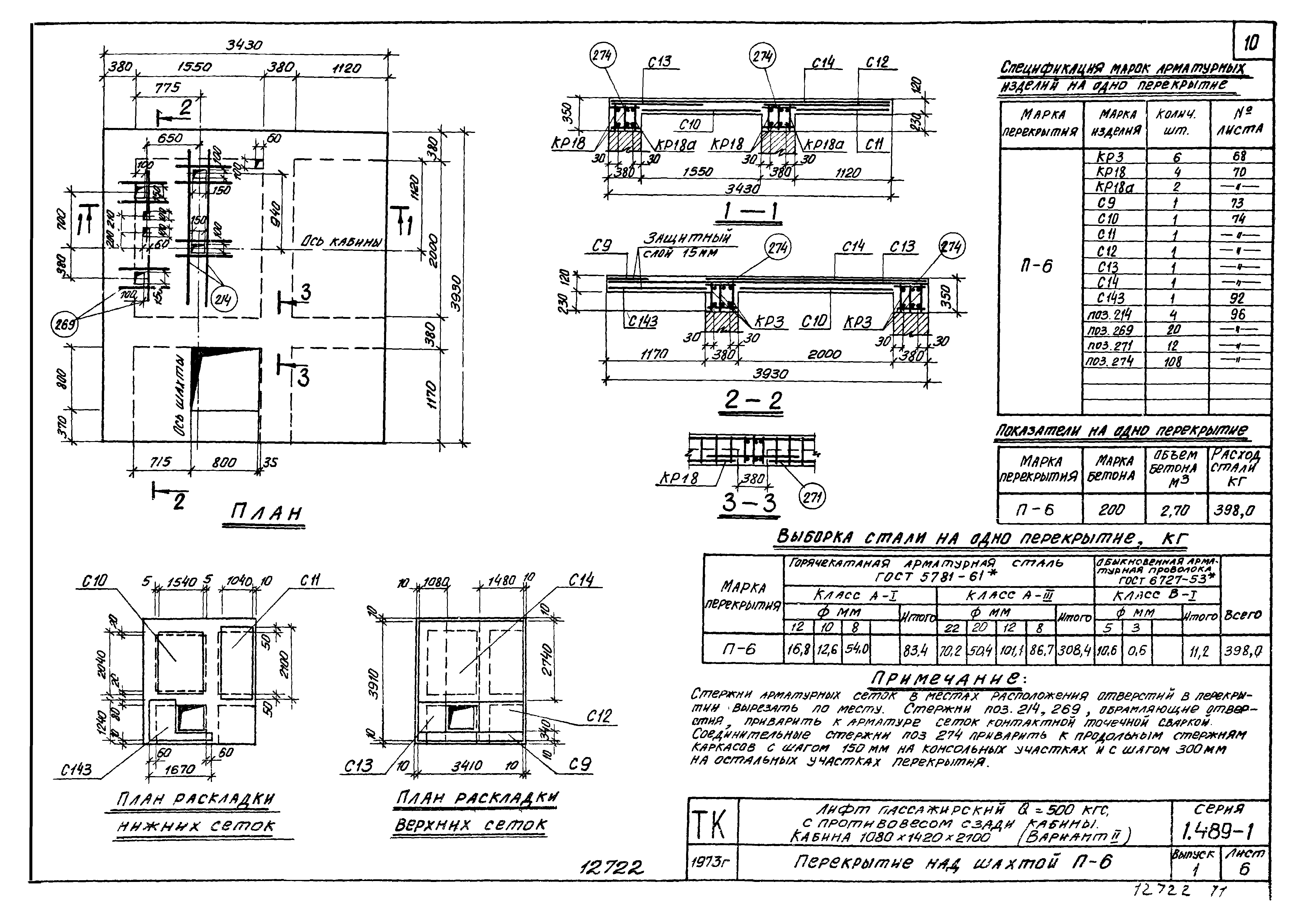
Перекрытие над шахтой П-6
Перекрытие над шахтой П-7
Перекрытие над шахтой П-8
Перекрытие над шахтой П-9
Перекрытие над шахтой П-10
Перекрытие над шахтой П-11
Перекрытие над шахтой П-12
Перекрытие над шахтой П-13
Перекрытие над шахтой П-14
Перекрытие над шахтой П-15
Перекрытие над шахтой П-16
Перекрытие над шахтой П-17
Перекрытие над шахтой П-18
Перекрытие над шахтой П-19
Перекрытие над шахтой П-20
Перекрытие над шахтой П-21
Перекрытие над шахтой П-22
Перекрытие над шахтой П-23
Перекрытие над шахтой П-24
Перекрытие над шахтой П-25
Перекрытие над шахтой П-26
Перекрытие над шахтой П-27
Перекрытие над шахтой П-28
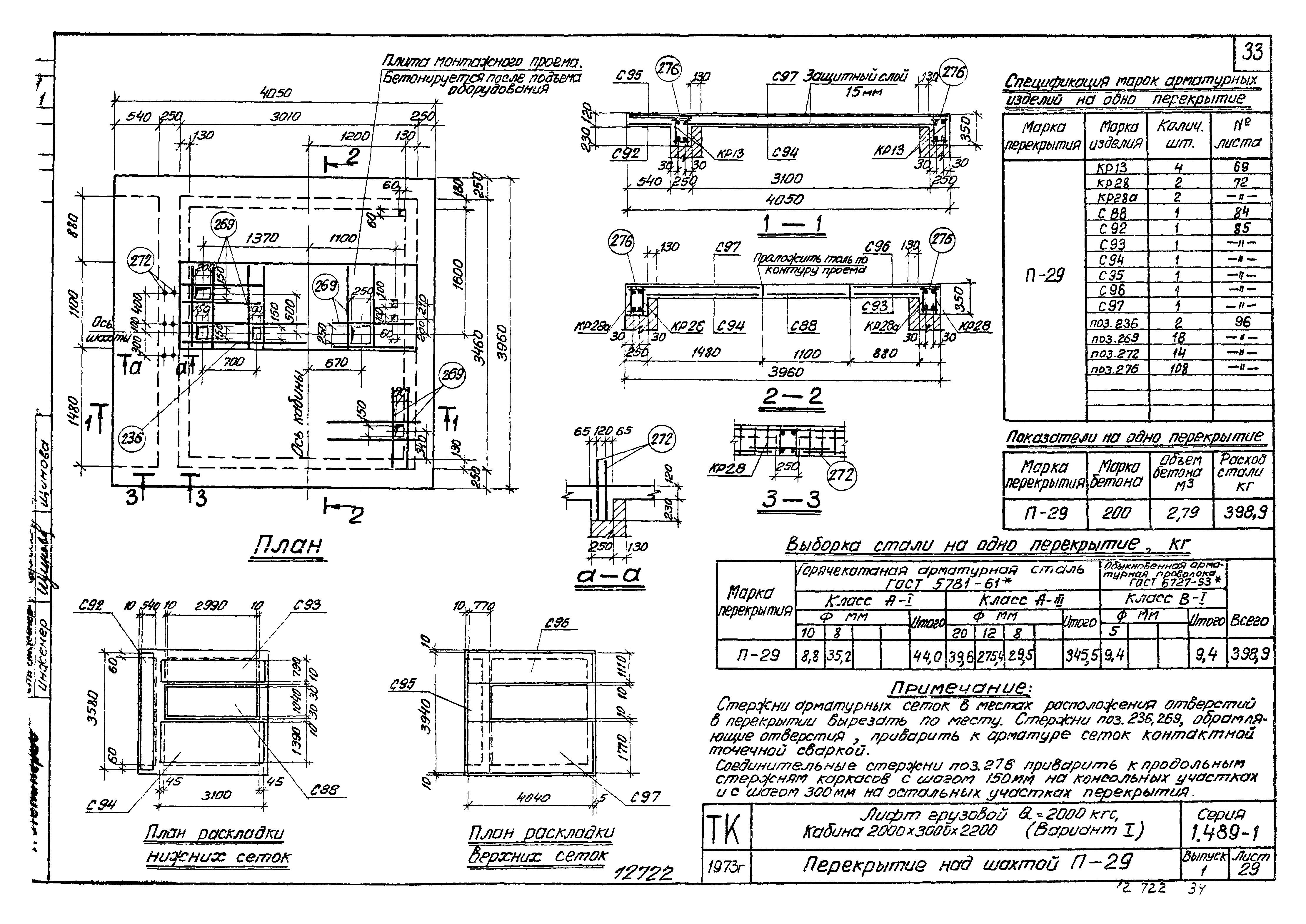
Перекрытие над шахтой П-29
Перекрытие над шахтой П-30
Перекрытие над шахтой П-31
Перекрытие над шахтой П-32
Перекрытие над шахтой П-33
Перекрытие над шахтой П-34
Перекрытие над шахтой П-35
Покрытие машинного помещения П-36
Покрытие машинного помещения П-37
Покрытие машинного помещения П-38
Покрытие машинного помещения П-39
Покрытие машинного помещения П-40
Покрытие машинного помещения П-41
Покрытие машинного помещения П-42
Покрытие машинного помещения П-43
Покрытие машинного помещения П-44
Покрытие машинного помещения П-45
Покрытие машинного помещения П-46
Покрытие машинного помещения П-47
Покрытие машинного помещения П-48
Покрытие машинного помещения П-49
Покрытие машинного помещения П-50
Покрытие машинного помещения П-51
Покрытие машинного помещения П-52
Покрытие машинного помещения П-53
Покрытие машинного помещения П-54
Покрытие машинного помещения П-55
Покрытие машинного помещения П-56
Покрытие машинного помещения П-57
Покрытие машинного помещения П-58
Покрытие машинного помещения П-59
Покрытие машинного помещения П-60
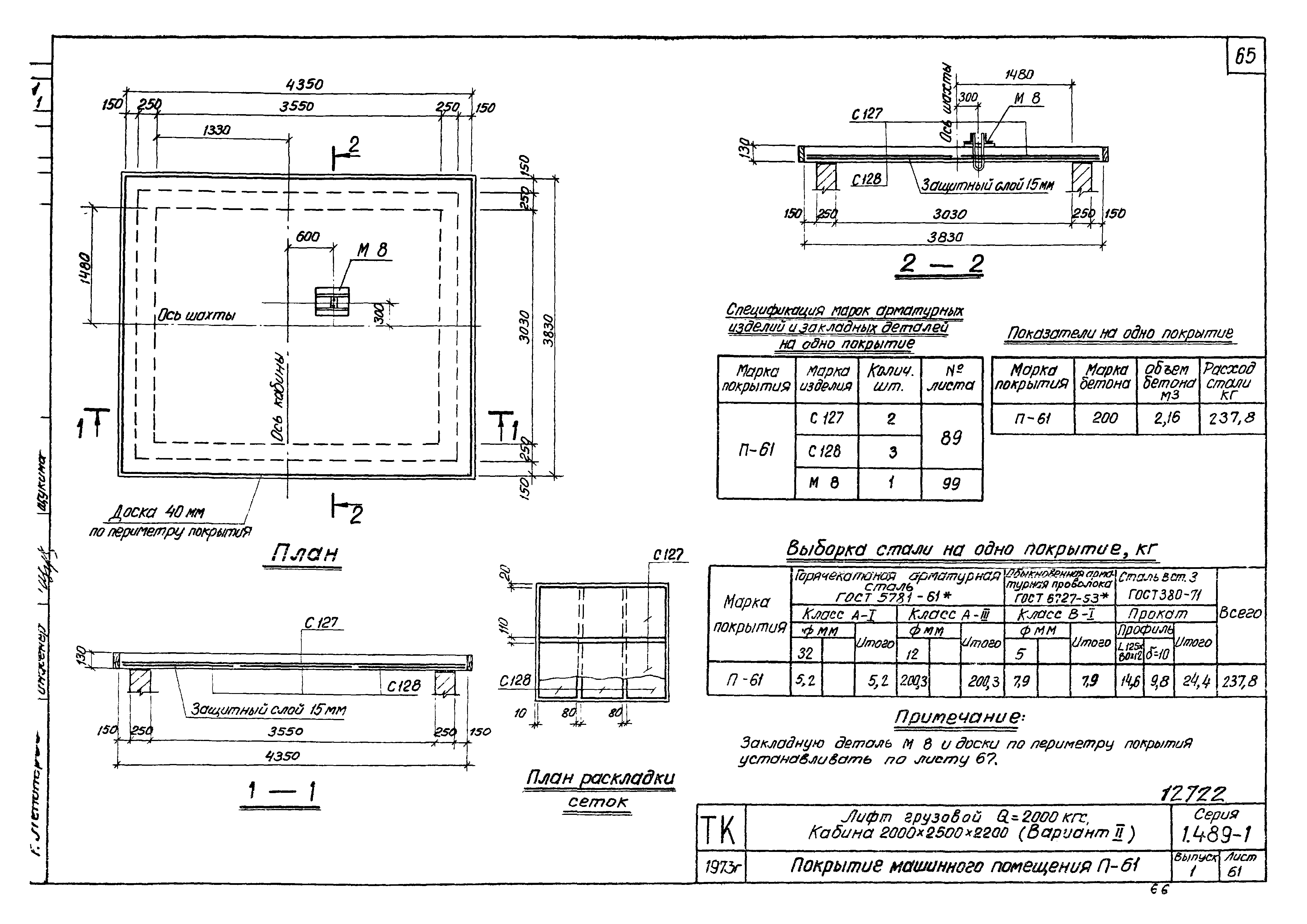
Покрытие машинного помещения П-61
Покрытие машинного помещения П-62
Покрытие машинного помещения П-63
Покрытие машинного помещения П-64
Покрытие машинного помещения П-65
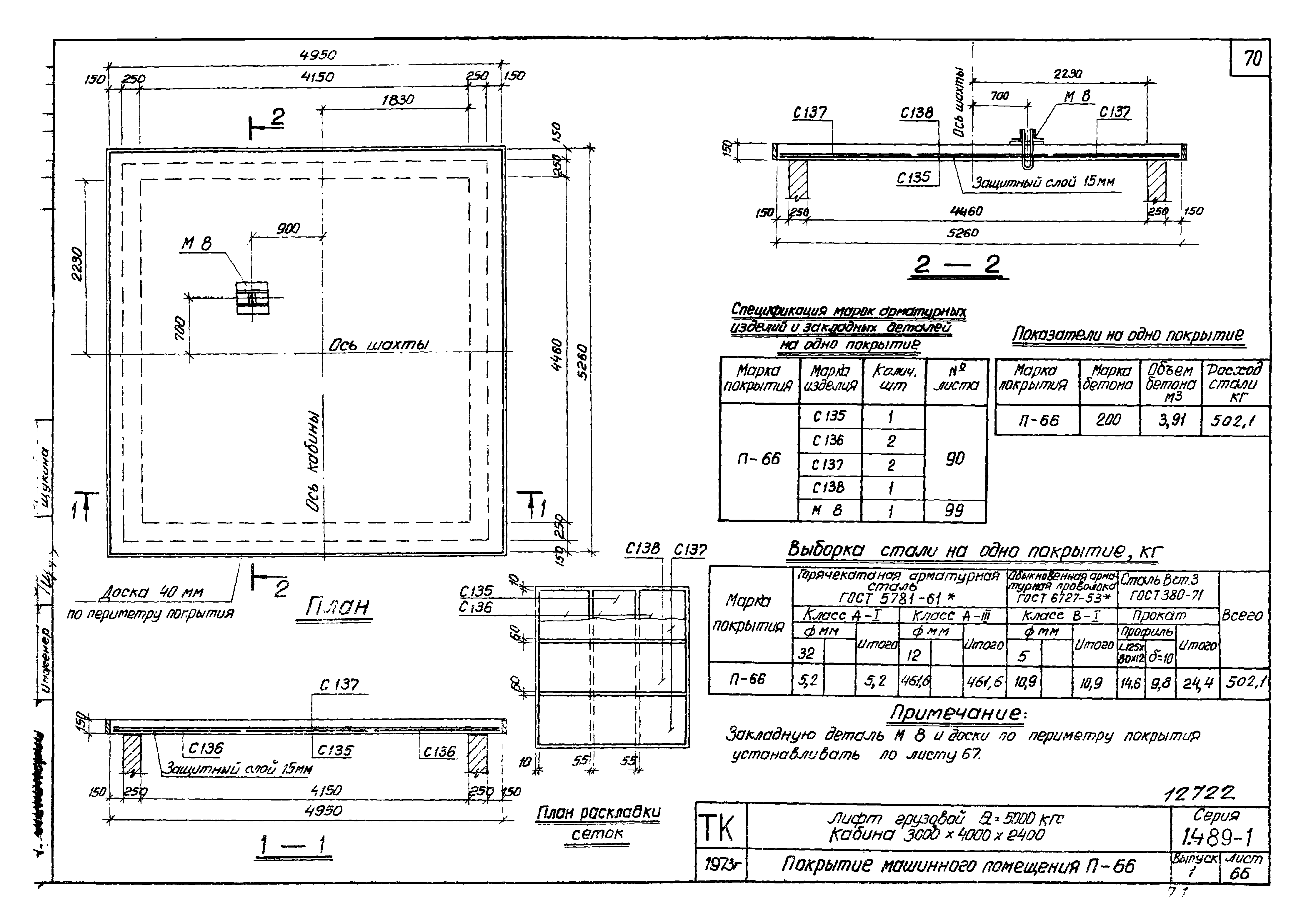
Покрытие машинного помещения П-66
Деталь крепления монорельса. Деталь установки М5 - М10. Деталь крепления досок в покрытии
Каркасы КР1 - КР8
Каркасы КР9 - КР15
Каркасы КР16 - КР20; КР16а - КР20а
Каркасы КР21 - КР25; КР21а - КР25а
Каркасы КР26 - КР29; КР26а - КР29а
Сетки С1 - С9
Сетки С10 - С18
Сетки С19 - С27
Сетки С28 - С33
Сетки С34 - С40
Сетки С41 - С49
Сетки С50 - С57
Сетки С58 - С65
Сетки С66 - С70
Сетки С71 - С78
Сетки С79 - С84
Сетки С85 - С91
Сетки С92 - С97
Сетки С98 - С107
Сетки С108 - С115
Сетки С116 - С122
Сетки С123 - С130
Сетки С131 - С138
Сетки С139 - С142
Сетки С143 - С145
Сетки С146 - С149
Сетки С150 - С153
Сетки С154, С156
Сетки С155, С157 - С159. Отдельные позиции 169, 214, 220, 236, 253, 269 - 277
Закладные детали М1 - М4
Закладные детали М5 - М7
Закладные детали М8 - М12
Спецификация позиций арматурных изделий на альбом
Спецификация позиций арматурных изделий и закладных деталей на альбом
Монорельсы МБ1 - МБ5
Монорельсы МБ6 - МБ9
Подлебедочные балки Б1 - Б6
Крышки люков КЛ1 - КЛ3
Спецификация конструктивных элементов и изделий, разработанных в чертежах выпуска 1, на одну шахту
Разработан: ЦНИИпромзданий
ЛГПИ
Утверждён:12.07.1973 Госстрой СССР (Государственный комитет Совета Министров СССР по делам строительства) (USSR Gosstroy )
Расположен в:Техническая документация Строительство Справочные документы Типовые строительные конструкции, изделия и узлы Общероссийский строительный каталог Строительные конструкции, изделия и узлы зданий и сооружений для всех видов строительства Конструкции, изделия и узлы зданий Несущие конструкции двухэтажных и многоэтажных зданий Шахты лифтов
Серия 1.489-1Серия 1.489-1Серия 1.489-1Серия 1.489-1Серия 1.489-1Серия 1.489-1Серия 1.489-1Серия 1.489-1Серия 1.489-1Серия 1.489-1Серия 1.489-1Серия 1.489-1Серия 1.489-1Серия 1.489-1Серия 1.489-1Серия 1.489-1Серия 1.489-1Серия 1.489-1Серия 1.489-1Серия 1.489-1Серия 1.489-1Серия 1.489-1Серия 1.489-1Серия 1.489-1Серия 1.489-1Серия 1.489-1Серия 1.489-1Серия 1.489-1Серия 1.489-1Серия 1.489-1Серия 1.489-1Серия 1.489-1Серия 1.489-1Серия 1.489-1Серия 1.489-1Серия 1.489-1Серия 1.489-1Серия 1.489-1Серия 1.489-1Серия 1.489-1Серия 1.489-1Серия 1.489-1Серия 1.489-1Серия 1.489-1Серия 1.489-1Серия 1.489-1Серия 1.489-1Серия 1.489-1Серия 1.489-1Серия 1.489-1Серия 1.489-1Серия 1.489-1Серия 1.489-1Серия 1.489-1Серия 1.489-1Серия 1.489-1Серия 1.489-1Серия 1.489-1Серия 1.489-1Серия 1.489-1Серия 1.489-1Серия 1.489-1Серия 1.489-1Серия 1.489-1Серия 1.489-1Серия 1.489-1Серия 1.489-1Серия 1.489-1Серия 1.489-1Серия 1.489-1Серия 1.489-1Серия 1.489-1Серия 1.489-1Серия 1.489-1Серия 1.489-1Серия 1.489-1Серия 1.489-1Серия 1.489-1Серия 1.489-1Серия 1.489-1Серия 1.489-1Серия 1.489-1Серия 1.489-1Серия 1.489-1Серия 1.489-1Серия 1.489-1Серия 1.489-1Серия 1.489-1Серия 1.489-1Серия 1.489-1Серия 1.489-1Серия 1.489-1Серия 1.489-1Серия 1.489-1Серия 1.489-1Серия 1.489-1Серия 1.489-1Серия 1.489-1Серия 1.489-1Серия 1.489-1Серия 1.489-1Серия 1.489-1Серия 1.489-1Серия 1.489-1Серия 1.489-1Серия 1.489-1Серия 1.489-1Серия 1.489-1Серия 1.489-1Серия 1.489-1Серия 1.489-1Серия 1.489-1Серия 1.489-1Серия 1.489-1

© 2013 Ёшкин Кот :-) Карта сайта