Информационная система
«Ёшкин Кот»

Скачать базу одним архивом
Скачать обновления
История создания базы
Карта сайта

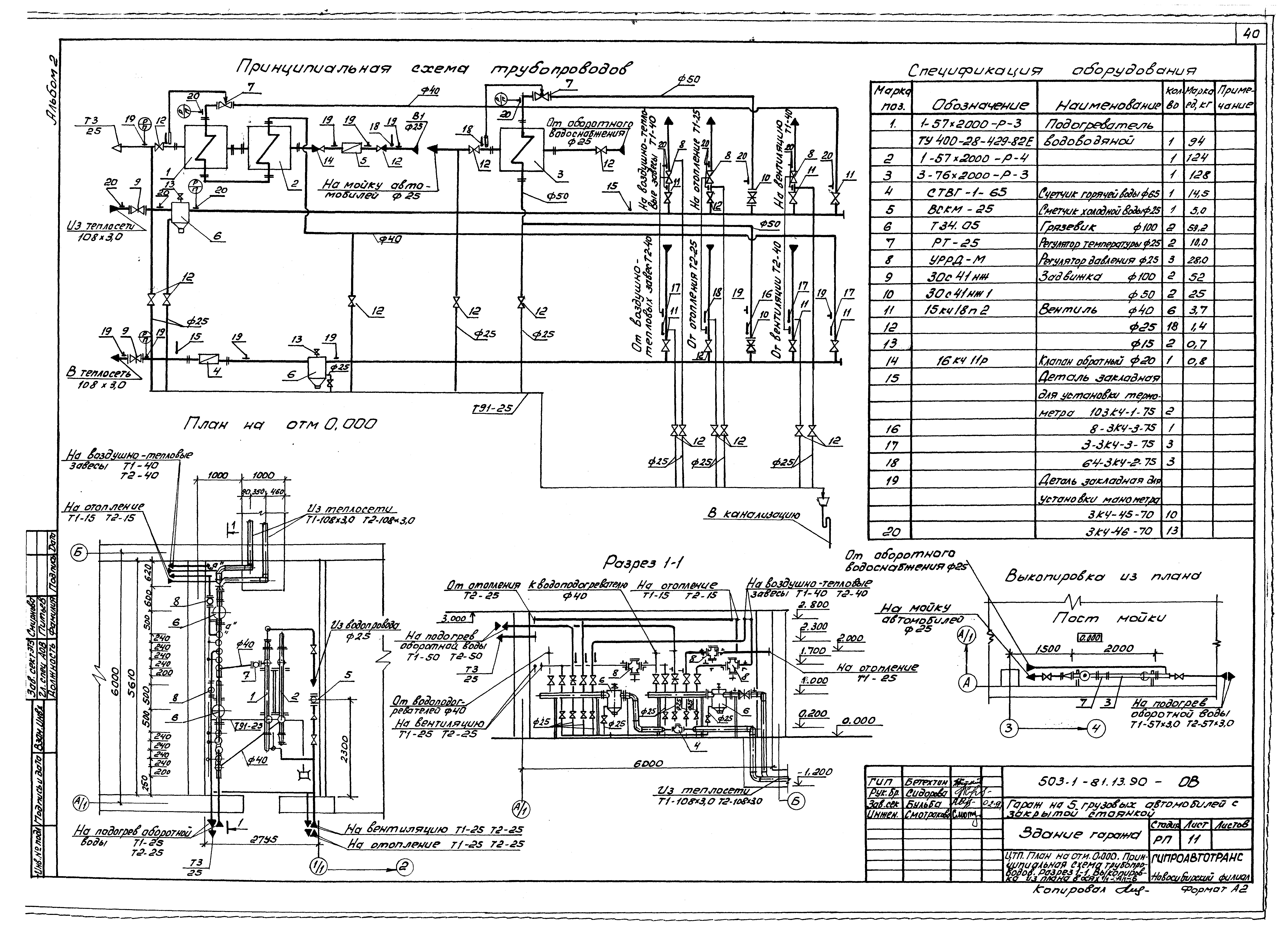
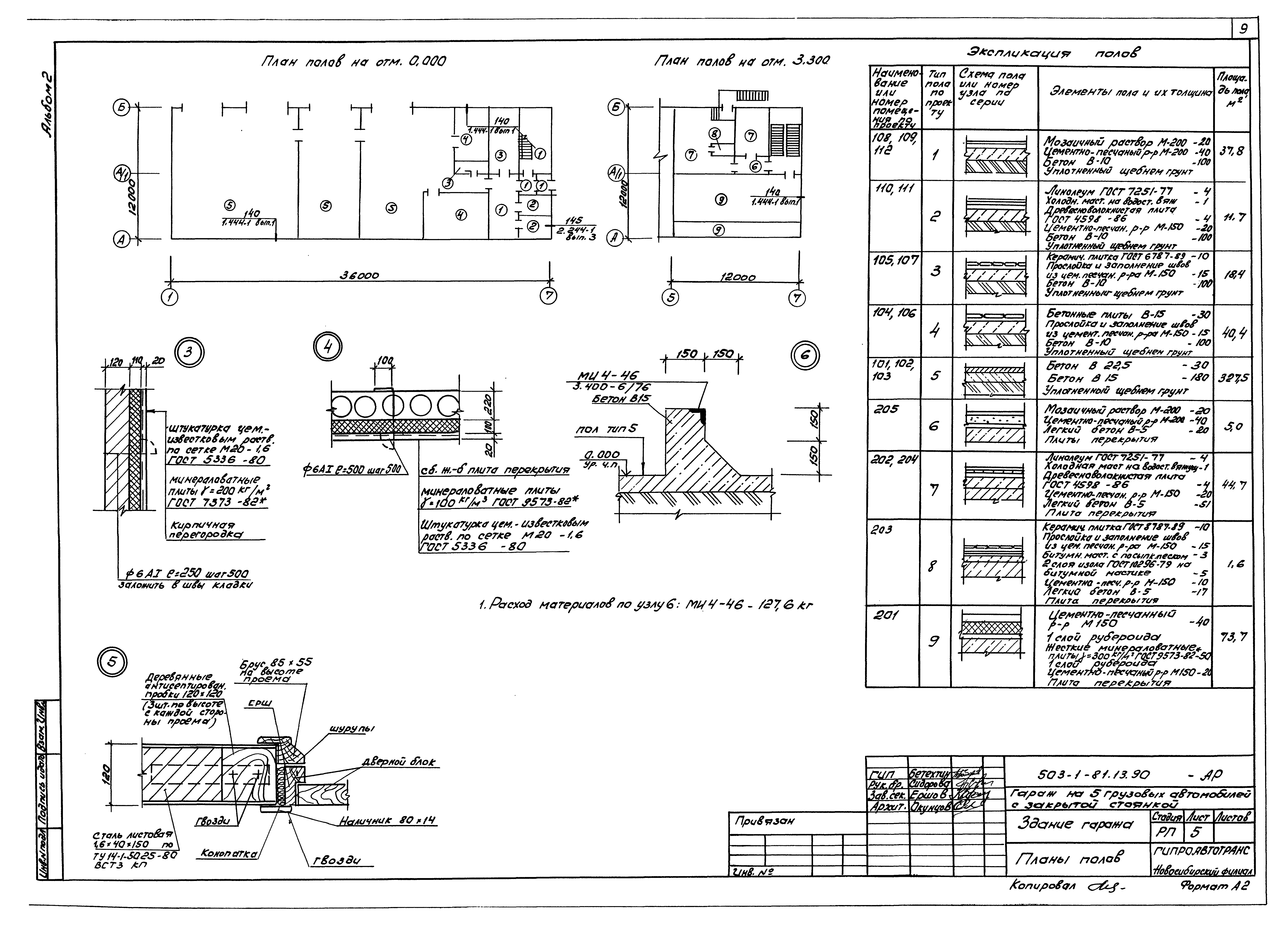
Скачать Типовой проект 503-1-81.13.90 Альбом 2. Технология производства. Архитектурные решения. Конструкции железобетонные. Строительные изделия. Конструкции металлические. Отопление и вентиляция. Внутренние водопровод и канализация

Дата актуализации: 10.08.2017

Типовой проект 503-1-81.13.90

Альбом 2. Технология производства. Архитектурные решения. Конструкции железобетонные. Строительные изделия. Конструкции металлические. Отопление и вентиляция. Внутренние водопровод и канализация

Обозначение: Типовой проект 503-1-81.13.90
Обозначение англ: 503-1-81.13.90
Статус:не определен законодательством
Название рус.:Альбом 2. Технология производства. Архитектурные решения. Конструкции железобетонные. Строительные изделия. Конструкции металлические. Отопление и вентиляция. Внутренние водопровод и канализация
Дата добавления в базу:01.09.2013
Дата актуализации:05.05.2017
Дата введения:04.02.1991
Разработан: Новосибирский филиал Гипроавтотранса
Утверждён:04.02.1991 Новосибирский Облисполком (4)
Расположен в:Техническая документация Строительство Справочные документы Типовые строительные конструкции, изделия и узлы Общероссийский строительный каталог Промышленные предприятия, здания и сооружения Предприятия, здания и сооружения транспорта Транспорт автомобильный Предприятия автотранспортные, гаражи и стоянки для грузовых автомобилей и механизмов
Типовой проект 503-1-81.13.90Типовой проект 503-1-81.13.90Типовой проект 503-1-81.13.90Типовой проект 503-1-81.13.90Типовой проект 503-1-81.13.90Типовой проект 503-1-81.13.90Типовой проект 503-1-81.13.90Типовой проект 503-1-81.13.90Типовой проект 503-1-81.13.90Типовой проект 503-1-81.13.90Типовой проект 503-1-81.13.90Типовой проект 503-1-81.13.90Типовой проект 503-1-81.13.90Типовой проект 503-1-81.13.90Типовой проект 503-1-81.13.90Типовой проект 503-1-81.13.90Типовой проект 503-1-81.13.90Типовой проект 503-1-81.13.90Типовой проект 503-1-81.13.90Типовой проект 503-1-81.13.90Типовой проект 503-1-81.13.90Типовой проект 503-1-81.13.90Типовой проект 503-1-81.13.90Типовой проект 503-1-81.13.90Типовой проект 503-1-81.13.90Типовой проект 503-1-81.13.90Типовой проект 503-1-81.13.90Типовой проект 503-1-81.13.90Типовой проект 503-1-81.13.90Типовой проект 503-1-81.13.90Типовой проект 503-1-81.13.90Типовой проект 503-1-81.13.90Типовой проект 503-1-81.13.90Типовой проект 503-1-81.13.90Типовой проект 503-1-81.13.90Типовой проект 503-1-81.13.90Типовой проект 503-1-81.13.90Типовой проект 503-1-81.13.90Типовой проект 503-1-81.13.90Типовой проект 503-1-81.13.90Типовой проект 503-1-81.13.90Типовой проект 503-1-81.13.90Типовой проект 503-1-81.13.90Типовой проект 503-1-81.13.90Типовой проект 503-1-81.13.90Типовой проект 503-1-81.13.90

© 2013 Ёшкин Кот :-) Карта сайта