Информационная система
«Ёшкин Кот»

Скачать базу одним архивом
Скачать обновления
История создания базы
Карта сайта

Скачать Серия 1.489-1 Выпуск 0. Архитектурно-строительные чертежи (материалы для проектирования)

Дата актуализации: 10.08.2017

Серия 1.489-1

Выпуск 0. Архитектурно-строительные чертежи (материалы для проектирования)

Обозначение: Серия 1.489-1
Обозначение англ: Series 1.489-1
Статус:не действует
Название рус.:Выпуск 0. Архитектурно-строительные чертежи (материалы для проектирования)
Дата добавления в базу:01.09.2013
Дата актуализации:05.05.2017
Дата введения:01.03.1974
Дата окончания срока действия:01.05.1999
Оглавление:Содержание
Пояснительная записка
Схемы шахт лифтов
Характеристика лифтов.
Лифт пассажирский Q = 320 кгс, V = 1 м/сек с противовесом сзади кабины. Кабина 1000 х 1200 х 2100
   Планы шахты и машинных помещений
   Разрезы
   Развертка стен шахты при высотах этажей 3600, 4200, 4800, 6000 и 7200 мм
Лифт пассажирский Q = 350 кгс, V = 1 м/сек с противовесом сзади кабины. Кабина 980 х 1120 х 2100
   Планы шахты и машинных помещений
   Разрезы
   Развертка стен шахты при высотах этажей 3600, 4200, 4800, 6000 и 7200 мм
Лифт пассажирский Q = 500 кгс, V = 1 м/сек с противовесом сзади кабины. Кабина 1080 х 1420 х 2100
   Планы шахты и машинных помещений
   Разрезы
Лифт пассажирский Q = 500 кгс, V = 1 м/сек с противовесом сзади кабины. Кабина 1200 х 1400 х 2100
   Планы шахты и машинных помещений
   Разрезы
   Развертка стен шахты при высотах этажей 3600, 4200, 4800, 6000 и 7200 мм
Лифт пассажирский Q = 500 кгс, V = 1 м/сек с противовесом сзади кабины. Кабина 2200 х 1200 х 2100
   Планы шахты и машинных помещений
   Разрезы
   Развертка стен шахты при высотах этажей 3600, 4200, 4800, 6000 и 7200 мм
Лифт пассажирский Q = 1000 кгс, V = 1 м/сек с противовесом сзади кабины. Кабина 1800 х 1500 х 2100
   Планы шахты и машинных помещений
   Разрезы
   Развертка стен шахты при высотах этажей 3600, 4200, 4800, 6000 и 7200 мм
Лифт пассажирский Q = 1000 кгс, V = 1 м/сек с противовесом сзади кабины. Кабина 1800 х 1500 х 2250
   Планы шахты и машинных помещений
   Разрезы
   Развертка стен шахты при высотах этажей 3600, 4200, 4800, 6000 и 7200 мм
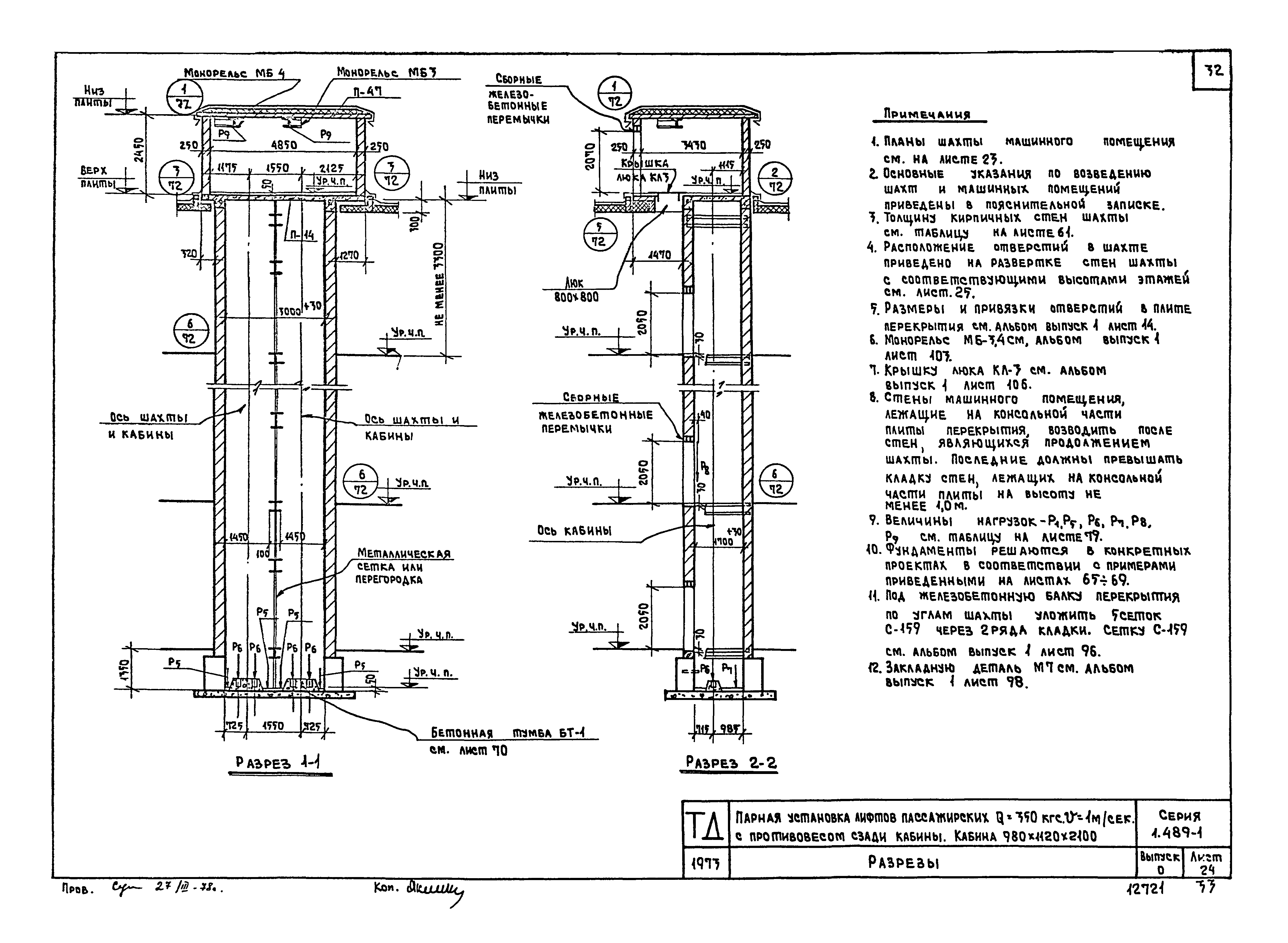
Парная установка лифтов пассажирских Q = 350 кгс, V = 1 м/сек с противовесом сзади кабины. Кабина 980 х 1120 х 2100
   Планы шахты и машинных помещений
   Разрезы
   Развертка стен шахты при высотах этажей 3600, 4200, 4800, 6000 и 7200 мм
Парная установка лифтов пассажирских Q = 500 кгс, V = 1 м/сек с противовесом сзади кабины. Кабина 1080 х 1420 х 2100
   Планы шахты и машинных помещений
   Разрезы
Лифт пассажирский Q = 500 кгс, V = 1 м/сек с противовесом сзади кабины. Кабина 2200 х 1130 х 2100
   Планы шахты и машинных помещений
   Разрезы
   Развертка стен шахты при высотах этажей 3600, 4200, 4800, 6000 и 7200 мм
Лифт грузовой Q = 500 кгс. Кабина 1000 х 1500 х 2000
   Планы шахты и машинных помещений
   Разрезы
   Развертка стен шахты при высотах этажей 3600, 4200, 4800, 6000 и 7200 мм
Лифт грузовой Q = 500 кгс. Кабина 1500 х 2000 х 2000
   Планы шахты и машинных помещений
   Разрезы
Лифт грузовой Q = 1000 кгс. Кабина 1500 х 2000 х 2200
   Планы шахты и машинных помещений
   Разрезы
   Развертка стен шахты при высотах этажей 3600, 4200, 4800, 6000 и 7200 мм
Лифт грузовой Q = 1000 кгс. Кабина 2000 х 2000 х 2200
   Планы шахты и машинных помещений
   Разрезы
Лифт грузовой Q = 1000 кгс. Кабина 2000 х 2500 х 2200
   Планы шахты и машинных помещений
   Разрезы
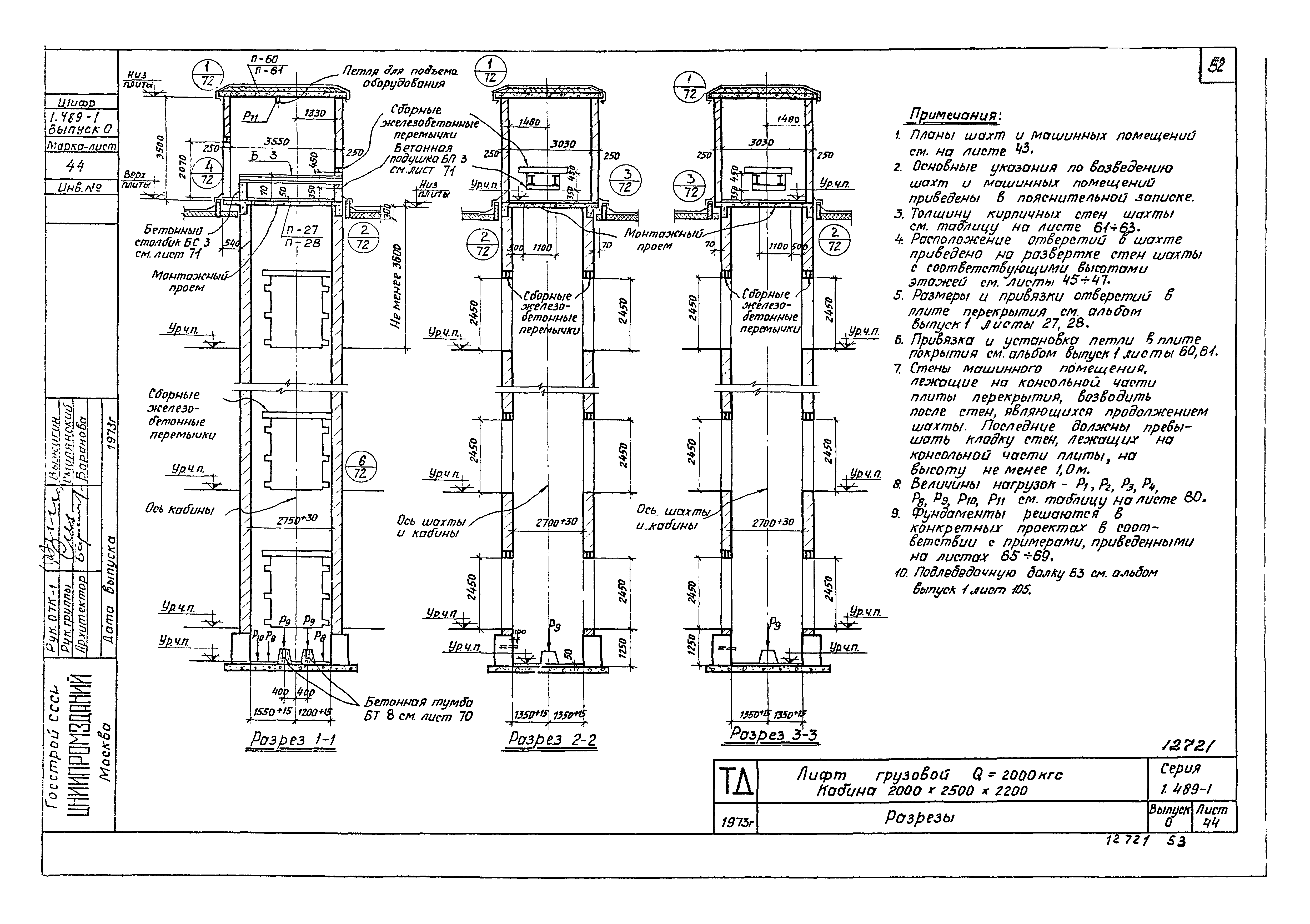
Лифт грузовой Q = 2000 кгс. Кабина 2000 х 2500 х 2200
   Планы шахты и машинных помещений
   Разрезы
   Развертка стен шахты при высотах этажей 3600 мм
   Развертка стен шахты при высотах этажей 4200, 4800, 6000 мм
   Развертка стен шахты при высотах этажей 7200 мм
Лифт грузовой Q = 2000 кгс. Кабина 2000 х 3000 х 2200
   Планы шахты и машинных помещений
   Разрезы
Лифт грузовой Q = 3200 кгс. Кабина 2000 х 3000 х 2200
   Планы шахты и машинных помещений
   Разрезы
Лифт грузовой Q = 3200 кгс. Кабина 2500 х 3500 х 2200
   Планы шахты и машинных помещений
   Разрезы
Лифт грузовой Q = 5000 кгс. Кабина 3000 х 4000 х 2400
   Планы шахты и машинных помещений
   Разрезы
   Развертка стен шахты при высотах этажей 3600 мм
   Развертка стен шахты при высотах этажей 4200, 4800, 6000 мм
   Развертка стен шахты при высотах этажей 7200 мм
Примеры расположения машинных помещений лифтов в зданиях с укрупненной сеткой колонн верхнего этажа
Разрезы
Таблица толщин стен шахт и марки материалов кладки
Таблица предельных высот возведения шахт при действии ветровой нагрузки по всей высоте шахты
Примеры устройства фундаментов и приямков для шахт лифтов
Бетонные тумбы БТ1…БТ8
Бетонные тумбы БТ9…БТ12, бетонные столбики БС1…БС5, бетонные подушки БП1…БП4
Детали разрезов 1, 2, 3, 4, 5, 6
Узлы "А" и "Б" и фасонные элементы
Обрамление дверного проема
Примеры размещения отдельно стоящих шахт лифтов в средних пролетах здания
Примеры решения перекрытий зданий в местах прохождения шахт лифтов
Таблицы нагрузок на строительные конструкции от лифтовой установки лифтов
Таблицы усилий от нормативных нагрузок на фундаменты шахт
Разработан: ЦНИИпромзданий
ЛГПИ
Утверждён:12.07.1973 Госстрой СССР (Государственный комитет Совета Министров СССР по делам строительства) (USSR Gosstroy )
Расположен в:Техническая документация Строительство Справочные документы Типовые строительные конструкции, изделия и узлы Общероссийский строительный каталог Строительные конструкции, изделия и узлы зданий и сооружений для всех видов строительства Конструкции, изделия и узлы зданий Несущие конструкции двухэтажных и многоэтажных зданий Шахты лифтов
Серия 1.489-1Серия 1.489-1Серия 1.489-1Серия 1.489-1Серия 1.489-1Серия 1.489-1Серия 1.489-1Серия 1.489-1Серия 1.489-1Серия 1.489-1Серия 1.489-1Серия 1.489-1Серия 1.489-1Серия 1.489-1Серия 1.489-1Серия 1.489-1Серия 1.489-1Серия 1.489-1Серия 1.489-1Серия 1.489-1Серия 1.489-1Серия 1.489-1Серия 1.489-1Серия 1.489-1Серия 1.489-1Серия 1.489-1Серия 1.489-1Серия 1.489-1Серия 1.489-1Серия 1.489-1Серия 1.489-1Серия 1.489-1Серия 1.489-1Серия 1.489-1Серия 1.489-1Серия 1.489-1Серия 1.489-1Серия 1.489-1Серия 1.489-1Серия 1.489-1Серия 1.489-1Серия 1.489-1Серия 1.489-1Серия 1.489-1Серия 1.489-1Серия 1.489-1Серия 1.489-1Серия 1.489-1Серия 1.489-1Серия 1.489-1Серия 1.489-1Серия 1.489-1Серия 1.489-1Серия 1.489-1Серия 1.489-1Серия 1.489-1Серия 1.489-1Серия 1.489-1Серия 1.489-1Серия 1.489-1Серия 1.489-1Серия 1.489-1Серия 1.489-1Серия 1.489-1Серия 1.489-1Серия 1.489-1Серия 1.489-1Серия 1.489-1Серия 1.489-1Серия 1.489-1Серия 1.489-1Серия 1.489-1Серия 1.489-1Серия 1.489-1Серия 1.489-1Серия 1.489-1Серия 1.489-1Серия 1.489-1Серия 1.489-1Серия 1.489-1Серия 1.489-1Серия 1.489-1Серия 1.489-1Серия 1.489-1Серия 1.489-1Серия 1.489-1Серия 1.489-1Серия 1.489-1Серия 1.489-1Серия 1.489-1

© 2013 Ёшкин Кот :-) Карта сайта