Скачать Серия 2.800-2 Выпуск 5. Детали технологического оборудования для ферм крупного рогатого скотаДата актуализации: 10.08.2017 Серия 2.800-2
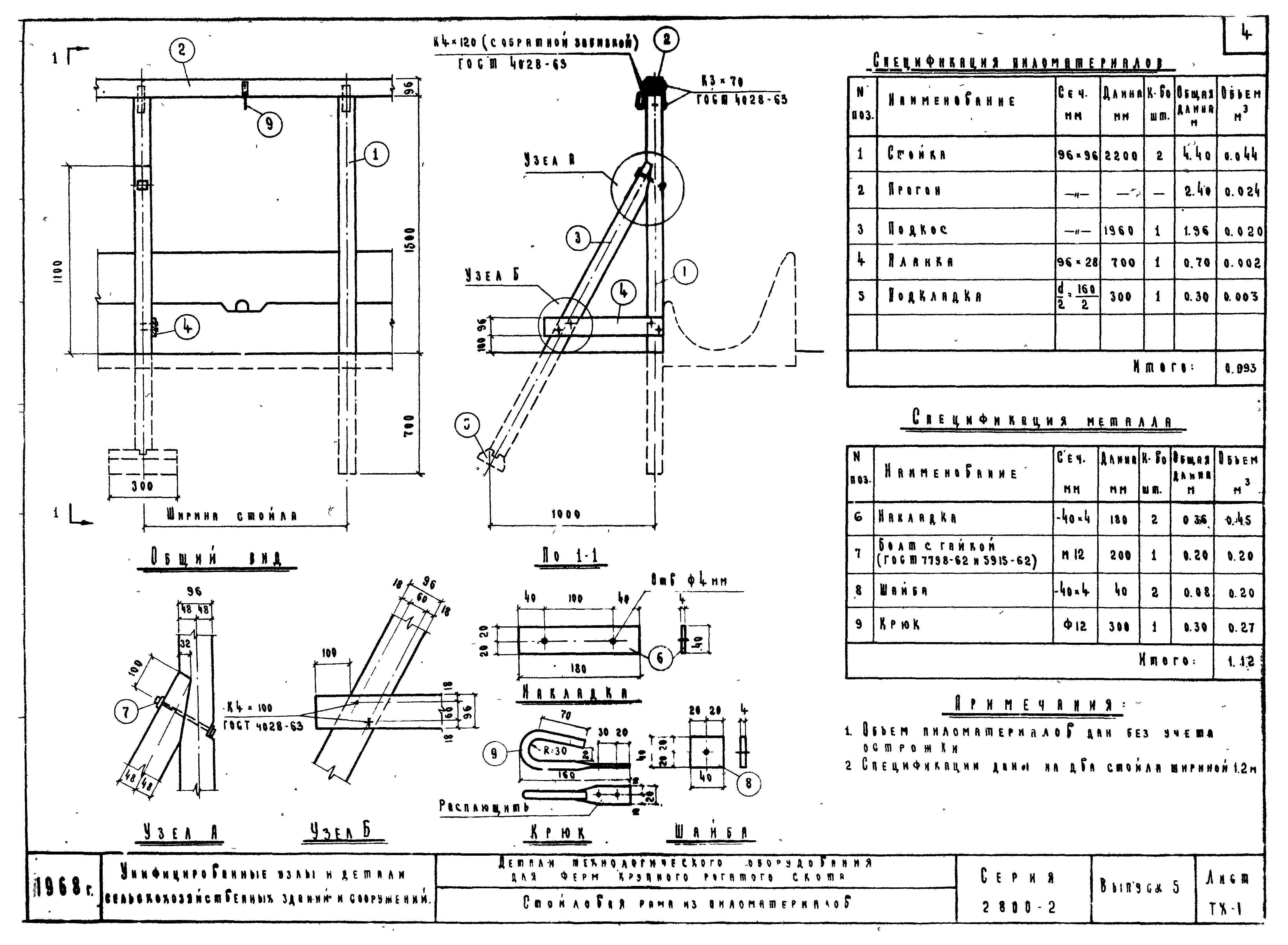
Выпуск 5. Детали технологического оборудования для ферм крупного рогатого скотаОбозначение: | Серия 2.800-2 | Обозначение англ: | Series 2.800-2 | Статус: | не определен законодательством | Название рус.: | Выпуск 5. Детали технологического оборудования для ферм крупного рогатого скота | Дата добавления в базу: | 01.09.2013 | Дата актуализации: | 05.05.2017 | Дата введения: | 01.06.1969 | Оглавление: | Титульный лист Содержание альбома Пояснительная записка Стойловая рама из пиломатериалов Перегородки в денниках Перегородки в денниках ветеринарных объектов Индивидуальная клетка для телят до 10-ти дневного возраста Клетка для группового содержания телят Бетонные кормушки для крупного рогатого скота Универсальные сборные железобетонные кормушки КРУ120 и КРУ150 для крупного рогатого скота Деревянные кормушки для крупного рогатого скота КРД-1 - КРД-5 Деревянные передвижные кормушки для крупного рогатого скота КРД-6 и КРД-7 Деревянное водопойное корыто для крупного рогатого скота ВК-1 Привязь для коров цепная полужесткая Привязь для быков цепная четырехконцовая Щиты настила в стойлах и щиты покрытия навозных лотков в проездах Щ-1 - Щ-9 Навозный лоток. Металлическая решетка Р-1 Перегородки стойл и секций Фиксационный станок ФС-1 для искусственного осеменения коров Ларь для концентрированных кормов ЛР-0,5 емкостью 0,5 куб. м Ларь для концентрированных кормов ЛР-1,5 емкостью 1,5 куб. м Ларь для концентрированных кормов ЛР-2,0 емкостью 2,0 куб. м Ларь для концентрированных кормов ЛР-5,0 емкостью 5,0 куб. м Полка-стол Решетка для скармливания грубых кормов Эстакада для погрузки животных на автомашины Железобетонная стойка С-250-1 | Разработан: | ГипроНИсельхоз (Институт Гипронисельхоз )
| Утверждён: | 19.02.1969 Главсельстройпроект Минсельхоза СССР (Glavselstroyproject, USSR Minselkhoz 15)
| Расположен в: |
|
                          
|