Информационная система
«Ёшкин Кот»

Скачать базу одним архивом
Скачать обновления
История создания базы
Карта сайта

Скачать Серия 3.818.9-2 Выпуск 10. Элементы ограждения мест содержания овец и коз. Рабочие чертежи

Дата актуализации: 10.08.2017

Серия 3.818.9-2

Выпуск 10. Элементы ограждения мест содержания овец и коз. Рабочие чертежи

Обозначение: Серия 3.818.9-2
Обозначение англ: Series 3.818.9-2
Статус:не определен законодательством
Название рус.:Выпуск 10. Элементы ограждения мест содержания овец и коз. Рабочие чертежи
Дата добавления в базу:01.09.2013
Дата актуализации:05.05.2017
Дата введения:01.11.1991
Оглавление:3.818.9-2.10.00.00 Содержание выпуска
3.818.9-2.10.00.00ПЗ Пояснительная записка
Щиты
3.818.9-2.10-ЩП1-2.00.000 Щит ЩП1,ЩП2
3.818.9-2.10-ЩП3.00.000 Щит ЩП3
3.818.9-2.10-ЩТА.00.000 Щит ЩТА
3.818.9-2.10-ЩТА.00.000СБ Щит ЩТА. Сборочный чертеж
3.818.9-2.10-ЩТБ.00.000 Щит ЩТБ
3.818.9-2.10-ЩТБ.00.000СБ Щит ЩТБ. Сборочный чертеж
3.818.9-2.10-ЩТВ.00.000 Щит ЩТВ
3.818.9-2.10-ЩТВ.00.000 СБ Щит ЩТВ. Сборочный чертеж
3.818.9-2.10-ЩТА1.00.000 Щит ЩТА1
3.818.9-2.10-ЩТА1.00.000 СБ Щит ЩТА1. Сборочный чертеж
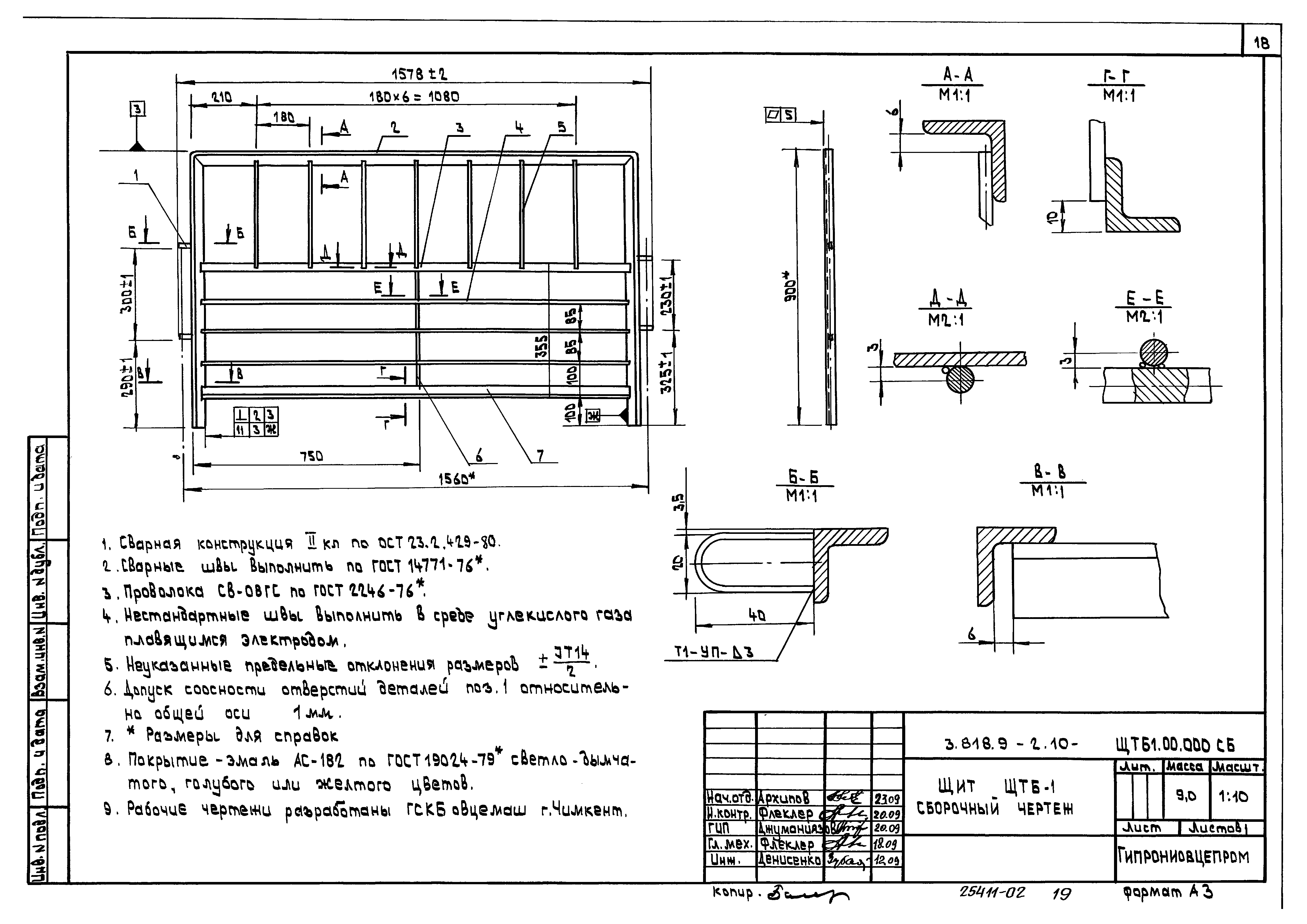
3.818.9-2.10-ЩТБ1.00.000 Щит ЩТБ1
3.818.9-2.10-ЩТБ1.00.000 СБ Щит ЩТБ1. Сборочный чертеж
3.818.9-2.10-ЩТВ1.00.000 Щит ЩТВ1
3.818.9-2.10-ЩТВ1.00.000 СБ Щит ЩТВ1. Сборочный чертеж
3.818.9-2.10-ЩТА1К.00.000 Щит ЩТА-1К
3.818.9-2.10-ЩТА1К.00.000 СБ Щит ЩТА-1К. Сборочный чертеж
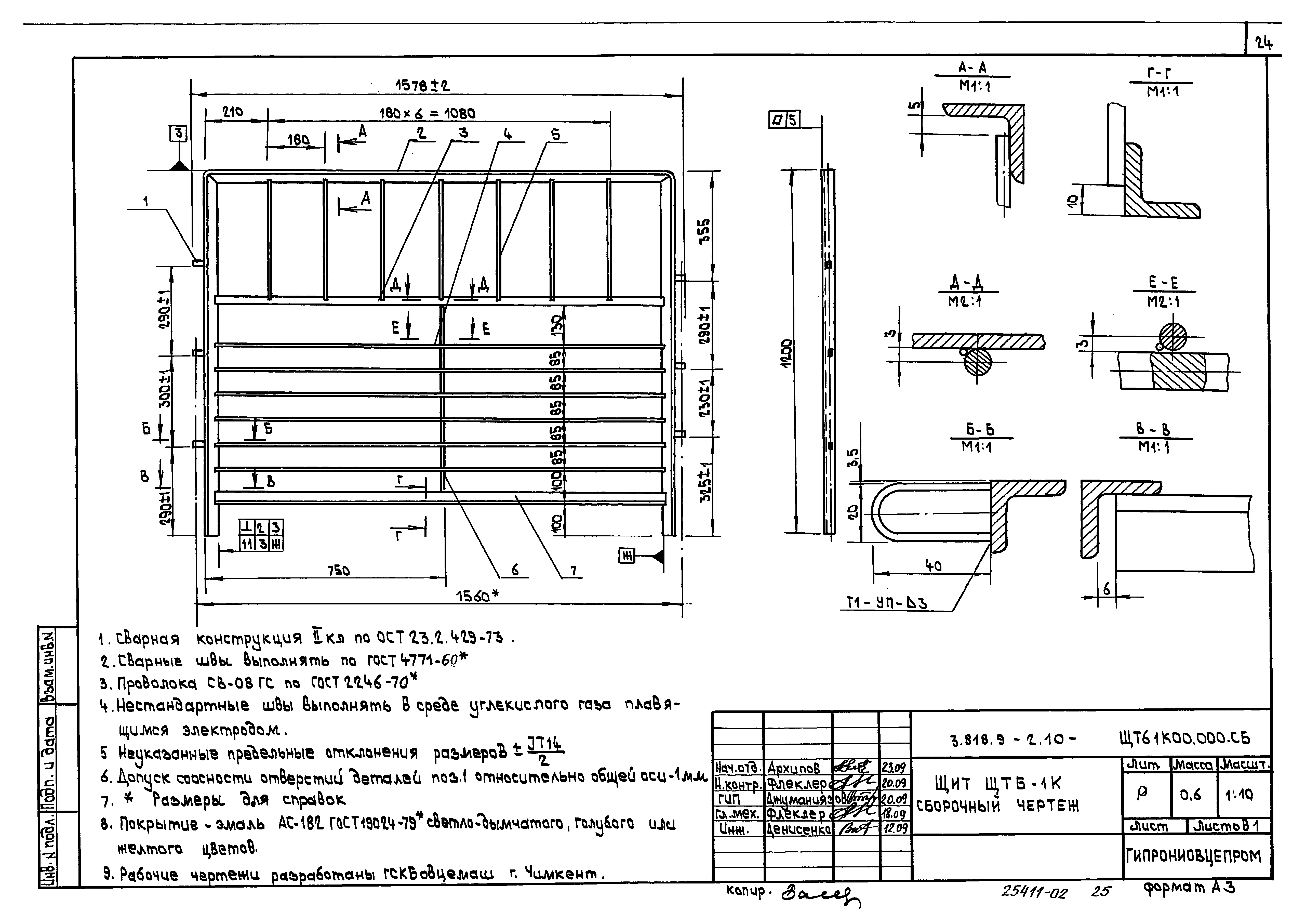
3.818.9-2.10-ЩТБ1К.00.000 Щит ЩТБ 1К
3.818.9-2.10-ЩТБ1К.00.000 СБ Щит ЩТБ 1К. Сборочный чертеж
3.818.9-2.10-ЩТВ1К.00.000 Щит ЩТВ 1К
3.818.9-2.10-ЩТВ1К.00.000 СБ Щит ЩТВ 1К. Сборочный чертеж
3.818.9-2.10-ЩТВ1.1.00.000 Щит ЩТВ1.1
3.818.9-2.10-ЩТВ1.1.00.000 СБ Щит ЩТВ1.1. Сборочный чертеж
3.818.9-2.10-ЩТВ1.2.00.000 Щит ЩТВ1.2
3.818.9-2.10-ЩТВ1.2.00.000 СБ Щит ЩТВ1.2. Сборочный чертеж
3.818.9-2.10-КБЛ.03.501 Ушко
3.818.9-2.10-ЩТА.00.601 Пруток
3.818.9-2.10-ЩТА1.00.000 Рама
3.818.9-2.10-ЩТА.00.801 Рама
3.818.9-2.10-ЩТА.00.802 Распор
3.818.9-2.10-СТБ.00.000 Стойка СТБ
3.818.9-2.10-СТБ.00.000 СБ Стойка СТБ. Сборочный чертеж
3.818.9-2.10-СТБ1.00.000 Стойка СТБ1
3.818.9-2.10-СТБ1.00.00 СБ Стойка СТБ1. Сборочный чертеж
3.818.9-2.10-СТБ.00.501 Кронштейн
3.818.9-2.10-СТБ.00.701 Основание
3.818.9-2.10-КУА.01.601 Штырь КУА
3.818.9-2.10-КУА.01.602 Штырь КУА1
3.818.9-2.10-КУА.01.603 Скоба
3.818.9-2.10-КУА.01.604 Скоба
3.818.9-2.10-КУА.01.605 Перемычка
Фрагмент планов расстановки технологического оборудования в овчарне
Варианты установки и соединения щитов ограждения
3.818.9-2.10-ОГ.00 Ограждение из оцинкованной проволоки (1000м)
3.818.9-2.10-ОГ.00.У1 Фрагмент 1
3.818.9-2.10-ОГ.00.У2 Фрагмент 2
3.818.9-2.10-ОГ.01.00 Стойки СК1,СК1а,СК1б,СК1в
3.818.9-2.10-ОГ.02.00 Стойки ограждения СК2,СК2б. Перекладина СК2а
3.818.9-2.10-ОГ.01.01 Каркасы плоские КР1,КР2
3.818.9-2.10-ОГ.01.02 Каркасы пространственные КП1,КП2
3.818.9-2.10-ОГ.01.03 Закладные изделия МН2,МН3,МН4
Разработан: Гипрониовцепром
Утверждён:25.10.1991 Минсельхозпрод СССР (USSR Minselkhozprod 073-3/183)
Расположен в:Техническая документация Строительство Справочные документы Типовые строительные конструкции, изделия и узлы Общероссийский строительный каталог Сельскохозяйственные предприятия, здания и сооружения Разные сельскохозяйственные здания и сооружения Конструкции, изделия, узлы и детали Строительные конструкции, изделия и узлы зданий и сооружений для всех видов строительства Конструкции и изделия сооружений и оборудования зданий Надземные сооружения Разные сооружения
Серия 3.818.9-2Серия 3.818.9-2Серия 3.818.9-2Серия 3.818.9-2Серия 3.818.9-2Серия 3.818.9-2Серия 3.818.9-2Серия 3.818.9-2Серия 3.818.9-2Серия 3.818.9-2Серия 3.818.9-2Серия 3.818.9-2Серия 3.818.9-2Серия 3.818.9-2Серия 3.818.9-2Серия 3.818.9-2Серия 3.818.9-2Серия 3.818.9-2Серия 3.818.9-2Серия 3.818.9-2Серия 3.818.9-2Серия 3.818.9-2Серия 3.818.9-2Серия 3.818.9-2Серия 3.818.9-2Серия 3.818.9-2Серия 3.818.9-2Серия 3.818.9-2Серия 3.818.9-2Серия 3.818.9-2Серия 3.818.9-2Серия 3.818.9-2Серия 3.818.9-2Серия 3.818.9-2Серия 3.818.9-2Серия 3.818.9-2Серия 3.818.9-2Серия 3.818.9-2Серия 3.818.9-2Серия 3.818.9-2Серия 3.818.9-2Серия 3.818.9-2Серия 3.818.9-2Серия 3.818.9-2Серия 3.818.9-2Серия 3.818.9-2Серия 3.818.9-2Серия 3.818.9-2

© 2013 Ёшкин Кот :-) Карта сайта