Информационная система
«Ёшкин Кот»

Скачать базу одним архивом
Скачать обновления
История создания базы
Карта сайта

Скачать Типовой проект 704-1-151с Альбом VI. Оборудование резервуара для темных нефтепродуктов

Дата актуализации: 10.08.2017

Типовой проект 704-1-151с

Альбом VI. Оборудование резервуара для темных нефтепродуктов

Обозначение: Типовой проект 704-1-151с
Обозначение англ: 704-1-151с
Статус:не действует
Название рус.:Альбом VI. Оборудование резервуара для темных нефтепродуктов
Дата добавления в базу:01.09.2013
Дата актуализации:05.05.2017
Оглавление:Содержание альбома. Пояснительная записка
Чертежи основного комплекта марки ТХ
   Оборудование резервуара для темных нефтепродуктов.
   Общий вид
   Установка приемо-раздаточного устройства Ду = 100
   Установка приемо-раздаточного устройства Ду = 150
   Расположение секционных подогревателей F = 8 кв. м
   Расположение секционных подогревателей F = 18 кв. м
   Подогревательный элемент ПЭ-0.7;ПЭ-1…6
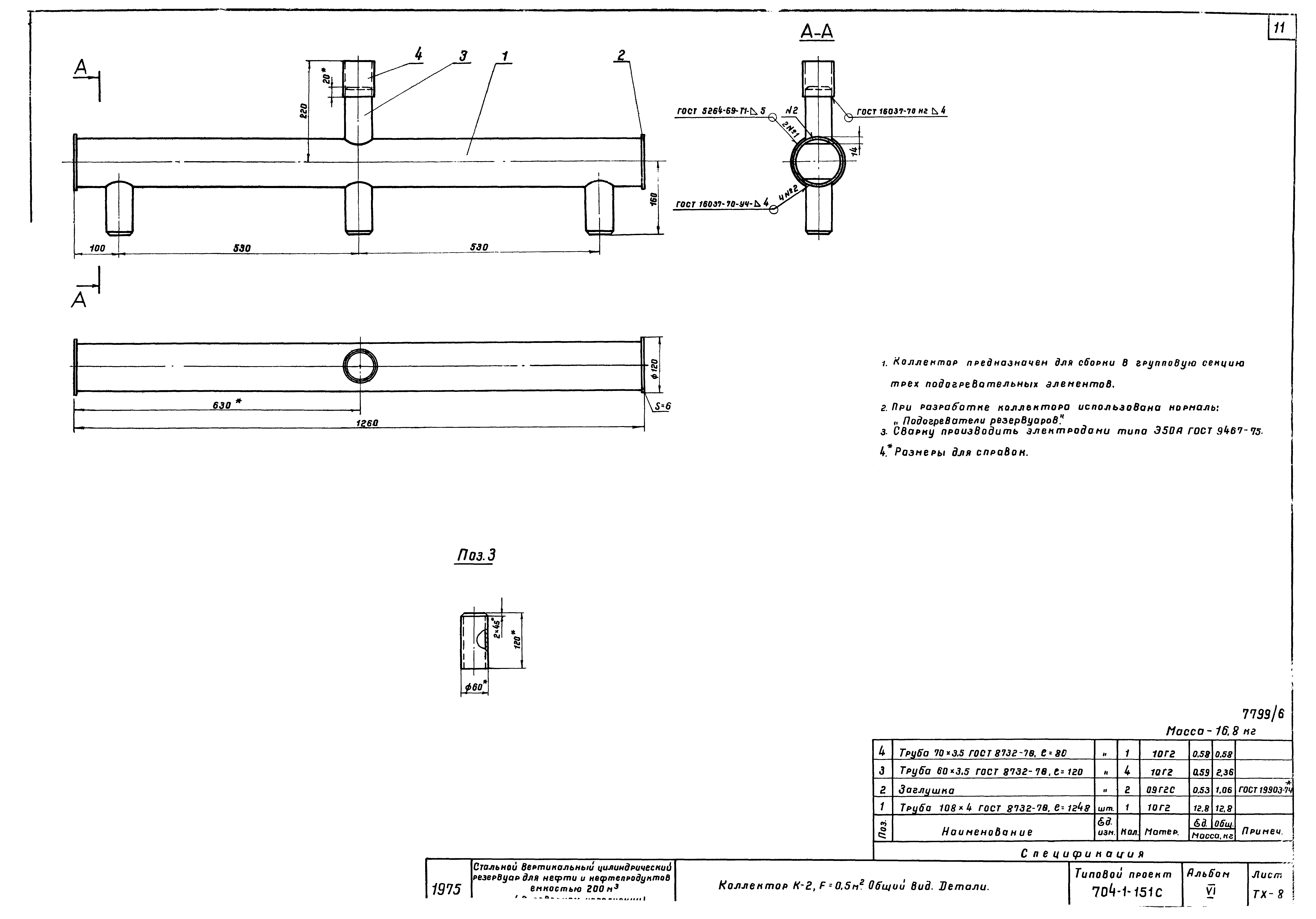
   Коллектор К-2, F = 0.5 кв. м
   Стойка С-1
   Стойка С-3
   Стойка С-5. Стойка С-4
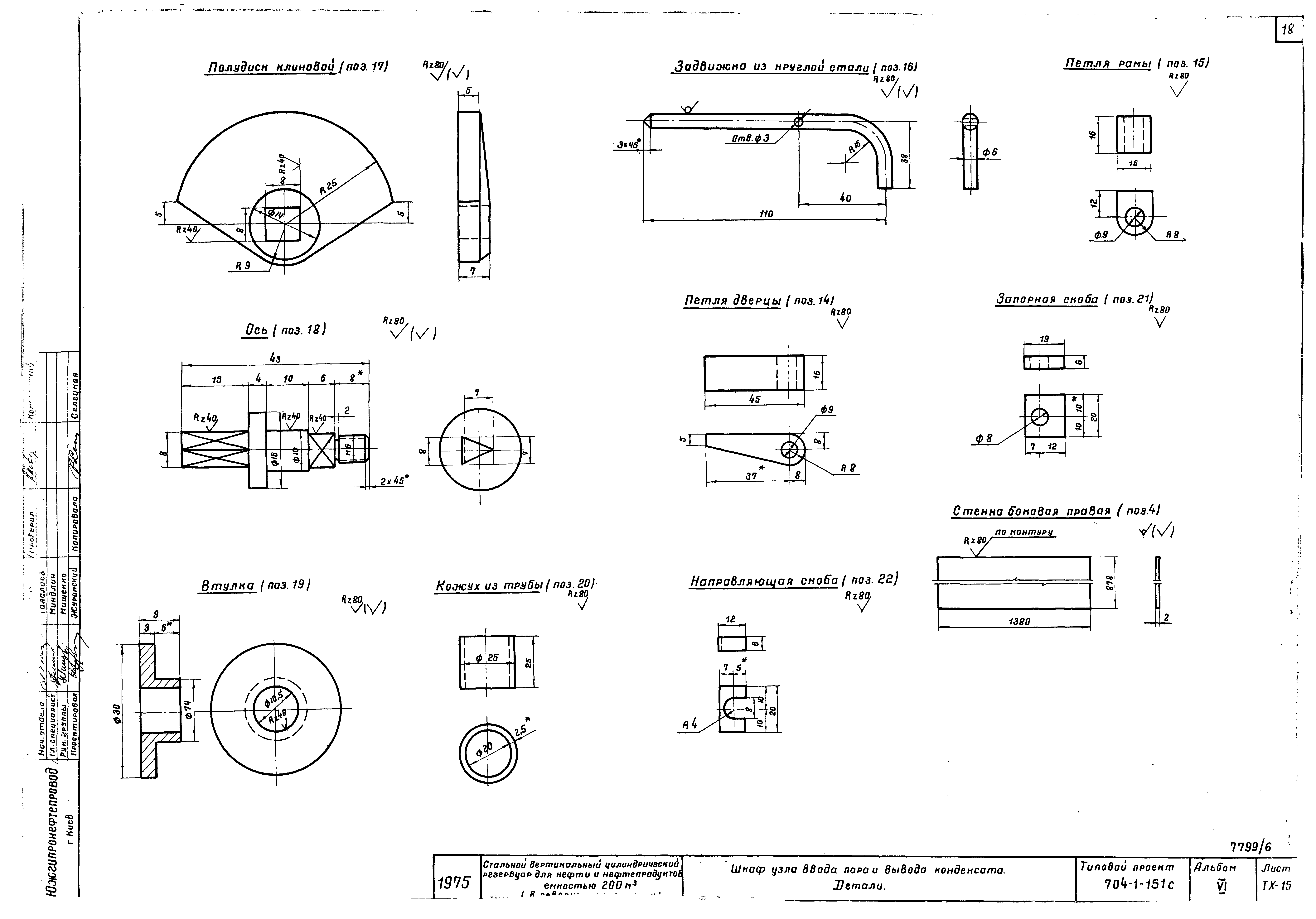
   Шкаф узла ввода пара и вывода конденсата
Чертежи основного комплекта марки ТС
   Узел управления подогревателями
   Узел управления подогревателями. Деталь присоединения гибкого шланга Ду40
Чертежи основного комплекта марки КА
   Функциональная схема автоматизации
   Установка указателя уровня типа УДУ-10
   Установка указателя уровня типа УДУ-10. Детали
   Установка пробоотборника типа ПСР-4
   Установка термометра на стенке резервуара
   Установка термометра на конденсатопроводе
   Установка термометра на конденсатопроводе. Детали
Чертежи основного комплекта марки ЭТ
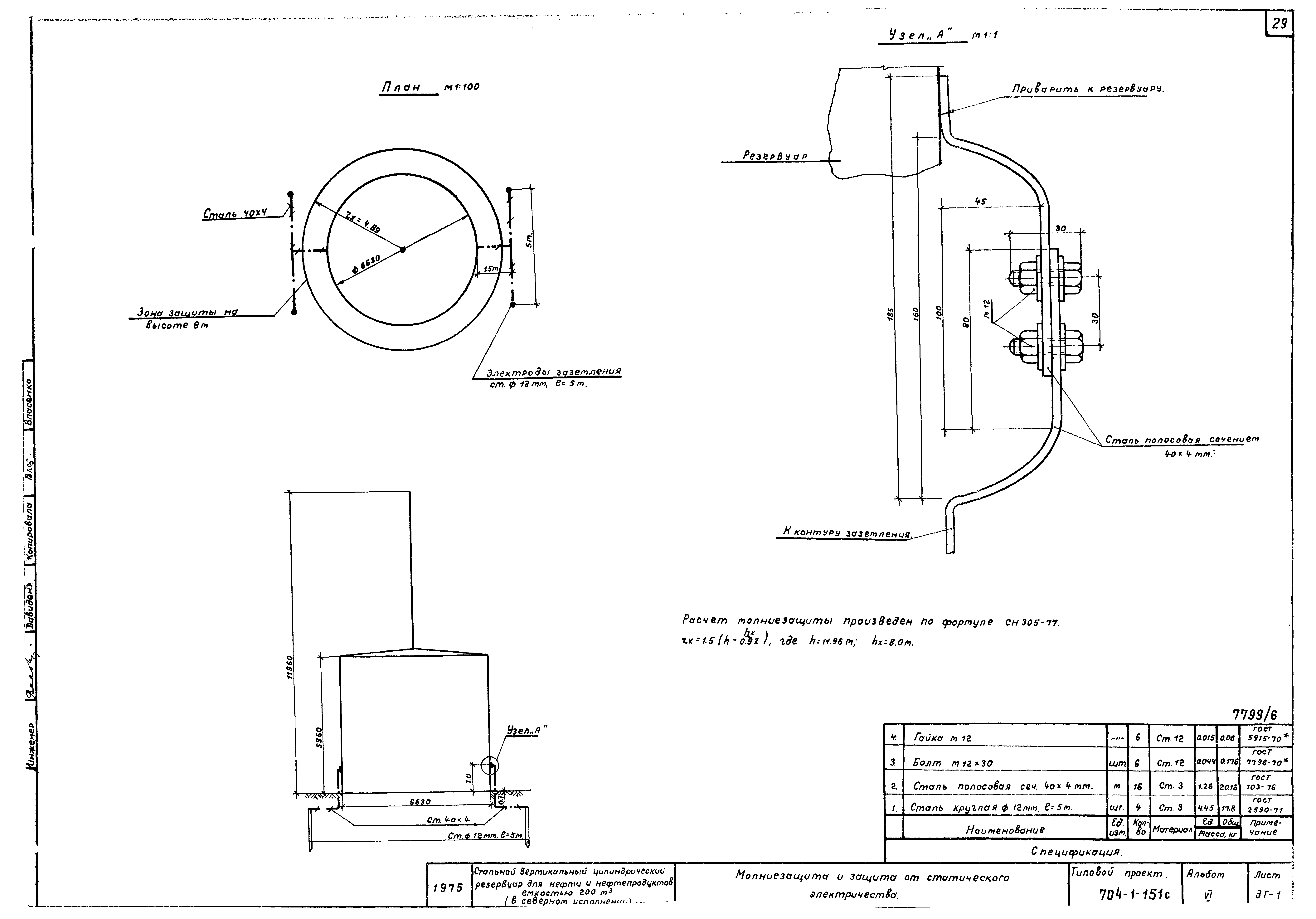
   Молниезащита от статического электричества
   Молниеотвод
Разработан: Южгипронефтепровод Миннефтепрома СССР
Утверждён:21.03.1977 Миннефтепром (Minnefteprom )
Расположен в:Техническая документация Строительство Справочные документы Типовые строительные конструкции, изделия и узлы Общероссийский строительный каталог Промышленные предприятия, здания и сооружения Предприятия, здания и сооружения складские Резервуары и склады для нефти и нефтепродуктов Резервуары стальные для нефти и нефтепродуктов
Типовой проект 704-1-151сТиповой проект 704-1-151сТиповой проект 704-1-151сТиповой проект 704-1-151сТиповой проект 704-1-151сТиповой проект 704-1-151сТиповой проект 704-1-151сТиповой проект 704-1-151сТиповой проект 704-1-151сТиповой проект 704-1-151сТиповой проект 704-1-151сТиповой проект 704-1-151сТиповой проект 704-1-151сТиповой проект 704-1-151сТиповой проект 704-1-151сТиповой проект 704-1-151сТиповой проект 704-1-151сТиповой проект 704-1-151сТиповой проект 704-1-151сТиповой проект 704-1-151сТиповой проект 704-1-151сТиповой проект 704-1-151сТиповой проект 704-1-151сТиповой проект 704-1-151сТиповой проект 704-1-151сТиповой проект 704-1-151сТиповой проект 704-1-151сТиповой проект 704-1-151сТиповой проект 704-1-151сТиповой проект 704-1-151с

© 2013 Ёшкин Кот :-) Карта сайта