Скачать Типовой проект 902-1-54 Альбом 2. Архитектурно-строительные решения (глубина заложения подводящего коллектора 4,0; 5,5 и 7,0 м). Надземная часть. Общие чертежи, узлы и деталиДата актуализации: 10.08.2017 Типовой проект 902-1-54
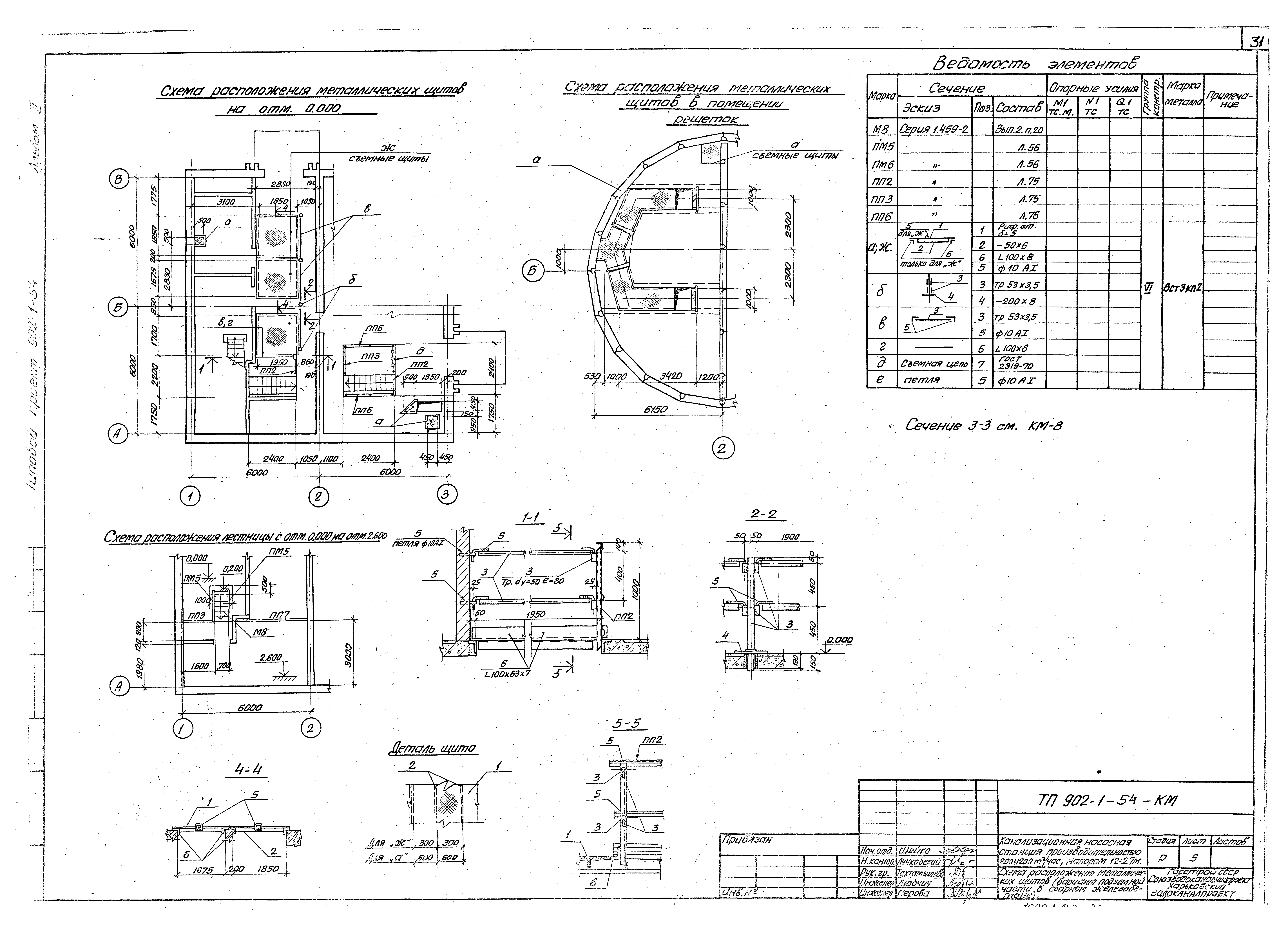
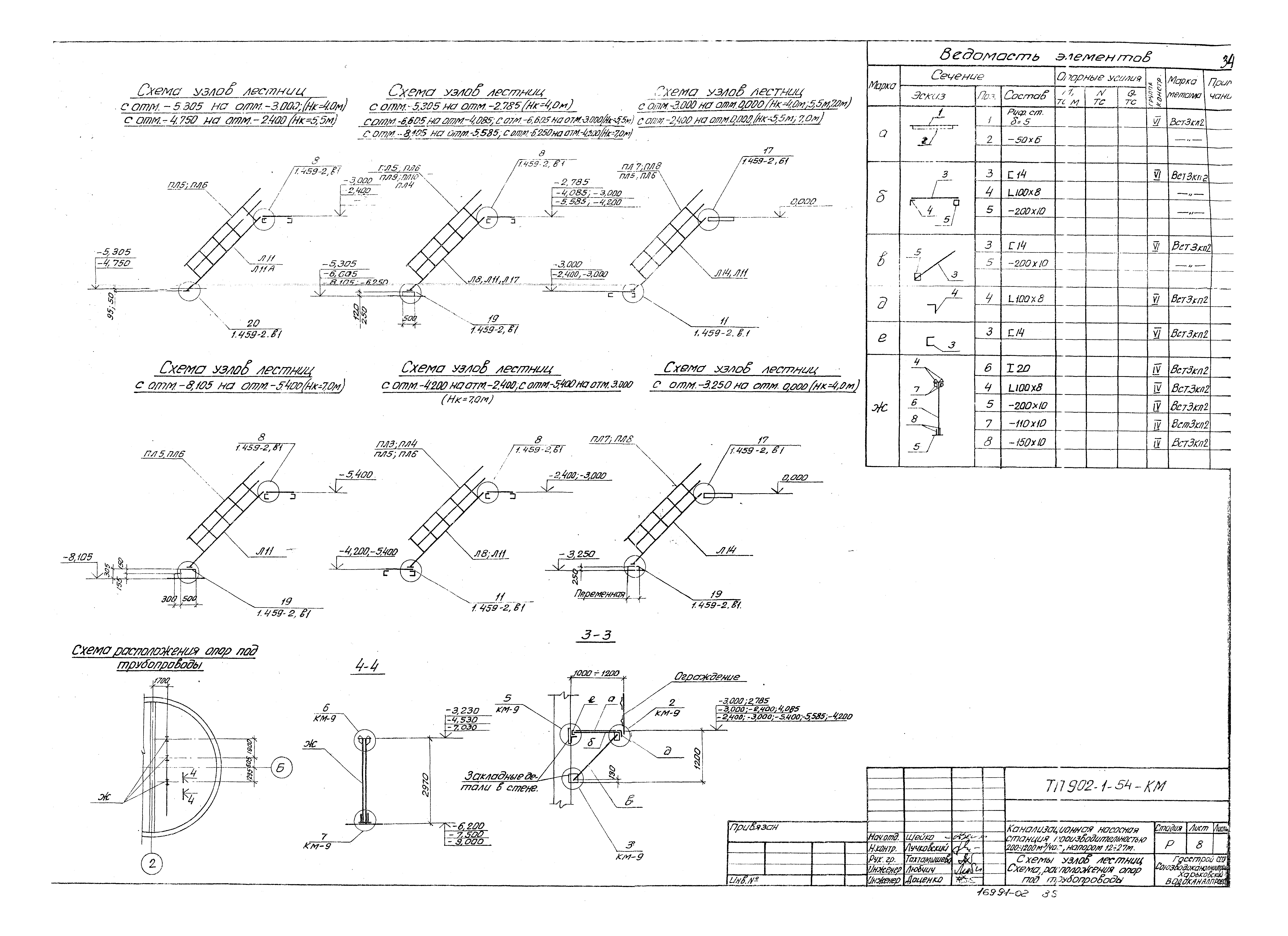
Альбом 2. Архитектурно-строительные решения (глубина заложения подводящего коллектора 4,0; 5,5 и 7,0 м). Надземная часть. Общие чертежи, узлы и деталиОбозначение: | Типовой проект 902-1-54 | Обозначение англ: | 902-1-54 | Статус: | не определен законодательством | Название рус.: | Альбом 2. Архитектурно-строительные решения (глубина заложения подводящего коллектора 4,0; 5,5 и 7,0 м). Надземная часть. Общие чертежи, узлы и детали | Дата добавления в базу: | 01.09.2013 | Дата актуализации: | 05.05.2017 | Дата введения: | 01.12.1980 | Оглавление: | Содержание Основной комплект АР Общие данные Соображения по организации строительства Погружение колодцев в тиксотропной рубашке План на отм. 0.000. План на отм. 2.600. Фрагмент 1 на отм. 0.000 Разрезы 1-1 - 3-3. Детали Схема расположения перемычек и отверстий в стенах. Схема расположения закладных изделий. Виды по А-А; Б-Б и В-В Фасады "1 - 3", "А - В", "3 - 1", "В - А". Схемы заполнения оконных проемов. Детали Планы кровли и полов. Экспликация полов и кровли Фрагмент 2 на отм. 0.000. Разрезы 1-1, 2-2. Детали Ворота В1. Фасад, разрезы. Детали Ворота В1. Верхний и нижний шпингалеты. Детали Ворота В1. Стальные изделия Детали гидроизоляции стен и днища Основной комплект КЖ Общие данные Схема расположения фундаментов под оборудование подземной части. Фундаменты ФМ-1, ФМ-2 Схема расположения плит покрытия. Схема расположения плит покрытия на отм. 2.600 Плита покрытия ПГ-6Ат-V-Т-01-ГОСТ22701.1-77. Перемычки МП1, МП1-А Схема расположения опорных блоков и форшахты. Форшахта Фшм1 (вариант подземной части в монолитном железобетоне) Схема расположения опорных блоков и форшахты. Форшахта Фшм1 (вариант подземной части в сборном железобетоне) Опорный блок ОП1 (вариант подземной части в монолитном железобетоне) Изделия закладные МН-1 - МН-7 Дренажный приямок МН8 - МН10, МС1 Основной комплект КМ Общие данные Схема расположения путей подвесного транспорта на отм. 4.250 Схема расположения путей подвесного транспорта на отм. - 0.790 Схема расположения лестниц и лестничных площадок (Нк = 4,0 м). Схема расположения металлических щитов (вариант подземной части в монолитном железобетоне) Схема расположения металлических щитов (вариант подземной части в сборном железобетоне) Схема расположения лестниц и лестничных площадок (Нк = 5,5 м; Нк = 7,0 м). Схема расположения металлических щитов (вариант подземной части в монолитном железобетоне) Схема расположения лестниц и лестничных площадок (Нк = 5,5 м; Нк = 7,0 м). Схема расположения металлических щитов (вариант подземной части в сборном железобетоне) Схемы узлов лестниц. Схема расположения опор под трубопроводы Схема расположения площадки на отм. - 2.785; - 4.085; - 5.585. Узлы | Разработан: | Харьковский Водоканалпроект
| Утверждён: | 19.06.1980 Союзводоканалпроект (Soyuzvodokanalproject 43)
| Расположен в: |
| Заменяет собой: | - Типовой проект 902-1-22 «Канализационная насосная станция на 3 насоса 8Ф-12 при глубине заложения подводящего коллектора 4,0; 5,50 и 7,0 м»
|
                                 
|