Информационная система
«Ёшкин Кот»

Скачать базу одним архивом
Скачать обновления
История создания базы
Карта сайта

Скачать Типовой проект 903-1-265.88 Альбом 6. Часть 1. Металлоконструкции. Технологические рабочие чертежи

Дата актуализации: 10.08.2017

Типовой проект 903-1-265.88

Альбом 6. Часть 1. Металлоконструкции. Технологические рабочие чертежи

Обозначение: Типовой проект 903-1-265.88
Обозначение англ: 903-1-265.88
Статус:не определен законодательством
Название рус.:Альбом 6. Часть 1. Металлоконструкции. Технологические рабочие чертежи
Дата добавления в базу:01.09.2013
Дата актуализации:05.05.2017
Дата введения:01.01.1989
Оглавление:Содержание
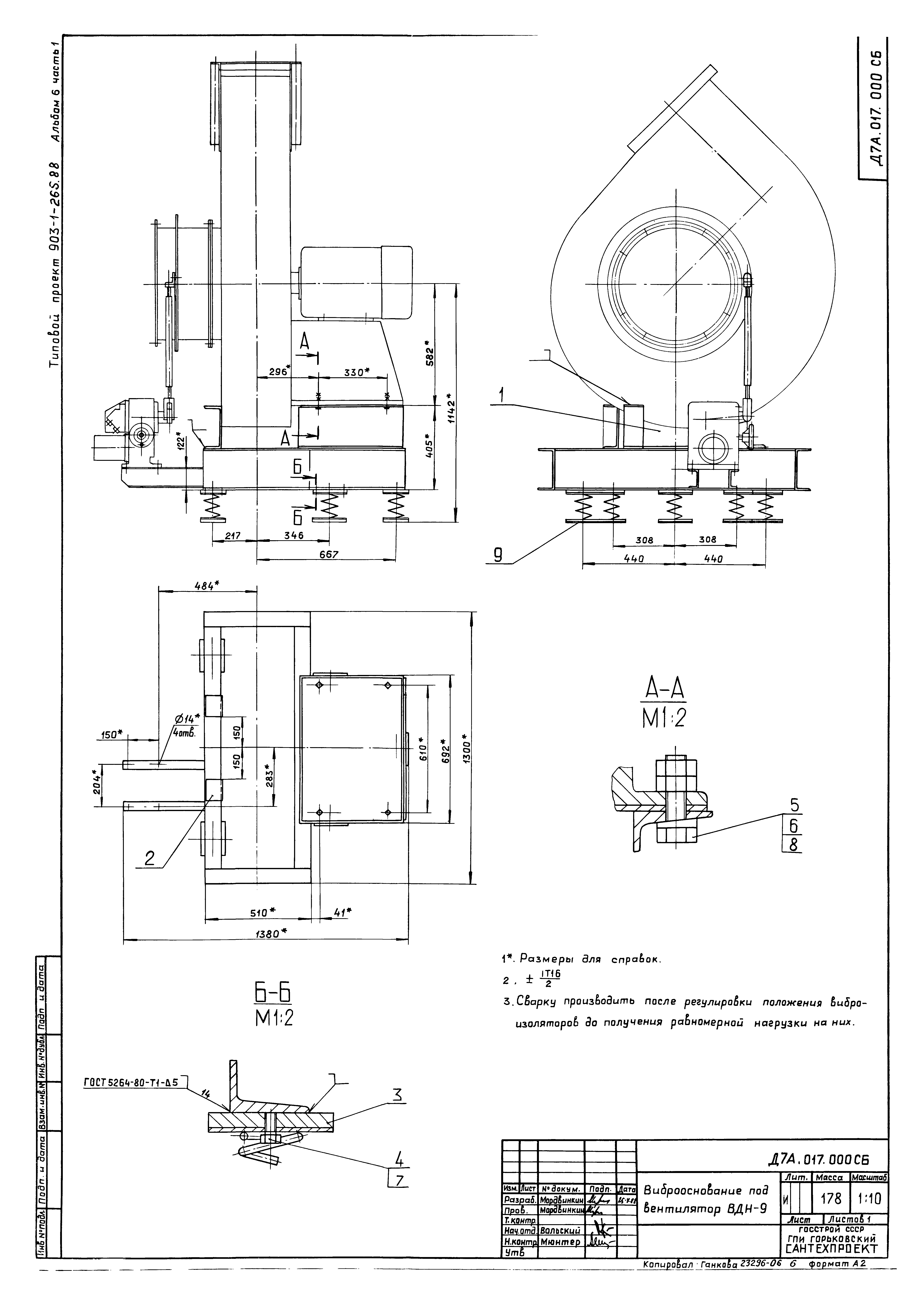
Виброоснование под вентилятор ВДН-9
Пластина
Рама
Виброоснование под вентилятор ВДН-9
Рама
Швеллер
Кронштейн
Короб
Стенка
Серьга
Короб
Стенка
Короб
Планка уплотнительная
Тройник с заслонкой
Вал
Тройник с заслонкой
Крышка сальника
Подшипник нижний
Прокладка
Подшипник верхний
Прокладка
Крышка
Стенка
Корпус
Стенка
Корпус
Стенка
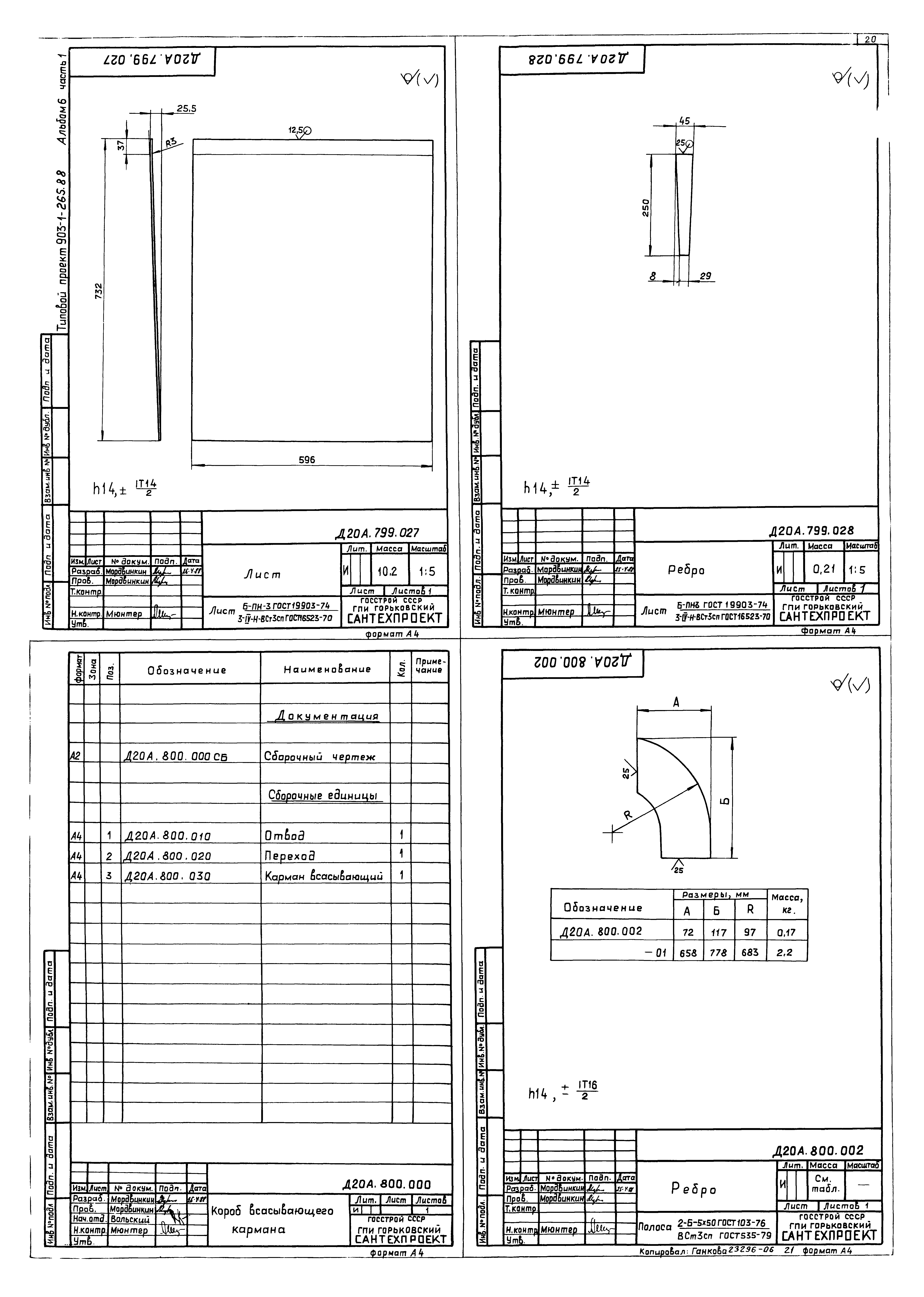
Ребро
Заслонка
Лист
Ребро
Короб всасывающего кармана
Ребро
Короб всасывающего кармана
Отвод
Стенка
Переход
Стенка
Карман всасывающий
Патрубок
Труба
Фланец
Вставка
Конус
Стенка
Фланец
Отвод
Прокладка
Отвод
Фланец
Отвод
Фланец
Отвод
Стенка
Переход
Стенка
Короб
Стенка
Патрубок
Фланец
Стенка
Дно
Короб
Переход
Короб
Переход
Обечайка
Отвод
Газоход наружный левый
Переход
Газоход наружный левый
Газоход
Прокладка
Короб
Планка
Переход
Отвод
Тройник
Отвод
Труба
Отросток
Отвод
Газоход
Газоход наружный правый
Газоход
Труба
Газоход наружный правый
Вставка гибкая
Вставка
Обечайка
Рукав
Обечайка с фланцем
Обечайка
Фланец
Хомут
Уголок
Разработан: Горьковский Сантехпроект
Утверждён:07.07.1988 Госстрой СССР (Государственный комитет Совета Министров СССР по делам строительства) (USSR Gosstroy 44)
Расположен в:Техническая документация Строительство Справочные документы Типовые строительные конструкции, изделия и узлы Общероссийский строительный каталог Промышленные предприятия, здания и сооружения Здания и сооружения санитарно-технические Теплоснабжение Котельные установки Закрытые системы теплоснабжения Топливо - газ, резерв - мазут
Типовой проект 903-1-265.88Типовой проект 903-1-265.88Типовой проект 903-1-265.88Типовой проект 903-1-265.88Типовой проект 903-1-265.88Типовой проект 903-1-265.88Типовой проект 903-1-265.88Типовой проект 903-1-265.88Типовой проект 903-1-265.88Типовой проект 903-1-265.88Типовой проект 903-1-265.88Типовой проект 903-1-265.88Типовой проект 903-1-265.88Типовой проект 903-1-265.88Типовой проект 903-1-265.88Типовой проект 903-1-265.88Типовой проект 903-1-265.88Типовой проект 903-1-265.88Типовой проект 903-1-265.88Типовой проект 903-1-265.88Типовой проект 903-1-265.88Типовой проект 903-1-265.88Типовой проект 903-1-265.88Типовой проект 903-1-265.88Типовой проект 903-1-265.88Типовой проект 903-1-265.88Типовой проект 903-1-265.88Типовой проект 903-1-265.88Типовой проект 903-1-265.88Типовой проект 903-1-265.88Типовой проект 903-1-265.88Типовой проект 903-1-265.88Типовой проект 903-1-265.88Типовой проект 903-1-265.88Типовой проект 903-1-265.88Типовой проект 903-1-265.88Типовой проект 903-1-265.88Типовой проект 903-1-265.88Типовой проект 903-1-265.88Типовой проект 903-1-265.88Типовой проект 903-1-265.88Типовой проект 903-1-265.88Типовой проект 903-1-265.88Типовой проект 903-1-265.88Типовой проект 903-1-265.88Типовой проект 903-1-265.88Типовой проект 903-1-265.88Типовой проект 903-1-265.88Типовой проект 903-1-265.88Типовой проект 903-1-265.88Типовой проект 903-1-265.88Типовой проект 903-1-265.88Типовой проект 903-1-265.88Типовой проект 903-1-265.88Типовой проект 903-1-265.88Типовой проект 903-1-265.88Типовой проект 903-1-265.88Типовой проект 903-1-265.88Типовой проект 903-1-265.88

© 2013 Ёшкин Кот :-) Карта сайта