Информационная система
«Ёшкин Кот»

Скачать базу одним архивом
Скачать обновления
История создания базы
Карта сайта

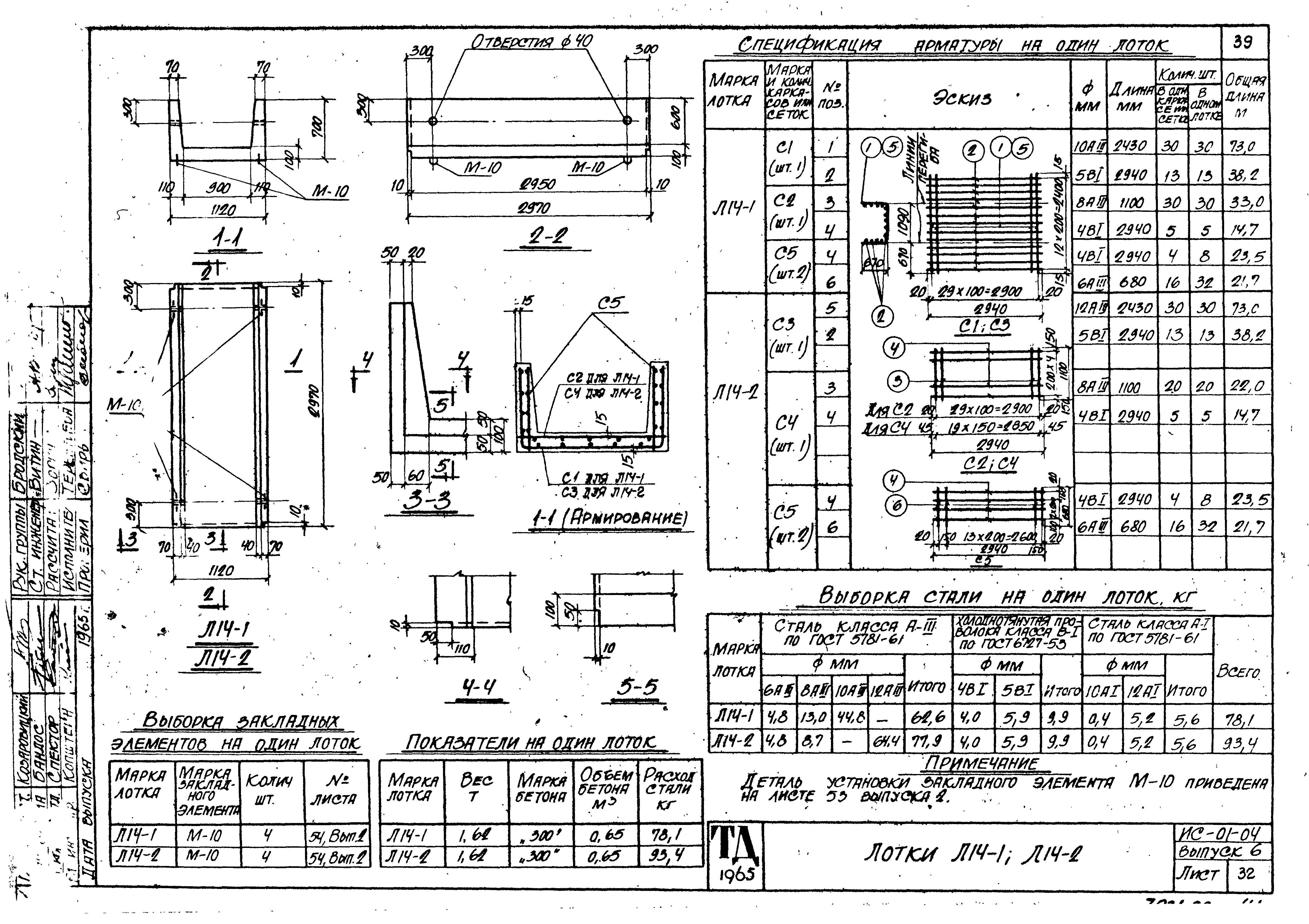
Скачать Серия ИС-01-04 Выпуск 6. Материалы для проектирования и сборные железобетонные элементы каналов под тяжелые нагрузки. Рабочие чертежи

Дата актуализации: 10.08.2017

Серия ИС-01-04

Выпуск 6. Материалы для проектирования и сборные железобетонные элементы каналов под тяжелые нагрузки. Рабочие чертежи

Обозначение: Серия ИС-01-04
Обозначение англ: Series ИС-01-04
Статус:не действует
Название рус.:Выпуск 6. Материалы для проектирования и сборные железобетонные элементы каналов под тяжелые нагрузки. Рабочие чертежи
Дата добавления в базу:01.09.2013
Дата актуализации:05.05.2017
Дата введения:01.10.1965
Дата окончания срока действия:01.02.1979
Разработан: Харьковский Промстройниипроект Госстроя СССР
НИИЖБ
Утверждён:17.08.1965 Госстрой СССР (Государственный комитет Совета Министров СССР по делам строительства) (USSR Gosstroy 141)
Издан: ЦИТП Госстроя СССР (CITP, Gosstroy (USSR) 1965 г. )
Расположен в:Техническая документация Строительство Справочные документы Типовые строительные конструкции, изделия и узлы Общероссийский строительный каталог Строительные конструкции, изделия и узлы зданий и сооружений для всех видов строительства Конструкции и изделия сооружений и оборудования зданий Подземные сооружения Каналы, тоннели, лотки
Чем заменён:
Серия ИС-01-04Серия ИС-01-04Серия ИС-01-04Серия ИС-01-04Серия ИС-01-04Серия ИС-01-04Серия ИС-01-04Серия ИС-01-04Серия ИС-01-04Серия ИС-01-04Серия ИС-01-04Серия ИС-01-04Серия ИС-01-04Серия ИС-01-04Серия ИС-01-04Серия ИС-01-04Серия ИС-01-04Серия ИС-01-04Серия ИС-01-04Серия ИС-01-04Серия ИС-01-04Серия ИС-01-04Серия ИС-01-04Серия ИС-01-04Серия ИС-01-04Серия ИС-01-04Серия ИС-01-04Серия ИС-01-04Серия ИС-01-04Серия ИС-01-04Серия ИС-01-04Серия ИС-01-04Серия ИС-01-04Серия ИС-01-04Серия ИС-01-04Серия ИС-01-04Серия ИС-01-04Серия ИС-01-04Серия ИС-01-04Серия ИС-01-04Серия ИС-01-04Серия ИС-01-04Серия ИС-01-04Серия ИС-01-04Серия ИС-01-04Серия ИС-01-04Серия ИС-01-04Серия ИС-01-04Серия ИС-01-04Серия ИС-01-04Серия ИС-01-04Серия ИС-01-04Серия ИС-01-04Серия ИС-01-04Серия ИС-01-04Серия ИС-01-04Серия ИС-01-04Серия ИС-01-04Серия ИС-01-04Серия ИС-01-04Серия ИС-01-04Серия ИС-01-04Серия ИС-01-04Серия ИС-01-04Серия ИС-01-04Серия ИС-01-04Серия ИС-01-04Серия ИС-01-04Серия ИС-01-04Серия ИС-01-04Серия ИС-01-04Серия ИС-01-04Серия ИС-01-04Серия ИС-01-04Серия ИС-01-04Серия ИС-01-04Серия ИС-01-04

© 2013 Ёшкин Кот :-) Карта сайта