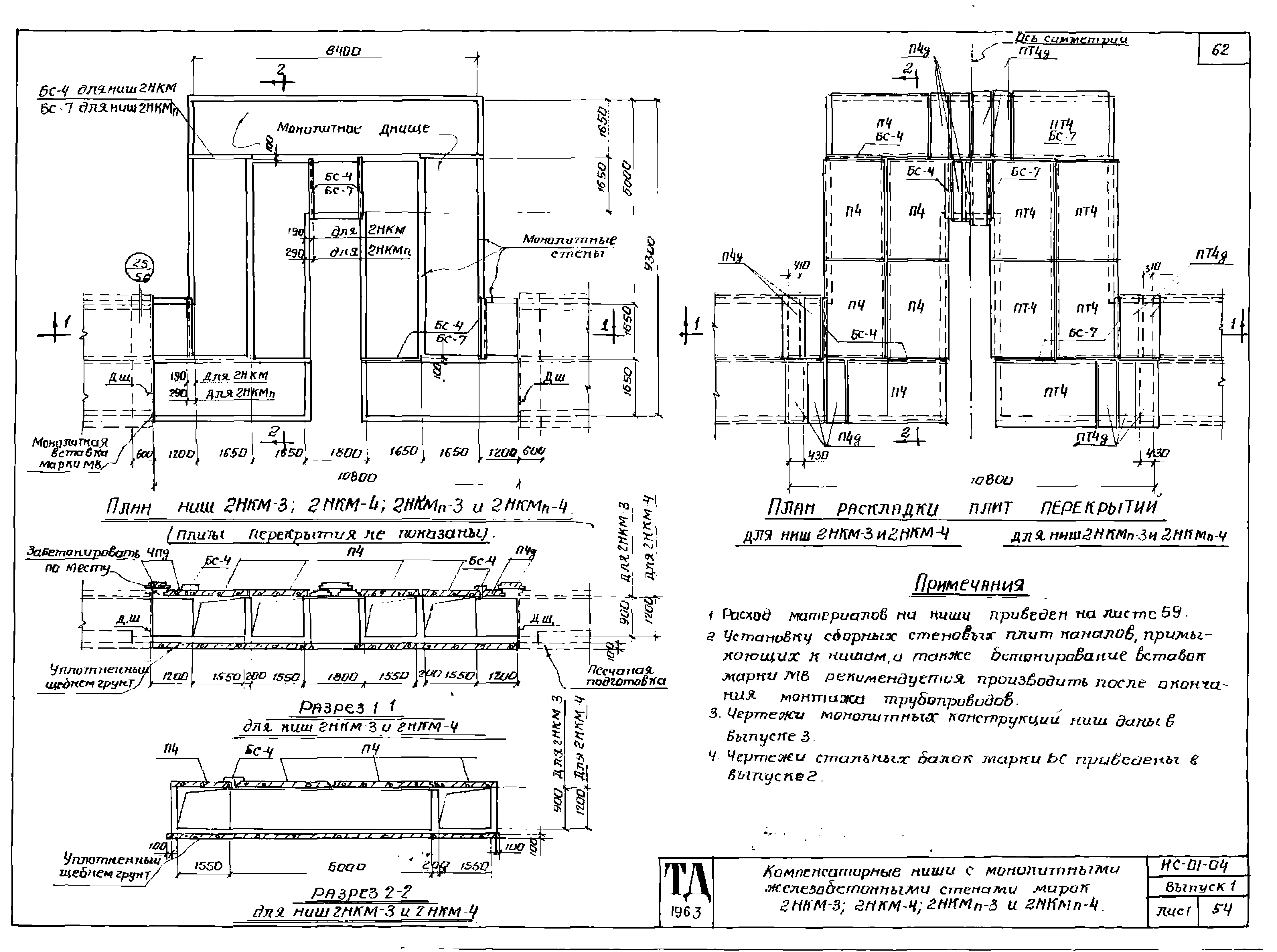
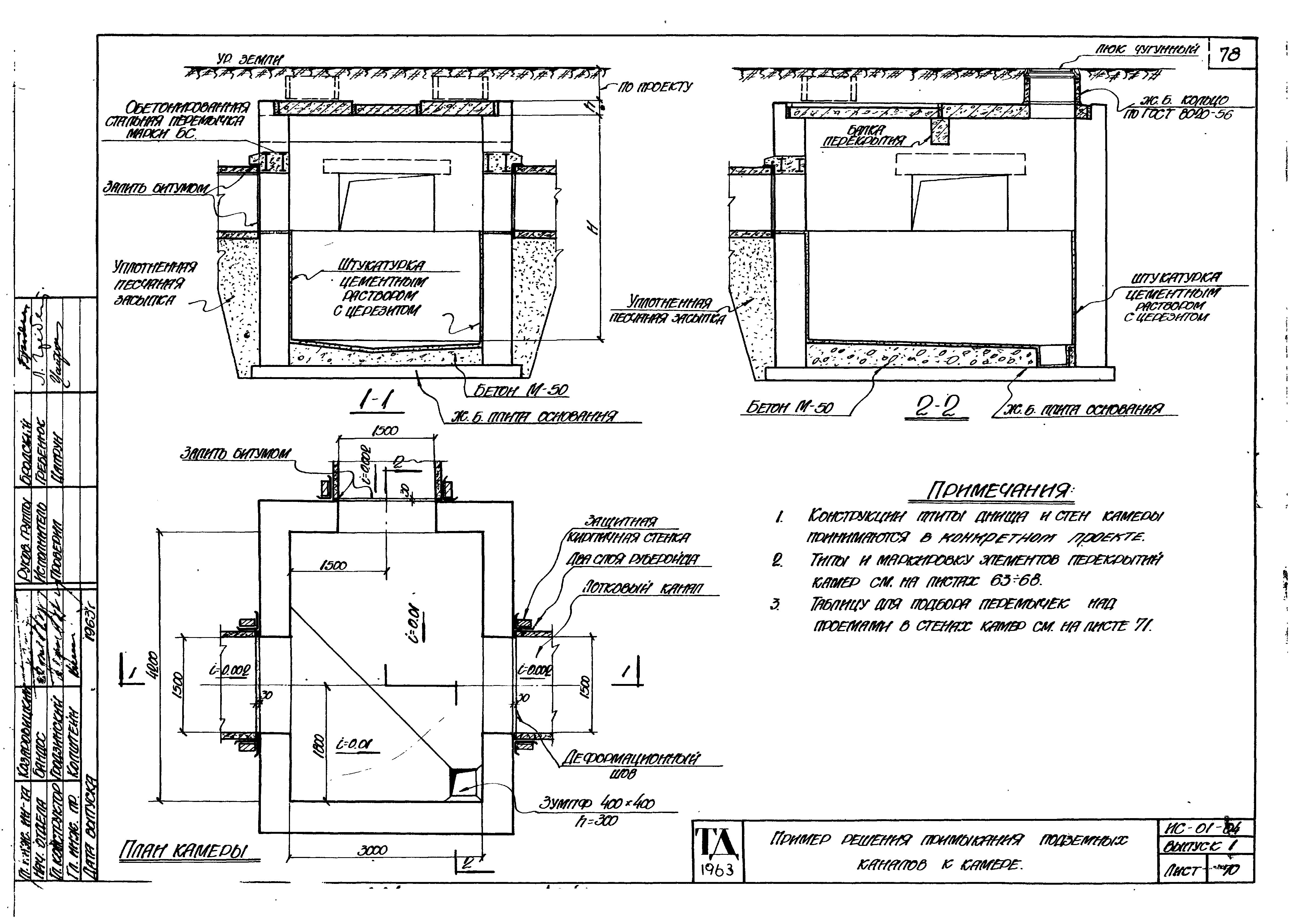
| ||||||||||||||||||||||||||
Скачать Серия ИС-01-04 Выпуск 1. Материалы для проектированияДата актуализации: 10.08.2017
|
| Обозначение: | Серия ИС-01-04 |
| Обозначение англ: | Series ИС-01-04 |
| Статус: | заменен |
| Название рус.: | Выпуск 1. Материалы для проектирования |
| Дата добавления в базу: | 01.09.2013 |
| Дата актуализации: | 05.05.2017 |
| Дата введения: | 01.02.1979 |
| Разработан: | Харьковский Промстройниипроект Госстроя СССР НИИЖБ |
| Утверждён: | 02.07.1963 Госстрой СССР (Государственный комитет Совета Министров СССР по делам строительства) (USSR Gosstroy 159) |
| Расположен в: | |
| Чем заменён: |















































































