Скачать Типовой проект 902-3-41.85 Альбом 2. Технологические, строительные решения. Нестандартизированное оборудование. Спецификации оборудованияДата актуализации: 10.08.2017 Типовой проект 902-3-41.85
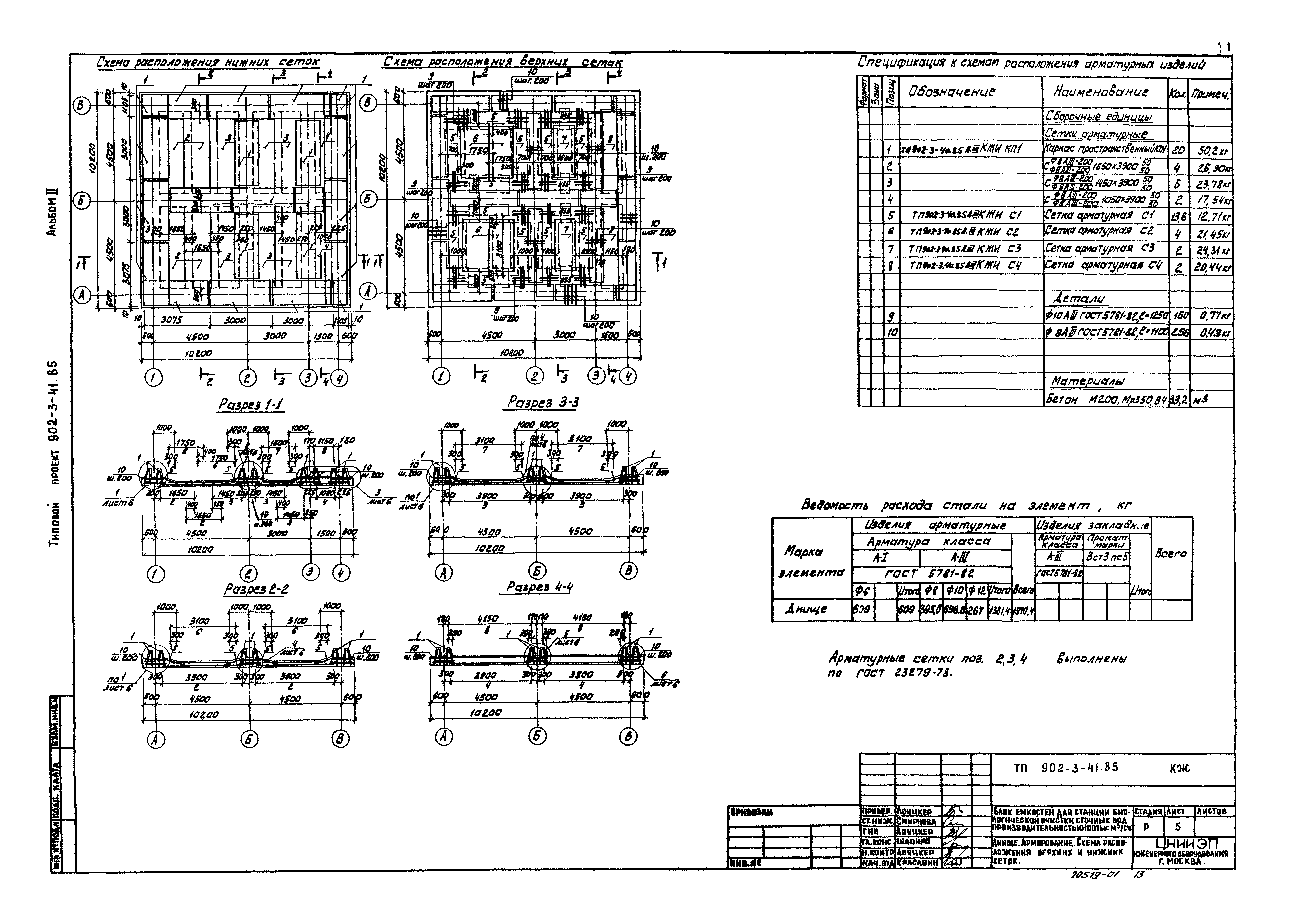
Альбом 2. Технологические, строительные решения. Нестандартизированное оборудование. Спецификации оборудованияОбозначение: | Типовой проект 902-3-41.85 | Обозначение англ: | 902-3-41.85 | Статус: | не определен законодательством | Название рус.: | Альбом 2. Технологические, строительные решения. Нестандартизированное оборудование. Спецификации оборудования | Дата добавления в базу: | 01.09.2013 | Дата актуализации: | 05.05.2017 | Дата введения: | 01.09.1985 | Оглавление: | Содержание альбома Технологические решения Общие данные План на отм. 4,000. Разрезы 1-1, 2-2 Схемы трубопроводов М1, М4, М5, М6, М9, И5, И6, Х1 Камера переключения 5,5. Иловая камера. Приемная камера. Планы. Разрезы. Схемы трубопроводов Спецификация оборудования к основному комплекту чертежей марки ТХ Строительные решения Общие данные Схемы расположения стеновых панелей, лотков и переходных мостиков. Разрезы Узлы. Спецификация к схеме расположения стеновых панелей, лотков и переходных мостиков Днище. Опалубочный чертеж. Разрезы. Узлы Днище. Армирование. Схема расположения верхних и нижних сеток Днище. Армирование. Узлы. Монолитные участки стен. Опалубочный чертеж Монолитные участки стен. Ум1…Ум4. Армирование. Узел 1 Монолитные участки стен. Ум5…Ум14. Армирование Камера переключения 5,5. Иловая камера. Приемная камера Нестандартизированное оборудование Лоток с решеткой и водосливом. Эскизный чертеж общего вида. Черт. 1426.00.000 Водослив. Черт. 1426.00.001. Решетка. Эскизный чертеж общего вида. Черт. 1426.03.000 Корпус. Эскизный чертеж общего вида. Черт. 1426.01.000. Лоток. Эскизный чертеж общего вида. Черт. 1426.02.000 | Разработан: | ЦНИИЭП инженерного оборудования
| Утверждён: | 02.11.1984 Госгражданстрой (Gosgrazhdanstroy 316)
| Расположен в: |
|
                    
|