Информационная система
«Ёшкин Кот»

Скачать базу одним архивом
Скачать обновления
История создания базы
Карта сайта

Скачать Типовой проект 3.501-79 Часть II. Промежуточные опоры массивно-сборные

Дата актуализации: 10.08.2017

Типовой проект 3.501-79

Часть II. Промежуточные опоры массивно-сборные

Обозначение: Типовой проект 3.501-79
Обозначение англ: 3.501-79
Статус:не действует
Название рус.:Часть II. Промежуточные опоры массивно-сборные
Дата добавления в базу:01.09.2013
Дата актуализации:05.05.2017
Дата окончания срока действия:01.10.2000
Оглавление:ТП 3.501-79 Пояснительная записка
ТП 3.501-79 Сводный лист опор
ТП 3.501-79 Основные расчетные данные опор на суходоле
ТП 3.501-79 Основные расчетные данные опор на водотоке
ТП 3.501-79 Сводный лист блоков
ТП 3.501-79 Пример конструкции опоры на суходоле
ТП 3.501-79 Пример конструкции опоры на водостоке
ТП 3.501-79 Сводный лист фундаментов опор
ТП 3.501-79 Блоки №№1-9. Опалубочный чертеж
ТП 3.501-79 Блоки №№10-23. Опалубочный чертеж
ТП 3.501-79 Блоки №№1-6. Арматурный чертеж
ТП 3.501-79 Блоки №№7-8. Арматурный чертеж
ТП 3.501-79 Блоки №№10-15. Арматурный чертеж
ТП 3.501-79 Блоки №№16-19. Арматурный чертеж
ТП 3.501-79 Блоки №№20,21. Арматурный чертеж
ТП 3.501-79 Блоки №9,№22 и №23. Арматурный чертеж
ТП 3.501-79 Сопряжение блоков и детали стыков
ТП 3.501-79 Расположение анкерных болтов опорных частей и конструкция переходных тумб
ТП 3.501-79 Конструкция переходных тумб под неравные пролетные строения
ТП 3.501-79 Конструкция подферменников опор под плитные пролетные строения длиной 16.5м
ТП 3.501-79 Конструкция смотровых приспособлений опор прямоугольного очертания в плане
ТП 3.501-79 Конструкция смотровых приспособлений опор обтекаемого очертания в плане
ТП 3.501-79 Конструкция смотровых приспособлений. Блоки балок и плит
ТП 3.501-79 Конструкция смотровых приспособлений. Блоки балок и плит (продолжение)
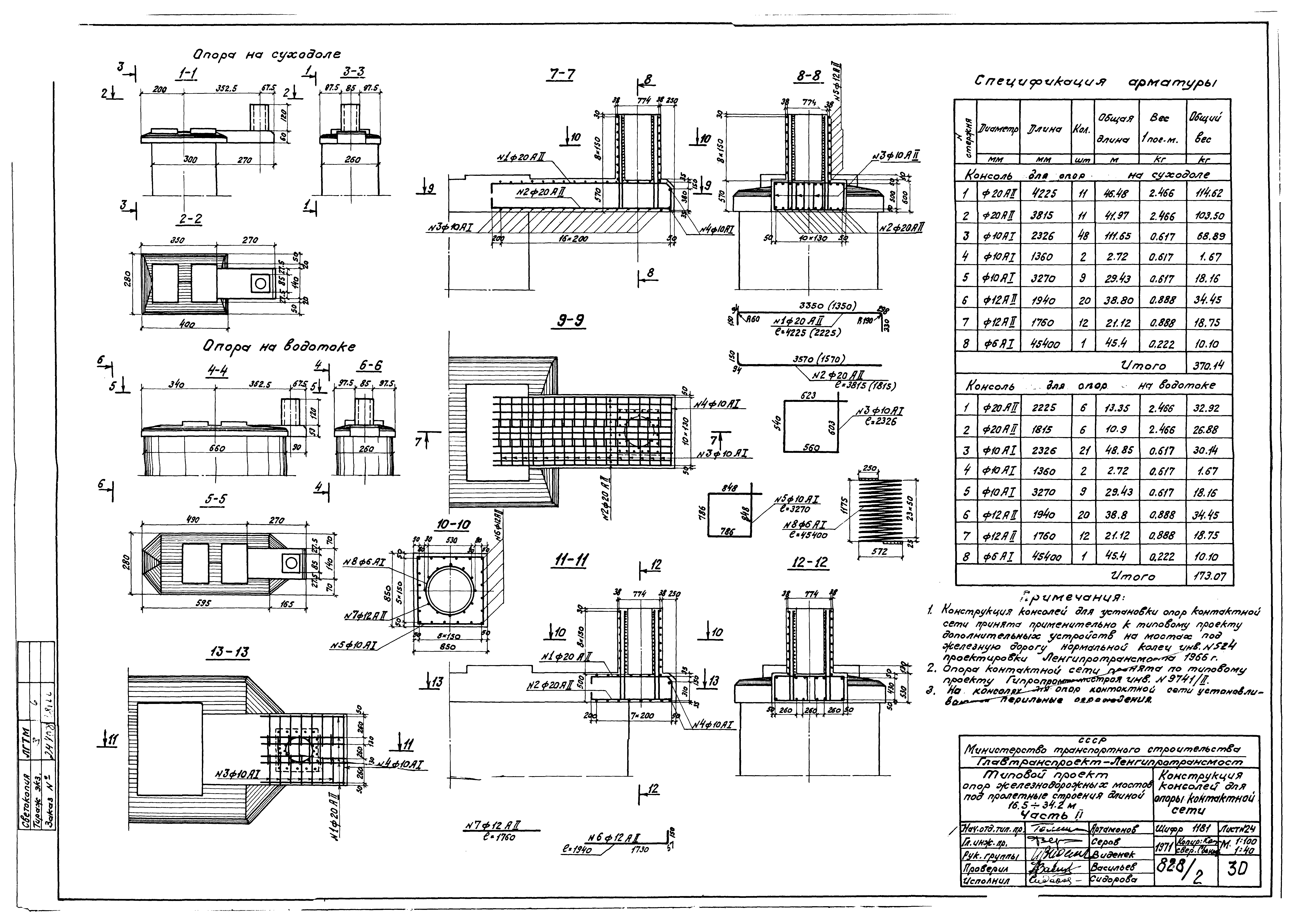
ТП 3.501-79 Конструкция консолей для опор контактной сети
ТП 3.501-79 Схемы производства работ по сооружению опор
ТП 3.501-79 Общая пояснительная записка
Разработан: Ленгипротрансмост
Утверждён:01.09.1972 МПС (Ministry of Railroads П-24680)
Расположен в:Техническая документация Строительство Справочные документы Типовые строительные конструкции, изделия и узлы Общероссийский строительный каталог Строительные конструкции, изделия и узлы зданий и сооружений для всех видов строительства Конструкции и изделия сооружений и оборудования зданий Надземные сооружения Конструкции и сооружения транспорта Опоры пролетных строений мостов и путепроводов
Типовой проект 3.501-79Типовой проект 3.501-79Типовой проект 3.501-79Типовой проект 3.501-79Типовой проект 3.501-79Типовой проект 3.501-79Типовой проект 3.501-79Типовой проект 3.501-79Типовой проект 3.501-79Типовой проект 3.501-79Типовой проект 3.501-79Типовой проект 3.501-79Типовой проект 3.501-79Типовой проект 3.501-79Типовой проект 3.501-79Типовой проект 3.501-79Типовой проект 3.501-79Типовой проект 3.501-79Типовой проект 3.501-79Типовой проект 3.501-79Типовой проект 3.501-79Типовой проект 3.501-79Типовой проект 3.501-79Типовой проект 3.501-79Типовой проект 3.501-79Типовой проект 3.501-79Типовой проект 3.501-79Типовой проект 3.501-79Типовой проект 3.501-79Типовой проект 3.501-79Типовой проект 3.501-79Типовой проект 3.501-79Типовой проект 3.501-79

© 2013 Ёшкин Кот :-) Карта сайта