Скачать Типовой проект 501-96 Типовой проект унифицированных косогорных водопропускных труб для железных и автомобильных дорогДата актуализации: 10.08.2017 Типовой проект 501-96
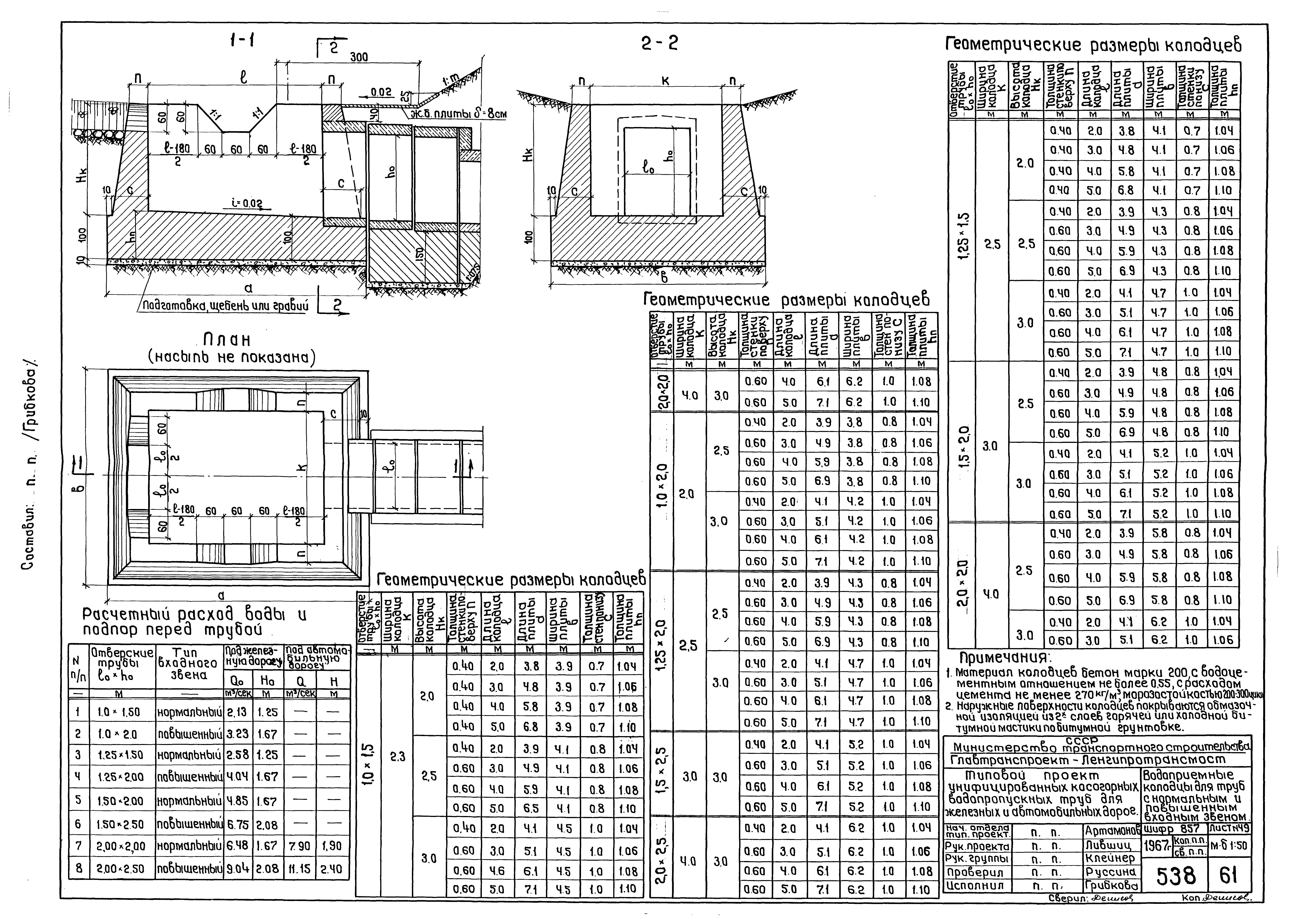
Типовой проект унифицированных косогорных водопропускных труб для железных и автомобильных дорогОбозначение: | Типовой проект 501-96 | Обозначение англ: | 501-96 | Статус: | не действует | Название рус.: | Типовой проект унифицированных косогорных водопропускных труб для железных и автомобильных дорог | Дата добавления в базу: | 01.09.2013 | Дата актуализации: | 05.05.2017 | Дата введения: | 01.10.2000 | Оглавление: | Пояснительная записка Гидравлические расчеты I. Общая часть Допускаемые скорости течения воды, коэффициенты шероховатости и коэффициент "С" Быстротоки прямоугольного сечения из сборного железобетона Быстротоки прямоугольного сечения из монолитного бетона Быстротоки трапецеидального сечения, укрепленные бетонными плитами и монолитным бетоном Быстротоки трапецеидального сечения, укрепленные мощением Лотки с повышенной шероховатостью Укрепление откосов насыпи при сопряжении быстротока с трубой II. Конструкция круглых труб Сопряжение железобетонных лотков с трубами на фундаментах типа 1 и 2 Сопряжение железобетонных лотков с трубами на фундаментах типа 3. Входные звенья - горизонтальны Сопряжение железобетонных лотков с трубами на фундаментах типа 3. Входные звенья - наклонны Сопряжение лотков из монолитного бетона с трубами на фундаментах типа 3. Входные звенья - наклонны Сопряжение лотков трапецеидального сечения с трубами на фундаментах типа 1 и 2 (Нормальные лотки) Сопряжение лотков трапецеидального сечения с трубами на фундаментах типа 1 и 2 (Уширенные лотки) Сопряжение лотков трапецеидального сечения трубами на фундаментах типа 3. Входные звенья - горизонтальны Сопряжение лотков трапецеидального сечения с трубами на фундаментах типа 3. Входные звенья - наклонны (Нормальные лотки) Сопряжение лотков трапецеидального сечения с трубами на фундаментах типа 3. Входные звенья - наклонны (Уширенные лотки) Водоприемные колодцы для круглых труб с нормальным входным звеном Водоприемные колодцы для круглых труб с коническим входным звеном Объемы работ водоприемных колодцев круглых труб Средняя часть трубы на фундаментах типа 1, 2 и 3 Гаситель типа 2 и 3 сборного железобетона для трубы отв. 1.5 м. Расход Q = 3.9 куб. м/сек Гаситель типа 2 сборного железобетона для трубы отв. 1.5 м. Расход Q = 6.0 куб. м/сек Гаситель типа 2 сборного железобетона для трубы отв. 1.5 м. Расход Q = 3.9 и 6.0 куб. м/сек Гаситель типа 3 сборного железобетона Примеры проектирования труб Пример I. Круглая труба отв. 1.5 м под железную дорогу. Расход Q = 3.9 куб. м/сек Гидравлические расчеты к примеру I круглой трубы отв. 1.5 м под железную дорогу Пример II. Круглая труба отв. 1.5 м под железную дорогу. Расход Q = 3.9 куб. м/сек Гидравлические расчеты к примеру II круглой трубы отв. 1.5 м под железную дорогу Пример III. Круглая труба отв. 1.5 м под автомобильную дорогу. Расход Q = 6.0 куб. м/сек Гидравлические расчеты к примеру III круглой трубы отв. 1.5 м под автомобильную дорогу III. Конструкция прямоугольных труб Сопряжение железобетонных лотков с трубами на фундаментах типа 2 (Нормальные лотки) Сопряжение железобетонных лотков с трубами на фундаментах типа 2 (Уширенные лотки) Сопряжение железобетонных лотков с трубами на фундаментах типа 3 (Нормальные лотки) Сопряжение железобетонных лотков с трубами на фундаментах типа 3 (Уширенные лотки) Сопряжение лотков из монолитного бетона с трубами на фундаментах типа 3 Сопряжение трапецеидальных лотков с трубами отв. 1.0 и 1.25 м на фундаментах типа 2 (Нормальные лотки) Сопряжение трапецеидальных лотков с трубами отв. 1.0 и 1.25 м на фундаментах типа 2 (Уширенные лотки) Сопряжение трапецеидальных лотков с трубами отв. 1.5 и 2.0 м на фундаментах типа 2 (Нормальные лотки) Сопряжение трапецеидальных лотков с трубами отв. 1.5 и 2.0 м на фундаментах типа 2 (Уширенные лотки) Сопряжение трапецеидальных лотков с трубами на фундаментах типа 3 (Нормальные лотки) Сопряжение трапецеидальных лотков с трубами на фундаментах типа 3 (Уширенные лотки) Водоприемные колодцы для труб с нормальным и повышенным входным звеном Объемы работ водоприемных колодцев прямоугольных труб Средняя часть трубы на фундаментах типа 1, 2 и 3 Гаситель типа 1 из сборного железобетона для труб отв. 1.0 и 1.25 м Гаситель типа 1 из сборного железобетона для труб отв. 1.5 и 2.0 м Армирование фундаментов гасителя типа 1 Гаситель типа 1 и 3 монолитного бетона Гаситель типа 2 из сборного железобетона для труб отв. 1.0 и 1.25 м Гаситель типа 2 из сборного железобетона для труб отв. 1.5 и 2.0 м Армирование фундаментов гасителя типа 2 Гаситель типа 2 из монолитного бетона для труб отв. 1.0 и 1.25 м Гаситель типа 2 из монолитного бетона для труб отв. 1.5 и 2.0 м Примеры проектирования труб Пример IV. Прямоугольные трубы отв. 1.5 м под железную дорогу. Расход Q = 9.5 куб. м/сек Гидравлические расчеты к примеру IV прямоугольной трубы отв. 1.5 м под железную дорогу Пример V. Прямоугольная труба отв. 1.5 м под железную дорогу. Расход Q = 5.2 куб. м/сек Гидравлические расчеты к примеру V прямоугольной трубы отв. 1.5 м под железную дорогу Пример VI. Прямоугольная труба отв. 2.0 м под автомобильную дорогу. Расход Q = 15.0 куб. м/сек Гидравлические расчеты к примеру VI прямоугольной трубы отв. 2.0 м под автомобильную дорогу IV. Блоки заводского изготовления Опалубочные чертежи (Блоки №200 - 221 и 231 - 233) Опалубочные чертежи (Блоки №222 - 230) Опалубочные чертежи (Блоки №234 - 239) Опалубочные чертежи (Блоки №240 - 246) Опалубочные чертежи (Блоки №247 - 253) и основные данные блоков №200 - 253 Арматурные чертежи железобетонных лотков (Блоки №200 и 201) Арматурные чертежи железобетонных лотков (Блоки №202 - 205) Арматурные чертежи железобетонных лотков (Блоки №206 - 209) Арматурные чертежи железобетонных лотков (Блоки №210 и 211) Арматурные чертежи железобетонных лотков (Блоки №212 и 213) Арматурные чертежи железобетонных лотков (Блоки №214 - 217) Арматурные чертежи железобетонных лотков (Блоки №218 и 219) Арматурные чертежи железобетонных лотков (Блоки №220 и 221) Арматурные чертежи блоков сопряжения лотков с круглыми трубами (Блоки №222 и 223) Арматурные чертежи блоков сопряжения лотков с круглыми трубами (Блоки №224 и 225) Арматурные чертежи блоков сопряжения лотков с круглыми трубами (Блоки №226 и 227) Арматурные чертежи блоков сопряжения лотков с круглыми трубами (Блоки №228 и 230) Арматурные чертежи блоков сопряжения лотков с прямоугольными трубами (Блоки №231 и 232) Арматурные чертежи блоков сопряжения лотков с прямоугольными трубами (Блоки №233 и 234) Арматурные чертежи блоков сопряжения лотков с прямоугольными трубами (Блоки №235 и 236) Арматурные чертежи блоков сопряжения лотков с прямоугольными трубами (Блоки №237 - 239) Арматурные чертежи блоков гасителей типа 1. (Блоки №240 и 244) Арматурные чертежи блоков гасителей типа 1. (Блоки №241, 245 и 246) Арматурные чертежи блоков гасителей типа 1. (Блоки №242 и 243) Арматурные чертежи блоков гасителей типа 2. (Блоки №247 и 250) Арматурные чертежи блоков гасителей типа 2. (Блоки №248 и 249) Арматурные чертежи блоков гасителей типа 2. (Блоки №251 - 253) V. Приложения График №1 для определения глубины воды при равномерном движении в прямоугольном русле (п = 1.016) График №2 для определения расчетной длины кривой спада в призматическом русле прямоугольного сечения График №3 для определения критической глубины потока и полного напора на водосливе в русле прямоугольного сечения. График №4 для определения уклона прямоугольной трубы при скорости на выходе V = 10.0 м/сек График №5 для построения кривой свободной поверхности потока в призматическом русле График №6 для определения дальности падения струи График №7 для определения сжатой глубины и сопряженной с ней в руслах прямоугольного сечения График №8 для определения критической глубины в круглой трубе График №9 для определения гидравлического радиуса в круглой трубе График №10 для определения смоченного периметра в круглой трубе График №11 для определения площади живого сечения в круглой трубе График №12 для определения уклона круглой трубы при скорости на выходе V = 10.0 м/сек | Разработан: | Ленгипротрансмост
| Утверждён: | 13.07.1967 МПС СССР (USSR Ministry of Railroads П-17788/Л-12211)
| Расположен в: |
| Чем заменён: | - Шифр 2338 «Унифицированные косогорные водопропускные трубы для железных и автомобильных дорог»
- Шифр 2338 «Выпуск 0-1. Круглые трубы. Материалы для проектирования»
- Шифр 2338 «Выпуск 0-2. Прямоугольные трубы. Материалы для проектирования»
- Шифр 2338 «Выпуск 1. Блоки лотков, откосных стенок и стенок гасителей. Технические условия. Рабочие чертежи»
|
                                                                                                                          
|