Скачать Серия 1.431-11 Выпуск 1. Конструкции, изделия и комплектующие материалыДата актуализации: 10.08.2017 Серия 1.431-11
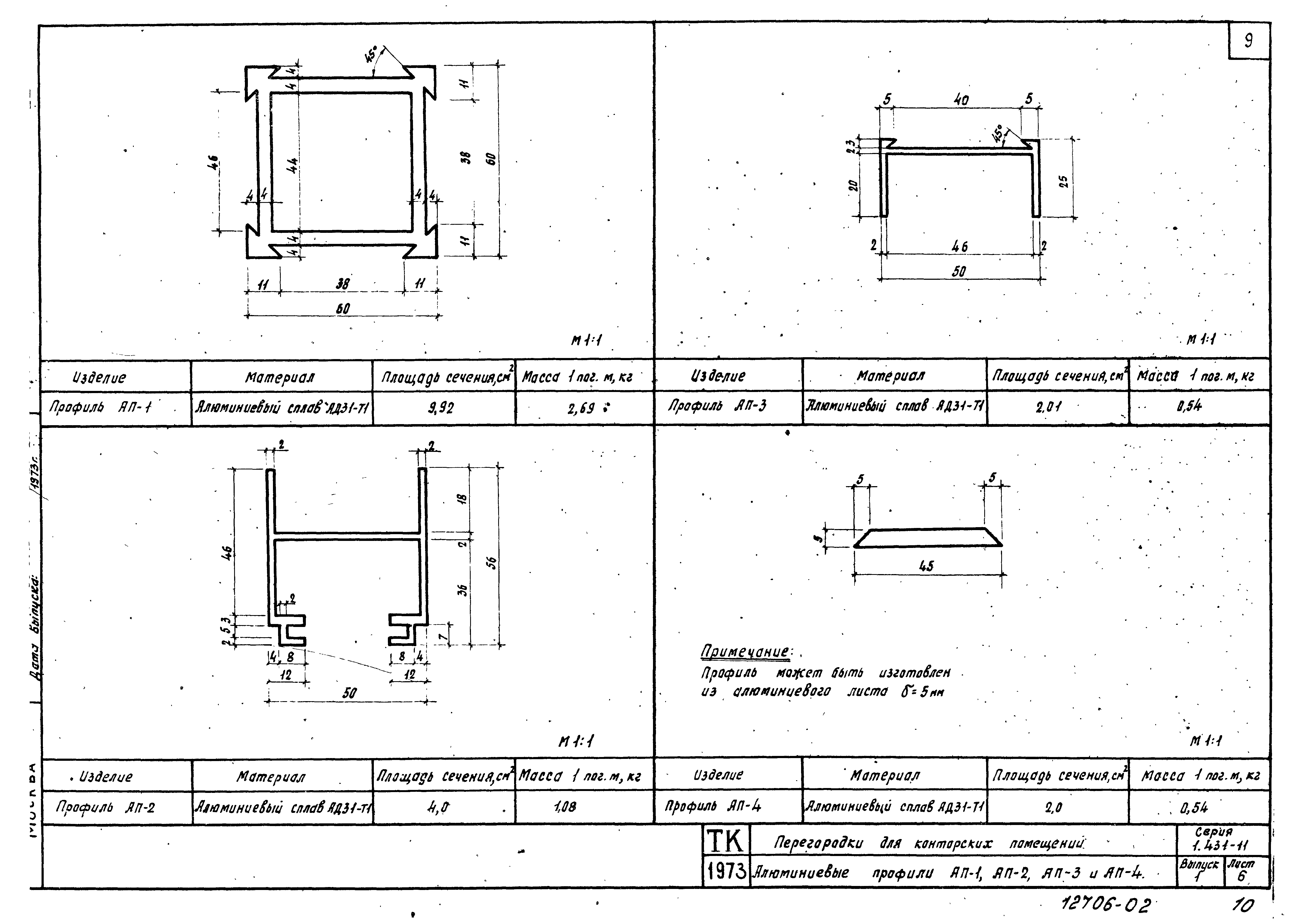
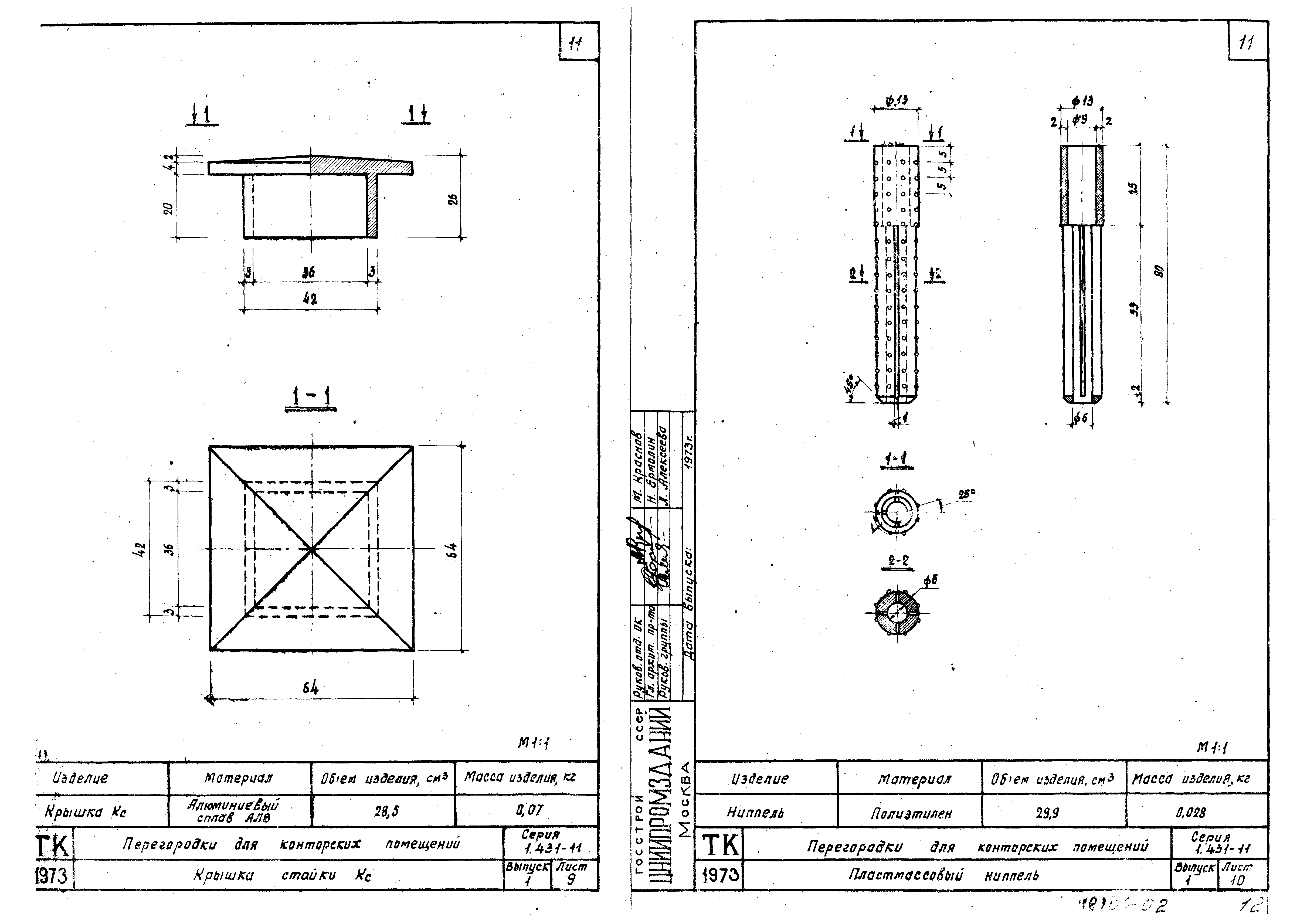
Выпуск 1. Конструкции, изделия и комплектующие материалыОбозначение: | Серия 1.431-11 | Обозначение англ: | Series 1.431-11 | Статус: | не действует | Название рус.: | Выпуск 1. Конструкции, изделия и комплектующие материалы | Дата добавления в базу: | 01.09.2013 | Дата актуализации: | 05.05.2017 | Дата введения: | 01.05.1999 | Область применения: | В настоящем выпуске приведены рабочие чертежи вставок, опорных башмаков, крышки стоек, алюминиевые и поливинилхлоридные профили | Разработан: | ЦНИИпромзданий
| Утверждён: | 29.08.1973 Госстрой СССР (Государственный комитет Совета Министров СССР по делам строительства) (USSR Gosstroy 2/2-353)
| Расположен в: |
| Нормативные ссылки: | |
            
|