Информационная система
«Ёшкин Кот»

Скачать базу одним архивом
Скачать обновления
История создания базы
Карта сайта

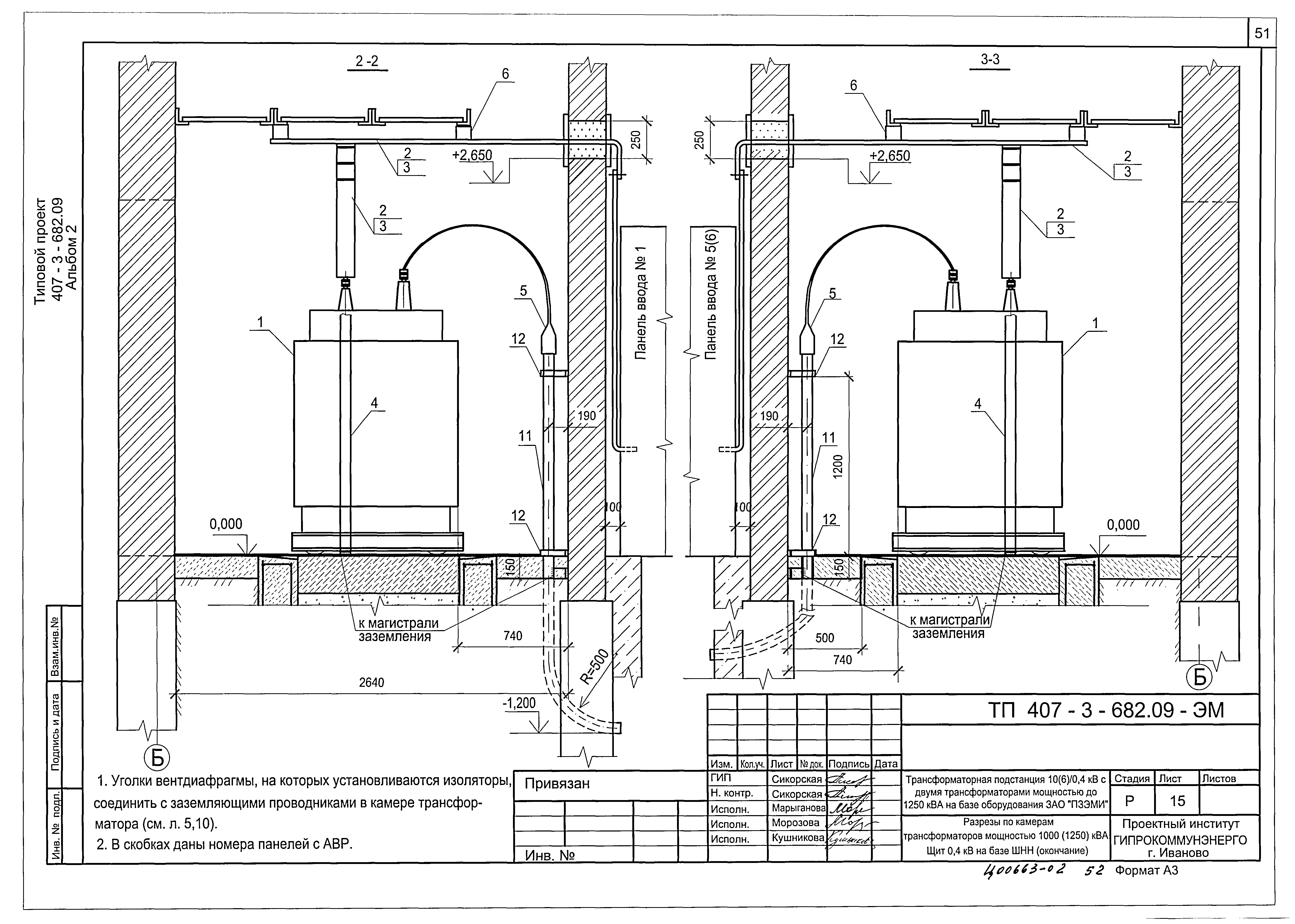
Скачать Типовой проект 407-3-682.09 Альбом 2. Электротехническая часть. Электросиловое оборудование. Электромонтажные конструкции

Дата актуализации: 10.08.2017

Типовой проект 407-3-682.09

Альбом 2. Электротехническая часть. Электросиловое оборудование. Электромонтажные конструкции

Обозначение: Типовой проект 407-3-682.09
Обозначение англ: 407-3-682.09
Статус:не определен законодательством
Название рус.:Альбом 2. Электротехническая часть. Электросиловое оборудование. Электромонтажные конструкции
Дата добавления в базу:01.09.2013
Дата актуализации:05.05.2017
Дата введения:02.07.2009
Разработан: Гипрокоммунэнерго
Утверждён:02.07.2009 ЗАО ПЗЭМИ (113)
Издан: Информационный бюллетень о нормативной, методической и типовой проектной документации ФГУП ЦПП (2009 г. (11))
Расположен в:Техническая документация Строительство Справочные документы Типовые строительные конструкции, изделия и узлы Общероссийский строительный каталог Промышленные предприятия, здания и сооружения Предприятия, здания и сооружения промышленности и электроэнергетики Электроэнергетика Устройства и подстанции распределительные
Типовой проект 407-3-682.09Типовой проект 407-3-682.09Типовой проект 407-3-682.09Типовой проект 407-3-682.09Типовой проект 407-3-682.09Типовой проект 407-3-682.09Типовой проект 407-3-682.09Типовой проект 407-3-682.09Типовой проект 407-3-682.09Типовой проект 407-3-682.09Типовой проект 407-3-682.09Типовой проект 407-3-682.09Типовой проект 407-3-682.09Типовой проект 407-3-682.09Типовой проект 407-3-682.09Типовой проект 407-3-682.09Типовой проект 407-3-682.09Типовой проект 407-3-682.09Типовой проект 407-3-682.09Типовой проект 407-3-682.09Типовой проект 407-3-682.09Типовой проект 407-3-682.09Типовой проект 407-3-682.09Типовой проект 407-3-682.09Типовой проект 407-3-682.09Типовой проект 407-3-682.09Типовой проект 407-3-682.09Типовой проект 407-3-682.09Типовой проект 407-3-682.09Типовой проект 407-3-682.09Типовой проект 407-3-682.09Типовой проект 407-3-682.09Типовой проект 407-3-682.09Типовой проект 407-3-682.09Типовой проект 407-3-682.09Типовой проект 407-3-682.09Типовой проект 407-3-682.09Типовой проект 407-3-682.09Типовой проект 407-3-682.09Типовой проект 407-3-682.09Типовой проект 407-3-682.09Типовой проект 407-3-682.09Типовой проект 407-3-682.09Типовой проект 407-3-682.09Типовой проект 407-3-682.09Типовой проект 407-3-682.09Типовой проект 407-3-682.09Типовой проект 407-3-682.09Типовой проект 407-3-682.09Типовой проект 407-3-682.09Типовой проект 407-3-682.09Типовой проект 407-3-682.09Типовой проект 407-3-682.09Типовой проект 407-3-682.09Типовой проект 407-3-682.09Типовой проект 407-3-682.09Типовой проект 407-3-682.09Типовой проект 407-3-682.09Типовой проект 407-3-682.09Типовой проект 407-3-682.09Типовой проект 407-3-682.09Типовой проект 407-3-682.09Типовой проект 407-3-682.09Типовой проект 407-3-682.09Типовой проект 407-3-682.09Типовой проект 407-3-682.09Типовой проект 407-3-682.09Типовой проект 407-3-682.09Типовой проект 407-3-682.09

© 2013 Ёшкин Кот :-) Карта сайта