Информационная система
«Ёшкин Кот»

Скачать базу одним архивом
Скачать обновления
История создания базы
Карта сайта

Скачать Типовой проект 903-1-270.89 Альбом 7. Конструкции металлические

Дата актуализации: 10.08.2017

Типовой проект 903-1-270.89

Альбом 7. Конструкции металлические

Обозначение: Типовой проект 903-1-270.89
Обозначение англ: 903-1-270.89
Статус:не определен законодательством
Название рус.:Альбом 7. Конструкции металлические
Дата добавления в базу:01.09.2013
Дата актуализации:05.05.2017
Дата введения:12.07.1989
Оглавление:ТП 903-1-270.89-КМ Общие данные (начало)
ТП 903-1-270.89-КМ Общие данные (продолжение)
ТП 903-1-270.89-КМ Общие данные (окончание)
ТП 903-1-270.89-КМ Техническая спецификация металла (начало)
ТП 903-1-270.89-КМ Техническая спецификация металла (продолжение)
ТП 903-1-270.89-КМ Техническая спецификация металла (окончание)
ТП 903-1-270.89-КМ Техническая спецификация металла. Лестницы, площадки, ограждения (начало)
ТП 903-1-270.89-КМ Техническая спецификация металла. Лестницы, площадки, ограждения (окончание)
ТП 903-1-270.89-КМ Техническая спецификация металла. Переплеты оконные
ТП 903-1-270.89-КМ Схемы балок перекрытия на отм. 4.800 (бурые угли)
ТП 903-1-270.89-КМ Схемы балок перекрытия на отм. 4.800 (каменные угли)
ТП 903-1-270.89-КМ Разрезы к листам 12,13
ТП 903-1-270.89-КМ Схемы балок перекрытия и бункеров на отм. 8.400
ТП 903-1-270.89-КМ Схема наклонного желоба. Узлы 1,2
ТП 903-1-270.89-КМ Схемы площадок у котлов
ТП 903-1-270.89-КМ Схема галереи на отм. 13.200 и план бункеров
ТП 903-1-270.89-КМ Разрезы к листу 17
ТП 903-1-270.89-КМ Схема лестницы у оси "1"
ТП 903-1-270.89-КМ Схема лестницы у оси "10"
ТП 903-1-270.89-КМ Схема лестницы у оси 10 ряда "Г"
ТП 903-1-270.89-КМ Схемы съемных щитов
ТП 903-1-270.89-КМ Схемы каркаса венткамер и лестницы в осях 5-6
ТП 903-1-270.89-КМ Схемы монорельса и балок в осях 5-6
ТП 903-1-270.89-КМ Схемы пожарных лестниц, кронштейна и съемного щита
ТП 903-1-270.89-КМ Схемы ограждения и опор под трубопроводы
ТП 903-1-270.89-КМ Схемы столиков, связей в осях 5-6 и монорельсов
ТП 903-1-270.89-КМ Схемы балок монолитных участков
ТП 903-1-270.89-КМ Схемы балок под газоходы
ТП 903-1-270.89-КМ Схема окон
ТП 903-1-270.89-КМ Схема галереи топливоподачи
ТП 903-1-270.89-КМ Схемы балок, монорельса, пожарной лестницы. Узел 30
ТП 903-1-270.89-КМ Схемы бункера, монорельса и лестницы
ТП 903-1-270.89-КМ Схемы площадок и лестниц
ТП 903-1-270.89-КМ Узел 3
ТП 903-1-270.89-КМ Узлы 4,5
ТП 903-1-270.89-КМ Узлы 6-9,28
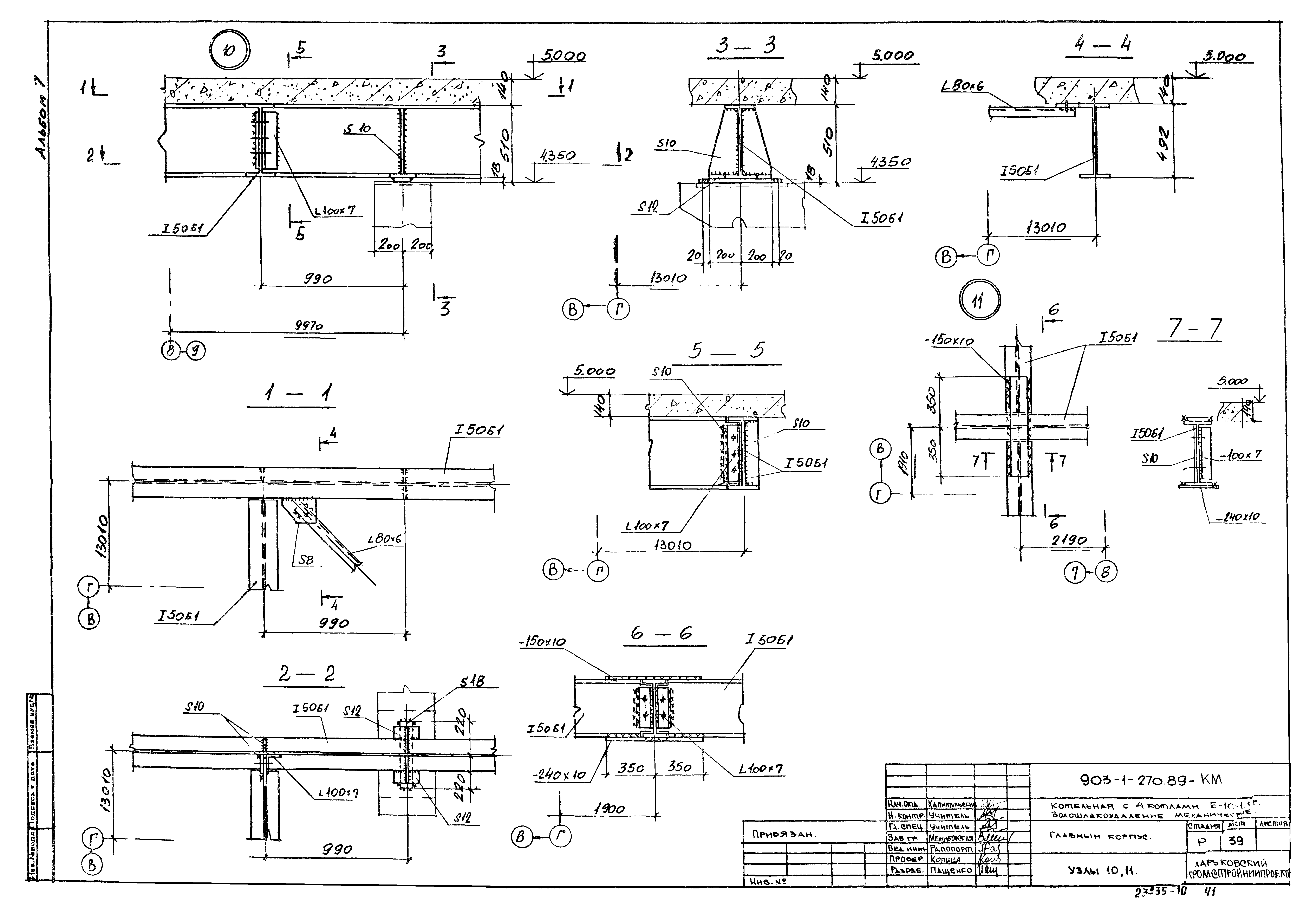
ТП 903-1-270.89-КМ Узлы 10,11
ТП 903-1-270.89-КМ Узлы 12-14
ТП 903-1-270.89-КМ Узлы 15,16
ТП 903-1-270.89-КМ Узел 17,29
ТП 903-1-270.89-КМ Узлы 18,19
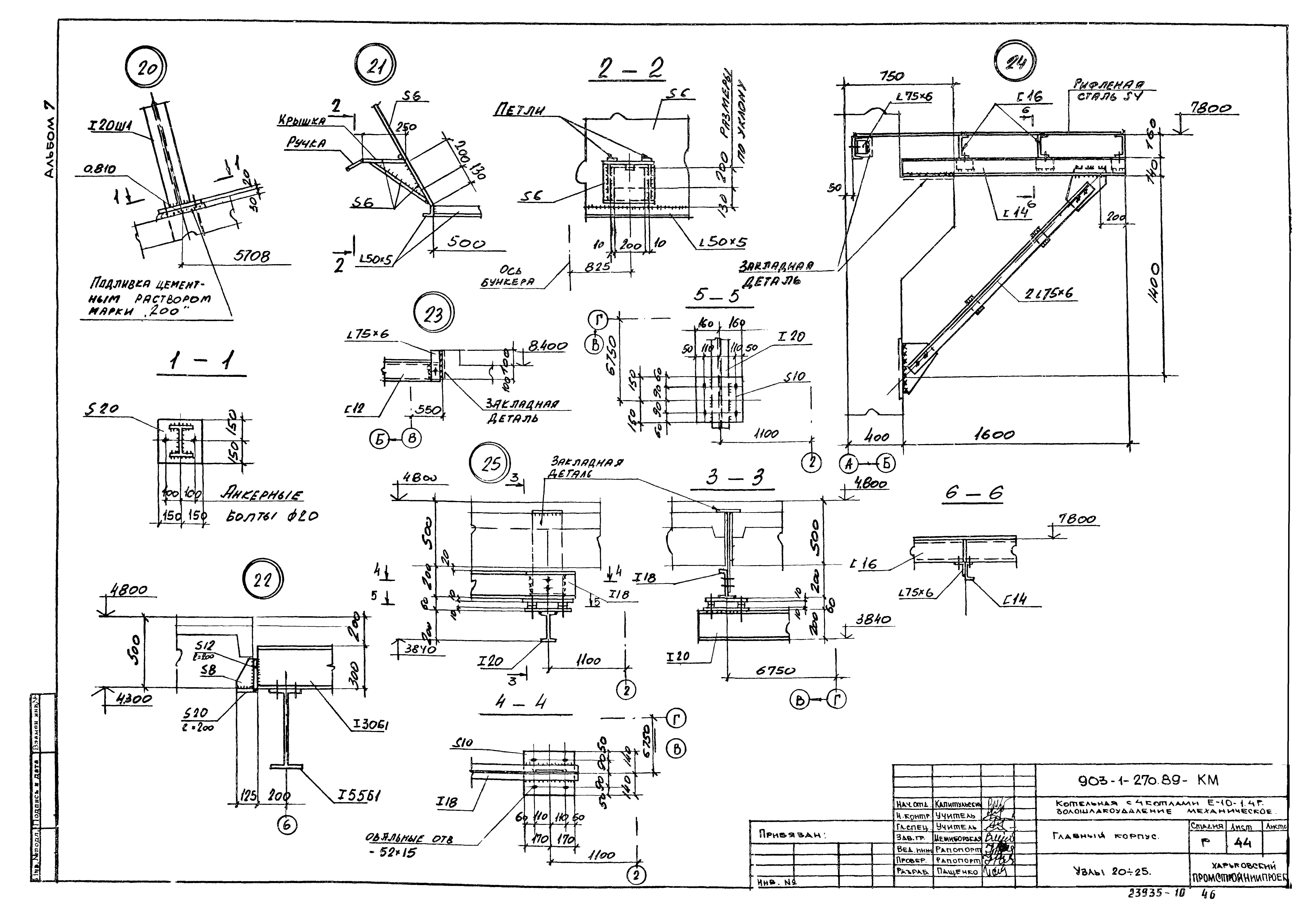
ТП 903-1-270.89-КМ Узлы 20-25
ТП 903-1-270.89-КМ Узлы 26,27
ТП 903-1-270.89-КМ Узел 31
Разработан: Харьковский Промстройниипроект
Харьковский Сантехпроект
Утверждён:12.07.1989 Сантехниипроект (10)
Издан: ЦИТП Госстроя СССР (CITP, Gosstroy (USSR) 1990 г. )
Расположен в:Техническая документация Строительство Справочные документы Типовые строительные конструкции, изделия и узлы Общероссийский строительный каталог Промышленные предприятия, здания и сооружения Здания и сооружения санитарно-технические Теплоснабжение Котельные установки Закрытые системы теплоснабжения Топливо - каменные и бурые угли
Заменяет собой:
Типовой проект 903-1-270.89Типовой проект 903-1-270.89Типовой проект 903-1-270.89Типовой проект 903-1-270.89Типовой проект 903-1-270.89Типовой проект 903-1-270.89Типовой проект 903-1-270.89Типовой проект 903-1-270.89Типовой проект 903-1-270.89Типовой проект 903-1-270.89Типовой проект 903-1-270.89Типовой проект 903-1-270.89Типовой проект 903-1-270.89Типовой проект 903-1-270.89Типовой проект 903-1-270.89Типовой проект 903-1-270.89Типовой проект 903-1-270.89Типовой проект 903-1-270.89Типовой проект 903-1-270.89Типовой проект 903-1-270.89Типовой проект 903-1-270.89Типовой проект 903-1-270.89Типовой проект 903-1-270.89Типовой проект 903-1-270.89Типовой проект 903-1-270.89Типовой проект 903-1-270.89Типовой проект 903-1-270.89Типовой проект 903-1-270.89Типовой проект 903-1-270.89Типовой проект 903-1-270.89Типовой проект 903-1-270.89Типовой проект 903-1-270.89Типовой проект 903-1-270.89Типовой проект 903-1-270.89Типовой проект 903-1-270.89Типовой проект 903-1-270.89Типовой проект 903-1-270.89Типовой проект 903-1-270.89Типовой проект 903-1-270.89Типовой проект 903-1-270.89Типовой проект 903-1-270.89Типовой проект 903-1-270.89Типовой проект 903-1-270.89Типовой проект 903-1-270.89Типовой проект 903-1-270.89Типовой проект 903-1-270.89Типовой проект 903-1-270.89Типовой проект 903-1-270.89Типовой проект 903-1-270.89

© 2013 Ёшкин Кот :-) Карта сайта