Информационная система
«Ёшкин Кот»

Скачать базу одним архивом
Скачать обновления
История создания базы
Карта сайта

Скачать Типовой проект 903-1-270.89 Альбом 6. Часть 2. Конструкции железобетонные

Дата актуализации: 10.08.2017

Типовой проект 903-1-270.89

Альбом 6. Часть 2. Конструкции железобетонные

Обозначение: Типовой проект 903-1-270.89
Обозначение англ: 903-1-270.89
Статус:не определен законодательством
Название рус.:Альбом 6. Часть 2. Конструкции железобетонные
Дата добавления в базу:01.09.2013
Дата актуализации:05.05.2017
Дата введения:12.07.1989
Оглавление:ТП 903-1-270.89 КЖ Участок монолитный Ум1
ТП 903-1-270.89 КЖ Участок монолитный Ум3…Ум5
ТП 903-1-270.89 КЖ Спецификация участка монолитного Ум1;Ум3…Ум5
ТП 903-1-270.89 КЖ Перекрытие на отм. 4.800. Участок монолитный Ум2. Опалубка. Вариант: каменные угли
ТП 903-1-270.89 КЖ Перекрытие на отм. 4.800. Участок монолитный Ум2. Элемент плана №1. Опалубка. Вариант: каменные угли
ТП 903-1-270.89 КЖ Перекрытие на отм. 4.800. Участок монолитный Ум2. Армирование. Вариант: каменные угли
ТП 903-1-270.89 КЖ Перекрытие на отм. 4.800. Участок монолитный Ум2. Сечение 6-6…11-11. Армирование. Вариант: каменные угли
ТП 903-1-270.89 КЖ Перекрытие на отм. 4.800. Участок монолитный Ум2. Элемент плана №2. Армирование. Вариант: каменные угли
ТП 903-1-270.89 КЖ Перекрытие на отм. 4.800. Спецификация участка монолитного Ум2. Вариант: каменные угли
ТП 903-1-270.89 КЖ Перекрытие на отм. 4.800. Участок монолитный Ум2. Вариант: бурые угли
ТП 903-1-270.89 КЖ Перекрытие на отм. 4.800. Участок монолитный Ум2. Элемент плана ;1. Опалубка. Вариант: бурые угли
ТП 903-1-270.89 КЖ Перекрытие на отм. 4.800. Участок монолитный Ум2. Армирование. Вариант: бурые угли
ТП 903-1-270.89 КЖ Перекрытие на отм. 4.800. Участок монолитный Ум2. Сечение 6-6…11-11. Армирование. Вариант: бурые угли
ТП 903-1-270.89 КЖ Перекрытие на отм. 4.800. Участок монолитный Ум2. Элемент плана №2. Армирование. Вариант: бурые угли
ТП 903-1-270.89 КЖ Перекрытие на отм. 4.800. Спецификация участка монолитного Ум2. Вариант: бурые угли
ТП 903-1-270.89 КЖ Перекрытие на отм. 8.400. Участок монолитный Ум6. Опалубка
ТП 903-1-270.89 КЖ Перекрытие на отм. 8.400. Участок монолитный Ум6. Армирование
ТП 903-1-270.89 КЖ Участок монолитный Ум8;Ум9. Опалубка. Участок монолитный Ум11. Опалубка и армирование
ТП 903-1-270.89 КЖ Участок монолитный Ум7. Опалубка и армирование. Участок монолитный Ум8;Ум9. Армирование
ТП 903-1-270.89 КЖ Спецификация участка монолитного Ум7…Ум9
ТП 903-1-270.89 КЖ Участок монолитный Ум10. Опалубка
ТП 903-1-270.89 КЖ Участок монолитный Ум10. Сечение 1-1…14-14
ТП 903-1-270.89 КЖ Участок монолитный Ум10. Армирование
ТП 903-1-270.89 КЖ Спецификация участка монолитного Ум10
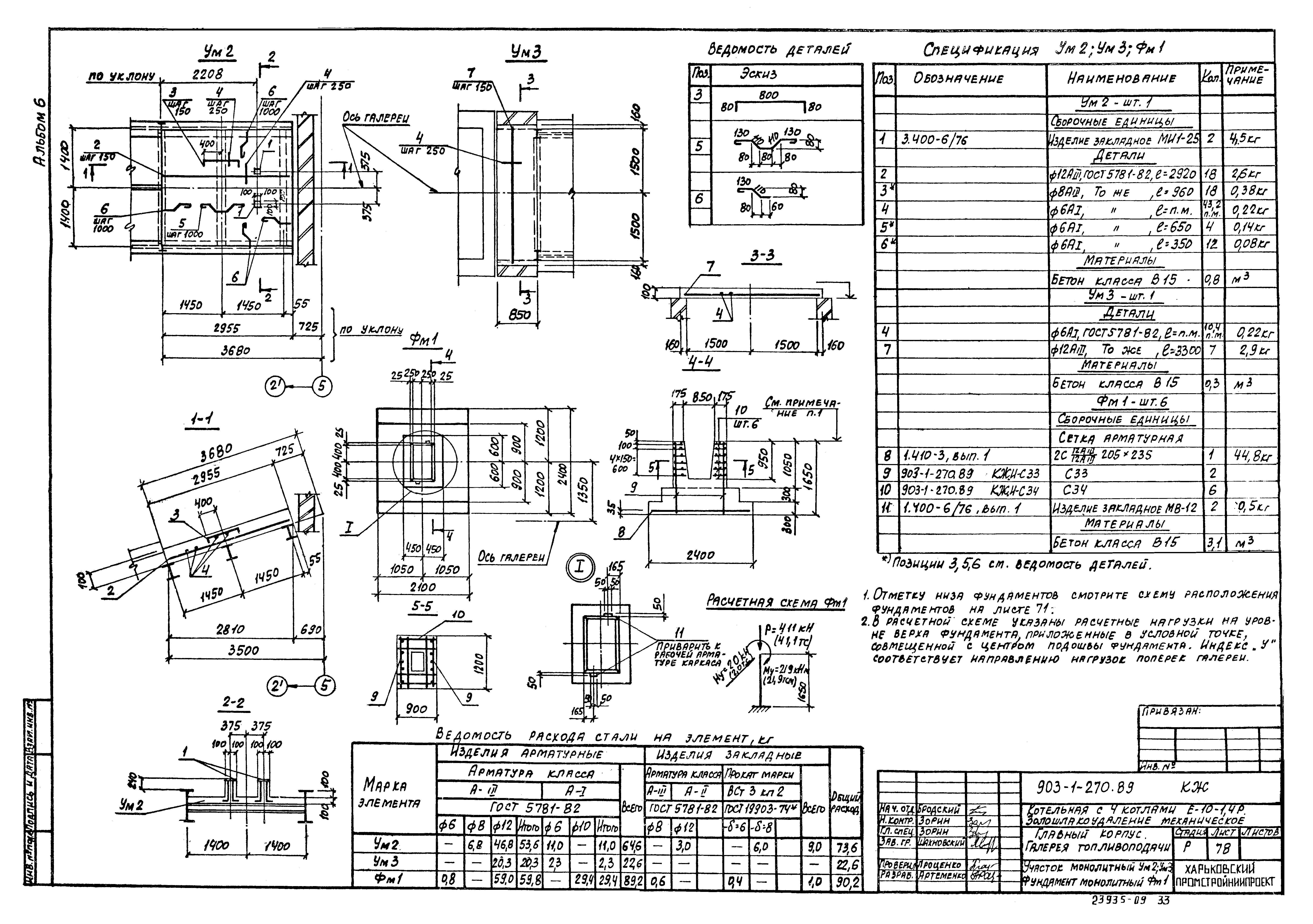
ТП 903-1-270.89 КЖ Галерея топливоподачи
ТП 903-1-270.89 КЖ Схема расположения фундаментов и стоек
ТП 903-1-270.89 КЖ Спецификация к схеме расположения конструктивных элементов
ТП 903-1-270.89 КЖ Схема расположения плит перекрытия и стеновых панелей
ТП 903-1-270.89 КЖ Участок монолитный Ум1. Сечение 1-1…3-3. Опалубка
ТП 903-1-270.89 КЖ Участок монолитный Ум1. Сечение 4-4…9-9. Опалубка
ТП 903-1-270.89 КЖ Участок монолитный Ум1. Армирование
ТП 903-1-270.89 КЖ Участок монолитный Ум1. Армирование. Спецификация
ТП 903-1-270.89 КЖ Участок монолитный Ум2;Ум3. Фундамент монолитный ФМ1
ТП 903-1-270.89 КЖ Схема расположения плит покрытия
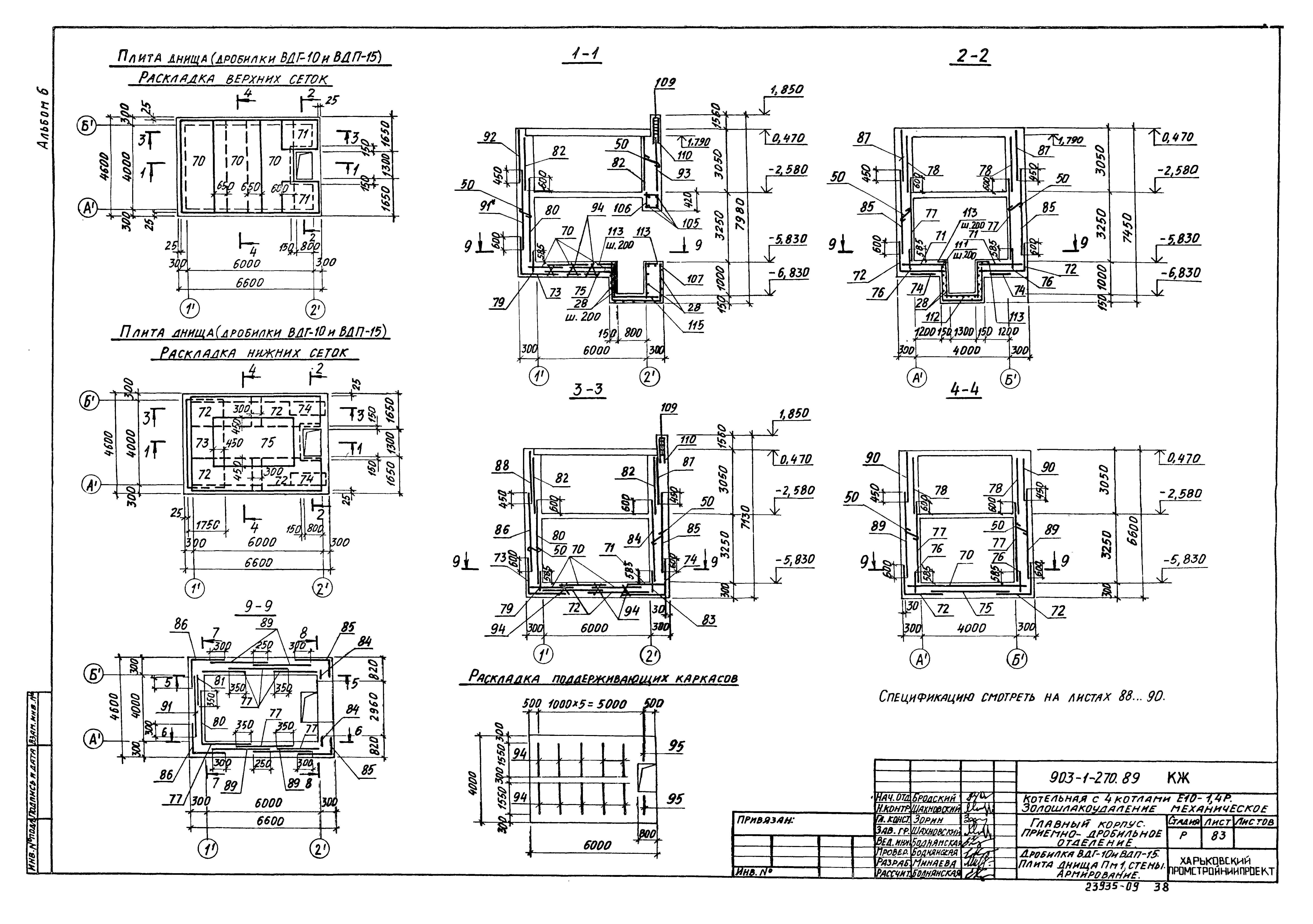
ТП 903-1-270.89 КЖ Приемно-дробильное отделение
ТП 903-1-270.89 КЖ Дробилка ВДГ-10 и ВДП-15. Схема расположения плит на отм. 0.470. Опалубка
ТП 903-1-270.89 КЖ Дробилка ВДГ-10 и ВДП-15. Плита днища ПМ1 на отм. - 5.830. Сечение 1-1-10-10. Опалубка
ТП 903-1-270.89 КЖ Дробилка ВДГ-10 и ВДП-15. Плита перекрытия ПМ2 и ПМ3 на отм.2.550. Опалубка
ТП 903-1-270.89 КЖ Дробилка ВДГ-10 и ВДП-15. Плита днища ПМ1, стены. Опалубка
ТП 903-1-270.89 КЖ Дробилка ВДГ-10 и ВДП-15. Стены. Армирование
ТП 903-1-270.89 КЖ Дробилка ВДГ-10. Плита перекрытия ПМ2 на отм. - 1.080. Армирование
ТП 903-1-270.89 КЖ Дробилка ВДП-15. Плита перекрытия ПМ3 на отм. - 1.080. Армирование
ТП 903-1-270.89 КЖ Дробилка ВДГ-10 и ВДП-15. Участок монолитный Ум1…Ум3 на отм.1.970. Балка Бм1
ТП 903-1-270.89 КЖ Дробилка ВДГ-10 и ВДП-15. Спецификация (начало)
ТП 903-1-270.89 КЖ Дробилка ВДГ-10 и ВДП-15. Спецификация (продолжение)
ТП 903-1-270.89 КЖ Дробилка ВДГ-10 и ВДП-15. Спецификация (окончание)
ТП 903-1-270.89 КЖ Дробилка ВДГ-10 и ВДП-15. Ведомость деталей и расхода стали
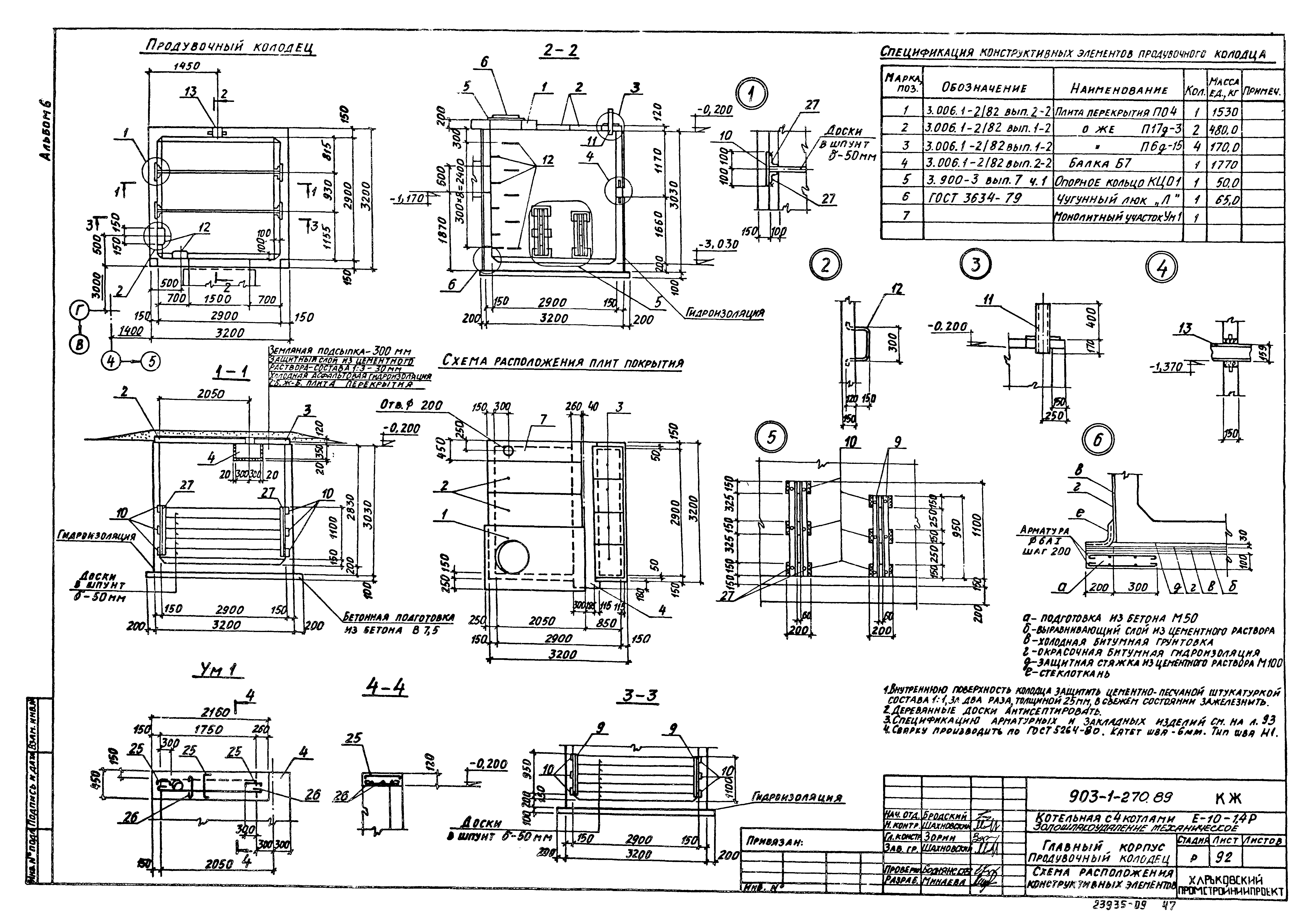
ТП 903-1-270.89 КЖ Продувочный колодец
ТП 903-1-270.89 КЖ Схема расположения конструктивных элементов
ТП 903-1-270.89 КЖ Схема армирования. Спецификация
ТП 903-1-270.89 КЖ Баки-аккумуляторы
ТП 903-1-270.89 КЖ Схема расположения фундаментов
ТП 903-1-270.89 КЖ Элемент плана №2;№3. Сечение 2-2…5-5. Узел 1
ТП 903-1-270.89 КЖ Фундамент ФО1…ФО6. Спецификация
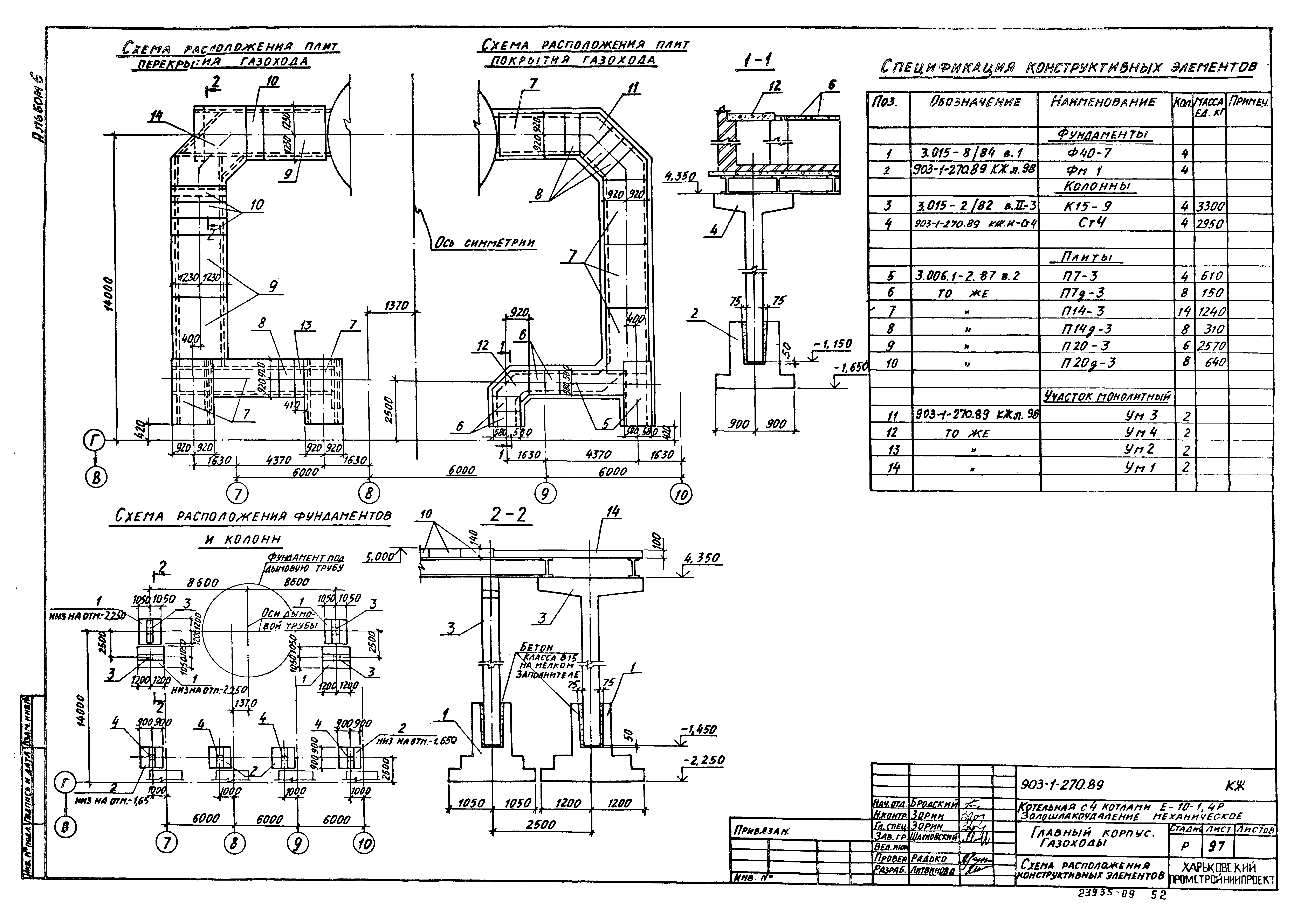
ТП 903-1-270.89 КЖ Газоходы
ТП 903-1-270.89 КЖ Схема расположения конструктивных элементов
ТП 903-1-270.89 КЖ Участок монолитный Ум1…Ум4. Фундамент ФМ1
Разработан: Харьковский Промстройниипроект
Харьковский Сантехпроект
Утверждён:12.07.1989 Сантехниипроект (10)
Издан: ЦИТП Госстроя СССР (CITP, Gosstroy (USSR) 1990 г. )
Расположен в:Техническая документация Строительство Справочные документы Типовые строительные конструкции, изделия и узлы Общероссийский строительный каталог Промышленные предприятия, здания и сооружения Здания и сооружения санитарно-технические Теплоснабжение Котельные установки Закрытые системы теплоснабжения Топливо - каменные и бурые угли
Заменяет собой:
Типовой проект 903-1-270.89Типовой проект 903-1-270.89Типовой проект 903-1-270.89Типовой проект 903-1-270.89Типовой проект 903-1-270.89Типовой проект 903-1-270.89Типовой проект 903-1-270.89Типовой проект 903-1-270.89Типовой проект 903-1-270.89Типовой проект 903-1-270.89Типовой проект 903-1-270.89Типовой проект 903-1-270.89Типовой проект 903-1-270.89Типовой проект 903-1-270.89Типовой проект 903-1-270.89Типовой проект 903-1-270.89Типовой проект 903-1-270.89Типовой проект 903-1-270.89Типовой проект 903-1-270.89Типовой проект 903-1-270.89Типовой проект 903-1-270.89Типовой проект 903-1-270.89Типовой проект 903-1-270.89Типовой проект 903-1-270.89Типовой проект 903-1-270.89Типовой проект 903-1-270.89Типовой проект 903-1-270.89Типовой проект 903-1-270.89Типовой проект 903-1-270.89Типовой проект 903-1-270.89Типовой проект 903-1-270.89Типовой проект 903-1-270.89Типовой проект 903-1-270.89Типовой проект 903-1-270.89Типовой проект 903-1-270.89Типовой проект 903-1-270.89Типовой проект 903-1-270.89Типовой проект 903-1-270.89Типовой проект 903-1-270.89Типовой проект 903-1-270.89Типовой проект 903-1-270.89Типовой проект 903-1-270.89Типовой проект 903-1-270.89Типовой проект 903-1-270.89Типовой проект 903-1-270.89Типовой проект 903-1-270.89Типовой проект 903-1-270.89Типовой проект 903-1-270.89Типовой проект 903-1-270.89Типовой проект 903-1-270.89Типовой проект 903-1-270.89Типовой проект 903-1-270.89Типовой проект 903-1-270.89Типовой проект 903-1-270.89

© 2013 Ёшкин Кот :-) Карта сайта