Информационная система
«Ёшкин Кот»

Скачать базу одним архивом
Скачать обновления
История создания базы
Карта сайта

Скачать Типовой проект 903-1-270.89 Альбом 2. Часть 1. Решения тепломеханические. Расположение оборудования. Котлоагрегаты. Топливоподача. Золошлакоудаление. Газоснабжение. Внутренние устройства

Дата актуализации: 10.08.2017

Типовой проект 903-1-270.89

Альбом 2. Часть 1. Решения тепломеханические. Расположение оборудования. Котлоагрегаты. Топливоподача. Золошлакоудаление. Газоснабжение. Внутренние устройства

Обозначение: Типовой проект 903-1-270.89
Обозначение англ: 903-1-270.89
Статус:не определен законодательством
Название рус.:Альбом 2. Часть 1. Решения тепломеханические. Расположение оборудования. Котлоагрегаты. Топливоподача. Золошлакоудаление. Газоснабжение. Внутренние устройства
Дата добавления в базу:01.09.2013
Дата актуализации:05.05.2017
Дата введения:12.07.1989
Оглавление:Содержание альбома
Решения тепломеханические. Расположение оборудования
   Общие данные
   Расположение оборудования котельной. План на отм. 0,000. Вид А
   Расположение оборудования котельной. План на отм. 4,800. Вид Б
   Расположение оборудования котельной. Планы на отм. 8,400 и 12,000. Разрез 1-1
   Расположение оборудования котельной. Разрезы 2-2, 3-3
   Тепловая схема трубопроводов котельной
Решения тепломеханические. Котлоагрегаты
   Общие данные
   Обмуровка фронтальной стенки котла, предтопка и шлакового бункера. Разрез 1-1. Вид А. Узел 1. Спецификация
   Теплоизоляция барабана котла. План. Разрез 1-1. Вид А. Спецификация
   Расположение оборудования котлоагрегата. План на отм. 0,000. Вид А
   Расположение оборудования котлоагрегата. План на отм. 4,800
   Расположение оборудования котлоагрегата. План на отм. 8,400
   Расположение оборудования котлоагрегата. Разрезы 1-1, 2-2
   Расположение оборудования котлоагрегата. Разрез 3-3. Топливо - бурые угли
   Расположение оборудования котлоагрегата. Разрез 3-3. Топливо - каменные угли
   Расположение оборудования котлоагрегата. Спецификация
   Схема трубопроводов
   Трубопроводы. Планы на отм. 0,000 и 8,400. Топливо - каменные угли
   Трубопроводы. Разрезы 1-1, 2-2. Топливо - каменные угли
   Трубопроводы. Разрез 3-3. Топливо - каменные угли
   Трубопроводы. Планы на отм. 0,000 и 8,400. Топливо - бурые угли
   Трубопроводы. Разрезы 1-1, 2-2. Топливо - бурые угли
   Трубопроводы. Разрез 3-3. Топливо - бурые угли
   Трубопроводы. Спецификация
Топливоподача
   Общие данные
   Механизация топливоподачи при доставке топлива железнодорожным транспортом. План
   Механизация топливоподачи при доставке топлива железнодорожным транспортом. Разрез 1-1
   Установка дробилки ВДП-15. Вид А. Узел 1
   Установка дробилки ВДП-15. Вид Б. Разрез 1-1
   Установка дробилки ВДГ-10. Вид А. Узел 1
   Установка дробилки ВДГ-10. Вид Б. Разрез 1-1
   Установка электромагнитного железоотделителя. Разрез 2-2
   Установка электромагнитного железоотделителя. Вид В
Золошлакоудаление
   Общие данные
   Установка подъемника для золошлакоудаления. План в осях 6-10
   Установка подъемника для золошлакоудаления. Вид А
   Установка подъемника для золошлакоудаления. Разрезы 1-1, 3-3, 4-4. Вид Б
   Установка подъемника для золошлакоудаления. Узлы 1, 2, 3. Разрез 2-2. Виды В, Г
   Принципиальная схема монтажа каната скеперно-ковшового подъемника
Газоснабжение. Внутренние устройства
   Общие данные
   Газопроводы котельной. Схема. План на отм. 4,800. Разрез 1-1. Спецификация
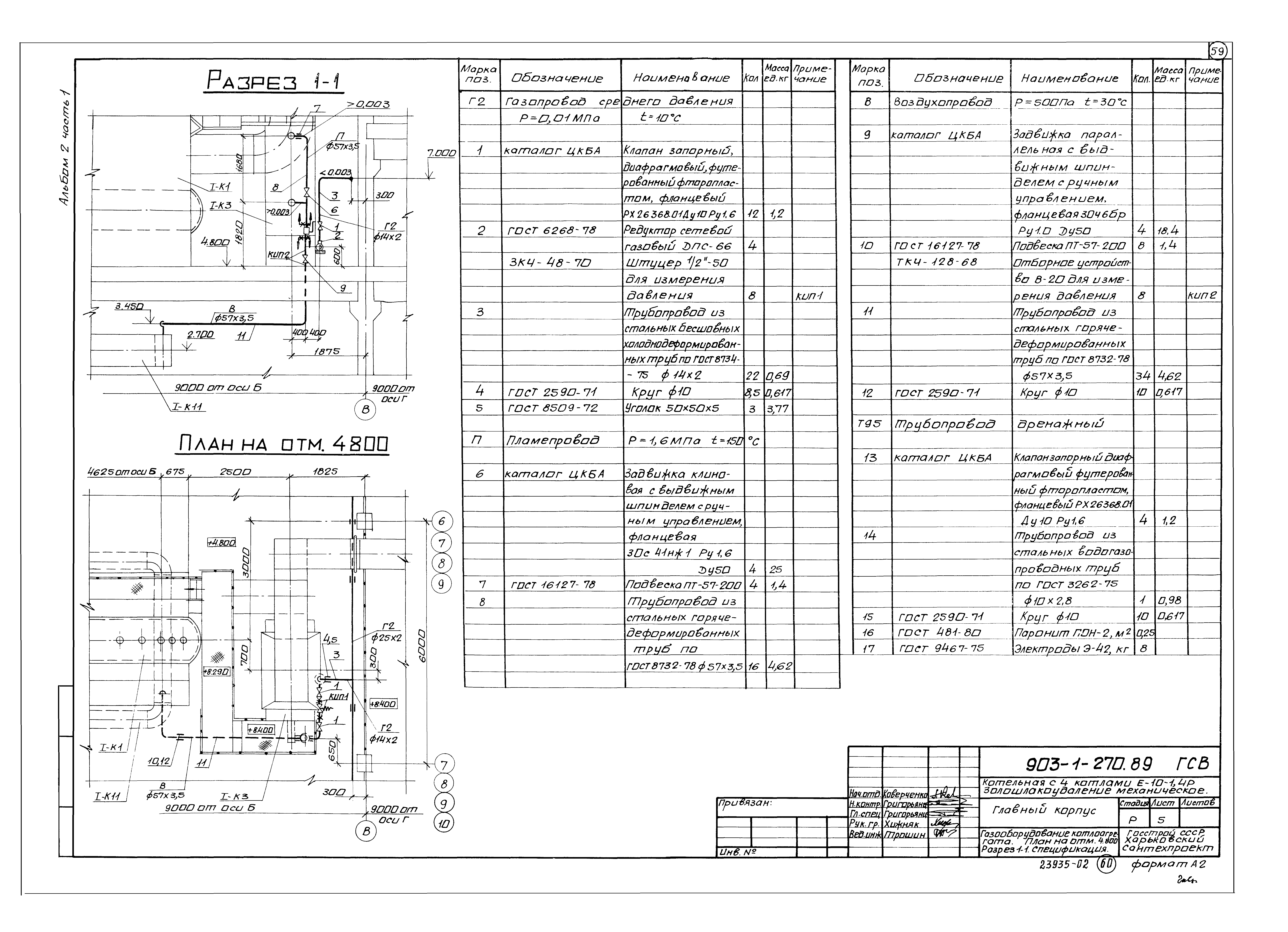
   Газооборудование котлоагрегата. План на отм. 4,800. Разрез 1-1. Спецификация
Разработан: Харьковский Промстройниипроект
Харьковский Сантехпроект
Утверждён:12.07.1989 Сантехниипроект (10)
Расположен в:Техническая документация Строительство Справочные документы Типовые строительные конструкции, изделия и узлы Общероссийский строительный каталог Промышленные предприятия, здания и сооружения Здания и сооружения санитарно-технические Теплоснабжение Котельные установки Закрытые системы теплоснабжения Топливо - каменные и бурые угли
Заменяет собой:
Типовой проект 903-1-270.89Типовой проект 903-1-270.89Типовой проект 903-1-270.89Типовой проект 903-1-270.89Типовой проект 903-1-270.89Типовой проект 903-1-270.89Типовой проект 903-1-270.89Типовой проект 903-1-270.89Типовой проект 903-1-270.89Типовой проект 903-1-270.89Типовой проект 903-1-270.89Типовой проект 903-1-270.89Типовой проект 903-1-270.89Типовой проект 903-1-270.89Типовой проект 903-1-270.89Типовой проект 903-1-270.89Типовой проект 903-1-270.89Типовой проект 903-1-270.89Типовой проект 903-1-270.89Типовой проект 903-1-270.89Типовой проект 903-1-270.89Типовой проект 903-1-270.89Типовой проект 903-1-270.89Типовой проект 903-1-270.89Типовой проект 903-1-270.89Типовой проект 903-1-270.89Типовой проект 903-1-270.89Типовой проект 903-1-270.89Типовой проект 903-1-270.89Типовой проект 903-1-270.89Типовой проект 903-1-270.89Типовой проект 903-1-270.89Типовой проект 903-1-270.89Типовой проект 903-1-270.89Типовой проект 903-1-270.89Типовой проект 903-1-270.89Типовой проект 903-1-270.89Типовой проект 903-1-270.89Типовой проект 903-1-270.89Типовой проект 903-1-270.89Типовой проект 903-1-270.89Типовой проект 903-1-270.89Типовой проект 903-1-270.89Типовой проект 903-1-270.89Типовой проект 903-1-270.89Типовой проект 903-1-270.89Типовой проект 903-1-270.89Типовой проект 903-1-270.89Типовой проект 903-1-270.89Типовой проект 903-1-270.89Типовой проект 903-1-270.89Типовой проект 903-1-270.89Типовой проект 903-1-270.89Типовой проект 903-1-270.89Типовой проект 903-1-270.89Типовой проект 903-1-270.89Типовой проект 903-1-270.89Типовой проект 903-1-270.89Типовой проект 903-1-270.89Типовой проект 903-1-270.89

© 2013 Ёшкин Кот :-) Карта сайта