Информационная система
«Ёшкин Кот»

Скачать базу одним архивом
Скачать обновления
История создания базы
Карта сайта

Скачать Типовой проект 902-3-14 Альбом 2. Технологическая часть. Заказные спецификации

Дата актуализации: 10.08.2017

Типовой проект 902-3-14

Альбом 2. Технологическая часть. Заказные спецификации

Обозначение: Типовой проект 902-3-14
Обозначение англ: 902-3-14
Статус:не определен законодательством
Название рус.:Альбом 2. Технологическая часть. Заказные спецификации
Дата добавления в базу:01.09.2013
Дата актуализации:05.05.2017
Дата введения:01.03.1982
Оглавление:Общие данные
Вариант с первичным отстаиванием. План
Вариант с первичным отстаиванием. Разрезы 1-1, 2-2, 3-3
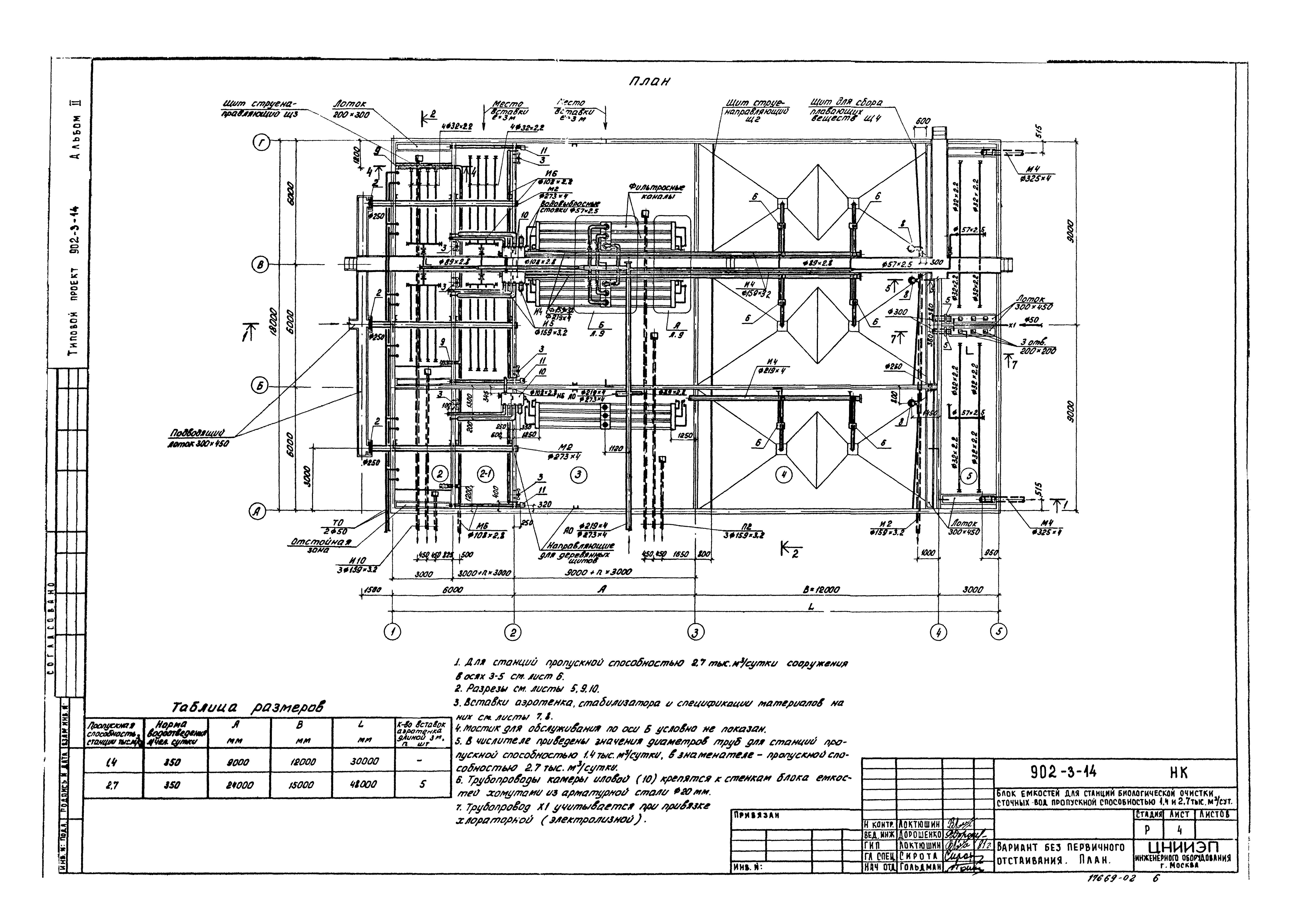
Вариант без первичного отстаивания. План
Вариант без первичного отстаивания. Разрезы 1-1, 2-2
Вторичные отстойники. План. Разрезы 1-1, 2-2
Вставка аэротенка длиной 3 м. Схема расположения фильтроносных каналов
Вставка стабилизатора длиной 3 м
Разрезы 4-4, 5-5
Узлы "А" и "Б"
Аксонометрическая схема воздуховодов (АО)
Конструкция аэраторов в стабилизаторах и контактных резервуарах
Аксонометрические схемы трубопроводов иловой камеры и обогрева стабилизаторов (ТО)
Спецификация
Заказная спецификация на насосное оборудование
Заказная спецификация на нестандартизированное оборудование. Начало
Заказная спецификация на нестандартизированное оборудование. Окончание
Заказная спецификация на арматуру. Начало
Заказная спецификация на арматуру. Окончание
Разработан: ЦНИИЭП иженерного оборудования
Утверждён:20.02.1981 Госгражданстрой (Gosgrazhdanstroy 59)
Расположен в:Техническая документация Строительство Справочные документы Типовые строительные конструкции, изделия и узлы Общероссийский строительный каталог Промышленные предприятия, здания и сооружения Здания и сооружения санитарно-технические Канализация Сооружения биологической (биохимической) очистки Станции биологической очистки сточных вод
Типовой проект 902-3-14Типовой проект 902-3-14Типовой проект 902-3-14Типовой проект 902-3-14Типовой проект 902-3-14Типовой проект 902-3-14Типовой проект 902-3-14Типовой проект 902-3-14Типовой проект 902-3-14Типовой проект 902-3-14Типовой проект 902-3-14Типовой проект 902-3-14Типовой проект 902-3-14Типовой проект 902-3-14Типовой проект 902-3-14Типовой проект 902-3-14Типовой проект 902-3-14Типовой проект 902-3-14Типовой проект 902-3-14Типовой проект 902-3-14Типовой проект 902-3-14Типовой проект 902-3-14

© 2013 Ёшкин Кот :-) Карта сайта