Информационная система
«Ёшкин Кот»

Скачать базу одним архивом
Скачать обновления
История создания базы
Карта сайта

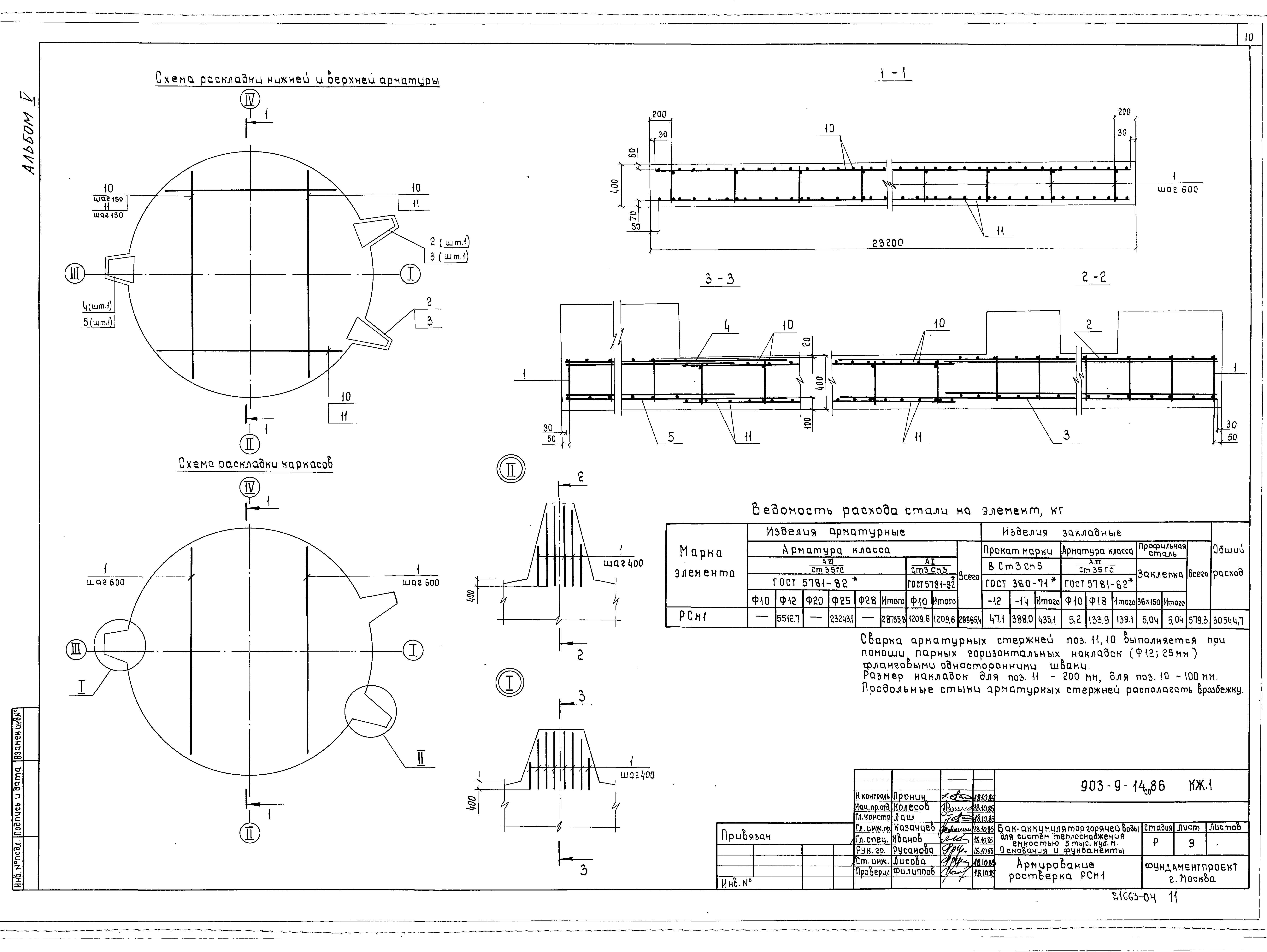
Скачать Типовой проект 903-9-14сп.86 Альбом V. Основания и фундаменты

Дата актуализации: 10.08.2017

Типовой проект 903-9-14сп.86

Альбом V. Основания и фундаменты

Обозначение: Типовой проект 903-9-14сп.86
Обозначение англ: 903-9-14сп.86
Статус:не определен законодательством
Название рус.:Альбом V. Основания и фундаменты
Дата добавления в базу:01.09.2013
Дата актуализации:05.05.2017
Дата введения:18.06.1985
Разработан: ГПИ Фундаментпроект Минмонтажспецстроя СССР
Утверждён:18.06.1985 Минэнерго СССР (USSR Minenergo 58)
Расположен в:Техническая документация Строительство Справочные документы Типовые строительные конструкции, изделия и узлы Общероссийский строительный каталог Промышленные предприятия, здания и сооружения Здания и сооружения санитарно-технические Теплоснабжение Здания и сооружения разные
Типовой проект 903-9-14сп.86Типовой проект 903-9-14сп.86Типовой проект 903-9-14сп.86Типовой проект 903-9-14сп.86Типовой проект 903-9-14сп.86Типовой проект 903-9-14сп.86Типовой проект 903-9-14сп.86Типовой проект 903-9-14сп.86Типовой проект 903-9-14сп.86Типовой проект 903-9-14сп.86Типовой проект 903-9-14сп.86Типовой проект 903-9-14сп.86Типовой проект 903-9-14сп.86Типовой проект 903-9-14сп.86Типовой проект 903-9-14сп.86Типовой проект 903-9-14сп.86Типовой проект 903-9-14сп.86Типовой проект 903-9-14сп.86Типовой проект 903-9-14сп.86

© 2013 Ёшкин Кот :-) Карта сайта