Информационная система
«Ёшкин Кот»

Скачать базу одним архивом
Скачать обновления
История создания базы
Карта сайта

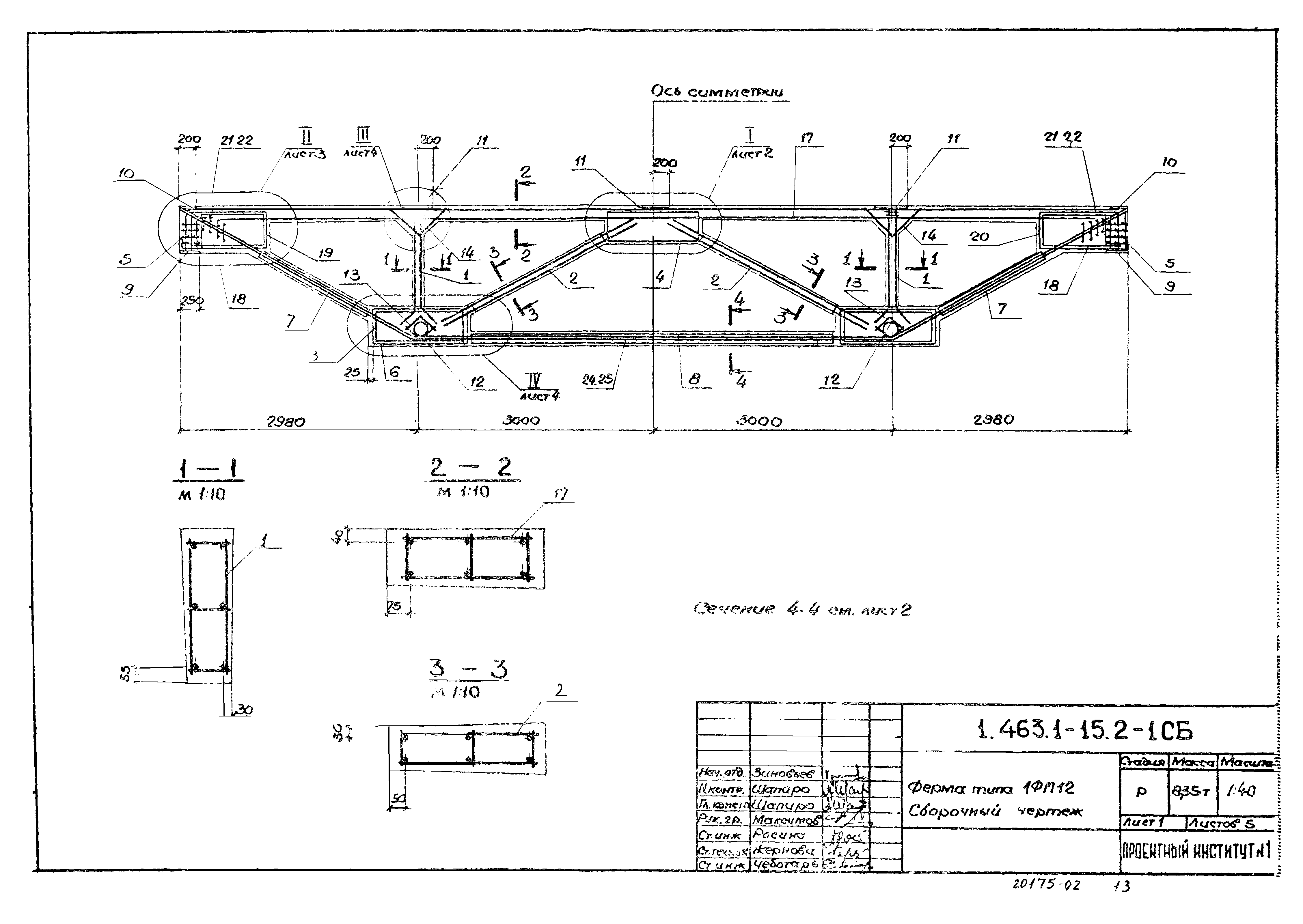
Скачать Серия 1.463.1-15 Выпуск 2. Фермы с оттянутой напрягаемой арматурой. Рабочие чертежи

Дата актуализации: 10.08.2017

Серия 1.463.1-15

Выпуск 2. Фермы с оттянутой напрягаемой арматурой. Рабочие чертежи

Обозначение: Серия 1.463.1-15
Обозначение англ: Series 1.463.1-15
Статус:не действует
Название рус.:Выпуск 2. Фермы с оттянутой напрягаемой арматурой. Рабочие чертежи
Дата добавления в базу:01.09.2013
Дата актуализации:05.05.2017
Дата введения:01.03.1985
Дата окончания срока действия:01.05.1999
Разработан: НИИЖБ
Проектный институт № 1 Госстроя СССР
Утверждён:22.11.1984 Госстрой СССР (Государственный комитет Совета Министров СССР по делам строительства) (USSR Gosstroy 191)
Расположен в:Техническая документация Строительство Справочные документы Типовые строительные конструкции, изделия и узлы Общероссийский строительный каталог Строительные конструкции, изделия и узлы зданий и сооружений для всех видов строительства Конструкции, изделия и узлы зданий Несущие конструкции одноэтажных зданий Стропильные и подстропильные конструкции Фермы Железобетонные
Серия 1.463.1-15Серия 1.463.1-15Серия 1.463.1-15Серия 1.463.1-15Серия 1.463.1-15Серия 1.463.1-15Серия 1.463.1-15Серия 1.463.1-15Серия 1.463.1-15Серия 1.463.1-15Серия 1.463.1-15Серия 1.463.1-15Серия 1.463.1-15Серия 1.463.1-15Серия 1.463.1-15Серия 1.463.1-15Серия 1.463.1-15Серия 1.463.1-15Серия 1.463.1-15Серия 1.463.1-15Серия 1.463.1-15Серия 1.463.1-15Серия 1.463.1-15Серия 1.463.1-15Серия 1.463.1-15Серия 1.463.1-15Серия 1.463.1-15Серия 1.463.1-15Серия 1.463.1-15Серия 1.463.1-15Серия 1.463.1-15Серия 1.463.1-15Серия 1.463.1-15Серия 1.463.1-15Серия 1.463.1-15Серия 1.463.1-15Серия 1.463.1-15Серия 1.463.1-15Серия 1.463.1-15Серия 1.463.1-15Серия 1.463.1-15Серия 1.463.1-15Серия 1.463.1-15Серия 1.463.1-15Серия 1.463.1-15Серия 1.463.1-15Серия 1.463.1-15Серия 1.463.1-15Серия 1.463.1-15Серия 1.463.1-15Серия 1.463.1-15

© 2013 Ёшкин Кот :-) Карта сайта