Информационная система
«Ёшкин Кот»

Скачать базу одним архивом
Скачать обновления
История создания базы
Карта сайта

Скачать Серия 1.425.1-1 Выпуск 1. Указания по применению

Дата актуализации: 10.08.2017

Серия 1.425.1-1

Выпуск 1. Указания по применению

Обозначение: Серия 1.425.1-1
Обозначение англ: Series 1.425.1-1
Статус:отменен
Название рус.:Выпуск 1. Указания по применению
Дата добавления в базу:01.10.2014
Дата актуализации:05.05.2017
Дата введения:01.05.1999
Оглавление:1.425.1-1.1 0.00ПЗ Пояснительная записка
1.425.1-1.1 0.00НИ Номенклатура изделий
1.425.1-1.1 1.00 Схема раскладки асбестоцементных листов с креплением к железобетонным ригелям РТ
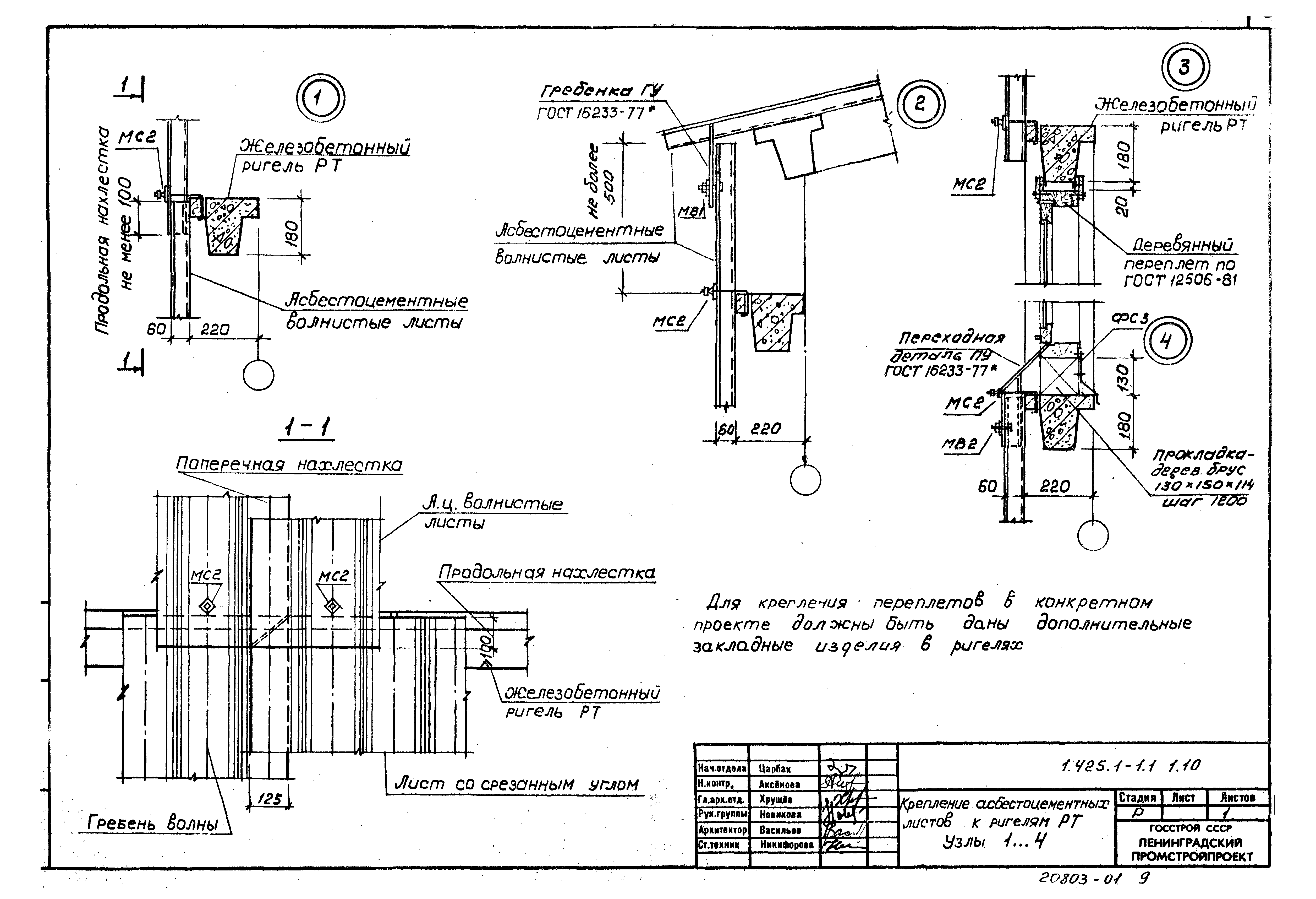
1.425.1-1.1 1.10 Крепление асбестоцементных листов к ригелям РТ. Узлы 1…4
1.425.1-1.1 1.20 Крепление асбестоцементных листов к ригелям РТ. Узлы 5…8
1.425.1-1.1 1.30 Схема расположения ригелей РТ по продольному фахверку и крепление ригелей к колоннам. Узлы 9, 10
1.425.1-1.1 1.40 Спецификация к узлам 1…10
1.425.1-1.1 2.00 Схема раскладки асбестоцементных листов с креплением к железобетонным ригелям РП
1.425.1-1.1 2.10 Крепление асбестоцементных листов к ригелям РП. Узлы 11…14
1.425.1-1.1 2.20 Крепление асбестоцементных листов к ригелям РП. Узлы 15…18
1.425.1-1.1 2.30 Схема расположения ригелей РП по продольному фахверку и крепление ригелей к колоннам. Узлы 19, 20
1.425.1-1.1 2.40 Спецификация к узлам 11…20
1.425.1-1.1 0.10РМ1 Ведомость расхода материалов ригеля РТ
1.425.1-1.1 0.20РМ1 Ведомость расхода материалов ригеля РП
1.425.1-1.1 0.10РМ2 Ведомость расхода цемента и инертных материалов ригеля РТ
1.425.1-1.1 0.20РМ2 Ведомость расхода цемента и инертных материалов ригеля РП
Разработан: Ленинградский Промстройпроект
НИИЖБ
Утверждён:28.06.1985 Главоргпроект Госстроя СССР (2/3-336)
Расположен в:Техническая документация Строительство Справочные документы Типовые строительные конструкции, изделия и узлы Общероссийский строительный каталог Строительные конструкции, изделия и узлы зданий и сооружений для всех видов строительства Конструкции, изделия и узлы зданий Несущие конструкции двухэтажных и многоэтажных зданий Каркасные здания
Серия 1.425.1-1Серия 1.425.1-1Серия 1.425.1-1Серия 1.425.1-1Серия 1.425.1-1Серия 1.425.1-1Серия 1.425.1-1Серия 1.425.1-1Серия 1.425.1-1Серия 1.425.1-1Серия 1.425.1-1Серия 1.425.1-1Серия 1.425.1-1Серия 1.425.1-1Серия 1.425.1-1Серия 1.425.1-1Серия 1.425.1-1Серия 1.425.1-1Серия 1.425.1-1Серия 1.425.1-1Серия 1.425.1-1

© 2013 Ёшкин Кот :-) Карта сайта