| ||||||||||||||||||||||||||||||
Скачать Серия ИИ-04-4 Выпуск 20. Панели многопустотные и ребристые длиной 276 см, армированные сварными сетками и каркасами из стали класса А-III. Рабочие чертежиДата актуализации: 10.08.2017
|
| Обозначение: | Серия ИИ-04-4 |
| Обозначение англ: | Series ИИ-04-4 |
| Статус: | не действует |
| Название рус.: | Выпуск 20. Панели многопустотные и ребристые длиной 276 см, армированные сварными сетками и каркасами из стали класса А-III. Рабочие чертежи |
| Дата добавления в базу: | 01.09.2013 |
| Дата актуализации: | 05.05.2017 |
| Дата введения: | 01.10.1973 |
| Дата окончания срока действия: | 01.04.1982 |
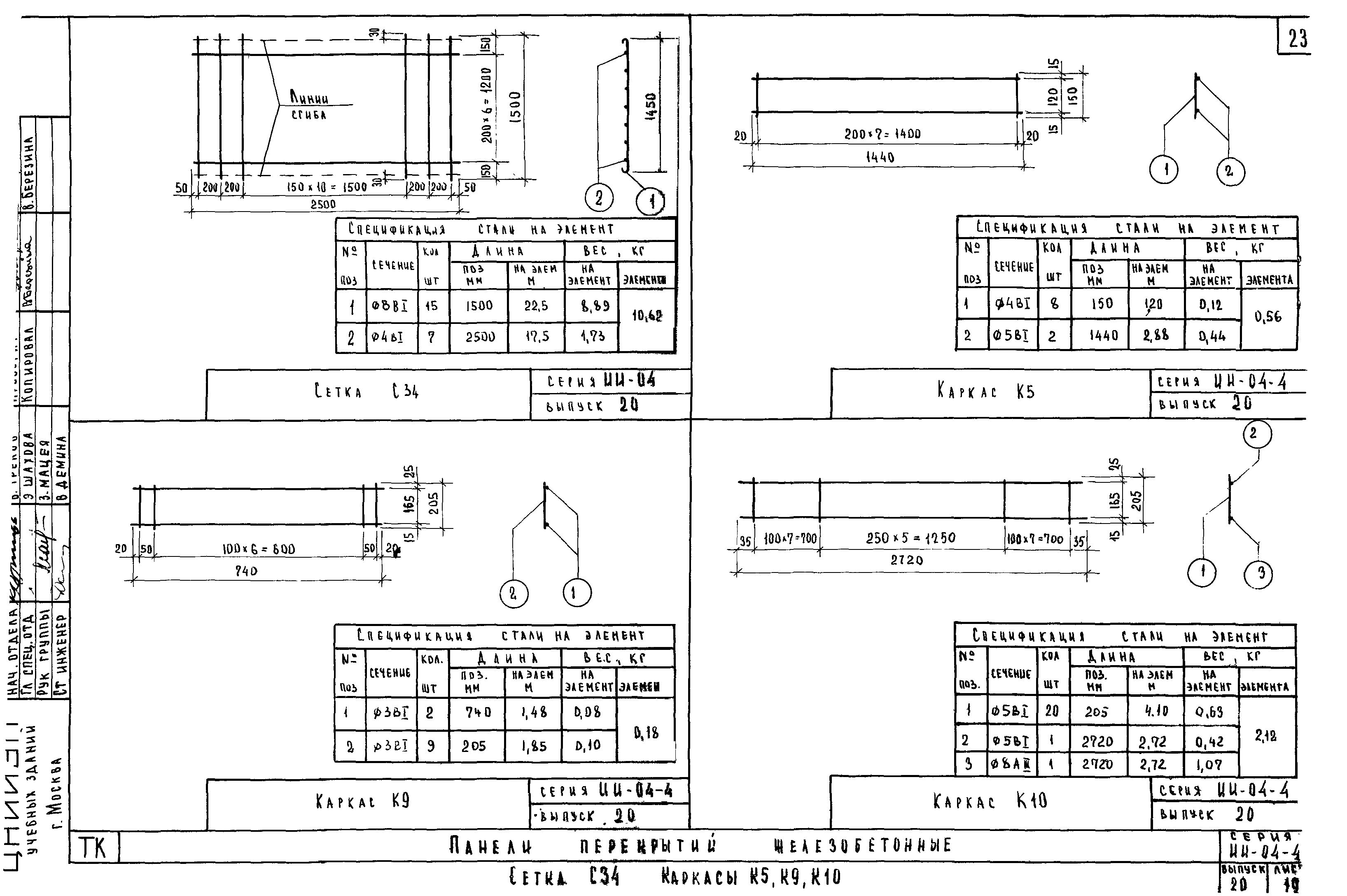
| Оглавление: | ИИ-04-4 Содержание ИИ-04-4 Пояснительная записка ИИ-04-4 Номенклатура ИИ-04-4 Панель ПК8-28.15. Опалубочный чертеж. Армирование ИИ-04-4 Панель ПК12.5-28.15. Опалубочный чертеж. Армирование ИИ-04-4 Панель ПК8-28.12. Опалубочный чертеж. Армирование ИИ-04-4 Панель ПК12.5-28.12. Опалубочный чертеж. Армирование ИИ-04-4 Панель ПК8-28.15с. Опалубочный чертеж. Армирование ИИ-04-4 Панель ПК12.5-28.15с. Опалубочный чертеж. Армирование ИИ-04-4 Панель ПК8-28.15с. Опалубочный чертеж. Армирование ИИ-04-4 Панель ПК12.5-28.15с. Опалубочный чертеж. Армирование ИИ-04-4 Панель ПК8-28.15п. Опалубочный чертеж. Армирование ИИ-04-4 Панель ПК12.5-28.15п. Опалубочный чертеж. Армирование ИИ-04-4 Опалубочные сечения панелей ИИ-04-4 Деталь 1. Сечение 1-1 ИИ-04-4 Узлы 1 и 2. Деталь установки петли в многопустотной панели. Деталь расположения арматуры в среднем ребре многопустотной панели ИИ-04-4 Узел 3 ИИ-04-4 Сетки С22-С25 ИИ-04-4 Сетки С23-С29 ИИ-04-4 Сетки С30-С33 ИИ-04-4 Сетка34. Каркасы К5,К9,К10 ИИ-04-4 Каркасы К11-К14 ИИ-04-4 Петли П3,П4. Отдельный стержень ОС2. Приложение ИИ-04-4 Данные для испытаний панелей по прочности ИИ-04-4 Данные для испытаний панелей по трещиностойкости и по жесткости |
| Разработан: | НИИЖБ Госстроя СССР ЦНИИЭП учебных зданий Госгражданстроя |
| Утверждён: | 13.08.1973 Государственный комитет по гражданскому строительству и архитектуре при Госстрое СССР (173) |
| Расположен в: | |
| Чем заменён: |



























