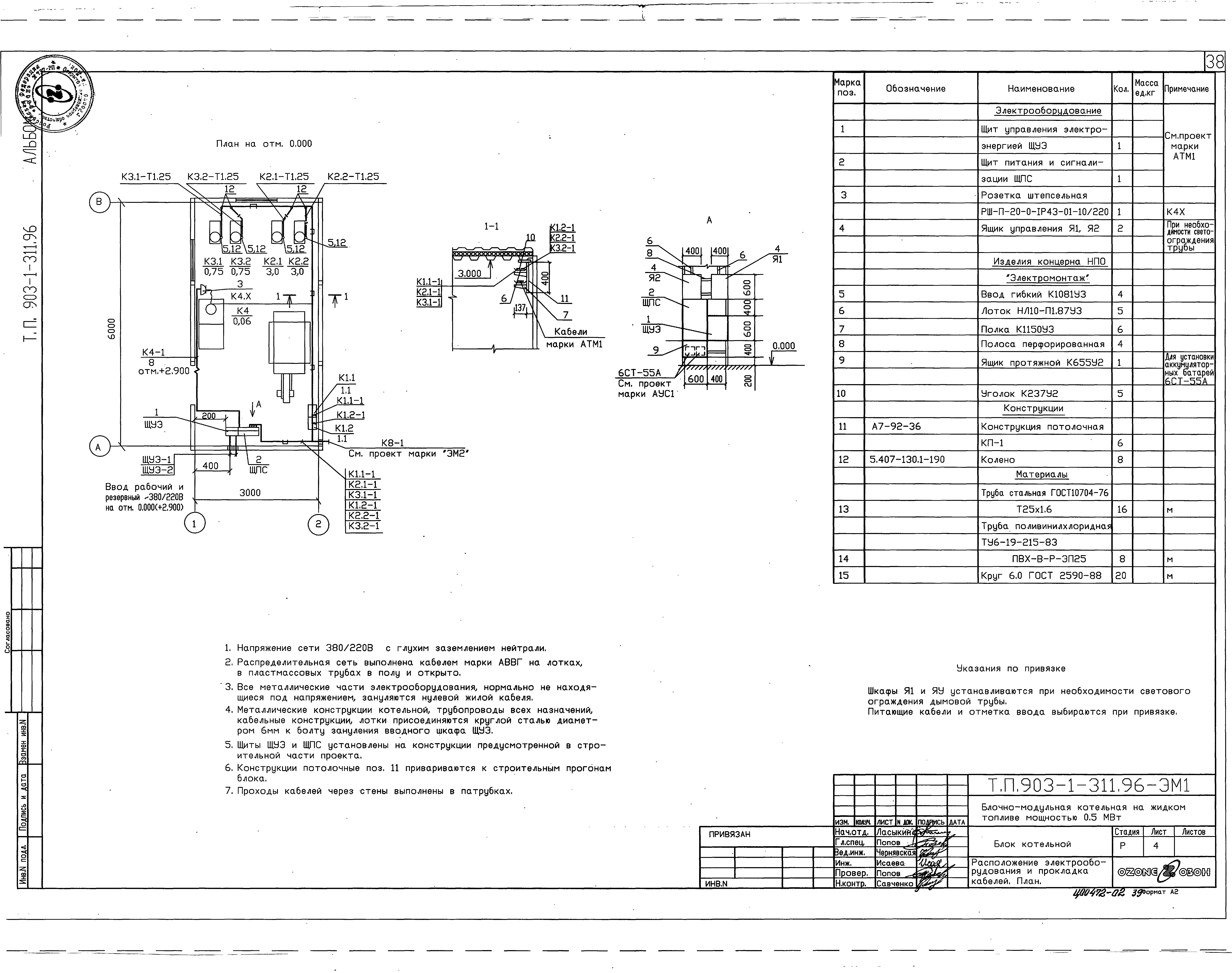
Скачать Типовой проект 903-1-311.96 Альбом 2. Блок котельнойДата актуализации: 10.08.2017 Типовой проект 903-1-311.96
Альбом 2. Блок котельнойОбозначение: | Типовой проект 903-1-311.96 | Обозначение англ: | 903-1-311.96 | Статус: | не определен законодательством | Название рус.: | Альбом 2. Блок котельной | Дата добавления в базу: | 01.09.2013 | Дата актуализации: | 05.05.2017 | Дата введения: | 02.09.1996 | Разработан: | АО ОЗОН
| Утверждён: | 27.08.1996 Комитет РФ по химической и нефтехимической промышленности (09/1-11-97)
| Расположен в: |
|
                                                  
|