Информационная система
«Ёшкин Кот»

Скачать базу одним архивом
Скачать обновления
История создания базы
Карта сайта

Скачать Типовые материалы для проектирования 904-02-35.88 Альбом 5. Строительные задания на секции кондиционеров модификаций базовой схемы 4

Дата актуализации: 10.08.2017

Типовые материалы для проектирования 904-02-35.88

Альбом 5. Строительные задания на секции кондиционеров модификаций базовой схемы 4

Обозначение: Типовые материалы для проектирования 904-02-35.88
Обозначение англ: 904-02-35.88
Статус:cправочные материалы, мп, тпр
Название рус.:Альбом 5. Строительные задания на секции кондиционеров модификаций базовой схемы 4
Дата добавления в базу:01.09.2013
Дата актуализации:05.05.2017
Дата введения:01.03.1989
Оглавление:Содержание альбома
КТЦ3-10. Компоновка 51
КТЦ3-20. Компоновка 51
КТЦ3-31,5. Компоновка 51
КТЦ3-40. Компоновка 51
КТЦ3-63. Компоновка 51
КТЦ3-80. Компоновка 51
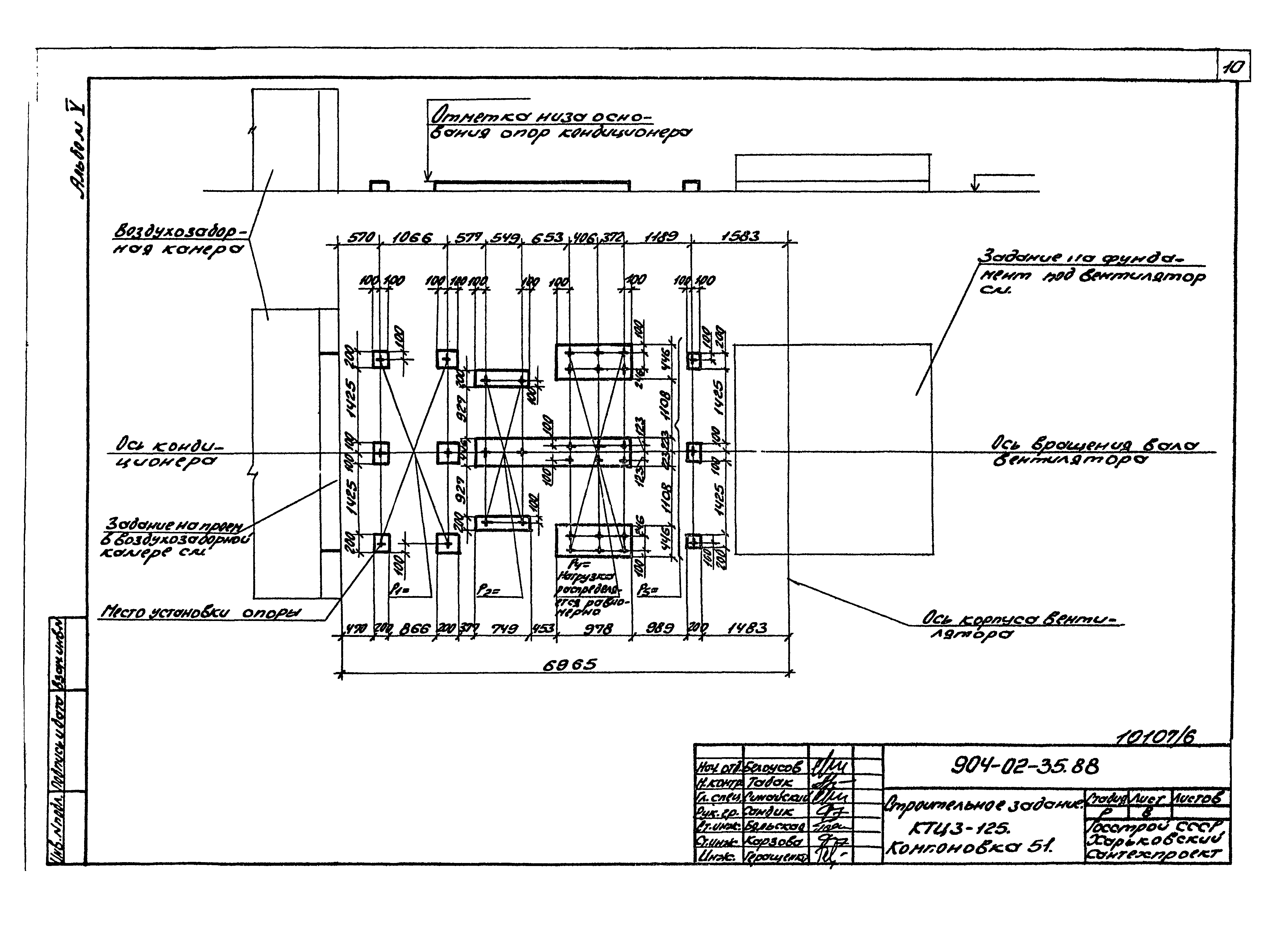
КТЦ3-125. Компоновка 51
КТЦ3-160. Компоновка 51
КТЦ3-200. Компоновка 51
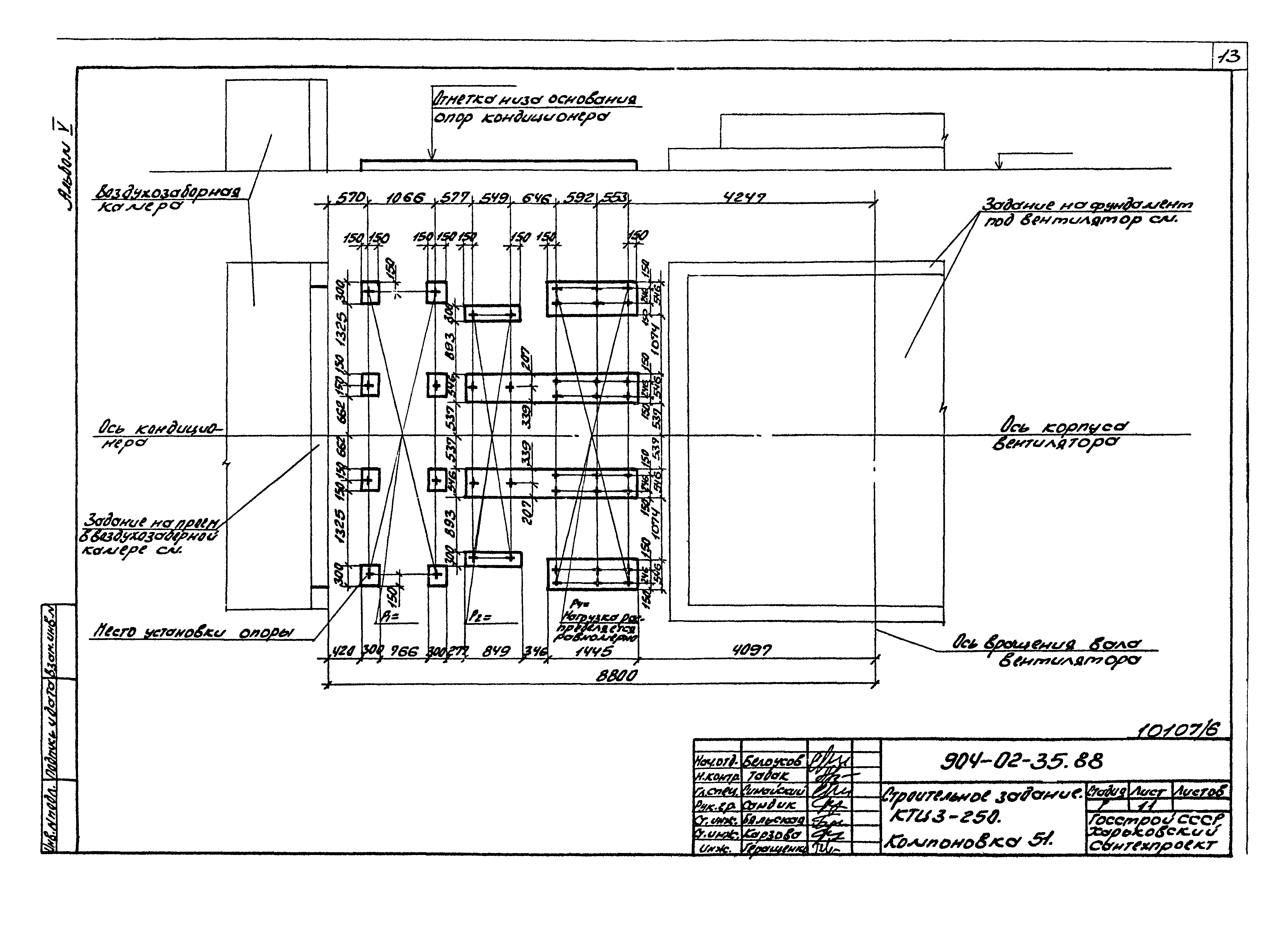
КТЦ3-250. Компоновка 51
КТЦ3-10. Компоновка 52
КТЦ3-20. Компоновка 52
КТЦ3-31,5. Компоновка 52
КТЦ3-40. Компоновка 52
КТЦ3-63. Компоновка 52
КТЦ3-80. Компоновка 52
КТЦ3-125. Компоновка 52
КТЦ3-160. Компоновка 52
КТЦ3-200. Компоновка 52
КТЦ3-250. Компоновка 52
таблица размеров и нагрузок
Разработан: Харьковский Сантехпроект
Утверждён:14.10.1988 Главпроект Госстроя России (70)
Расположен в:Техническая документация Строительство Справочные документы Типовые строительные конструкции, изделия и узлы Общероссийский строительный каталог Промышленные предприятия, здания и сооружения Здания и сооружения санитарно-технические Воздухоснабжение, вентиляция и кондиционирование воздуха Вентиляция, кондиционирование воздуха
Типовые материалы для проектирования 904-02-35.88Типовые материалы для проектирования 904-02-35.88Типовые материалы для проектирования 904-02-35.88Типовые материалы для проектирования 904-02-35.88Типовые материалы для проектирования 904-02-35.88Типовые материалы для проектирования 904-02-35.88Типовые материалы для проектирования 904-02-35.88Типовые материалы для проектирования 904-02-35.88Типовые материалы для проектирования 904-02-35.88Типовые материалы для проектирования 904-02-35.88Типовые материалы для проектирования 904-02-35.88Типовые материалы для проектирования 904-02-35.88Типовые материалы для проектирования 904-02-35.88Типовые материалы для проектирования 904-02-35.88Типовые материалы для проектирования 904-02-35.88Типовые материалы для проектирования 904-02-35.88Типовые материалы для проектирования 904-02-35.88Типовые материалы для проектирования 904-02-35.88Типовые материалы для проектирования 904-02-35.88Типовые материалы для проектирования 904-02-35.88Типовые материалы для проектирования 904-02-35.88Типовые материалы для проектирования 904-02-35.88Типовые материалы для проектирования 904-02-35.88Типовые материалы для проектирования 904-02-35.88Типовые материалы для проектирования 904-02-35.88Типовые материалы для проектирования 904-02-35.88

© 2013 Ёшкин Кот :-) Карта сайта