Информационная система
«Ёшкин Кот»

Скачать базу одним архивом
Скачать обновления
История создания базы
Карта сайта

Скачать Типовые материалы для проектирования 904-02-35.88 Альбом 4. Часть 1. Строительные задания на секции кондиционеров модификаций базовой схемы 3

Дата актуализации: 10.08.2017

Типовые материалы для проектирования 904-02-35.88

Альбом 4. Часть 1. Строительные задания на секции кондиционеров модификаций базовой схемы 3

Обозначение: Типовые материалы для проектирования 904-02-35.88
Обозначение англ: 904-02-35.88
Статус:cправочные материалы, мп, тпр
Название рус.:Альбом 4. Часть 1. Строительные задания на секции кондиционеров модификаций базовой схемы 3
Дата добавления в базу:01.09.2013
Дата актуализации:05.05.2017
Дата введения:01.03.1989
Оглавление:Содержание альбома
КТЦ3-10. Компоновки 19, 56
КТЦ3-20. Компоновки 19, 56
КТЦ3-31,5. Компоновки 19, 56
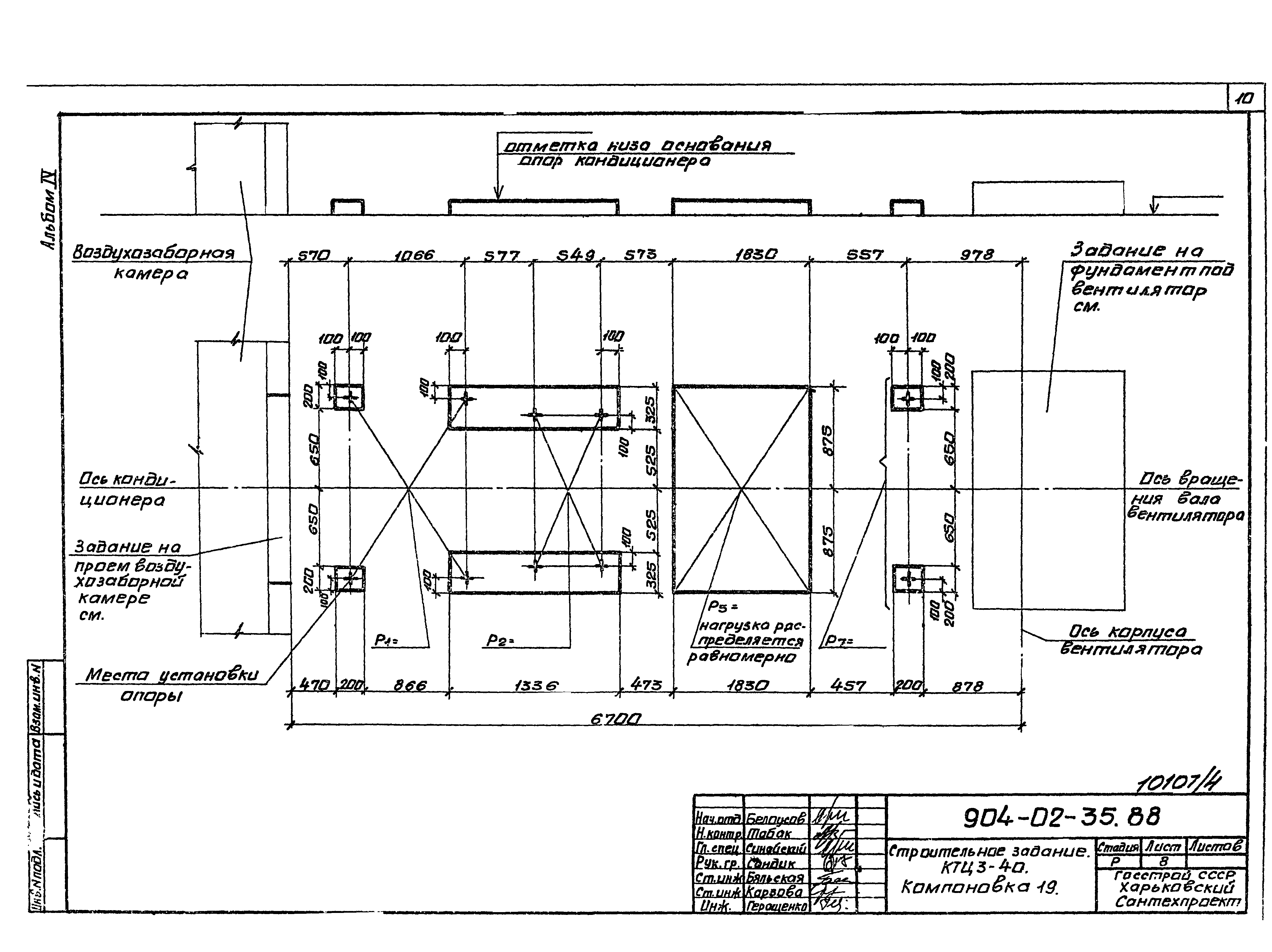
КТЦ3-40. Компоновка 19
КТЦ3-63. Компоновки 19, 20, 56
КТЦ3-80. Компоновки 19, 56
КТЦ3-125. Компоновки 19, 20
КТЦ3-160. Компоновка 19
КТЦ3-200. Компоновки 19, 56
КТЦ3-250. Компоновка 19
КТЦ3-80. Компоновка 20
КТЦ3-160. Компоновка 20
КТЦ3-250. Компоновка 20
КТЦ3-10. Компоновка 21
КТЦ3-20. Компоновка 21
КТЦ3-31.5. Компоновка 21
КТЦ3-40. Компоновка 21
КТЦ3-63. Компоновки 21, 22
КТЦ3-80. Компоновка 21
КТЦ3-125. Компоновки 21, 22
КТЦ3-160. Компоновка 21
КТЦ3-200. Компоновки 21, 22
КТЦ3-250. Компоновка 21
КТЦ3-80. Компоновка 22
КТЦ3-160. Компоновка 22
КТЦ3-250. Компоновка 22
КТЦ3-10. Компоновки 23, 25, 57
КТЦ3-20. Компоновки 23, 25, 57
КТЦ3-31,5. Компоновки 23, 25, 57
КТЦ3-40. Компоновка 23
КТЦ3-63. Компоновки 23…25, 57
КТЦ3-80. Компоновки 23, 57
КТЦ3-125. Компоновки 23…25
КТЦ3-160. Компоновка 23
КТЦ3-200. Компоновки 23…25
КТЦ3-250. Компоновка 23
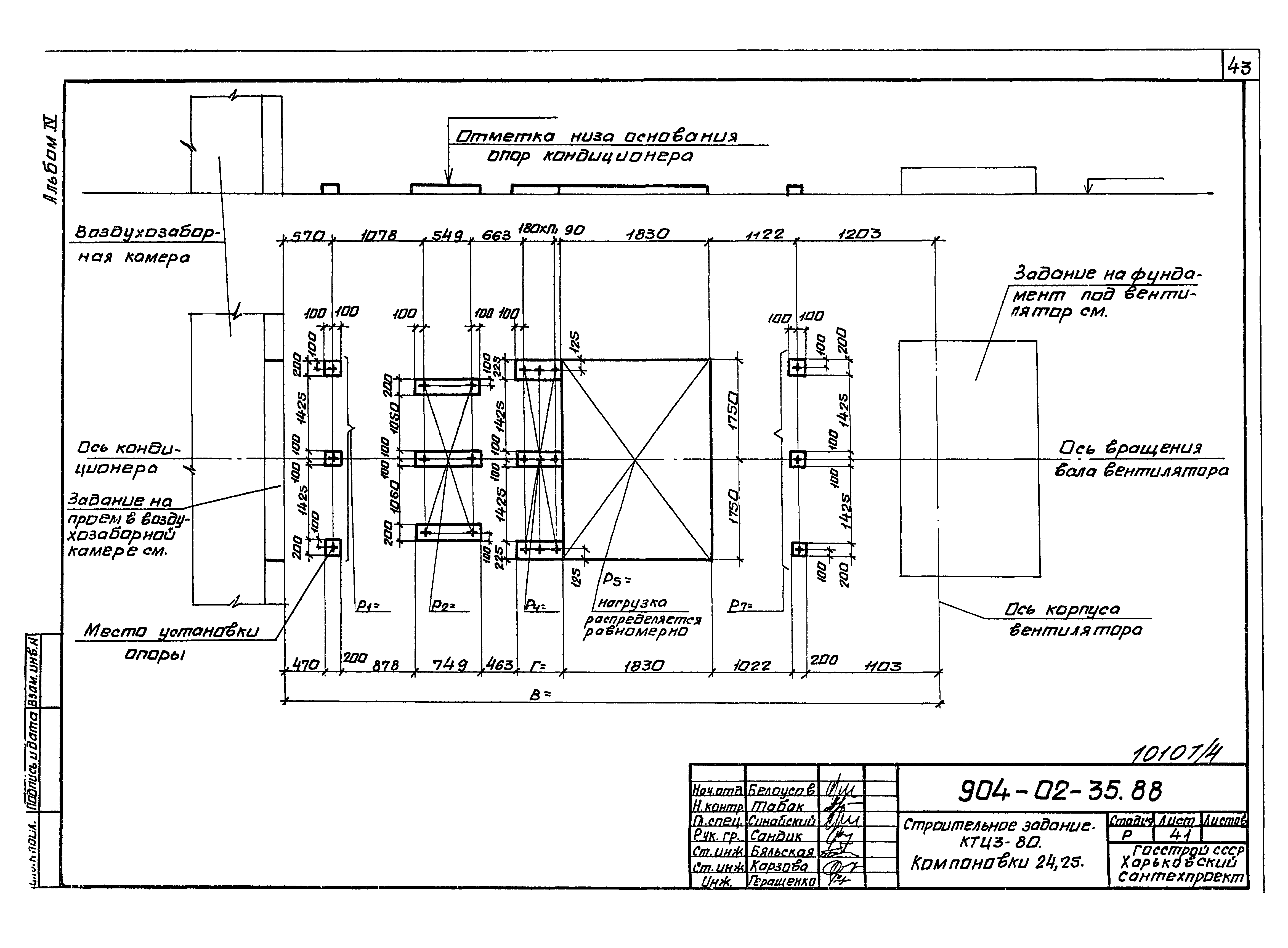
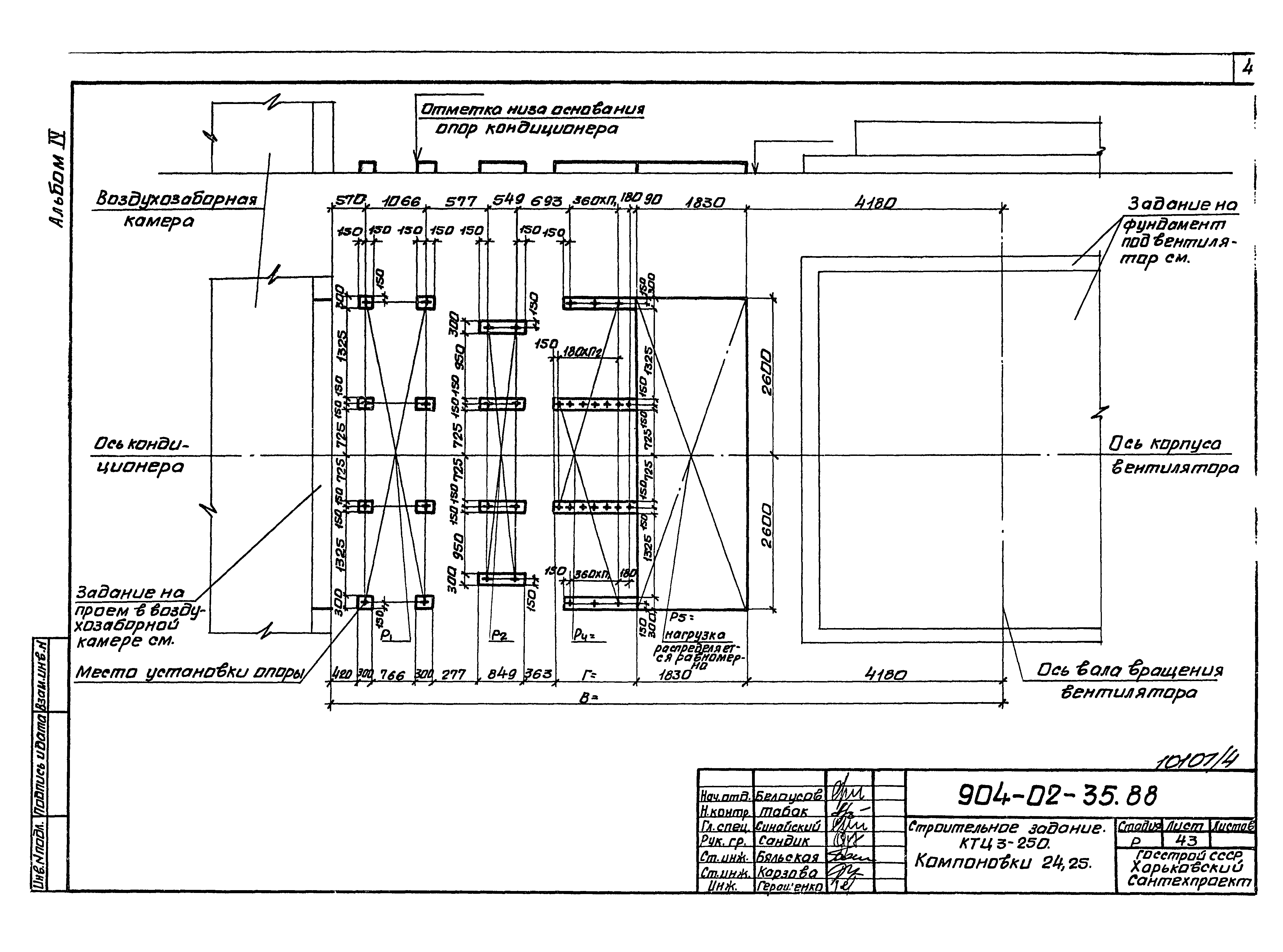
КТЦ3-80. Компоновки 24, 25
КТЦ3-160. Компоновки 24, 25
КТЦ3-250. Компоновки 24, 25
КТЦ3-40. Компоновка 25
КТЦ3-10. Компоновки 26, 28
КТЦ3-20. Компоновки 26, 28
КТЦ3-31,5. Компоновки 26, 28
КТЦ3-40. Компоновка 26
КТЦ3-63. Компоновки 26...28
КТЦ3-80. Компоновка 26
КТЦ3-125. Компоновки 26...28
КТЦ3-160. Компоновка 26
КТЦ3-200. Компоновки 26...28
КТЦ3-250. Компоновка 26
КТЦ3-80. Компоновки 27, 28
КТЦ3-160. Компоновки 27, 28
КТЦ3-250. Компоновки 27, 28
КТЦ3-40. Компоновка 28
КТЦ3-10. Компоновки 29, 58
КТЦ3-20. Компоновки 29, 58
КТЦ3-31,5. Компоновки 29, 58
КТЦ3-40. Компоновки 29, 58
КТЦ3-63. Компоновки 29, 30, 58
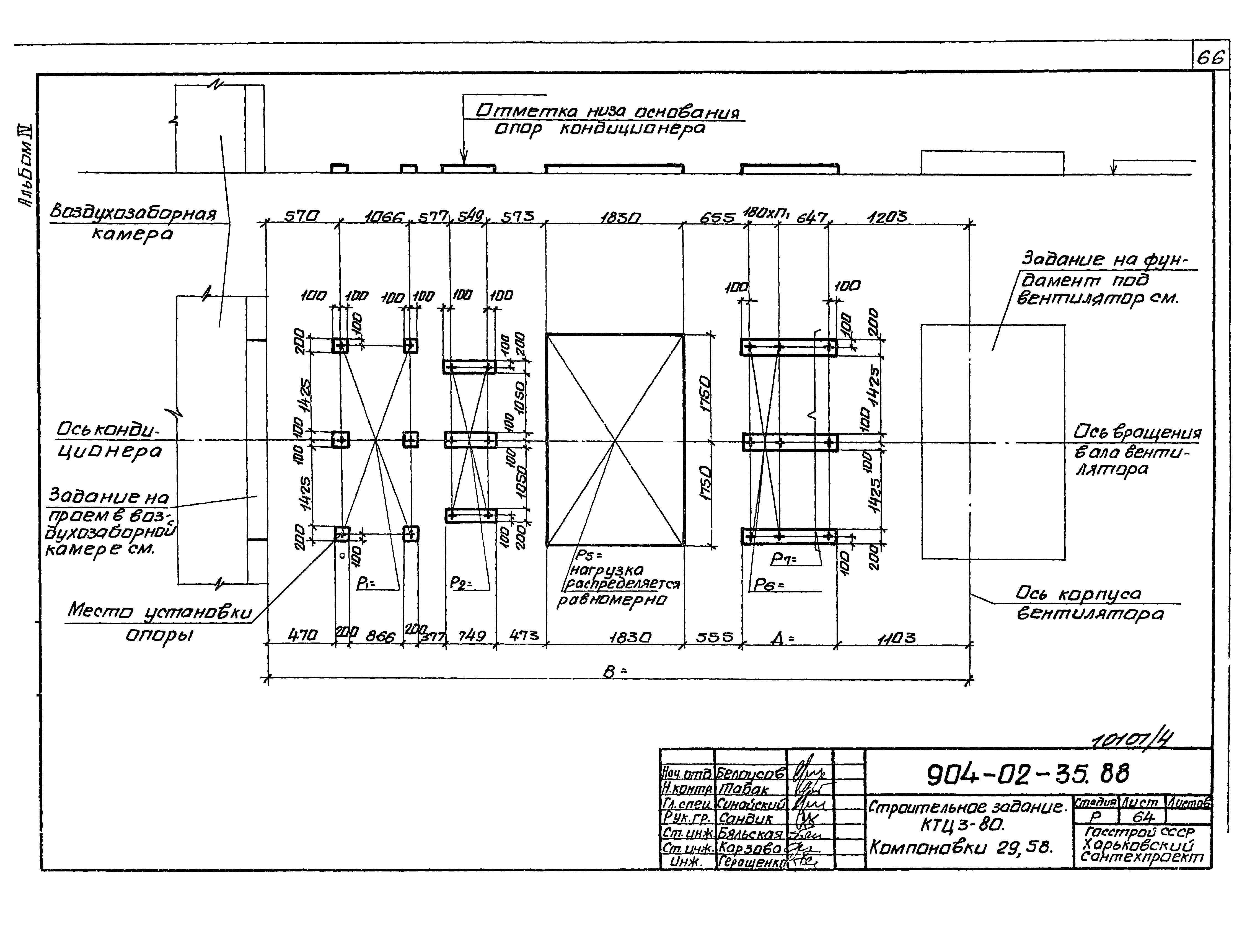
КТЦ3-80. Компоновки 29, 58
КТЦ3-125. Компоновки 29, 30
КТЦ3-160. Компоновки 29, 58
КТЦ3-200. Компоновки 29, 30
КТЦ3-250. Компоновки 29, 58
КТЦ3-80. Компоновка 30
КТЦ3-160. Компоновка 30
КТЦ3-250. Компоновка 30
КТЦ3-10. Компоновка 31
КТЦ3-20. Компоновка 31
КТЦ3-31,5. Компоновка 31
КТЦ3-40. Компоновка 31
КТЦ3-63. Компоновки 31, 32
КТЦ3-80. Компоновка 31
КТЦ3-125. Компоновки 31, 32
КТЦ3-160. Компоновка 31
КТЦ3-200. Компоновки 31, 32
КТЦ3-250. Компоновка 31
КТЦ3-80. Компоновка 32
КТЦ3-160. Компоновка 32
КТЦ3-250. Компоновка 32
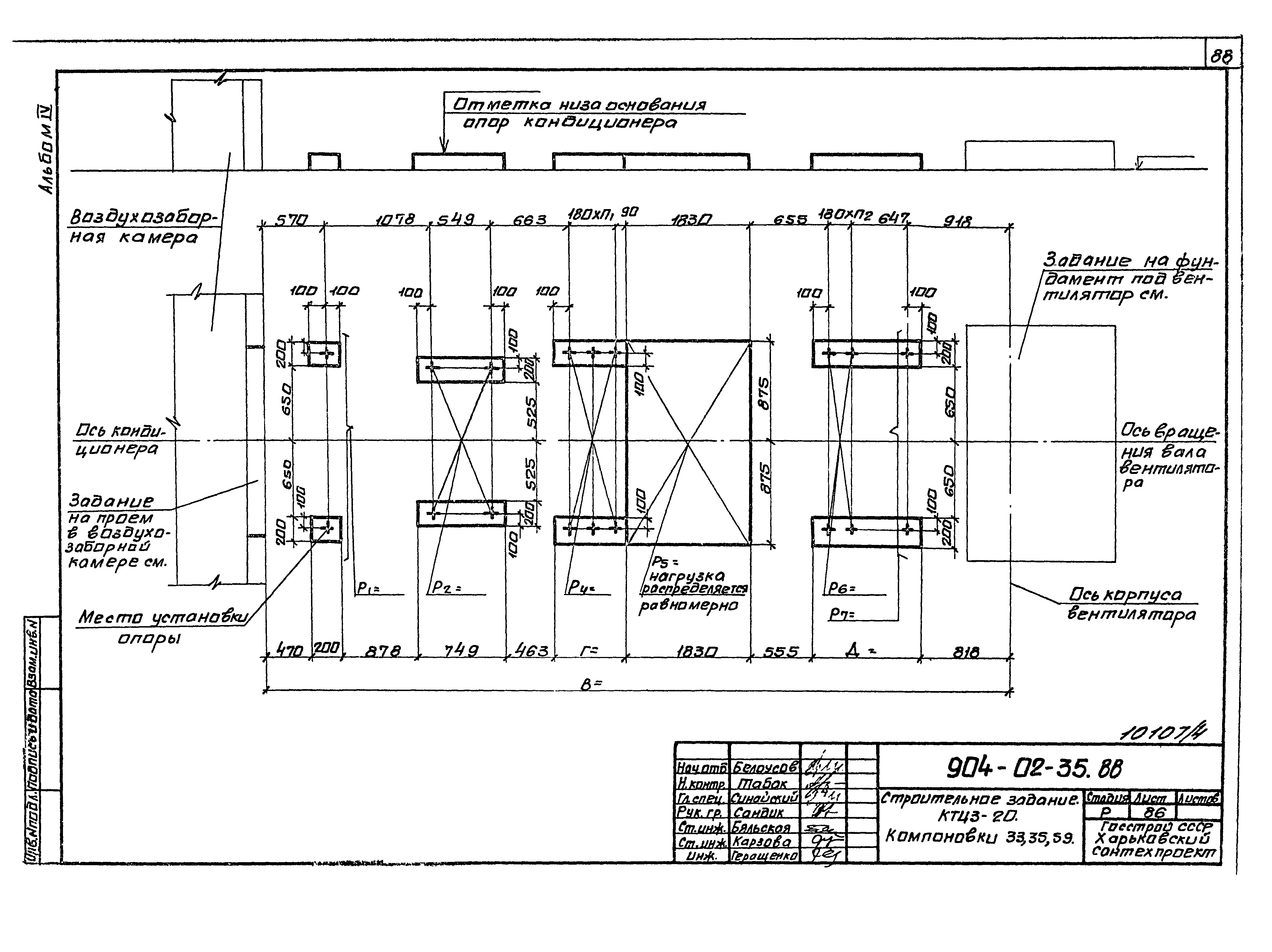
КТЦ3-10. Компоновки 33, 35, 59
КТЦ3-20. Компоновки 33, 35, 59
КТЦ3-31,5. Компоновки 33, 35, 59
КТЦ3-40. Компоновки 33, 59
КТЦ3-63. Компоновки 33...35, 59
КТЦ3-80. Компоновки 33, 59
КТЦ3-125. Компоновки 33...35
КТЦ3-160. Компоновки 33, 59
КТЦ3-200. Компоновки 33...35
КТЦ3-250. Компоновки 33, 59
КТЦ3-80. Компоновки 34, 35
КТЦ3-160. Компоновки 34, 35
КТЦ3-250. Компоновки 34, 35
КТЦ3-40. Компоновка 35
КТЦ3-10. Компоновки 36, 38
КТЦ3-20. Компоновки 36, 38
КТЦ3-31,5. Компоновки 36, 38
КТЦ3-40. Компоновка 36
КТЦ3-63. Компоновки 36, 38
КТЦ3-80. Компоновка 36
КТЦ3-125. Компоновки 36, 38
КТЦ3-160. Компоновка 36
КТЦ3-200. Компоновки 36, 38
КТЦ3-250. Компоновка 36
КТЦ3-80. Компоновки 37, 38
КТЦ3-160. Компоновки 37, 38
КТЦ3-250. Компоновки 37, 38
КТЦ3-40. Компоновка 38
КТЦ3-10. Компоновки 39, 41, 60
КТЦ3-20. Компоновки 39, 41, 60
КТЦ3-31,5. Компоновки 39, 41, 60
КТЦ3-40. Компоновка 39
КТЦ3-63. Компоновки 39...41, 60
КТЦ3-80. Компоновки 39, 60
КТЦ3-125. Компоновки 39...41
КТЦ3-160. Компоновка 39
КТЦ3-200. Компоновки 39...41
КТЦ3-250. Компоновка 39
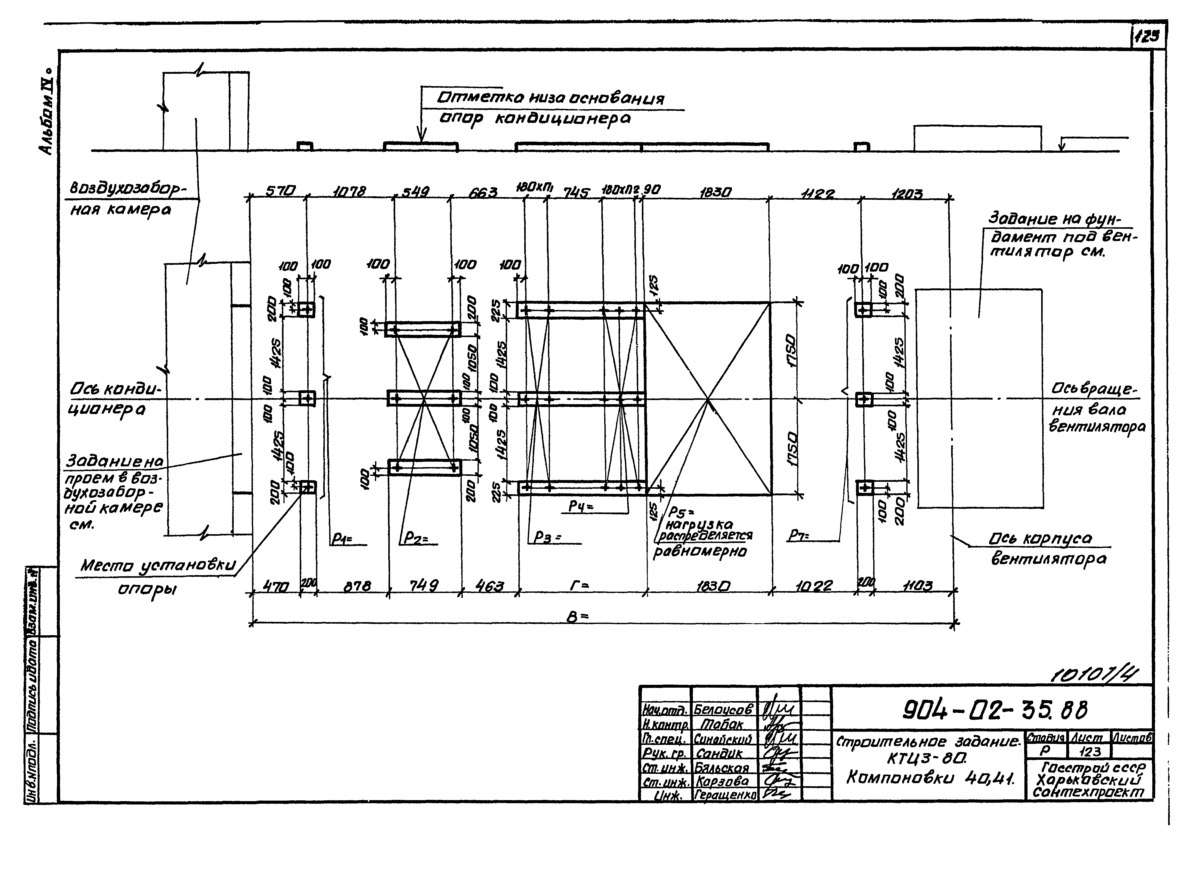
КТЦ3-80. Компоновки 40, 41
КТЦ3-160. Компоновки 40, 41
КТЦ3-250. Компоновки 40, 41
КТЦ3-40. Компоновка 41
КТЦ3-10. Компоновки 42, 44
КТЦ3-20. Компоновки 42, 44
КТЦ3-31,5. Компоновки 42, 44
КТЦ3-40. Компоновка 42
КТЦ3-63. Компоновки 42…44
КТЦ3-80. Компоновка 42
КТЦ3-125. Компоновки 42…44
КТЦ3-160. Компоновка 42
КТЦ3-200. Компоновки 42…44
КТЦ3-250. Компоновка 42
КТЦ3-80. Компоновки 43, 44
КТЦ3-160. Компоновки 43, 44
КТЦ3-250. Компоновки 43, 44
КТЦ3-40. Компоновка 44
КТЦ3-10. Компоновки 45, 47, 61
КТЦ3-20. Компоновки 45, 47, 61
КТЦ3-31,5. Компоновки 45, 47, 61
КТЦ3-40. Компоновки 45, 61
КТЦ3-63. Компоновки 45...47, 61
КТЦ3-80. Компоновки 45, 61
КТЦ3-125. Компоновки 45...47
КТЦ3-160. Компоновки 45, 61
КТЦ3-200. Компоновки 45...47
КТЦ3-250. Компоновки 45, 61
Разработан: Харьковский Сантехпроект
Утверждён:14.10.1988 Главпроект Госстроя России (70)
Расположен в:Техническая документация Строительство Справочные документы Типовые строительные конструкции, изделия и узлы Общероссийский строительный каталог Промышленные предприятия, здания и сооружения Здания и сооружения санитарно-технические Воздухоснабжение, вентиляция и кондиционирование воздуха Вентиляция, кондиционирование воздуха
Типовые материалы для проектирования 904-02-35.88Типовые материалы для проектирования 904-02-35.88Типовые материалы для проектирования 904-02-35.88Типовые материалы для проектирования 904-02-35.88Типовые материалы для проектирования 904-02-35.88Типовые материалы для проектирования 904-02-35.88Типовые материалы для проектирования 904-02-35.88Типовые материалы для проектирования 904-02-35.88Типовые материалы для проектирования 904-02-35.88Типовые материалы для проектирования 904-02-35.88Типовые материалы для проектирования 904-02-35.88Типовые материалы для проектирования 904-02-35.88Типовые материалы для проектирования 904-02-35.88Типовые материалы для проектирования 904-02-35.88Типовые материалы для проектирования 904-02-35.88Типовые материалы для проектирования 904-02-35.88Типовые материалы для проектирования 904-02-35.88Типовые материалы для проектирования 904-02-35.88Типовые материалы для проектирования 904-02-35.88Типовые материалы для проектирования 904-02-35.88Типовые материалы для проектирования 904-02-35.88Типовые материалы для проектирования 904-02-35.88Типовые материалы для проектирования 904-02-35.88Типовые материалы для проектирования 904-02-35.88Типовые материалы для проектирования 904-02-35.88Типовые материалы для проектирования 904-02-35.88Типовые материалы для проектирования 904-02-35.88Типовые материалы для проектирования 904-02-35.88Типовые материалы для проектирования 904-02-35.88Типовые материалы для проектирования 904-02-35.88Типовые материалы для проектирования 904-02-35.88Типовые материалы для проектирования 904-02-35.88Типовые материалы для проектирования 904-02-35.88Типовые материалы для проектирования 904-02-35.88Типовые материалы для проектирования 904-02-35.88Типовые материалы для проектирования 904-02-35.88Типовые материалы для проектирования 904-02-35.88Типовые материалы для проектирования 904-02-35.88Типовые материалы для проектирования 904-02-35.88Типовые материалы для проектирования 904-02-35.88Типовые материалы для проектирования 904-02-35.88Типовые материалы для проектирования 904-02-35.88Типовые материалы для проектирования 904-02-35.88Типовые материалы для проектирования 904-02-35.88Типовые материалы для проектирования 904-02-35.88Типовые материалы для проектирования 904-02-35.88Типовые материалы для проектирования 904-02-35.88Типовые материалы для проектирования 904-02-35.88Типовые материалы для проектирования 904-02-35.88Типовые материалы для проектирования 904-02-35.88Типовые материалы для проектирования 904-02-35.88Типовые материалы для проектирования 904-02-35.88Типовые материалы для проектирования 904-02-35.88Типовые материалы для проектирования 904-02-35.88Типовые материалы для проектирования 904-02-35.88Типовые материалы для проектирования 904-02-35.88Типовые материалы для проектирования 904-02-35.88Типовые материалы для проектирования 904-02-35.88Типовые материалы для проектирования 904-02-35.88Типовые материалы для проектирования 904-02-35.88Типовые материалы для проектирования 904-02-35.88Типовые материалы для проектирования 904-02-35.88Типовые материалы для проектирования 904-02-35.88Типовые материалы для проектирования 904-02-35.88Типовые материалы для проектирования 904-02-35.88Типовые материалы для проектирования 904-02-35.88Типовые материалы для проектирования 904-02-35.88Типовые материалы для проектирования 904-02-35.88Типовые материалы для проектирования 904-02-35.88Типовые материалы для проектирования 904-02-35.88Типовые материалы для проектирования 904-02-35.88Типовые материалы для проектирования 904-02-35.88Типовые материалы для проектирования 904-02-35.88Типовые материалы для проектирования 904-02-35.88Типовые материалы для проектирования 904-02-35.88Типовые материалы для проектирования 904-02-35.88Типовые материалы для проектирования 904-02-35.88Типовые материалы для проектирования 904-02-35.88Типовые материалы для проектирования 904-02-35.88Типовые материалы для проектирования 904-02-35.88Типовые материалы для проектирования 904-02-35.88Типовые материалы для проектирования 904-02-35.88Типовые материалы для проектирования 904-02-35.88Типовые материалы для проектирования 904-02-35.88Типовые материалы для проектирования 904-02-35.88Типовые материалы для проектирования 904-02-35.88Типовые материалы для проектирования 904-02-35.88Типовые материалы для проектирования 904-02-35.88Типовые материалы для проектирования 904-02-35.88Типовые материалы для проектирования 904-02-35.88Типовые материалы для проектирования 904-02-35.88Типовые материалы для проектирования 904-02-35.88Типовые материалы для проектирования 904-02-35.88Типовые материалы для проектирования 904-02-35.88Типовые материалы для проектирования 904-02-35.88Типовые материалы для проектирования 904-02-35.88Типовые материалы для проектирования 904-02-35.88Типовые материалы для проектирования 904-02-35.88Типовые материалы для проектирования 904-02-35.88Типовые материалы для проектирования 904-02-35.88Типовые материалы для проектирования 904-02-35.88Типовые материалы для проектирования 904-02-35.88Типовые материалы для проектирования 904-02-35.88Типовые материалы для проектирования 904-02-35.88Типовые материалы для проектирования 904-02-35.88Типовые материалы для проектирования 904-02-35.88Типовые материалы для проектирования 904-02-35.88Типовые материалы для проектирования 904-02-35.88Типовые материалы для проектирования 904-02-35.88Типовые материалы для проектирования 904-02-35.88Типовые материалы для проектирования 904-02-35.88Типовые материалы для проектирования 904-02-35.88Типовые материалы для проектирования 904-02-35.88Типовые материалы для проектирования 904-02-35.88Типовые материалы для проектирования 904-02-35.88Типовые материалы для проектирования 904-02-35.88Типовые материалы для проектирования 904-02-35.88Типовые материалы для проектирования 904-02-35.88Типовые материалы для проектирования 904-02-35.88Типовые материалы для проектирования 904-02-35.88Типовые материалы для проектирования 904-02-35.88Типовые материалы для проектирования 904-02-35.88Типовые материалы для проектирования 904-02-35.88Типовые материалы для проектирования 904-02-35.88Типовые материалы для проектирования 904-02-35.88Типовые материалы для проектирования 904-02-35.88Типовые материалы для проектирования 904-02-35.88Типовые материалы для проектирования 904-02-35.88Типовые материалы для проектирования 904-02-35.88Типовые материалы для проектирования 904-02-35.88Типовые материалы для проектирования 904-02-35.88Типовые материалы для проектирования 904-02-35.88Типовые материалы для проектирования 904-02-35.88Типовые материалы для проектирования 904-02-35.88Типовые материалы для проектирования 904-02-35.88Типовые материалы для проектирования 904-02-35.88Типовые материалы для проектирования 904-02-35.88Типовые материалы для проектирования 904-02-35.88Типовые материалы для проектирования 904-02-35.88Типовые материалы для проектирования 904-02-35.88Типовые материалы для проектирования 904-02-35.88Типовые материалы для проектирования 904-02-35.88Типовые материалы для проектирования 904-02-35.88Типовые материалы для проектирования 904-02-35.88Типовые материалы для проектирования 904-02-35.88Типовые материалы для проектирования 904-02-35.88Типовые материалы для проектирования 904-02-35.88Типовые материалы для проектирования 904-02-35.88Типовые материалы для проектирования 904-02-35.88Типовые материалы для проектирования 904-02-35.88Типовые материалы для проектирования 904-02-35.88Типовые материалы для проектирования 904-02-35.88Типовые материалы для проектирования 904-02-35.88

© 2013 Ёшкин Кот :-) Карта сайта