Информационная система
«Ёшкин Кот»

Скачать базу одним архивом
Скачать обновления
История создания базы
Карта сайта

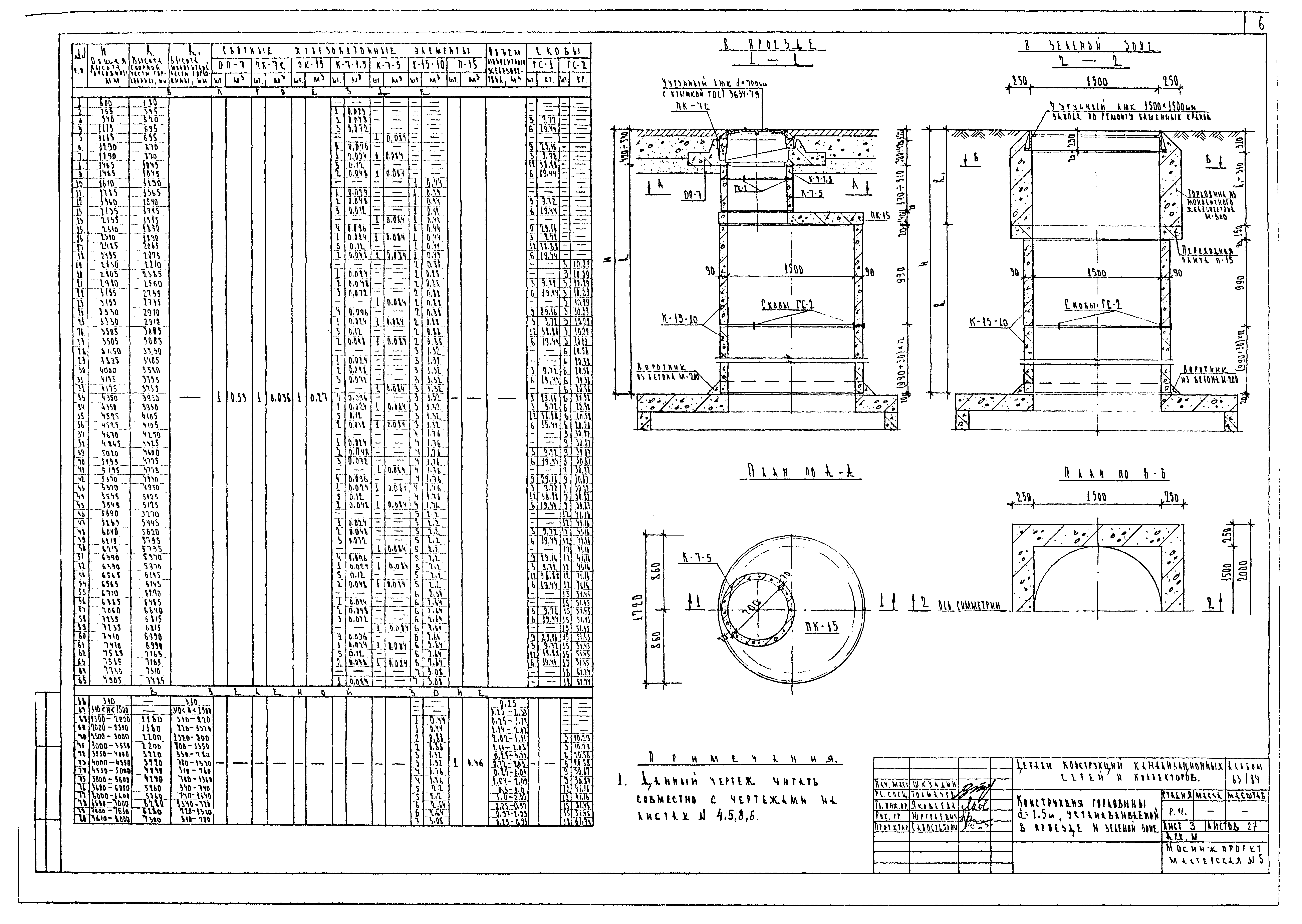
Скачать Альбом 63/84 Детали конструкций канализационных сетей и коллекторов

Дата актуализации: 10.08.2017

Альбом 63/84

Детали конструкций канализационных сетей и коллекторов

Обозначение: Альбом 63/84
Обозначение англ: 63/84
Статус:не определен законодательством
Название рус.:Детали конструкций канализационных сетей и коллекторов
Дата добавления в базу:01.09.2013
Дата актуализации:05.05.2017
Дата введения:01.01.1984
Оглавление:Титульный лист
Содержание альбома
Пояснительная записка
Конструкция горловины А=70см, устанавливаемой в проезде и в зеленой зоне. Установка подвесных и направляющих скоб
Конструкция горловины А=1.0см, устанавливаемой в проезде и в зеленой зоне
Конструкция горловины А=1.5см, устанавливаемой в проезде и в зеленой зоне
Армирование монолитного участка горловин d=1.5м, d=1.0м
Конструкции и армирование переходных плит П-10 и П-15
Конструкции предохранительных крышек КР-1 и КР-2
Установочные чертежи металлоизделий в типовых холодцах КЛ-10,КЛ-15,КЛ-20
Конструкция упорной скобы СК-1, подвесных скоб СК-2,СК-3,СК-4,СК-5, ходовой скобы СК-6, крюка для подвешивания шибера КШ-1
Конструкция металлических лестниц Л-18-2,1 и Л-18-2,8
Армирование железобетонного ограждения, металлический поручень и защитный крюк
Деталь установки ковера d=300мм
Усиление железобетонной трубы А=400-1000мм на участке примыкания щитовой проходки А=2.0м к камере
Металлический шибер на трубах d=300-1000мм
Металлический шибер на трубах d=1200мм и d=1500мм
Установочный чертеж прямоугольного затвора без штанги на канализационных коллекторах Ду=1.0;1.2м
Установочный чертеж прямоугольного затвора на канализационных коллекторах Ду=1.0;1.2м со штангой длиной до 4-х м
Установочный чертеж прямоугольного затвора на канализационных коллекторах Ду=1.0;1.2м со штангой длиной более 4-х м
Установочный чертеж прямоугольного затвора без штанги на канализационных коллекторах d=1.5;2.0м
Установочный чертеж прямоугольного затвора на канализационном коллекторе Ду=1.5 со штангой длиной до 4-х м
Установочный чертеж прямоугольного затвора на канализационном коллекторе Ду=1.5м со штангой длиной более 4-х м
Установочный чертеж прямоугольного затвора без штанги на канализационных коллекторах Ду=2.5;3.0;3.5м. Вариант-1
Установочный чертеж прямоугольного затвора без штанги на канализационных коллекторах Ду=2.0;2.5;3.0;3.5м. Вариант-2
Установочный чертеж прямоугольного затвора без штанги на канализационных коллекторах Ду=2.0;2.5;3.0;3.5м. Вариант-3
Установочный чертеж прямоугольного затвора без штанги на канализационных коллекторах Ду=2.0;2.5;3.0;3.5м со штангой длиной до 4-х м
Установочный чертеж прямоугольного затвора без штанги на канализационных коллекторах Ду=2.0;2.5;3.0;3.5м со штангой длиной более 4-х м
Штанга. Сборочный чертеж
Конструкция узлов 1,2,3,4,5
Разработан: Мосинжпроект
Утверждён:01.01.1984 Мосинжпроект (Mosinzhproject )
Расположен в:Техническая документация Строительство Справочные документы Типовые строительные конструкции, изделия и узлы Разработанные другими министерствами, ведомствами и организациями
Альбом 63/84Альбом 63/84Альбом 63/84Альбом 63/84Альбом 63/84Альбом 63/84Альбом 63/84Альбом 63/84Альбом 63/84Альбом 63/84Альбом 63/84Альбом 63/84Альбом 63/84Альбом 63/84Альбом 63/84Альбом 63/84Альбом 63/84Альбом 63/84Альбом 63/84Альбом 63/84Альбом 63/84Альбом 63/84Альбом 63/84Альбом 63/84Альбом 63/84Альбом 63/84Альбом 63/84Альбом 63/84Альбом 63/84Альбом 63/84Альбом 63/84

© 2013 Ёшкин Кот :-) Карта сайта