Информационная система
«Ёшкин Кот»

Скачать базу одним архивом
Скачать обновления
История создания базы
Карта сайта

Скачать Альбом 6/88 Металлические лестницы и площадки для инженерных коммуникаций

Дата актуализации: 10.08.2017

Альбом 6/88

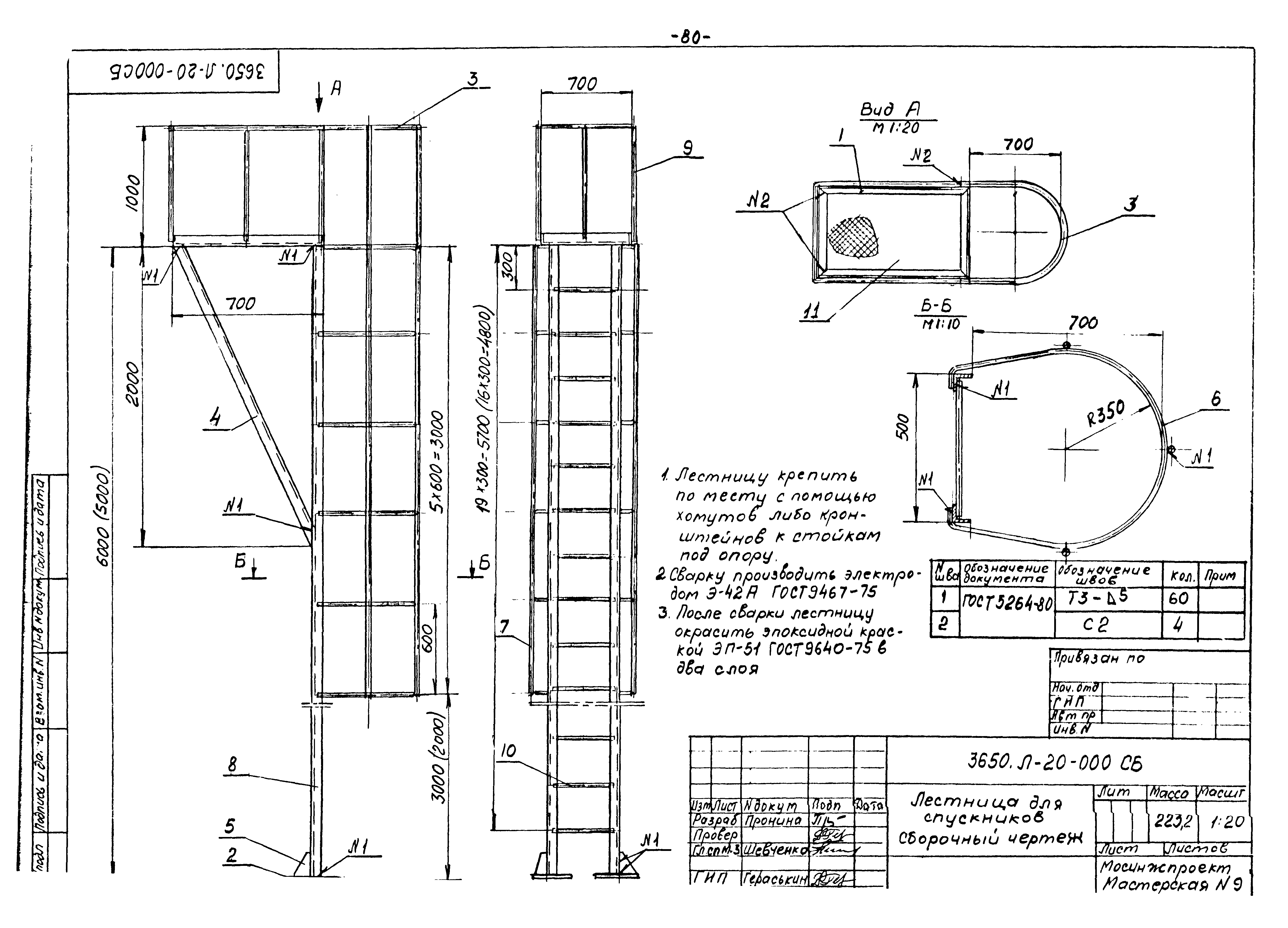
Металлические лестницы и площадки для инженерных коммуникаций

Обозначение: Альбом 6/88
Обозначение англ: 6/88
Статус:не определен законодательством
Название рус.:Металлические лестницы и площадки для инженерных коммуникаций
Дата добавления в базу:01.09.2013
Дата актуализации:05.05.2017
Дата введения:23.12.1988
Оглавление:Пояснительная записка
Схемы лестничных переходов, площадок и лестниц
Лестничный переход Л-1
Лестничный переход Л-2, Л-2А, Л-2Б
Лестничный переход Л-3
Лестничный переход Л-4 (Вариант I)
Лестничный переход Л-5 (Вариант II)
Лестничный переход Л-6
Лестница для сальниковых компенсаторов Л-7, Л-8, Л-9
Стационарная площадка под люки П-10, П-11, П-12
Площадка в камере для управления задвижками вручную П-13
Площадка для обслуживания арматуры П-14
Лестница с перилами для тепловых сетей Л-15
Лестница подвесная Л-16, Л-17
Лестница для канализации Л-18
Лестница для водопровода, водостоков и канализации Л-19
Лестница для обслуживания воздушника
Разработан: Мосинжпроект
Утверждён:23.12.1988 Мосинжпроект (Mosinzhproject 41)
Принят:17.07.1987 Мосэнерго (Mosenergo )
ДО Гордормост
ПО Горгидромеханизация
Расположен в:Техническая документация Строительство Справочные документы Типовые строительные конструкции, изделия и узлы Разработанные другими министерствами, ведомствами и организациями
Альбом 6/88Альбом 6/88Альбом 6/88Альбом 6/88Альбом 6/88Альбом 6/88Альбом 6/88Альбом 6/88Альбом 6/88Альбом 6/88Альбом 6/88Альбом 6/88Альбом 6/88Альбом 6/88Альбом 6/88Альбом 6/88Альбом 6/88Альбом 6/88Альбом 6/88Альбом 6/88Альбом 6/88Альбом 6/88Альбом 6/88Альбом 6/88Альбом 6/88Альбом 6/88Альбом 6/88Альбом 6/88Альбом 6/88Альбом 6/88Альбом 6/88Альбом 6/88Альбом 6/88Альбом 6/88Альбом 6/88Альбом 6/88Альбом 6/88Альбом 6/88Альбом 6/88Альбом 6/88Альбом 6/88Альбом 6/88Альбом 6/88Альбом 6/88Альбом 6/88Альбом 6/88Альбом 6/88Альбом 6/88Альбом 6/88Альбом 6/88Альбом 6/88Альбом 6/88Альбом 6/88Альбом 6/88Альбом 6/88Альбом 6/88Альбом 6/88Альбом 6/88Альбом 6/88Альбом 6/88Альбом 6/88Альбом 6/88Альбом 6/88Альбом 6/88Альбом 6/88Альбом 6/88Альбом 6/88Альбом 6/88Альбом 6/88Альбом 6/88Альбом 6/88Альбом 6/88Альбом 6/88Альбом 6/88Альбом 6/88Альбом 6/88Альбом 6/88Альбом 6/88Альбом 6/88Альбом 6/88Альбом 6/88Альбом 6/88Альбом 6/88

© 2013 Ёшкин Кот :-) Карта сайта