Информационная система
«Ёшкин Кот»

Скачать базу одним архивом
Скачать обновления
История создания базы
Карта сайта

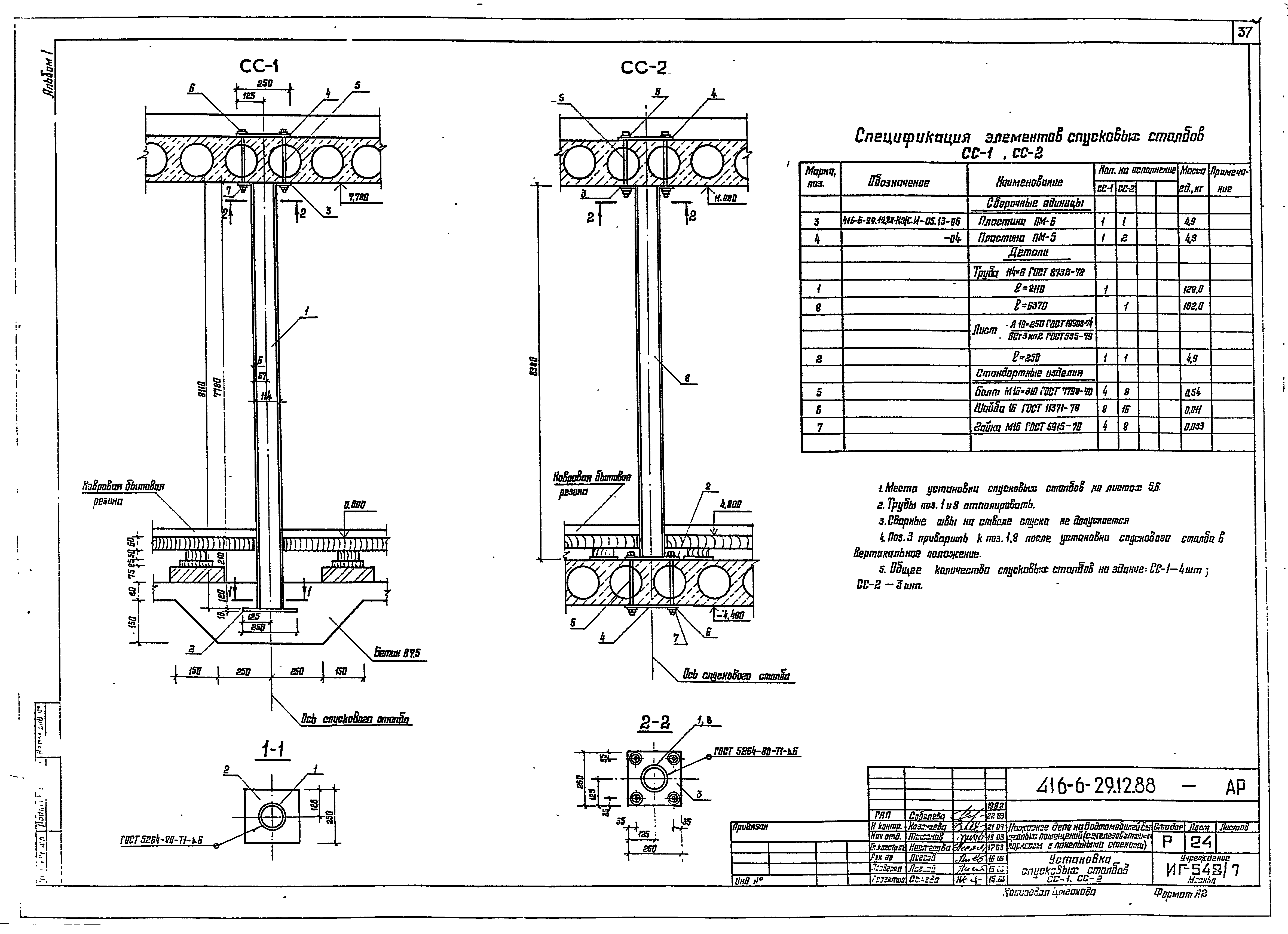
Скачать Типовой проект 416-6-29.12.88 Альбом I. Пояснительная записка. Технологические решения. Архитектурные решения. Конструкции железобетонные

Дата актуализации: 10.08.2017

Типовой проект 416-6-29.12.88

Альбом I. Пояснительная записка. Технологические решения. Архитектурные решения. Конструкции железобетонные

Обозначение: Типовой проект 416-6-29.12.88
Обозначение англ: 416-6-29.12.88
Статус:не определен законодательством
Название рус.:Альбом I. Пояснительная записка. Технологические решения. Архитектурные решения. Конструкции железобетонные
Дата добавления в базу:01.09.2013
Дата актуализации:05.05.2017
Дата введения:13.06.1988
Разработан: Учреждение ИГ-548/7
Утверждён:17.06.1988 МВД СССР (USSR Ministry of Internal Affairs 51-88)
Расположен в:Техническая документация Строительство Справочные документы Типовые строительные конструкции, изделия и узлы Общероссийский строительный каталог Промышленные предприятия, здания и сооружения Предприятия, здания и сооружения промышленности и электроэнергетики Ремонтные предприятия. Административно-бытовые, производственные и вспомогательные здания и сооружения промышленных предприятий Депо пожарные, пункты и вышки наблюдательные
Типовой проект 416-6-29.12.88Типовой проект 416-6-29.12.88Типовой проект 416-6-29.12.88Типовой проект 416-6-29.12.88Типовой проект 416-6-29.12.88Типовой проект 416-6-29.12.88Типовой проект 416-6-29.12.88Типовой проект 416-6-29.12.88Типовой проект 416-6-29.12.88Типовой проект 416-6-29.12.88Типовой проект 416-6-29.12.88Типовой проект 416-6-29.12.88Типовой проект 416-6-29.12.88Типовой проект 416-6-29.12.88Типовой проект 416-6-29.12.88Типовой проект 416-6-29.12.88Типовой проект 416-6-29.12.88Типовой проект 416-6-29.12.88Типовой проект 416-6-29.12.88Типовой проект 416-6-29.12.88Типовой проект 416-6-29.12.88Типовой проект 416-6-29.12.88Типовой проект 416-6-29.12.88Типовой проект 416-6-29.12.88Типовой проект 416-6-29.12.88Типовой проект 416-6-29.12.88Типовой проект 416-6-29.12.88Типовой проект 416-6-29.12.88Типовой проект 416-6-29.12.88Типовой проект 416-6-29.12.88Типовой проект 416-6-29.12.88Типовой проект 416-6-29.12.88Типовой проект 416-6-29.12.88Типовой проект 416-6-29.12.88Типовой проект 416-6-29.12.88Типовой проект 416-6-29.12.88Типовой проект 416-6-29.12.88Типовой проект 416-6-29.12.88Типовой проект 416-6-29.12.88Типовой проект 416-6-29.12.88Типовой проект 416-6-29.12.88Типовой проект 416-6-29.12.88Типовой проект 416-6-29.12.88Типовой проект 416-6-29.12.88Типовой проект 416-6-29.12.88Типовой проект 416-6-29.12.88Типовой проект 416-6-29.12.88Типовой проект 416-6-29.12.88Типовой проект 416-6-29.12.88Типовой проект 416-6-29.12.88Типовой проект 416-6-29.12.88Типовой проект 416-6-29.12.88Типовой проект 416-6-29.12.88Типовой проект 416-6-29.12.88Типовой проект 416-6-29.12.88Типовой проект 416-6-29.12.88Типовой проект 416-6-29.12.88Типовой проект 416-6-29.12.88Типовой проект 416-6-29.12.88Типовой проект 416-6-29.12.88Типовой проект 416-6-29.12.88Типовой проект 416-6-29.12.88Типовой проект 416-6-29.12.88Типовой проект 416-6-29.12.88Типовой проект 416-6-29.12.88Типовой проект 416-6-29.12.88Типовой проект 416-6-29.12.88Типовой проект 416-6-29.12.88Типовой проект 416-6-29.12.88Типовой проект 416-6-29.12.88Типовой проект 416-6-29.12.88Типовой проект 416-6-29.12.88Типовой проект 416-6-29.12.88Типовой проект 416-6-29.12.88Типовой проект 416-6-29.12.88Типовой проект 416-6-29.12.88Типовой проект 416-6-29.12.88Типовой проект 416-6-29.12.88Типовой проект 416-6-29.12.88

© 2013 Ёшкин Кот :-) Карта сайта