Информационная система
«Ёшкин Кот»

Скачать базу одним архивом
Скачать обновления
История создания базы
Карта сайта

Скачать Типовой проект 903-9-28.89 Альбом 1. Стальная конструкция защиты (из ТП 903-9-031.89)

Дата актуализации: 10.08.2017

Типовой проект 903-9-28.89

Альбом 1. Стальная конструкция защиты (из ТП 903-9-031.89)

Обозначение: Типовой проект 903-9-28.89
Обозначение англ: 903-9-28.89
Статус:не действует
Название рус.:Альбом 1. Стальная конструкция защиты (из ТП 903-9-031.89)
Дата добавления в базу:01.09.2013
Дата актуализации:05.05.2017
Оглавление:Общие данные
Техническая спецификация стали
Ведомость металлоконструкций по видам профилей V = 100 куб. м
Ведомость металлоконструкций по видам профилей V = 200 куб. м
Ведомость металлоконструкций по видам профилей V = 300 куб. м
Ведомость металлоконструкций по видам профилей V = 400 куб. м
Ведомость металлоконструкций по видам профилей V = 700 куб. м
Ведомость металлоконструкций по видам профилей V = 10000 куб. м
Схема защиты бака V = 100 куб. м и 200 куб. м
Схема защиты бака V = 300 куб. м и 400 куб. м
Схема защиты бака V = 700 куб. м
Схема защиты бака V = 1000 куб. м
Узлы 1, 2
Узлы 3, 4
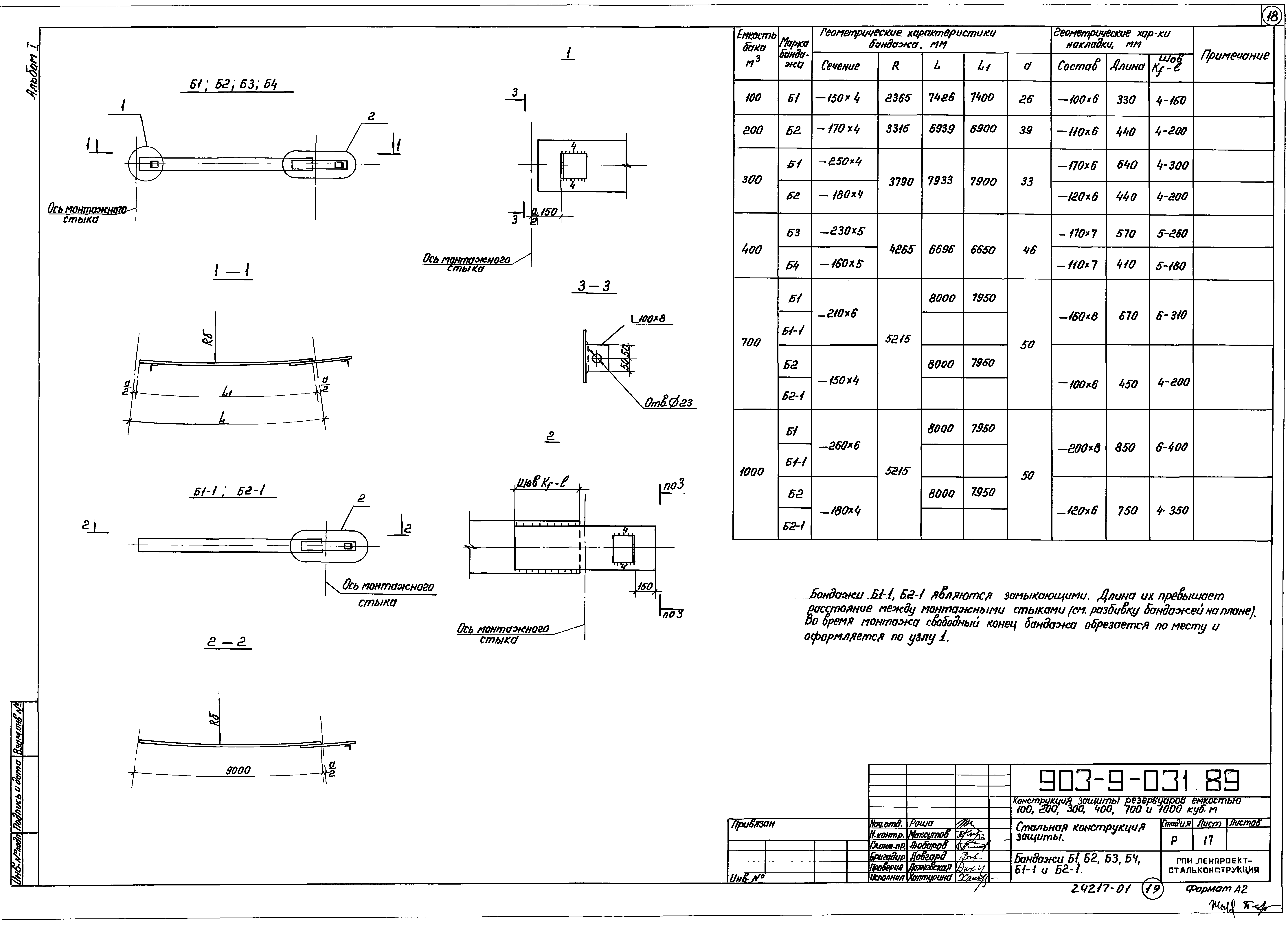
Бандажи Б1, Б2, Б3, Б4, Б1-1 и Б2-1
Разработан: ГПИ Ленпроектстальконструкция
Утверждён:28.04.1989 Госстрой СССР (Государственный комитет Совета Министров СССР по делам строительства) (USSR Gosstroy 4/5-643)
Расположен в:Техническая документация Строительство Справочные документы Типовые строительные конструкции, изделия и узлы Общероссийский строительный каталог Промышленные предприятия, здания и сооружения Здания и сооружения санитарно-технические Теплоснабжение Здания и сооружения разные
Типовой проект 903-9-28.89Типовой проект 903-9-28.89Типовой проект 903-9-28.89Типовой проект 903-9-28.89Типовой проект 903-9-28.89Типовой проект 903-9-28.89Типовой проект 903-9-28.89Типовой проект 903-9-28.89Типовой проект 903-9-28.89Типовой проект 903-9-28.89Типовой проект 903-9-28.89Типовой проект 903-9-28.89Типовой проект 903-9-28.89Типовой проект 903-9-28.89Типовой проект 903-9-28.89Типовой проект 903-9-28.89Типовой проект 903-9-28.89Типовой проект 903-9-28.89Типовой проект 903-9-28.89

© 2013 Ёшкин Кот :-) Карта сайта