Информационная система
«Ёшкин Кот»

Скачать базу одним архивом
Скачать обновления
История создания базы
Карта сайта

Скачать Типовой проект 903-1-242.87 Альбом 10. Задание заводу-изготовителю НКУ

Дата актуализации: 10.08.2017

Типовой проект 903-1-242.87

Альбом 10. Задание заводу-изготовителю НКУ

Обозначение: Типовой проект 903-1-242.87
Обозначение англ: 903-1-242.87
Статус:не определен законодательством
Название рус.:Альбом 10. Задание заводу-изготовителю НКУ
Дата добавления в базу:01.09.2013
Дата актуализации:05.05.2017
Дата введения:01.11.1987
Оглавление:Низковольтные комплектные устройства управления. Задание заводу-изготовителю. Перечень документации
Перечень комплектных устройств
Щит открытый 1Щ (2Щ). Чертеж общего вида
Щит открытый 1Щ (2Щ). Чертеж общего вида. Панель 1
Щит открытый 1Щ (2Щ). Технические данные аппаратов
Щит открытый 1Щ (2Щ). Перечень надписей
Щит открытый 1Щ (2Щ). Схема электрическая соединений и подключения. Панель 1
Щит открытый 3Щ. Чертеж общего вида
Щит открытый 3Щ. Чертеж общего вида. Панель 1
Щит открытый 3Щ. Чертеж общего вида. Панель 2
Щит открытый 3Щ. Чертеж общего вида. Панель 3
Щит открытый 3Щ. Чертеж общего вида. Панель 4
Щит открытый 3Щ. Технические данные аппаратов
Щит открытый 3Щ. Перечень надписей
Щит открытый 3Щ. Схема электрическая соединений и подключения. Панель 1
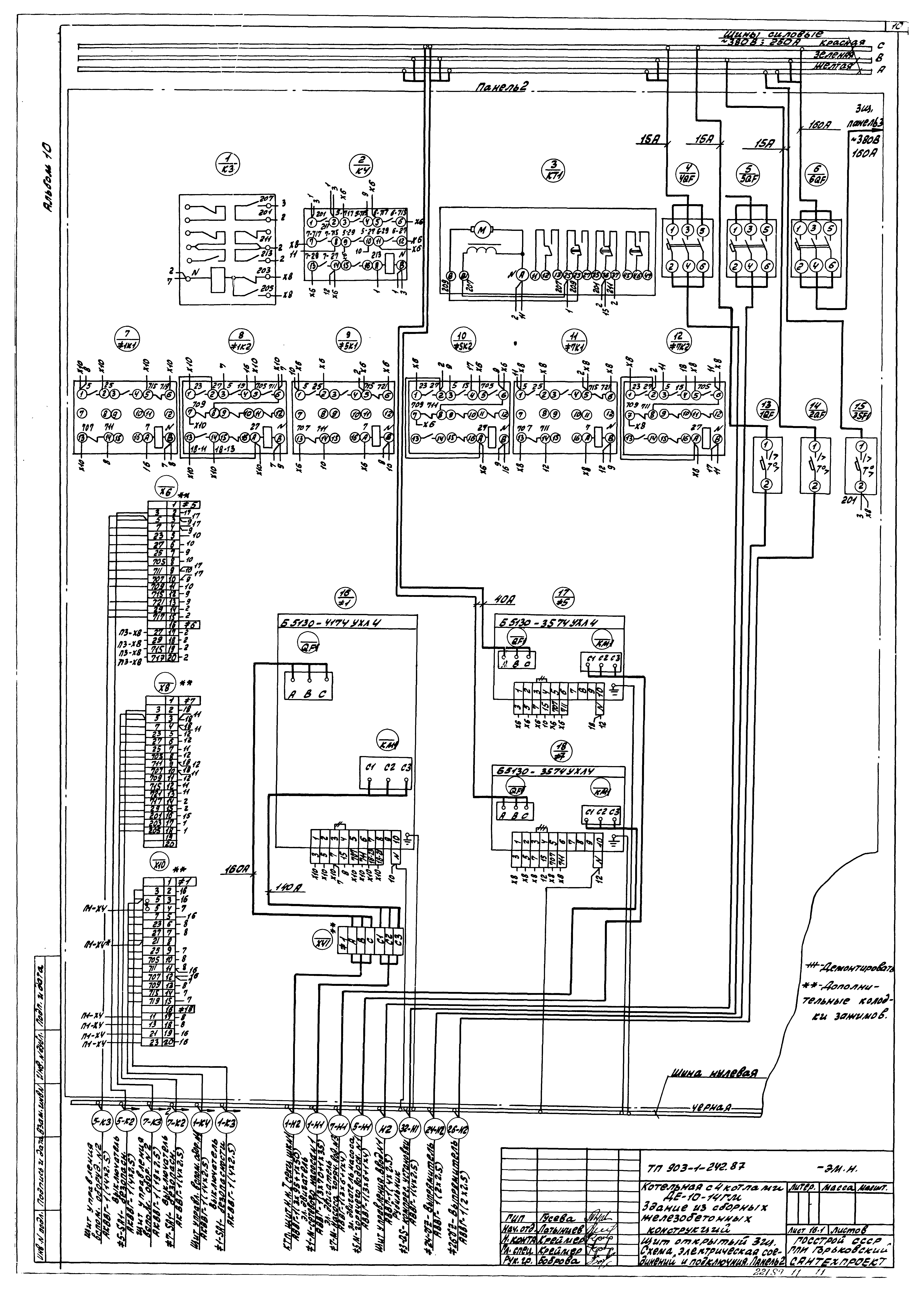
Щит открытый 3Щ. Схема электрическая соединений и подключения. Панель 2
Щит открытый 3Щ. Схема электрическая соединений и подключения. Панель 3
Щит открытый 3Щ. Схема электрическая соединений и подключения. Панель 4
Ящик S1 (S2). Чертеж общего вида
Ящик S1 (S2). Технические данные аппаратов
Ящик S1 (S2). Перечень надписей
Ящик S1 (S2). Схема электрическая соединений и подключения
Ящик S3. Чертеж общего вида
Ящик S3. Технические данные аппаратов
Ящик S3. Перечень надписей
Ящик S3. Схема электрическая соединений и подключения
Разработан: Горьковский Сантехпроект
Утверждён:17.04.1987 Госстрой СССР (Государственный комитет Совета Министров СССР по делам строительства) (USSR Gosstroy А4-43)
Расположен в:Техническая документация Строительство Справочные документы Типовые строительные конструкции, изделия и узлы Общероссийский строительный каталог Промышленные предприятия, здания и сооружения Здания и сооружения санитарно-технические Теплоснабжение Котельные установки Закрытые системы теплоснабжения Топливо - газ, резерв - мазут
Заменяет собой:
Типовой проект 903-1-242.87Типовой проект 903-1-242.87Типовой проект 903-1-242.87Типовой проект 903-1-242.87Типовой проект 903-1-242.87Типовой проект 903-1-242.87Типовой проект 903-1-242.87Типовой проект 903-1-242.87Типовой проект 903-1-242.87Типовой проект 903-1-242.87Типовой проект 903-1-242.87Типовой проект 903-1-242.87Типовой проект 903-1-242.87Типовой проект 903-1-242.87Типовой проект 903-1-242.87Типовой проект 903-1-242.87Типовой проект 903-1-242.87

© 2013 Ёшкин Кот :-) Карта сайта