Информационная система
«Ёшкин Кот»

Скачать базу одним архивом
Скачать обновления
История создания базы
Карта сайта

Скачать Типовой проект 903-1-242.87 Альбом 2. Тепломеханические решения

Дата актуализации: 10.08.2017

Типовой проект 903-1-242.87

Альбом 2. Тепломеханические решения

Обозначение: Типовой проект 903-1-242.87
Обозначение англ: 903-1-242.87
Статус:не определен законодательством
Название рус.:Альбом 2. Тепломеханические решения
Дата добавления в базу:01.09.2013
Дата актуализации:05.05.2017
Дата введения:01.11.1987
Оглавление:Содержание альбома
Чертежи марки ТМ
   Общие данные (начало)
   Общие данные (продолжение)
   Общие данные (окончание)
   Компоновка. План - вид сверху
   Компоновка. Разрезы 1-1, 2-2, 3-3
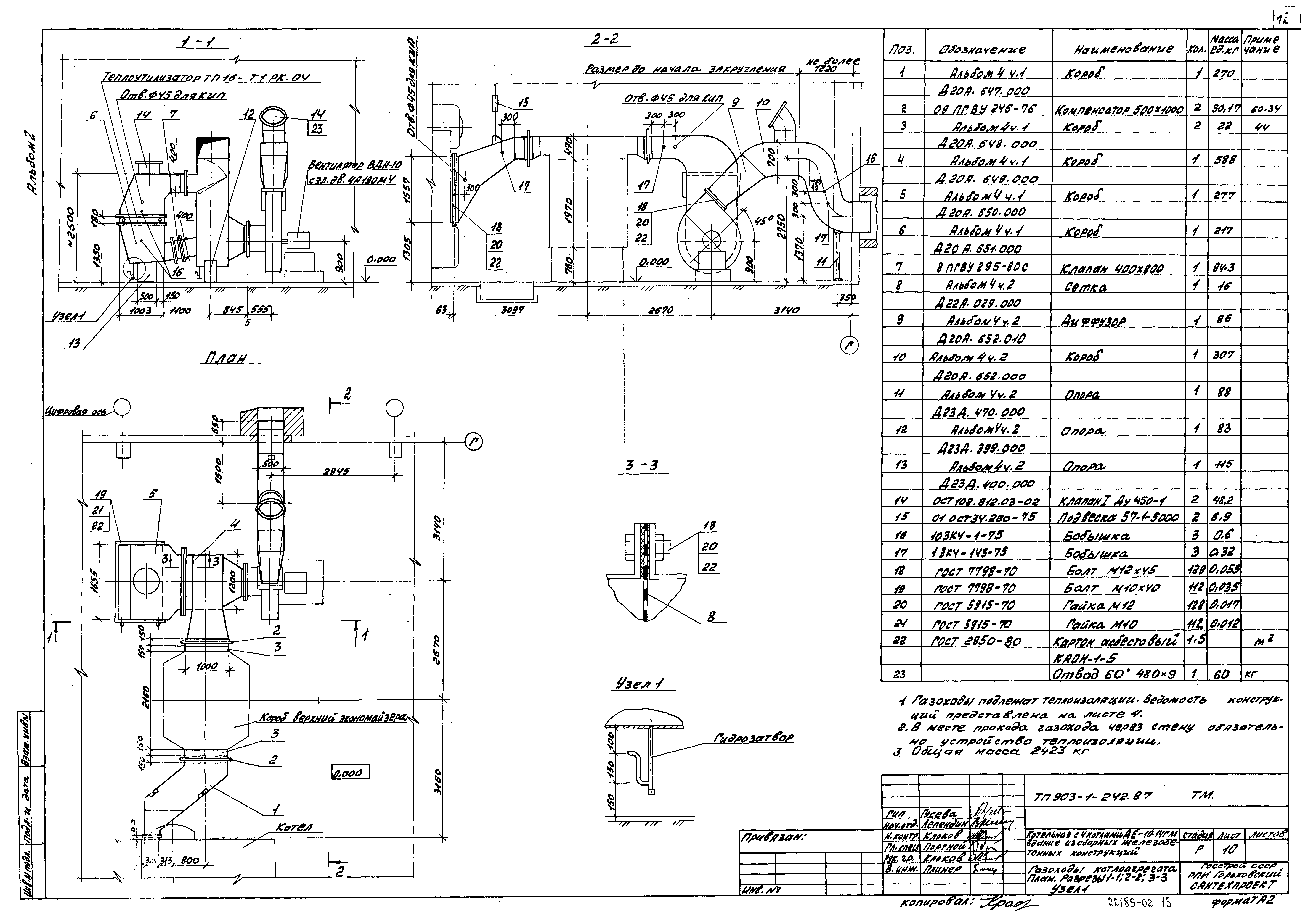
   Газоходы котлоагрегата. План. Разрезы 1-1, 2-2, 3-3. Узел 1.
   Воздуховоды котлоагрегата. План. Разрезы 1-1, 2-2
   Бак-аккумулятор V = 200 куб. м
   Блок холодильника проб К10
   Блок горячего водоснабжения К20. Схема блока. Спецификация
   Блок горячего водоснабжения К20. План - вид сверху. План на отм. 0,00. Разрезы 1-1, 2-2, 3-3, 4-4, 5-5, 6-6
   Блок горячего водоснабжения К20. Металлоконструкция
   Блок приготовления омагниченной воды К23
   Типы креплений оборудования
   Схема трубопроводов
   Трубопроводы пара, питательной, сетевой воды. План - вид сверху. Разрезы 1-1, 2-2
   Трубопроводы пара, питательной, сетевой воды. Разрезы 3-3, 4-4, 5-5. Спецификация (начало)
   Трубопроводы пара, питательной, сетевой воды. Спецификация (продолжение)
   Трубопроводы пара, питательной, сетевой воды. Спецификация (окончание)
   Трубопроводы горячего водоснабжения, конденсата, омагниченной воды, сливные. План - вид сверху
   Трубопроводы горячего водоснабжения, конденсата, омагниченной воды, сливные. Разрезы 1-1, 2-2, 3-3, 4-4, 5-5, 6-6, 7-7
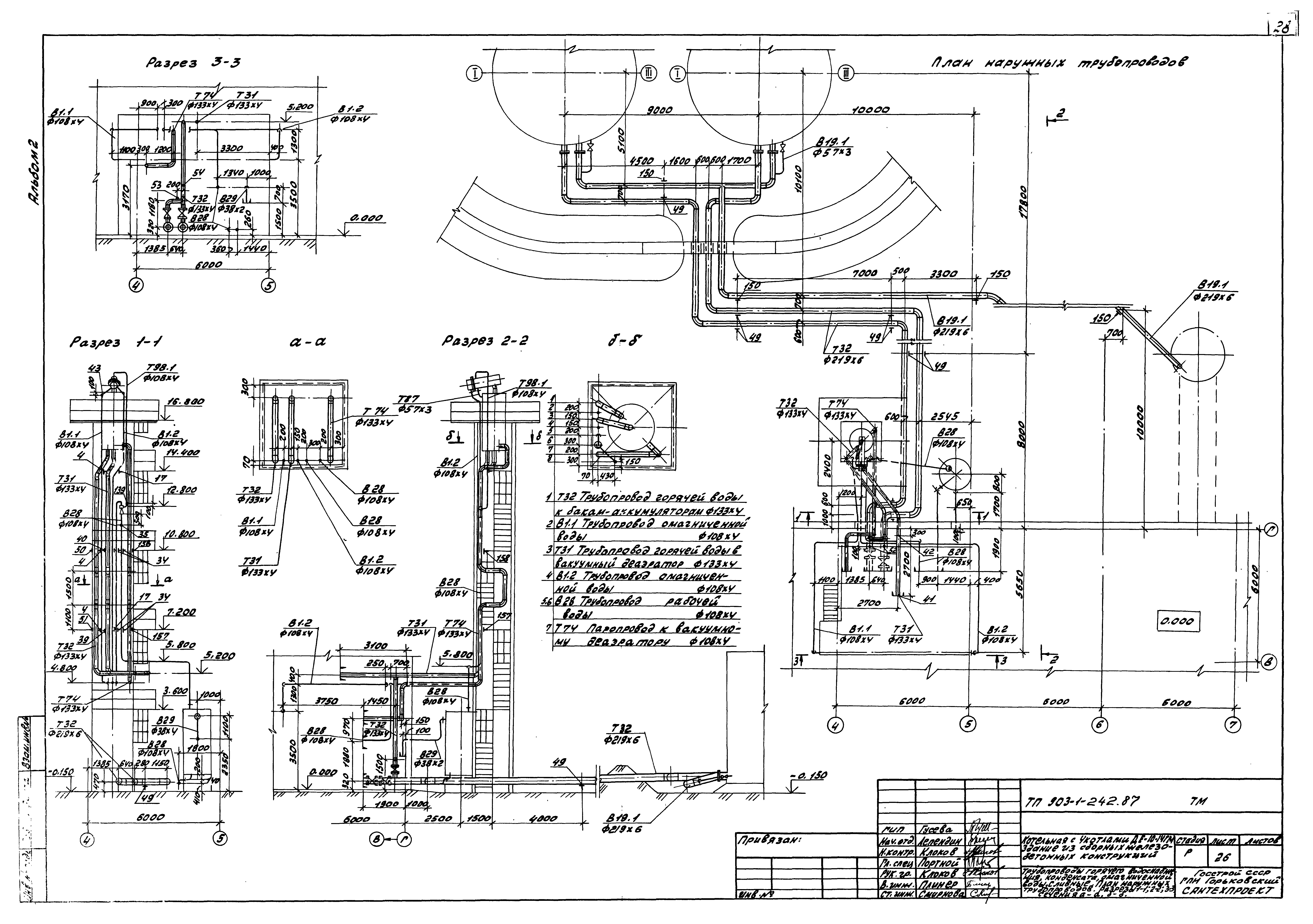
   Трубопроводы горячего водоснабжения, конденсата, омагниченной воды, сливные. План наружных трубопроводов. Разрезы 1-1, 2-2, 3-3. Сечения а-а, б-б
   Трубопроводы горячего водоснабжения, конденсата, омагниченной воды, сливные. План наружных трубопроводов. Спецификация (начало)
   Трубопроводы горячего водоснабжения, конденсата, омагниченной воды, сливные. План наружных трубопроводов. Спецификация (продолжение)
   Трубопроводы горячего водоснабжения, конденсата, омагниченной воды, сливные. План наружных трубопроводов. Спецификация (окончание)
   Схема трубопроводов котлоагрегата
   Трубопроводы котлоагрегата. План. Разрезы 1-1, 2-2, 3-3, 4-4
   Трубопроводы котлоагрегата. Разрезы 5-5, 6-6
   Спецификация трубопроводов котлоагрегата (начало)
   Спецификация трубопроводов котлоагрегата (окончание)
   Площадка для окон К35
Чертежи марки ТМН
   Содержание
   Изоляция паромазутопроводов
   Изоляция дымососа ВДН10
   Изоляция цилиндрической части горизонтального деаэраторного бака дельта = 100 мм
   Изоляция цилиндрической части бака-аккумулятора дельта = 100 мм
   Изоляция днищ цилиндрических аппаратов дельта = 100 мм
   Изоляция теплоутилизатора и газоходов прямоугольного сечения дельта = 100 мм
Разработан: Горьковский Сантехпроект
Утверждён:17.04.1987 Госстрой СССР (Государственный комитет Совета Министров СССР по делам строительства) (USSR Gosstroy А4-43)
Расположен в:Техническая документация Строительство Справочные документы Типовые строительные конструкции, изделия и узлы Общероссийский строительный каталог Промышленные предприятия, здания и сооружения Здания и сооружения санитарно-технические Теплоснабжение Котельные установки Закрытые системы теплоснабжения Топливо - газ, резерв - мазут
Заменяет собой:
Типовой проект 903-1-242.87Типовой проект 903-1-242.87Типовой проект 903-1-242.87Типовой проект 903-1-242.87Типовой проект 903-1-242.87Типовой проект 903-1-242.87Типовой проект 903-1-242.87Типовой проект 903-1-242.87Типовой проект 903-1-242.87Типовой проект 903-1-242.87Типовой проект 903-1-242.87Типовой проект 903-1-242.87Типовой проект 903-1-242.87Типовой проект 903-1-242.87Типовой проект 903-1-242.87Типовой проект 903-1-242.87Типовой проект 903-1-242.87Типовой проект 903-1-242.87Типовой проект 903-1-242.87Типовой проект 903-1-242.87Типовой проект 903-1-242.87Типовой проект 903-1-242.87Типовой проект 903-1-242.87Типовой проект 903-1-242.87Типовой проект 903-1-242.87Типовой проект 903-1-242.87Типовой проект 903-1-242.87Типовой проект 903-1-242.87Типовой проект 903-1-242.87Типовой проект 903-1-242.87Типовой проект 903-1-242.87Типовой проект 903-1-242.87Типовой проект 903-1-242.87Типовой проект 903-1-242.87Типовой проект 903-1-242.87Типовой проект 903-1-242.87Типовой проект 903-1-242.87Типовой проект 903-1-242.87Типовой проект 903-1-242.87Типовой проект 903-1-242.87Типовой проект 903-1-242.87

© 2013 Ёшкин Кот :-) Карта сайта