Информационная система
«Ёшкин Кот»

Скачать базу одним архивом
Скачать обновления
История создания базы
Карта сайта

Скачать Типовой проект 902-2-427.86 Альбом 2. Технологическая и электротехническая части

Дата актуализации: 10.08.2017

Типовой проект 902-2-427.86

Альбом 2. Технологическая и электротехническая части

Обозначение: Типовой проект 902-2-427.86
Обозначение англ: 902-2-427.86
Статус:не определен законодательством
Название рус.:Альбом 2. Технологическая и электротехническая части
Дата добавления в базу:01.09.2013
Дата актуализации:05.05.2017
Дата введения:01.02.1987
Оглавление:Содержание альбома
Технологическая часть
   Общие данные
   Примеры компоновок
   План. Разрезы 1-1, 2-2, 3-3
   Элемент плана. Разрез 1-1
   Элемент плана. Разрез 2-2
   Детали аэраторов
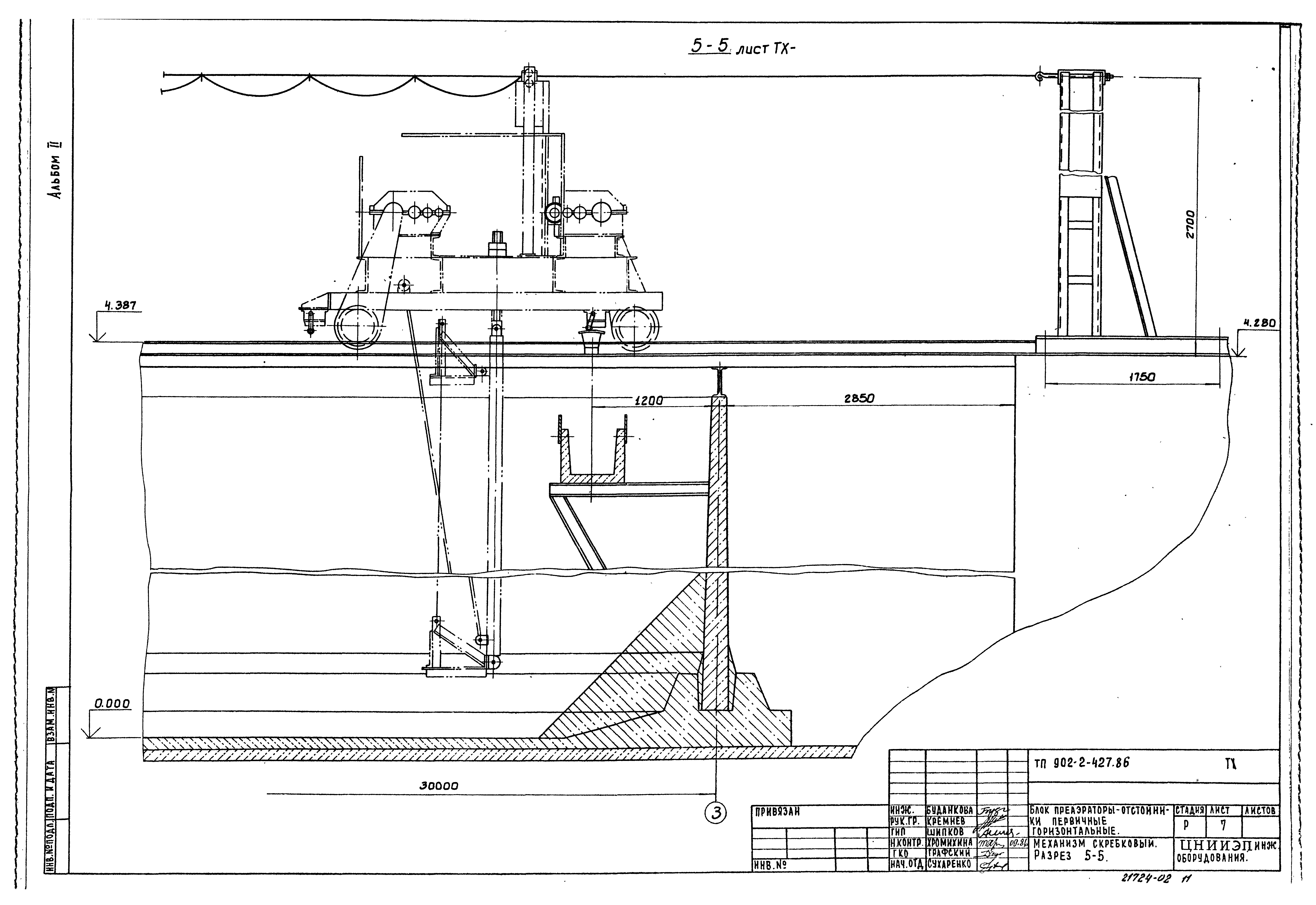
   Механизм скребковый. Разрез 4-4
   Механизм скребковый. Разрез 5-5
   Механизм скребковый. Вид А
   Труба поворотная. Разрезы. Вид В
Электротехническая часть
   Общие данные. Схема подключения электрооборудования
   Кабельный журнал. Расположение электрооборудования и прокладка кабеля
Разработан: ЦНИИЭП иженерного оборудования
Утверждён:05.09.1986 Госгражданстрой (Gosgrazhdanstroy 280)
Расположен в:Техническая документация Строительство Справочные документы Типовые строительные конструкции, изделия и узлы Общероссийский строительный каталог Промышленные предприятия, здания и сооружения Здания и сооружения санитарно-технические Канализация Сооружения механической очистки Отстойники Отстойники горизонтальные первичные
Типовой проект 902-2-427.86Типовой проект 902-2-427.86Типовой проект 902-2-427.86Типовой проект 902-2-427.86Типовой проект 902-2-427.86Типовой проект 902-2-427.86Типовой проект 902-2-427.86Типовой проект 902-2-427.86Типовой проект 902-2-427.86Типовой проект 902-2-427.86Типовой проект 902-2-427.86Типовой проект 902-2-427.86Типовой проект 902-2-427.86Типовой проект 902-2-427.86

© 2013 Ёшкин Кот :-) Карта сайта