Информационная система
«Ёшкин Кот»

Скачать базу одним архивом
Скачать обновления
История создания базы
Карта сайта

Скачать Типовой проект 902-3-11 Альбом 2. Аэрируемые биопруды производительностью 1400 куб. м/сутки при БПК полн. - 400 мг/л

Дата актуализации: 10.08.2017

Типовой проект 902-3-11

Альбом 2. Аэрируемые биопруды производительностью 1400 куб. м/сутки при БПК полн. - 400 мг/л

Обозначение: Типовой проект 902-3-11
Обозначение англ: 902-3-11
Статус:не определен законодательством
Название рус.:Альбом 2. Аэрируемые биопруды производительностью 1400 куб. м/сутки при БПК полн. - 400 мг/л
Дата добавления в базу:01.09.2013
Дата актуализации:05.05.2017
Дата введения:01.01.1981
Оглавление:Содержание альбома
Технологическая часть
      НК-1 Общие данные
      НК-2 Схема генплана
      НК-3 План с сетями
      НК-4 Разрезы 1-1, 2-2, 3-3
      НК-5 Профили П2, М3.
      НК-6 Профили М4, П2, Х1. Спецификация
      НК-7 Профили А0, Х1. Спецификация
      НК-8 Таблица колодцев
Архитектурно-строительная часть
      ГП-1 Примерный генплан
      ГП-2 Раскладка плит. Разрезы 1-1, 2-2, 3-3
Конструкции железобетонные
   КЖ-1 Водоперепускной колодец и камера перепуска с переходом
   КЖ-2 Камера напуска, перегородка. Разрезы 7-7…10-10
   КЖ-3 Закладные детали. Узлы 3 и 4
   КЖ-4 Водовыпускной колодец и переход к нему
Электротехническая часть
   ЭЛ-1 Общие данные
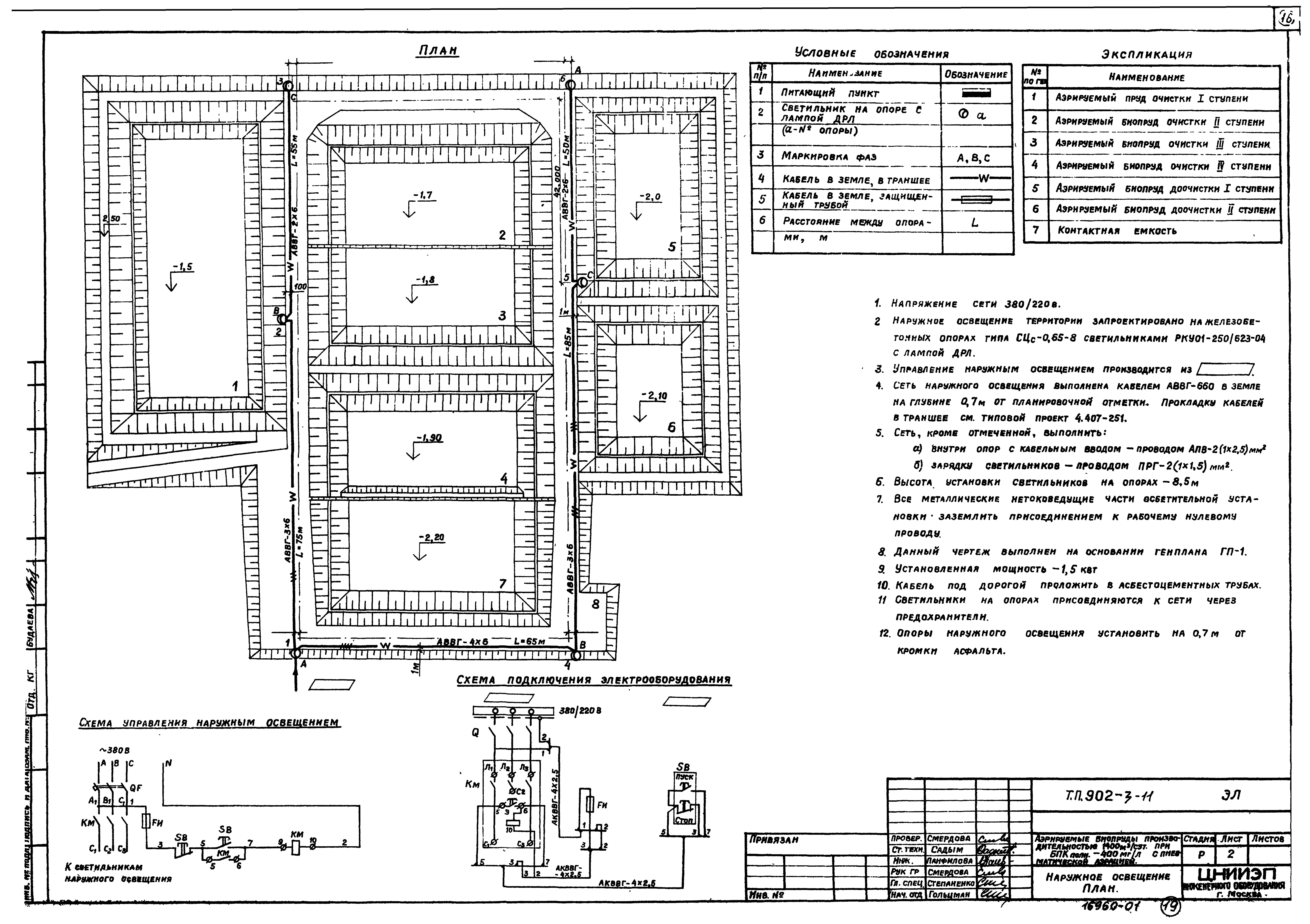
   ЭЛ-2 Наружное освещение. План
Разработан: ЦНИИЭП иженерного оборудования
Утверждён:11.03.1980 Госгражданстрой (Gosgrazhdanstroy 75)
Расположен в:Техническая документация Строительство Справочные документы Типовые строительные конструкции, изделия и узлы Общероссийский строительный каталог Промышленные предприятия, здания и сооружения Здания и сооружения санитарно-технические Канализация Сооружения биологической (биохимической) очистки Аэротенки, аэрируемые биопруды, аэроакселаторы
Типовой проект 902-3-11Типовой проект 902-3-11Типовой проект 902-3-11Типовой проект 902-3-11Типовой проект 902-3-11Типовой проект 902-3-11Типовой проект 902-3-11Типовой проект 902-3-11Типовой проект 902-3-11Типовой проект 902-3-11Типовой проект 902-3-11Типовой проект 902-3-11Типовой проект 902-3-11Типовой проект 902-3-11Типовой проект 902-3-11Типовой проект 902-3-11Типовой проект 902-3-11Типовой проект 902-3-11Типовой проект 902-3-11Типовой проект 902-3-11

© 2013 Ёшкин Кот :-) Карта сайта