Информационная система
«Ёшкин Кот»

Скачать базу одним архивом
Скачать обновления
История создания базы
Карта сайта

Скачать Типовой проект 902-3-10 Альбом 4. Аэрируемые биопруды производительностью 1400 куб. м/сутки при БПК полн. - 150 мг/л

Дата актуализации: 10.08.2017

Типовой проект 902-3-10

Альбом 4. Аэрируемые биопруды производительностью 1400 куб. м/сутки при БПК полн. - 150 мг/л

Обозначение: Типовой проект 902-3-10
Обозначение англ: 902-3-10
Статус:не определен законодательством
Название рус.:Альбом 4. Аэрируемые биопруды производительностью 1400 куб. м/сутки при БПК полн. - 150 мг/л
Дата добавления в базу:01.09.2013
Дата актуализации:05.05.2017
Дата введения:01.01.1981
Оглавление:Содержание альбома
Технологическая часть
   1. Механическая аэрация
      НК-1 Общие данные
      НК-2 Схема генплана
      НК-3 План с сетями
      НК-4 Схема движения воды очистки сточных вод. Профили -П2, Х1-
      НК-5 Схема движения воды доочистки сточных вод. Профили -П2, Х1-
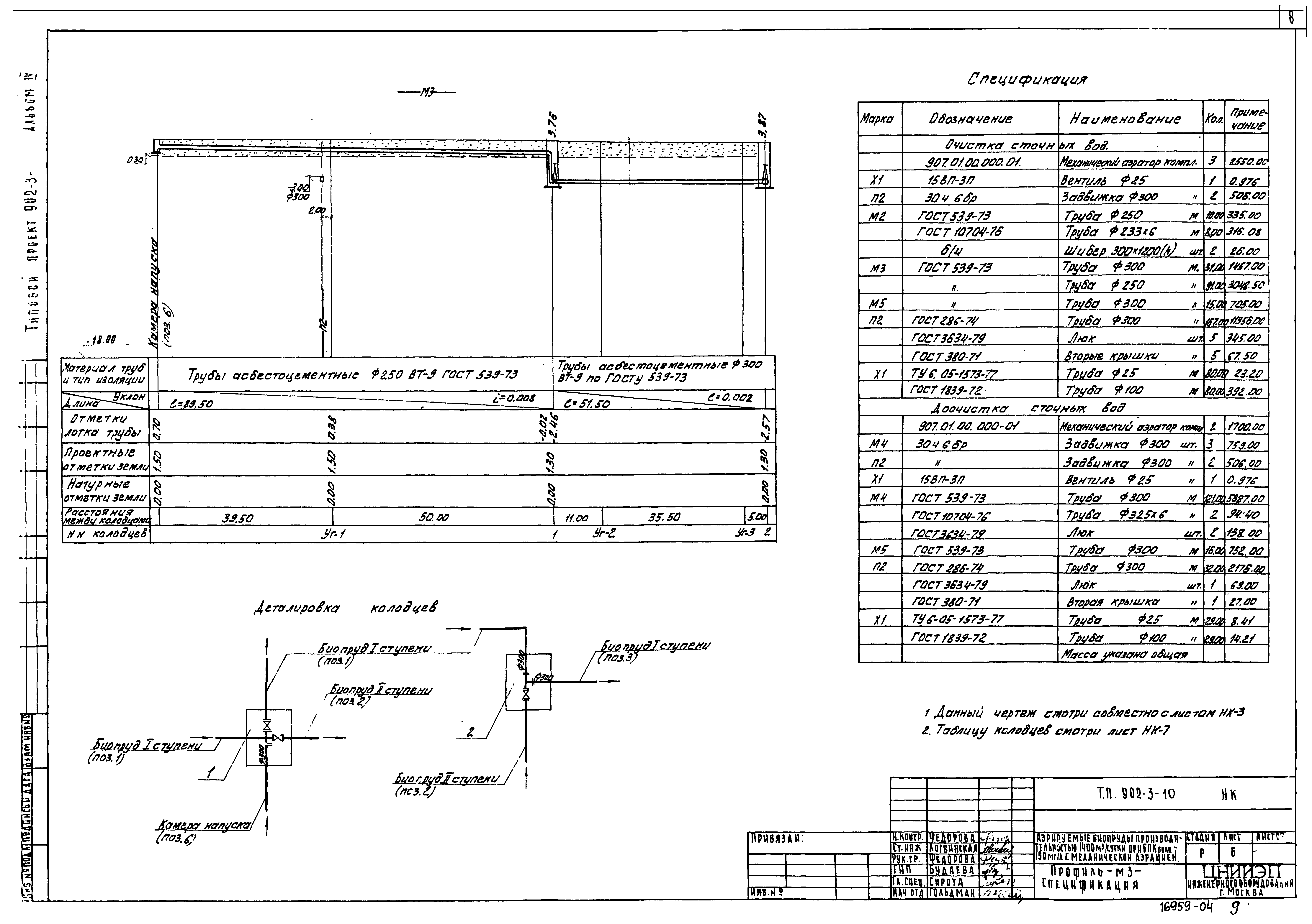
      НК-6 Профиль -М3-. Спецификация
      НК-7 Таблица колодцев
   2. Механическая аэрация и доочистка с естественной аэрацией
      НК-8 План с сетями
      НК-9 Схема движения воды очистки сточных вод. Профили -П2, Х1-
      НК-10 Схема движения воды доочистки сточных вод. Профили -П2, М4, Х1-
      НК-11 Профиль -М3-. Спецификация
      НК-12 Таблицы колодцев
Архитектурно-строительная часть
   1. Механическая аэрация
      ГП-1 Примерный генплан
   2. Механическая аэрация и доочистка с естественной аэрацией
      ГП-2 Примерный генплан
      ГП-3 Раскладка плит. Разрезы 1-1, 2-2, 3-3
Конструкции железобетонные
   КЖ-1 Водоперепускной колодец и камера перепуска с переходом
   КЖ-2 Камера напуска, перегородка. Разрезы 8-8…11-11
   КЖ-3 Опора под электрокабель. Закладные детали МН-1, МС-1…МС-6, БМ-1
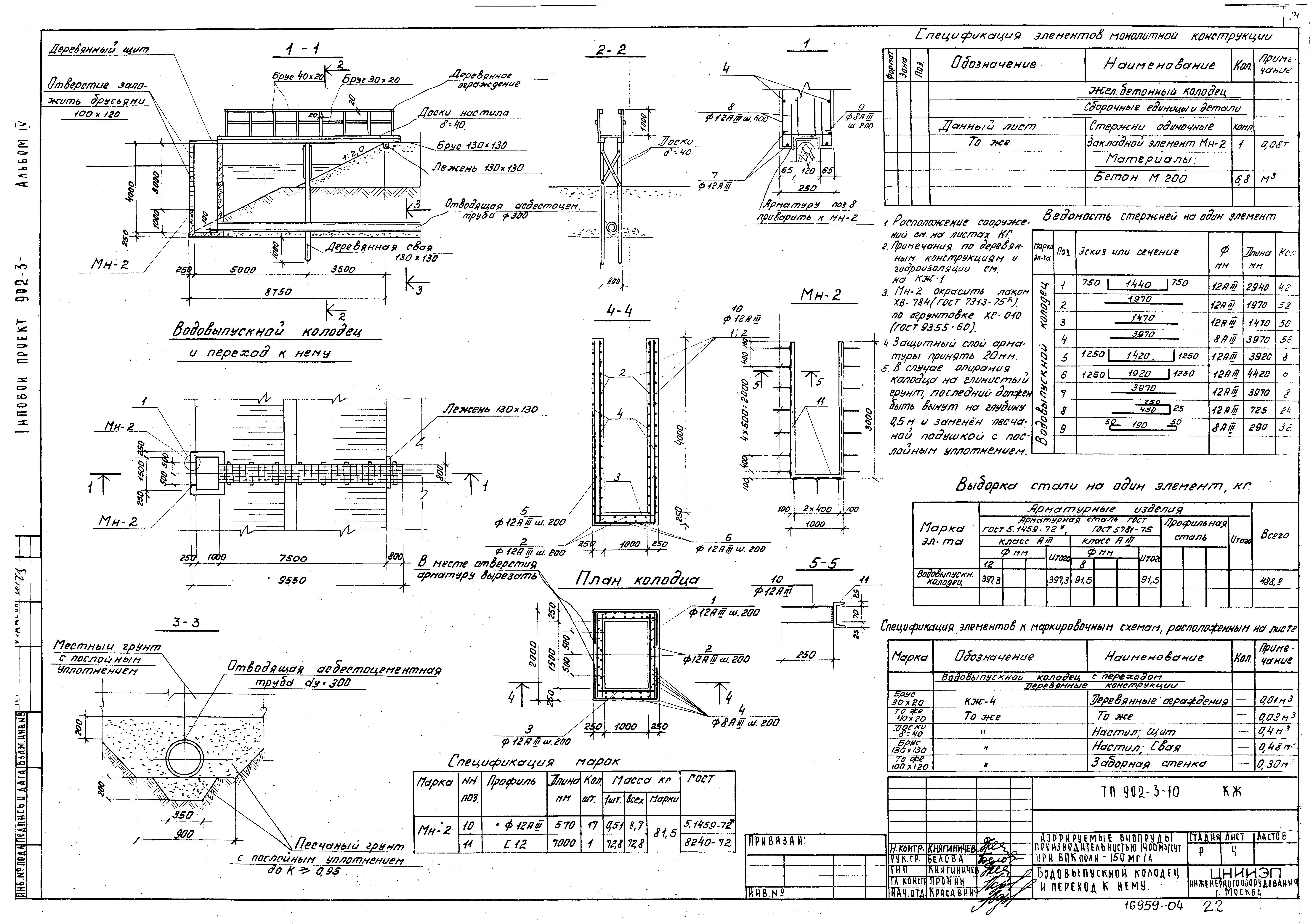
   КЖ-4 Водовыпускной колодец и переход к нему
Электротехническая часть
   ЭЛ-1 Общие данные (начало)
   ЭЛ-2 Общие данные (продолжение)
   ЭЛ-3 Общие данные (окончание)
   ЭЛ-4 Питание электрооборудования. Схема принципиальная электрическая
   ЭЛ-5 План трассы кабелей, питающих аэраторы
   ЭЛ-6 План трассы кабелей, питающих аэраторы
   ЭЛ-7 Установка пускового устройства ЯБПВУ1м. План и разрезы. Спецификация
   ЭЛ-8 Наружное освещение. План
   ЭЛ-9 Наружное освещение. План
Разработан: ЦНИИЭП иженерного оборудования
Утверждён:11.03.1980 Госгражданстрой (Gosgrazhdanstroy 75)
Расположен в:Техническая документация Строительство Справочные документы Типовые строительные конструкции, изделия и узлы Общероссийский строительный каталог Промышленные предприятия, здания и сооружения Здания и сооружения санитарно-технические Канализация Сооружения биологической (биохимической) очистки Аэротенки, аэрируемые биопруды, аэроакселаторы
Типовой проект 902-3-10Типовой проект 902-3-10Типовой проект 902-3-10Типовой проект 902-3-10Типовой проект 902-3-10Типовой проект 902-3-10Типовой проект 902-3-10Типовой проект 902-3-10Типовой проект 902-3-10Типовой проект 902-3-10Типовой проект 902-3-10Типовой проект 902-3-10Типовой проект 902-3-10Типовой проект 902-3-10Типовой проект 902-3-10Типовой проект 902-3-10Типовой проект 902-3-10Типовой проект 902-3-10Типовой проект 902-3-10Типовой проект 902-3-10Типовой проект 902-3-10Типовой проект 902-3-10Типовой проект 902-3-10Типовой проект 902-3-10Типовой проект 902-3-10Типовой проект 902-3-10Типовой проект 902-3-10Типовой проект 902-3-10Типовой проект 902-3-10Типовой проект 902-3-10Типовой проект 902-3-10

© 2013 Ёшкин Кот :-) Карта сайта