Информационная система
«Ёшкин Кот»

Скачать базу одним архивом
Скачать обновления
История создания базы
Карта сайта

Скачать Типовой проект 407-03-603.91 Альбом 1. Пояснительная записка и чертежи

Дата актуализации: 10.08.2017

Типовой проект 407-03-603.91

Альбом 1. Пояснительная записка и чертежи

Обозначение: Типовой проект 407-03-603.91
Обозначение англ: 407-03-603.91
Статус:не определен законодательством
Название рус.:Альбом 1. Пояснительная записка и чертежи
Дата добавления в базу:01.09.2013
Дата актуализации:05.05.2017
Дата введения:14.06.1991
Оглавление:407-3-0603.91-ПЗ Пояснительная записка
407-3-0603.91-КС Конструкции строительные
   Типы пересечений продольных и поперечных путей. План
   То же. Разрезы 1-1, 2-2
   То же. Разрезы 3-3, 4-4
   Рельсовое пересечение продольного пути с поперечным. Тип I
   То же. Тип II
   То же. Тип III
   То же. Тип IV
   То же. Тип V
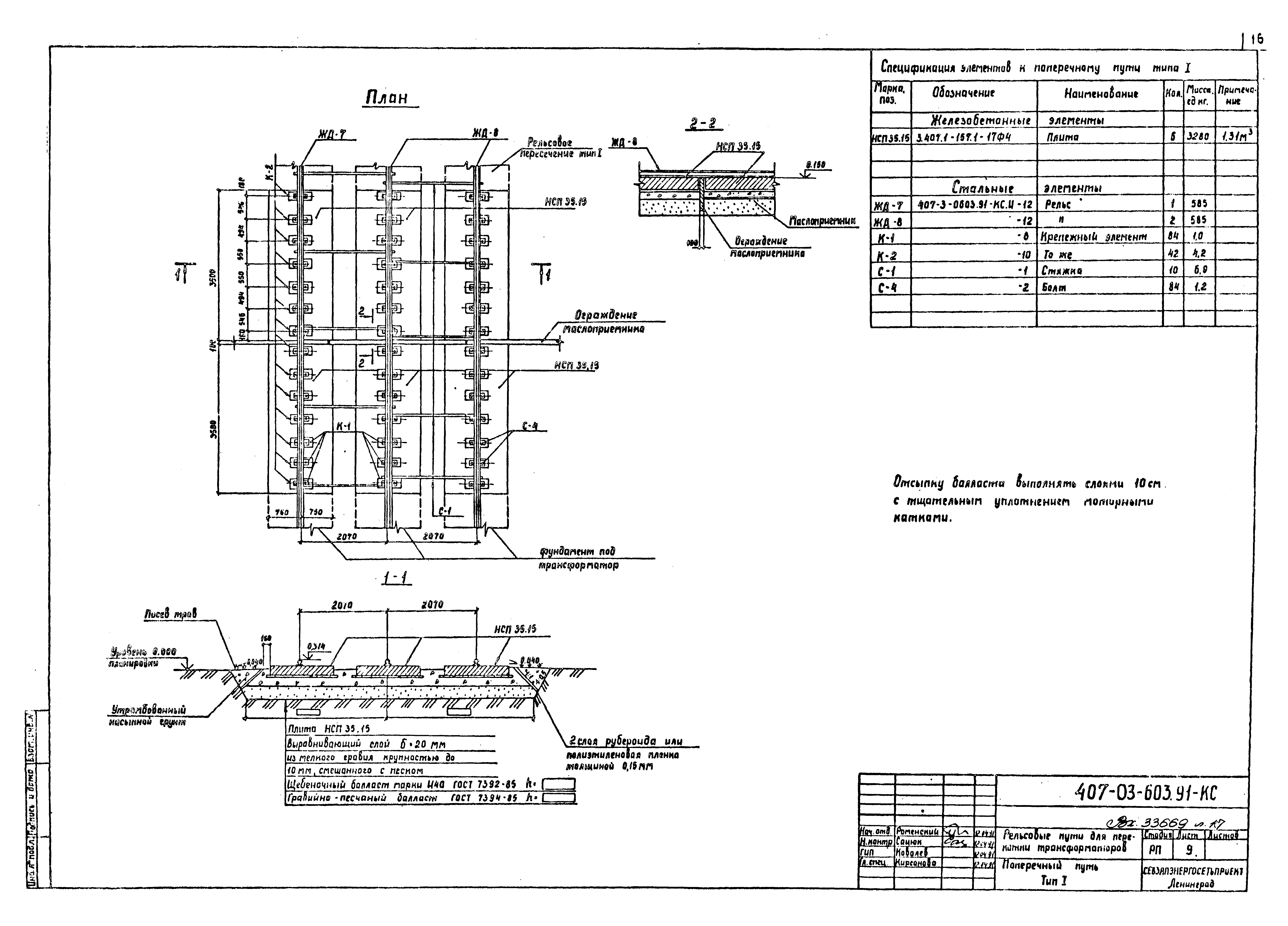
   Поперечный путь. Тип I
   То же. Тип II
   То же. Тип III
   То же. Тип IV
   То же. Тип V
   Продольный путь, совмещенный с автодорогой. Вариант I. Разрез
   То же. Вариант II. Разрез
   То же. Вариант III. Разрез
   То же. Узел А
   Продольный путь. Вариант IV. Разрез
   То же. Вариант V. Разрез
   То же. Вариант VI. Разрез
   Деталь дренажа
   Продольный путь, совмещенный с автодорогой из железобетонных плит. Вариант VII. Разрез
   То же. Вариант VIII. Разрез
   Узел 1. Крепление рельса к железобетонным плитам НСП, ПФ и шпалам ШТ
   Узел 2. Крепление рельса к деревянной шпале
   Узел 3. Крепление вкладыша
407-3-0603.91-КС Конструкции строительные
   Узел 4. Крепление вкладыша (вариант рельса Р65)
   Узел 5. Крепление рельса к железобетонным плитам НСП, ПФ и шпалам ШТ (вариант рельса Р65)
   Узел 6. Крепление лебедки
   Схемы расстановки домкратов (начало)
   То же. (окончание)
   Открытая установка трансформаторов и шунтирующих реакторов. План
   Тоже. Профиль пути
407-3-0603.91-КС.И-ТТ Техническое требование
407-3-0603.91-КС.И Строительные изделия
   Стяжка С-1…С-3, С-5
   Болт С-4, С-6
   Крепежный элемент Д-1
   Крепежный элемент Д-2, Д-3
   Крепежный элемент Д-4
   Крепежный элемент К-1
   Крепежный элемент К-2
   Крепежный элемент К-3
   Крепежный элемент Д-6
   Балка Д-7
   Рельс ЖД-1…ЖД-5
   Рельс ЖД-7, ЖД-8
   Рельс ЖД-6
   Рельс ЖД-9
   Балка Д-8, Д-9
Разработан: Севзапэнергосетьпроект
Утверждён:14.06.1991 Минэнерго СССР (USSR Minenergo 16)
Расположен в:Техническая документация Строительство Справочные документы Типовые строительные конструкции, изделия и узлы Разработанные другими министерствами, ведомствами и организациями
Типовой проект 407-03-603.91Типовой проект 407-03-603.91Типовой проект 407-03-603.91Типовой проект 407-03-603.91Типовой проект 407-03-603.91Типовой проект 407-03-603.91Типовой проект 407-03-603.91Типовой проект 407-03-603.91Типовой проект 407-03-603.91Типовой проект 407-03-603.91Типовой проект 407-03-603.91Типовой проект 407-03-603.91Типовой проект 407-03-603.91Типовой проект 407-03-603.91Типовой проект 407-03-603.91Типовой проект 407-03-603.91Типовой проект 407-03-603.91Типовой проект 407-03-603.91Типовой проект 407-03-603.91Типовой проект 407-03-603.91Типовой проект 407-03-603.91Типовой проект 407-03-603.91Типовой проект 407-03-603.91Типовой проект 407-03-603.91Типовой проект 407-03-603.91Типовой проект 407-03-603.91Типовой проект 407-03-603.91Типовой проект 407-03-603.91Типовой проект 407-03-603.91Типовой проект 407-03-603.91Типовой проект 407-03-603.91Типовой проект 407-03-603.91Типовой проект 407-03-603.91Типовой проект 407-03-603.91Типовой проект 407-03-603.91

© 2013 Ёшкин Кот :-) Карта сайта