Информационная система
«Ёшкин Кот»

Скачать базу одним архивом
Скачать обновления
История создания базы
Карта сайта

Скачать Типовой проект 904-1-74.87 Альбом 2. Технология производства

Дата актуализации: 10.08.2017

Типовой проект 904-1-74.87

Альбом 2. Технология производства

Обозначение: Типовой проект 904-1-74.87
Обозначение англ: 904-1-74.87
Статус:не определен законодательством
Название рус.:Альбом 2. Технология производства
Дата добавления в базу:01.09.2013
Дата актуализации:05.05.2017
Дата введения:01.10.1987
Оглавление:Содержание
Общие данные
План расположения оборудования
План расположения оборудования. Разрез 1-1
Схема комбинированная принципиальная компрессорного агрегата
Схема комбинированная принципиальная компрессорной станции
Условные обозначения
Помещение для промывки и зарядки ячеек фильтров
Компрессор. Разводка трубопроводов
Концевой холодильник. Разводка трубопроводов
Воздухосборник. Разводка трубопроводов
 Бак продувочный. Разводка трубопроводов
Разводка трубопроводов. План
Разводка трубопроводов. Разрезы
Спецификация оборудования, арматуры и монтажных материалов трубопроводов
Ведомость теплоизоляционных конструкций
Закладные элементы КИП
Опросный лист на кран
Муфта, ТД-1
Пробка, ТД-2
Узел присоединения продувки, ТУ-4
Опора, ТУ-1
Опора, ТУ-2, ТУ-3, ТУ-5
Глушитель шума стравливания. Чертеж общего вида. ГШС.60.00.000.ВО
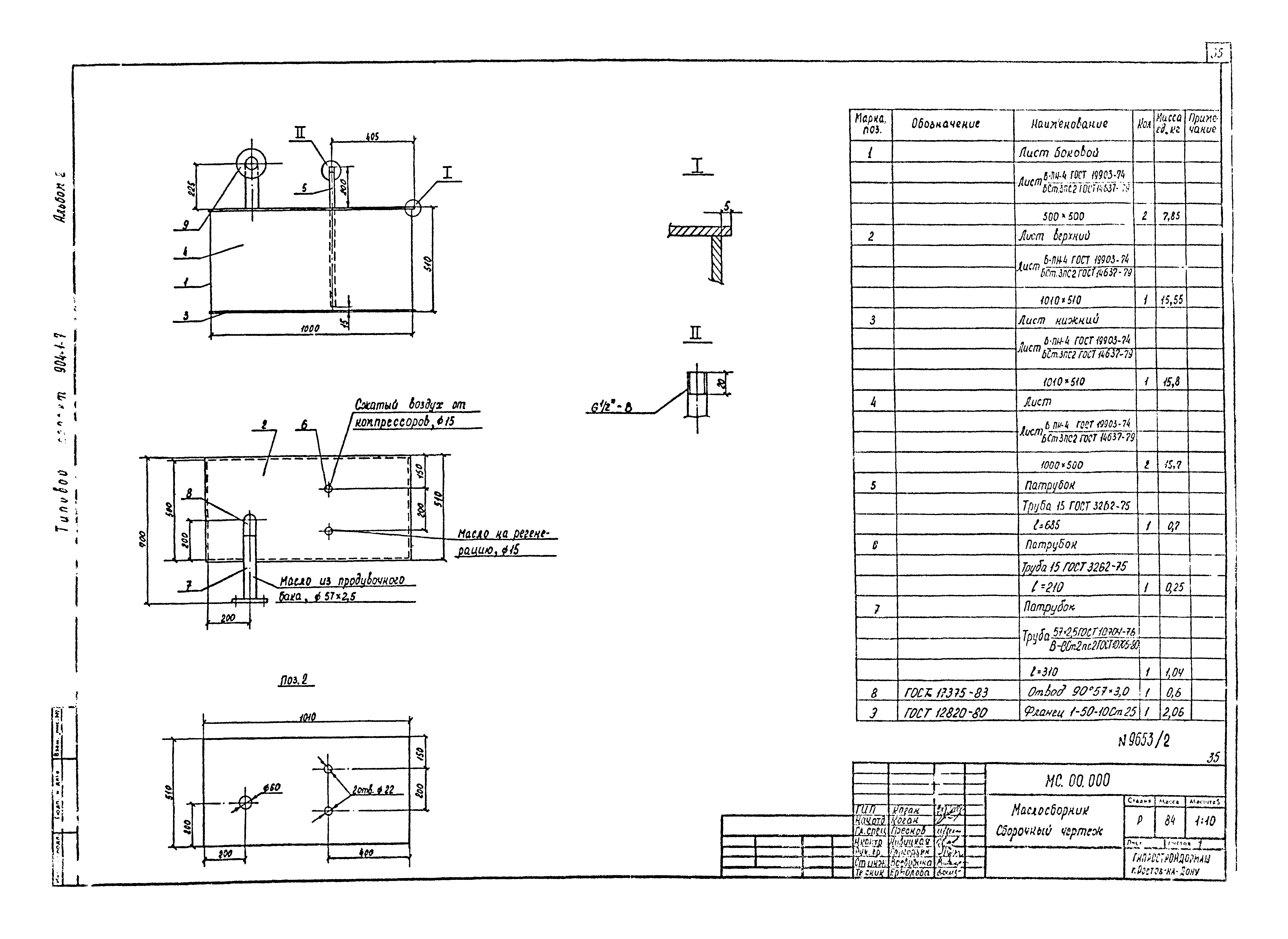
Маслосборник. Сборочный чертеж МС.00.000
Фильтр с глушителем. Исходные требования ГФ.00.00.00.000.ИТ
Глушитель шума стравливания. Исходные требования ГШС.60.00.000.ИТ
Бак продувочный. Исходные требования. БП.00.000.ИТ
Бак продувочный. Техническое описание. БП.00.000.ТО
Бак продувочный. Чертеж общего вида. БП.00.000.ВО
Установка для очистки трасс сжатого воздуха. Чертеж общего вида. УО.00.000.ВО
Установка для очистки трасс сжатого воздуха. Техническое описание и инструкция по эксплуатации. УО.00.000.ТО
Установка для очистки трасс сжатого воздуха. Исходные требования. УО.00.000.ИТ
Опора под маслобаки. ОМ.00.000
Бак для масла объемом 50 л. Исходные требования. БР.00.000.ИТ
Бак для масла объемом 50 л. Чертеж общего вида. БР.00.000.ВО
Ванна для промывки ячеек фильтров. Исходные требования. ВП.00.000.ИТ
Ванна для зарядки ячеек фильтров. Исходные требования. ВЗ.00.000.ИТ
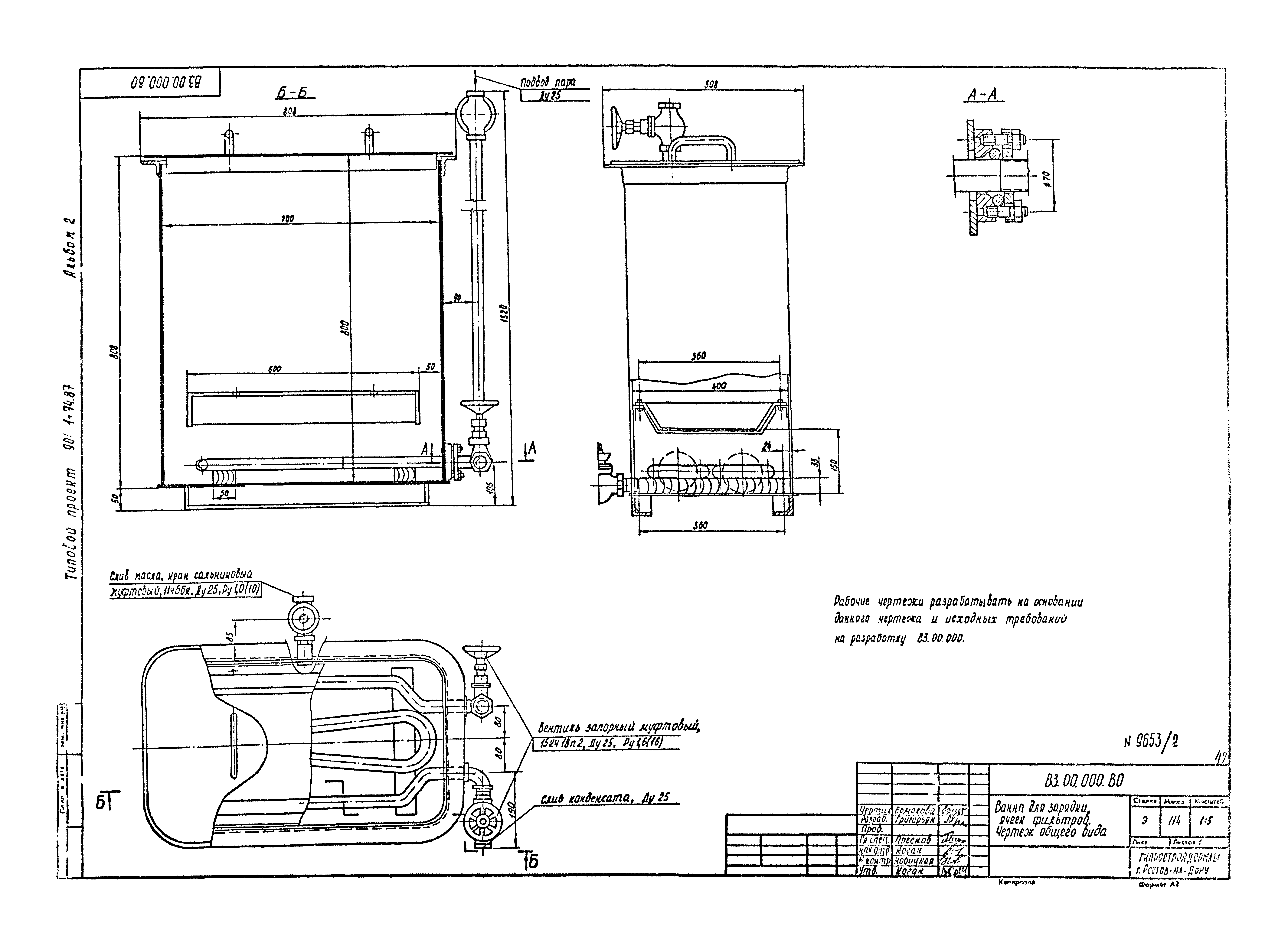
Ванна для зарядки ячеек фильтров. Чертеж общего вида. ВЗ.00.000.ВО
Ванна для промывки ячеек фильтров. Чертеж общего вида. ВП.00.000.ВО
Стол для отстоя ячеек фильтров. Исходные требования. СО.00.000.ИТ
Стол для отстоя ячеек фильтров. Чертеж общего вида. СО.00.000.ВО
Фильтр с глушителем. Чертеж общего вида. ГФ.00.000.ВО
Разработан: Гипростройдормаш
Утверждён:20.05.1987 Минстройдормаш (Minstroydormash 307)
Расположен в:Техническая документация Строительство Справочные документы Типовые строительные конструкции, изделия и узлы Общероссийский строительный каталог Промышленные предприятия, здания и сооружения Здания и сооружения санитарно-технические Воздухоснабжение, вентиляция и кондиционирование воздуха Воздухоснабжение
Типовой проект 904-1-74.87Типовой проект 904-1-74.87Типовой проект 904-1-74.87Типовой проект 904-1-74.87Типовой проект 904-1-74.87Типовой проект 904-1-74.87Типовой проект 904-1-74.87Типовой проект 904-1-74.87Типовой проект 904-1-74.87Типовой проект 904-1-74.87Типовой проект 904-1-74.87Типовой проект 904-1-74.87Типовой проект 904-1-74.87Типовой проект 904-1-74.87Типовой проект 904-1-74.87Типовой проект 904-1-74.87Типовой проект 904-1-74.87Типовой проект 904-1-74.87Типовой проект 904-1-74.87Типовой проект 904-1-74.87Типовой проект 904-1-74.87Типовой проект 904-1-74.87Типовой проект 904-1-74.87Типовой проект 904-1-74.87Типовой проект 904-1-74.87Типовой проект 904-1-74.87Типовой проект 904-1-74.87Типовой проект 904-1-74.87Типовой проект 904-1-74.87Типовой проект 904-1-74.87Типовой проект 904-1-74.87Типовой проект 904-1-74.87Типовой проект 904-1-74.87Типовой проект 904-1-74.87Типовой проект 904-1-74.87Типовой проект 904-1-74.87Типовой проект 904-1-74.87Типовой проект 904-1-74.87Типовой проект 904-1-74.87Типовой проект 904-1-74.87Типовой проект 904-1-74.87Типовой проект 904-1-74.87Типовой проект 904-1-74.87Типовой проект 904-1-74.87Типовой проект 904-1-74.87Типовой проект 904-1-74.87Типовой проект 904-1-74.87Типовой проект 904-1-74.87Типовой проект 904-1-74.87Типовой проект 904-1-74.87Типовой проект 904-1-74.87Типовой проект 904-1-74.87

© 2013 Ёшкин Кот :-) Карта сайта