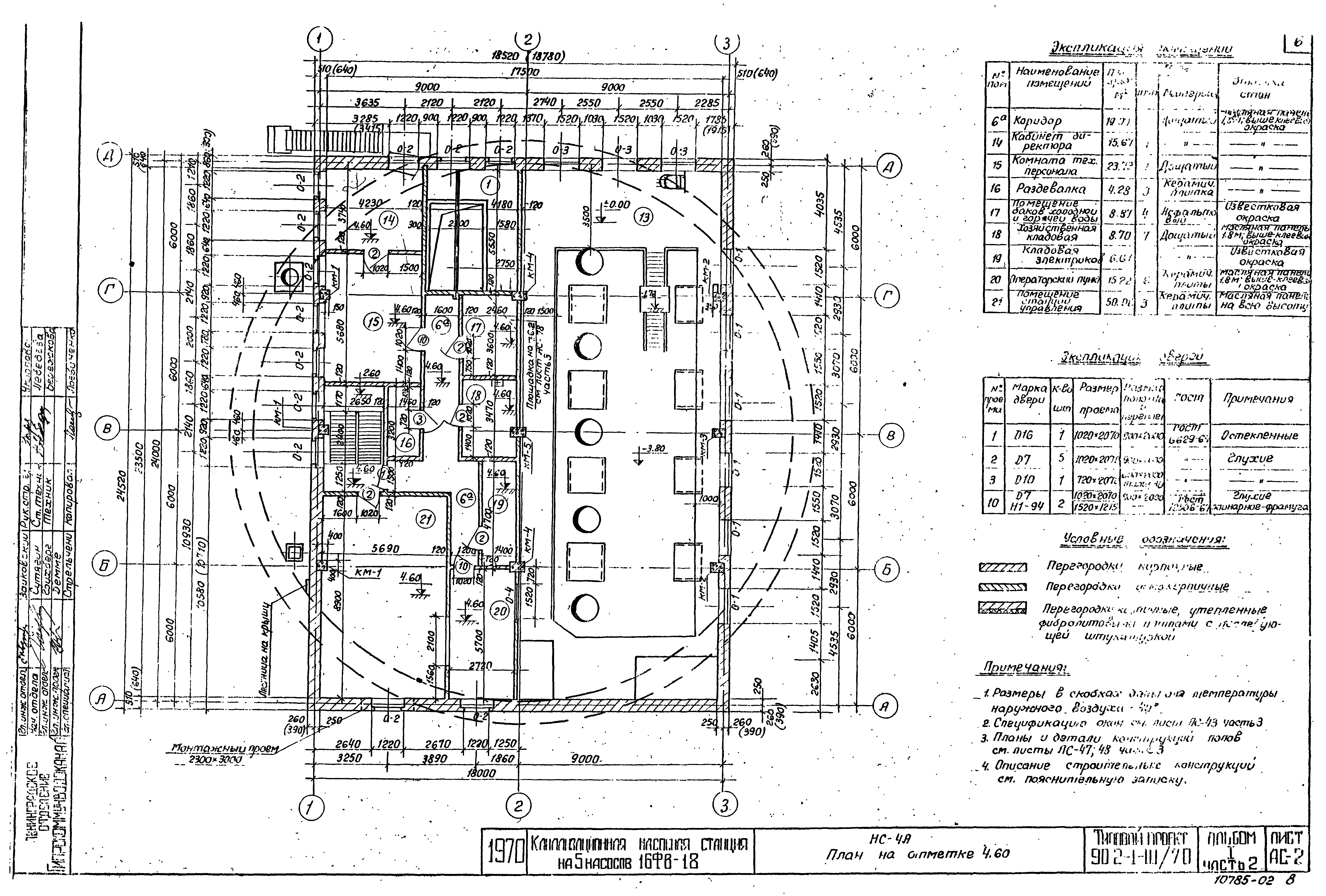
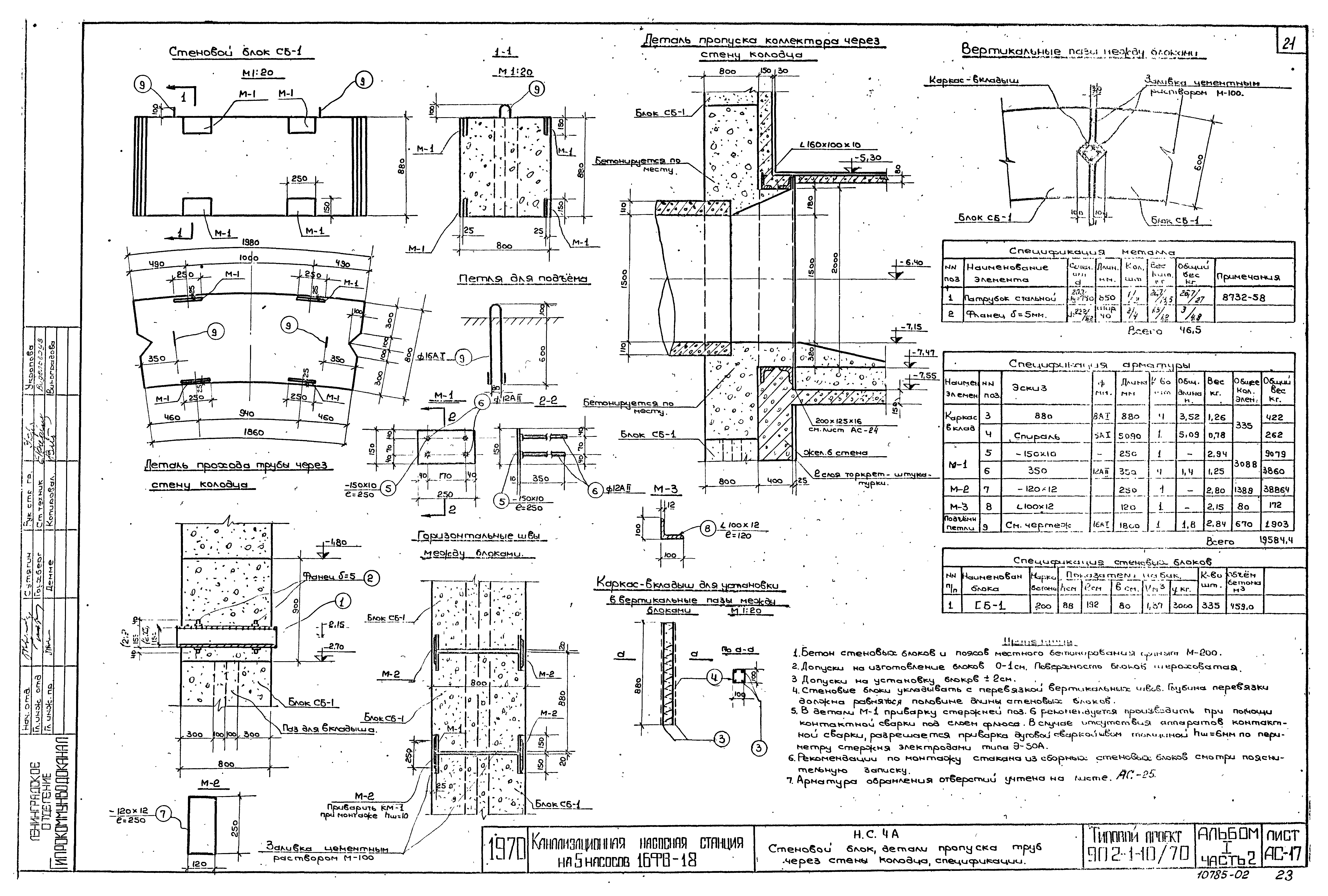
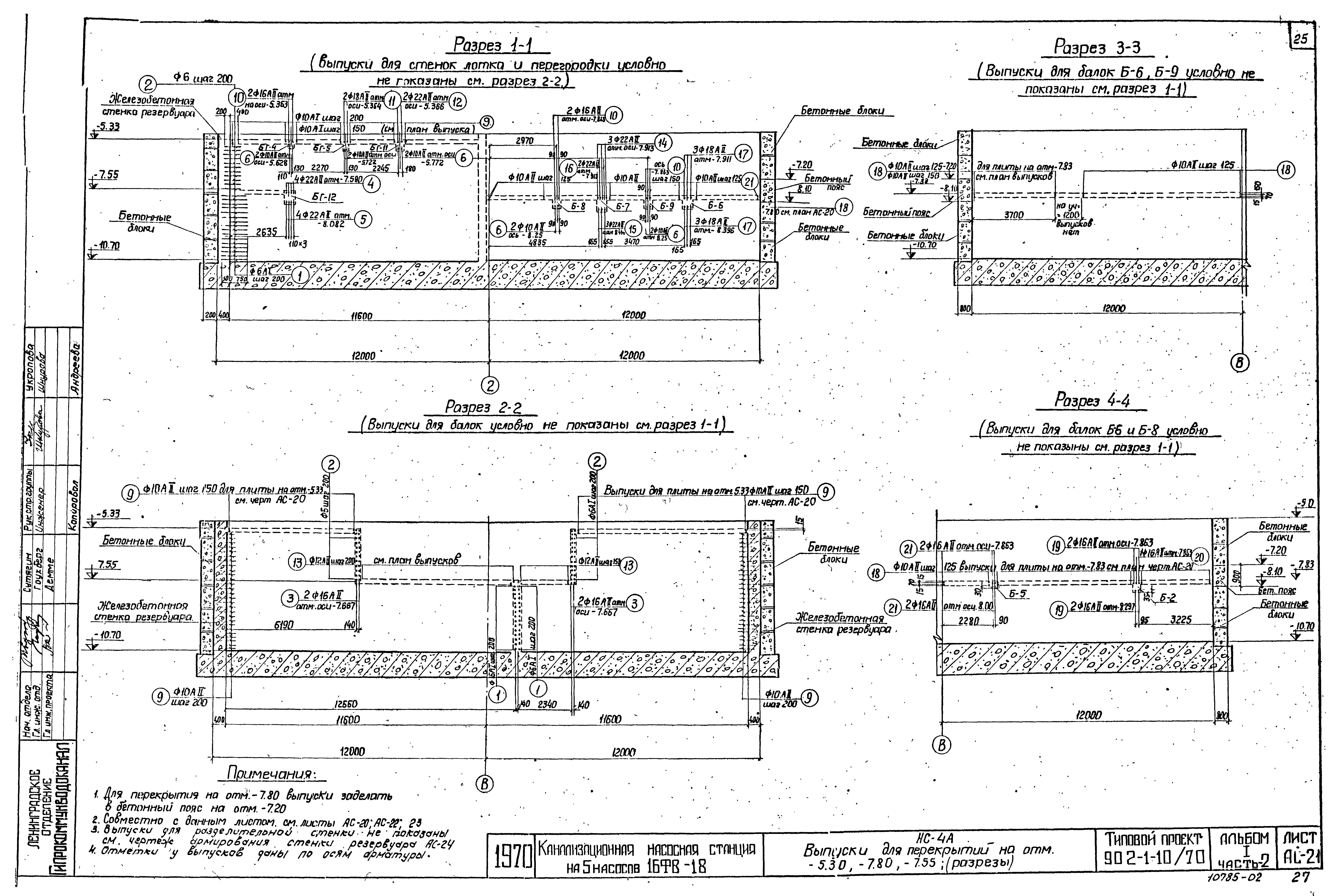
Скачать Типовой проект 902-1-10/70 Альбом I. Часть 2. Архитектурно-строительный. Производство работ открытым способом для сухих грунтов при глубине заложения подводящего коллектора 4,0 м. Подземная часть из сборных блоковДата актуализации: 10.08.2017 Типовой проект 902-1-10/70
Альбом I. Часть 2. Архитектурно-строительный. Производство работ открытым способом для сухих грунтов при глубине заложения подводящего коллектора 4,0 м. Подземная часть из сборных блоковОбозначение: | Типовой проект 902-1-10/70 | Обозначение англ: | 902-1-10/70 | Статус: | не действует | Название рус.: | Альбом I. Часть 2. Архитектурно-строительный. Производство работ открытым способом для сухих грунтов при глубине заложения подводящего коллектора 4,0 м. Подземная часть из сборных блоков | Дата добавления в базу: | 01.09.2013 | Дата актуализации: | 05.05.2017 | Дата окончания срока действия: | 01.01.1986 | Разработан: | Ленинградское отделение института Гипрокоммунводоканал
| Утверждён: | 21.05.1971 Министерство коммунального хозяйства РСФСР (4тд)
| Расположен в: |
| Чем заменён: | |
                                                     
|