| ||||||||||||||||||||||||||||||||
Скачать Серия ПК-01-129/78 Выпуск 2-1. Рабочие чертежи ферм пролетом 18 м из бетона марок 700 - 800Дата актуализации: 10.08.2017
|
| Обозначение: | Серия ПК-01-129/78 |
| Обозначение англ: | Series ПК-01-129/78 |
| Статус: | не действует |
| Название рус.: | Выпуск 2-1. Рабочие чертежи ферм пролетом 18 м из бетона марок 700 - 800 |
| Дата добавления в базу: | 01.09.2013 |
| Дата актуализации: | 05.05.2017 |
| Дата введения: | 01.01.1982 |
| Дата окончания срока действия: | 01.08.1989 |
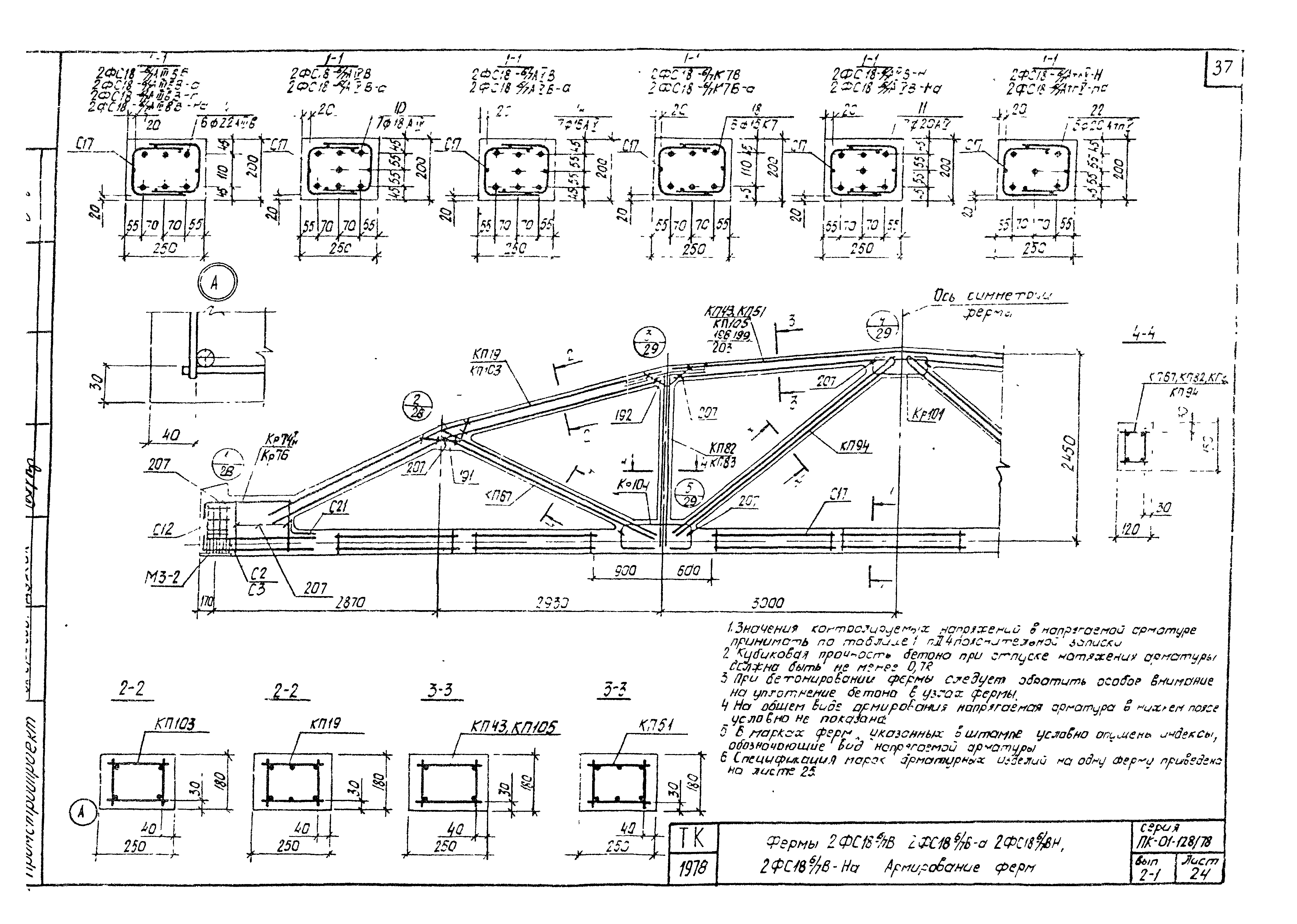
| Оглавление: | Пояснительная записка Номенклатура ферм Выборка стали на напрягаемую арматуру. Расход стали на ферму Выборка стали на ненапрягаемую арматуру и закладные изделия Фермы 1ФС18-4/5В, 1ФС18-5В, 1ФС18-4/5В-а, 1ФС18-4/5В-Н, 1ФС18-5В-Н, 1ФС18-4/5-На. Опалубочный чертеж Фермы 1ФС18-4/5В, 1ФС18-4/5В-а, 1ФС18-4/5В-Н, 1ФС18-4/5В-На. Армирование ферм Фермы 1ФС18-4/5В, 1ФС18-4/5В-а, 1ФС18-4/5В-Н, 1ФС18-4/5В-На. Спецификация марок арматурных изделий на одну ферму Фермы 1ФС18-5В, 1ФС18-5В-Н. Армирование ферм Фермы 1ФС18-5В, 1ФС18-5В-Н. Спецификация марок арматурных изделий на одну ферму Фермы 1ФС18-4/5В, 1ФС18-4/5В-а, 1ФС18-4/5В-Н, 1ФС18-4/5В-На. Узлы 1, 2 Фермы 1ФС18-4/5В, 1ФС18-4/5В-а, 1ФС18-4/5В-Н, 1ФС18-4/5В-На. Узлы 3, 4, 5 Фермы 2ФС18-5/6В…2ФС18-7В, 2ФС18-5/6В-а…2ФС18-7В-а, 2ФС18-5/6В-Н... 2ФС18-6В-Н, 2ФС18-5/6В-На…2ФС18-7В-На. Опалубочный чертеж Фермы 2ФС18-5/6В, 2ФС18-5/6В-а, 2ФС18-5/6В-Н, 2ФС18-5/6В-На. Армирование ферм Фермы 2ФС18-5/6В, 2ФС18-5/6В-а, 2ФС18-5/6В-Н, 2ФС18-5/6В-На. Спецификация марок арматурных изделий на одну ферму Фермы 2ФС18-6В, 2ФС18-6В-а, 2ФС18-6В-Н, 2ФС18-6В-На. Армирование ферм Фермы 2ФС18-6В, 2ФС18-6В-а, 2ФС18-6В-Н, 2ФС18-6В-На. Спецификация марок арматурных изделий на одну ферму Фермы 2ФС18-6/7В, 2ФС18-6/7В-а, 2ФС18-6/7В-Н, 2ФС18-6/7В-На. Армирование ферм Фермы 2ФС18-6/7В, 2ФС18-6/7В-а, 2ФС18-6/7В-Н, 2ФС18-6/7В-На. Спецификация марок арматурных изделий на одну ферму Фермы 2ФС18-7В, 2ФС18-7В-а, 2ФС18-7В-Н, 2ФС18-7В-На. Армирование ферм Фермы 2ФС18-7В, 2ФС18-7В-а, 2ФС18-7В-Н, 2ФС18-7В-На. Спецификация марок арматурных изделий на одну ферму Фермы 2ФС18-5/6В…2ФС18-7В, 2ФС18-5/6В-а…2ФС18-7В-а, 2ФС18-5/6В-Н... 2ФС18-6В-Н, 2ФС18-5/6В-На…2ФС18-7В-На. Узлы 1, 2 Фермы 2ФС18-5/6В…2ФС18-7В, 2ФС18-5/6В-а…2ФС18-7В-а, 2ФС18-5/6В-Н... 2ФС18-6В-Н, 2ФС18-5/6В-На…2ФС18-7В-На. Узлы 3, 4, 5 Фермы 3ФС18-9В, 3ФС18-9В-Н. Опалубочный чертеж Фермы 3ФС18-9В, 3ФС18-9В-Н. Армирование ферм Фермы 3ФС18-9В, 3ФС18-9В-Н. Спецификация марок арматурных изделий на одну ферму Фермы 3ФС18-9В, 3ФС18-9В-Н. Узлы 1, 2 Фермы 3ФС18-9В, 3ФС18-9В-Н. Узлы 3, 4, 5 Фермы 4ФС18-10В, 4ФС18-10В-Н, 4ФС18-11В, 4ФС18-11В-Н, 4ФС18-12В, 4ФС18-12В-Н. Опалубочный чертеж Фермы 4ФС18-10В, 4ФС18-10В-Н. Армирование ферм Фермы 4ФС18-10В, 4ФС18-10В-Н. Спецификация марок арматурных изделий на одну ферму Фермы 4ФС18-11В, 4ФС18-11В-Н. Армирование ферм Фермы 4ФС18-11В, 4ФС18-11В-Н. Спецификация марок арматурных изделий на одну ферму Фермы 4ФС18-12В, 4ФС18-12В-Н. Армирование ферм Фермы 4ФС18-12В, 4ФС18-12В-Н. Спецификация марок арматурных изделий на одну ферму Фермы 4ФС18-10В, 4ФС18-10В-Н, 4ФС18-11В, 4ФС18-11В-Н, 4ФС18-12В, 4ФС18-12В-Н. Узлы 1, 2 Фермы 4ФС18-10В, 4ФС18-10В-Н, 4ФС18-11В, 4ФС18-11В-Н, 4ФС18-12В, 4ФС18-12В-Н. Узлы 3, 4, 5 |
| Разработан: | ЦНИИпромзданий НИИСК Киевский Промстройпроект НИИЖБ |
| Утверждён: | 23.06.1981 Госстрой СССР (Государственный комитет Совета Министров СССР по делам строительства) (USSR Gosstroy 103) |
| Расположен в: | |
| Заменяет собой: | |
| Чем заменён: |























































