Информационная система
«Ёшкин Кот»

Скачать базу одним архивом
Скачать обновления
История создания базы
Карта сайта

Скачать Шифр 1484 Выпуск 0-2. Трубы для автомобильных дорог. Материалы для проектирования

Дата актуализации: 10.08.2017

Шифр 1484

Выпуск 0-2. Трубы для автомобильных дорог. Материалы для проектирования

Обозначение: Шифр 1484
Обозначение англ: 1484
Статус:не определен законодательством
Название рус.:Выпуск 0-2. Трубы для автомобильных дорог. Материалы для проектирования
Дата добавления в базу:01.09.2013
Дата актуализации:05.05.2017
Дата введения:30.05.2002
Оглавление:1484.0-2-ПЗ Пояснительная записка
1484.0-2-01 Бесфундаментные трубы. Расчетный лист звеньев труб
1484.0-2-02 Бесфундаментные трубы. Расчетный лист звеньев труб на скальном основании и свайном фундаменте
1484.0-2-03 Бесфундаментные трубы. Расчетный лист звеньев труб в период производства работ
1484.0-2-04 Трубы на фундаменте типа 1 и 3. Расчетный лист звеньев труб
1484.0-2-05 Трубы на фундаменте типа 1 и 3. Расчетный лист звеньев труб на скальном основании и свайном фундаменте
1484.0-2-06 Трубы на фундаменте типа 1 и 3. Расчетный лист звеньев труб в период производства работ
1484.0-2-07 Гидравлические расчеты
1484.0-2-08 Типы оснований и фундаментов и условия их применения
1484.0-2-09 Графики давлений на грунт
1484.0-2-10 Детали устройства гидроизоляции
1484.0-2-11 Схема засыпки трубы
1484.0-2-12 Номенклатура блоков
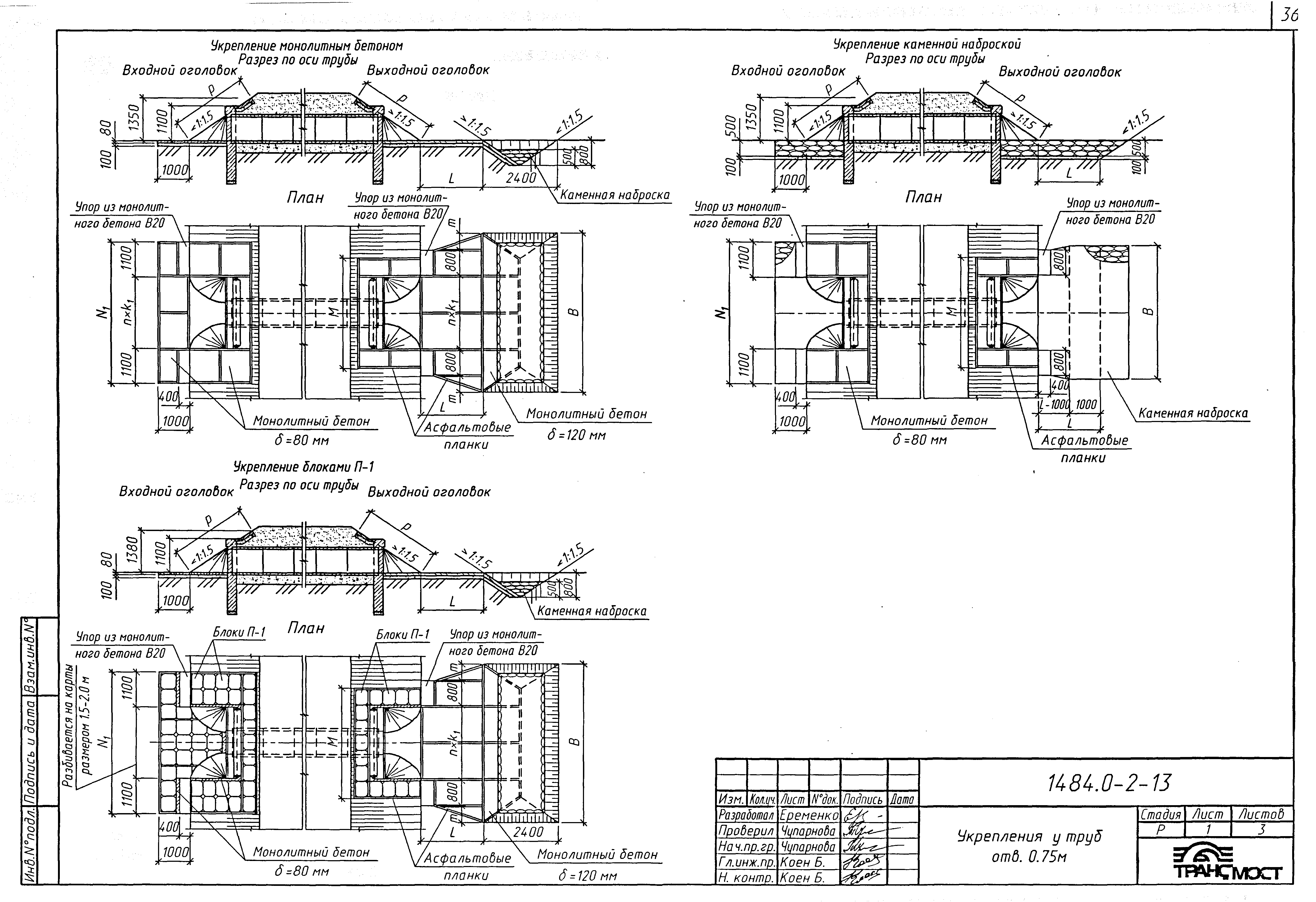
1484.0-2-13 Укрепления у труб отв. 0,75 м
1484.0-2-14 Укрепление монолитным бетоном
1484.0-2-15 Укрепление блоками П-1
1484.0-2-16 Конструкция конца укрепления
1484.0-2-17 Укрепление каменной наброской
1484.0-2-18 Ведомость объемов работ на 1 п. м средней части труб
1484.0-2-19 Ведомость объемов работ на оголовок
1484.0-2-20 Средняя часть бесфундаментных труб отв. 0,5; 0,75; 2 х 0,75; 3 х 0,75 м
1484.0-2-21 Средняя часть бесфундаментных труб отв. 1,0; 2 х 1,5; 3 х 2,0 м
1484.0-2-22 Средняя часть бесфундаментных труб отв. 1,25; 2 х 1,25; 3 х 1,25 м
1484.0-2-23 Средняя часть бесфундаментных труб отв. 1,5; 2 х 1,5; 3 х 1,5 м
1484.0-2-24 Средняя часть бесфундаментных труб отв. 2,0; 2 х 2,0; 3 х 2,0 м
1484.0-2-25 Средняя часть трубы отв. 1,0; 2 х 1,0; 3 х 1,0 м с фундаментом типа 1
1484.0-2-26 Средняя часть трубы отв. 1,25; 2 х 1,25; 3 х 1,25 м с фундаментом типа 1
1484.0-2-27 Средняя часть трубы отв. 1,5; 2 х 1,5; 3 х 1,5 м с фундаментом типа 1
1484.0-2-28 Средняя часть трубы отв. 2,0; 2 х 2,0; 3 х 2,0 м с фундаментом типа 1
1484.0-2-29 Средняя часть трубы отв. 1,0; 2 х 1,0; 3 х 1,0 м с фундаментом типа 3
1484.0-2-30 Средняя часть трубы отв. 1,25; 2 х 1,25; 3 х 1,25 м с фундаментом типа 3
1484.0-2-31 Средняя часть трубы отв. 1,5; 2 х 1,5; 3 х 1,5 м с фундаментом типа 3
1484.0-2-32 Средняя часть трубы отв. 2,0; 2 х 2,0; 3 х 2,0 м с фундаментом типа 3
1484.0-2-33 Оголовок бесфундаментной трубы отв. 0,5 м
1484.0-2-34 Оголовок бесфундаментной трубы отв. 0,75 м
1484.0-2-35 Оголовок бесфундаментной трубы отв. 2 х 0,75 м
1484.0-2-36 Оголовок бесфундаментной трубы отв. 3 х 0,75 м
1484.0-2-37 Оголовок бесфундаментной трубы отв. 1,0 м
1484.0-2-38 Оголовок бесфундаментной трубы отв. 2 х 1,0 м
1484.0-2-39 Оголовок бесфундаментной трубы отв. 3 х 1,0 м
1484.0-2-40 Оголовок бесфундаментной трубы отв. 1,25 м
1484.0-2-41 Оголовок бесфундаментной трубы отв. 2 х 1,25 м
1484.0-2-42 Оголовок бесфундаментной трубы отв. 3 х 1,25 м
1484.0-2-43 Оголовок бесфундаментной трубы отв. 1,5 м
1484.0-2-44 Оголовок бесфундаментной трубы отв. 2 х 1,5 м
1484.0-2-45 Оголовок бесфундаментной трубы отв. 3 х 1,5 м
1484.0-2-46 Оголовок бесфундаментной трубы отв. 2,0 м
1484.0-2-47 Оголовок бесфундаментной трубы отв. 2 х 2,0 м
1484.0-2-48 Оголовок бесфундаментной трубы отв. 3 х 2,0 м
1484.0-2-49 Оголовок трубы отв. 1,0 м с фундаментом типа 1
1484.0-2-50 Оголовок трубы отв. 2 х 1,0 м с фундаментом типа 1
1484.0-2-51 Оголовок трубы отв. 3 х 1,0 м с фундаментом типа 1
1484.0-2-52 Оголовок трубы отв. 1,25 м с фундаментом типа 1
1484.0-2-53 Оголовок трубы отв. 2 х 1,25 м с фундаментом типа 1
1484.0-2-54 Оголовок трубы отв. 3 х 1,25 м с фундаментом типа 1
1484.0-2-55 Оголовок трубы отв. 1,5 м с фундаментом типа 1
1484.0-2-56 Оголовок трубы отв. 2 х 1,5 м с фундаментом типа 1
1484.0-2-57 Оголовок трубы отв. 3 х 1,5 м с фундаментом типа 1
1484.0-2-58 Оголовок трубы отв. 2,0 м с фундаментом типа 1
1484.0-2-59 Оголовок трубы отв. 2 х 2,0 м с фундаментом типа 1
1484.0-2-60 Оголовок трубы отв.3 х 2,0 м с фундаментом типа 1
1484.0-2-61 Оголовок трубы отв. 1,0 м с фундаментом типа 3
1484.0-2-62 Оголовок трубы отв. 2 х 1,0 м с фундаментом типа 3
1484.0-2-63 Оголовок трубы отв. 3 х 1,0 м с фундаментом типа 3
1484.0-2-64 Оголовок трубы отв. 1,25 м с фундаментом типа 3
1484.0-2-65 Оголовок трубы отв. 2 х 1,25 м с фундаментом типа 3
1484.0-2-66 Оголовок трубы отв. 3 х 1,25 м с фундаментом типа 3
1484.0-2-67 Оголовок трубы отв. 1,5 м с фундаментом типа 3
1484.0-2-68 Оголовок трубы отв. 2 х 1,5 м с фундаментом типа 3
1484.0-2-69 Оголовок трубы отв. 3 х 1,5 м с фундаментом типа 3
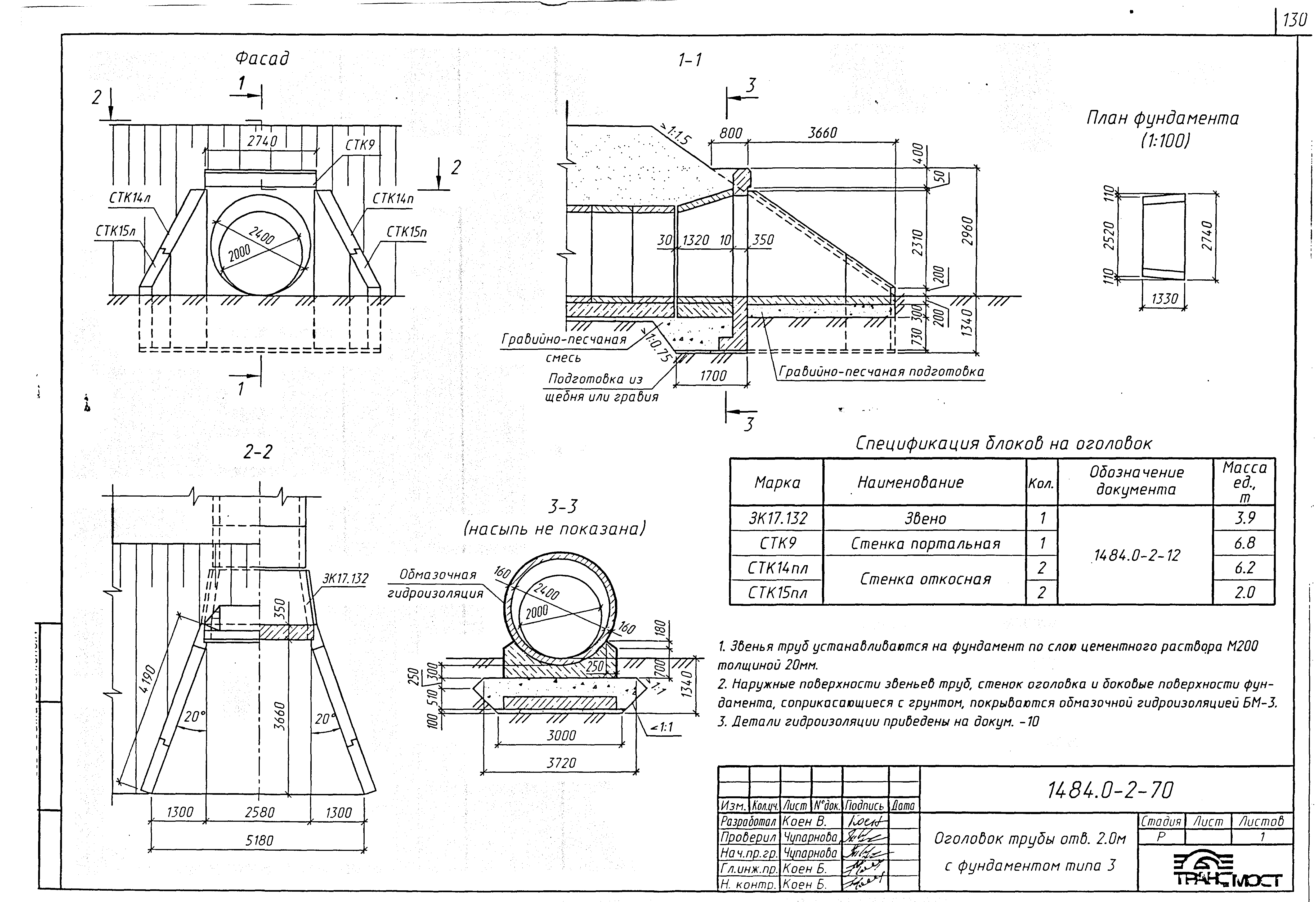
1484.0-2-70 Оголовок трубы отв. 2,0 м с фундаментом типа 3
1484.0-2-71 Оголовок трубы отв. 2 х 2,0 м с фундаментом типа 3
1484.0-2-72 Оголовок трубы отв. 3 х 2,0 м с фундаментом типа 3
1484.0-2-73 Оголовки бесфундаментных труб отв. 1,0; 1,25; 1,5 м с нормальным входным звеном
1484.0-2-74 Оголовки бесфундаментных труб отв. 1,0; 1,25; 1,5 м с нормальным входным звеном с фундаментом типа 1
1484.0-2-75 Оголовки бесфундаментных труб отв. 1,0; 1,25; 1,5 м с нормальным входным звеном с фундаментом типа 3
1484.0-2-76 Пример конструкции оголовка трубы отв. 1,5 м с фундаментом типа 1 при глубине промерзания 2,0 м
1484.0-2-77 Пример конструкции оголовка трубы отв. 1,5 м с фундаментом типа 3 при глубине промерзания 2,0 м
1484.0-2-78 Пример конструкции бесфундаментной трубы отв. 2 Х 1,0 м
1484.0-2-79 Пример конструкции трубы отв. 1,25 м с фундаментом типа 1
1484.0-2-80 Пример конструкции трубы отв. 2 х 1,0 м с фундаментом типа 3
Разработан: ОАО Трансмост
Утверждён:23.04.2002 МПС России
Расположен в:Техническая документация Строительство Справочные документы Типовые строительные конструкции, изделия и узлы Общероссийский строительный каталог Строительные конструкции, изделия и узлы зданий и сооружений для всех видов строительства Конструкции и изделия сооружений и оборудования зданий Надземные сооружения Конструкции и сооружения транспорта Дорожные водопропускные и водоотводные сооружения
Шифр 1484Шифр 1484Шифр 1484Шифр 1484Шифр 1484Шифр 1484Шифр 1484Шифр 1484Шифр 1484Шифр 1484Шифр 1484Шифр 1484Шифр 1484Шифр 1484Шифр 1484Шифр 1484Шифр 1484Шифр 1484Шифр 1484Шифр 1484Шифр 1484Шифр 1484Шифр 1484Шифр 1484Шифр 1484Шифр 1484Шифр 1484Шифр 1484Шифр 1484Шифр 1484Шифр 1484Шифр 1484Шифр 1484Шифр 1484Шифр 1484Шифр 1484Шифр 1484Шифр 1484Шифр 1484Шифр 1484Шифр 1484Шифр 1484Шифр 1484Шифр 1484Шифр 1484Шифр 1484Шифр 1484Шифр 1484Шифр 1484Шифр 1484Шифр 1484Шифр 1484Шифр 1484Шифр 1484Шифр 1484Шифр 1484Шифр 1484Шифр 1484Шифр 1484Шифр 1484Шифр 1484Шифр 1484Шифр 1484Шифр 1484Шифр 1484Шифр 1484Шифр 1484Шифр 1484Шифр 1484Шифр 1484Шифр 1484Шифр 1484Шифр 1484Шифр 1484Шифр 1484Шифр 1484Шифр 1484Шифр 1484Шифр 1484Шифр 1484Шифр 1484Шифр 1484Шифр 1484Шифр 1484Шифр 1484Шифр 1484Шифр 1484Шифр 1484Шифр 1484Шифр 1484Шифр 1484Шифр 1484Шифр 1484Шифр 1484Шифр 1484Шифр 1484Шифр 1484Шифр 1484Шифр 1484Шифр 1484Шифр 1484Шифр 1484Шифр 1484Шифр 1484Шифр 1484Шифр 1484Шифр 1484Шифр 1484Шифр 1484Шифр 1484Шифр 1484Шифр 1484Шифр 1484Шифр 1484Шифр 1484Шифр 1484Шифр 1484Шифр 1484Шифр 1484Шифр 1484Шифр 1484Шифр 1484Шифр 1484Шифр 1484Шифр 1484Шифр 1484Шифр 1484Шифр 1484Шифр 1484Шифр 1484Шифр 1484Шифр 1484Шифр 1484Шифр 1484Шифр 1484Шифр 1484Шифр 1484Шифр 1484Шифр 1484Шифр 1484Шифр 1484Шифр 1484Шифр 1484Шифр 1484Шифр 1484Шифр 1484Шифр 1484Шифр 1484Шифр 1484Шифр 1484

© 2013 Ёшкин Кот :-) Карта сайта