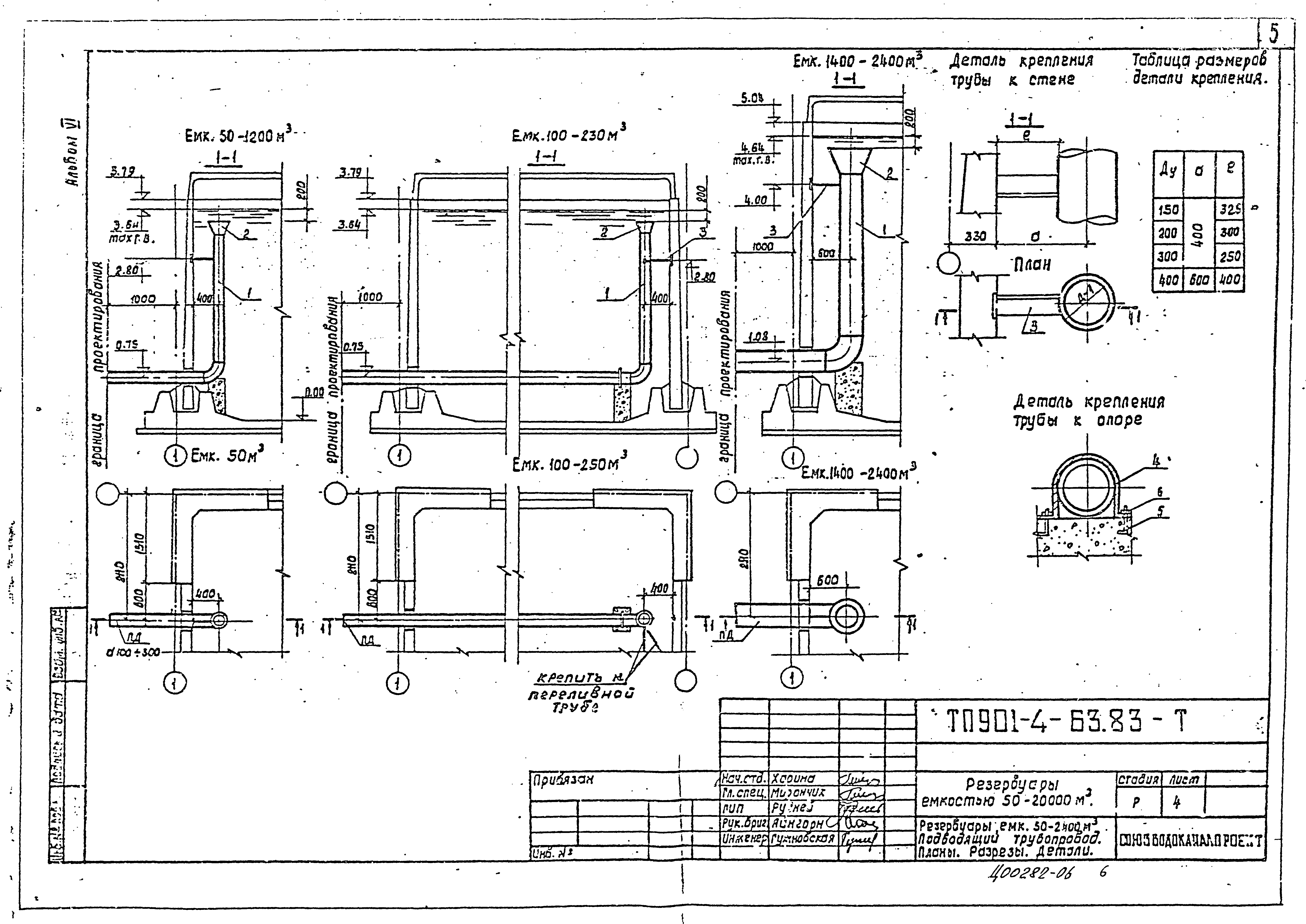
Скачать Типовой проект 901-4-59.83 Альбом VI. Технологические трубопроводы и сигнализация для резервуаров емкостью 50 - 20000 куб. м (из ТП 901-4-63.83)Дата актуализации: 10.08.2017 Типовой проект 901-4-59.83
Альбом VI. Технологические трубопроводы и сигнализация для резервуаров емкостью 50 - 20000 куб. м (из ТП 901-4-63.83)Обозначение: | Типовой проект 901-4-59.83 | Обозначение англ: | 901-4-59.83 | Статус: | действует | Название рус.: | Альбом VI. Технологические трубопроводы и сигнализация для резервуаров емкостью 50 - 20000 куб. м (из ТП 901-4-63.83) | Дата добавления в базу: | 01.09.2013 | Дата актуализации: | 05.05.2017 | Разработан: | Союзводоканалпроект
| Утверждён: | 17.11.1978 Госстрой СССР (Государственный комитет Совета Министров СССР по делам строительства) (USSR Gosstroy 2/3-409)
| Расположен в: |
|
             
|