Информационная система
«Ёшкин Кот»

Скачать базу одним архивом
Скачать обновления
История создания базы
Карта сайта

Скачать Типовой проект 903-9-12сп.86 Альбом IV. Передвижная стремянка. Рабочие чертежи

Дата актуализации: 10.08.2017

Типовой проект 903-9-12сп.86

Альбом IV. Передвижная стремянка. Рабочие чертежи

Обозначение: Типовой проект 903-9-12сп.86
Обозначение англ: 903-9-12сп.86
Статус:не определен законодательством
Название рус.:Альбом IV. Передвижная стремянка. Рабочие чертежи
Дата добавления в базу:01.09.2013
Дата актуализации:05.05.2017
Дата введения:18.06.1985
Оглавление:Титульный лист
Содержание
1132.00.000 Стремянка передвижная
1132.00.000 СБ Стремянка передвижная. Сборочный чертеж
1132.00.000 ВС Ведомость спецификаций
1132.00.000 ВП Ведомость покупных изделий
1132.00.000 ТУ Технические условия
1132.00.000 ПС Паспорт
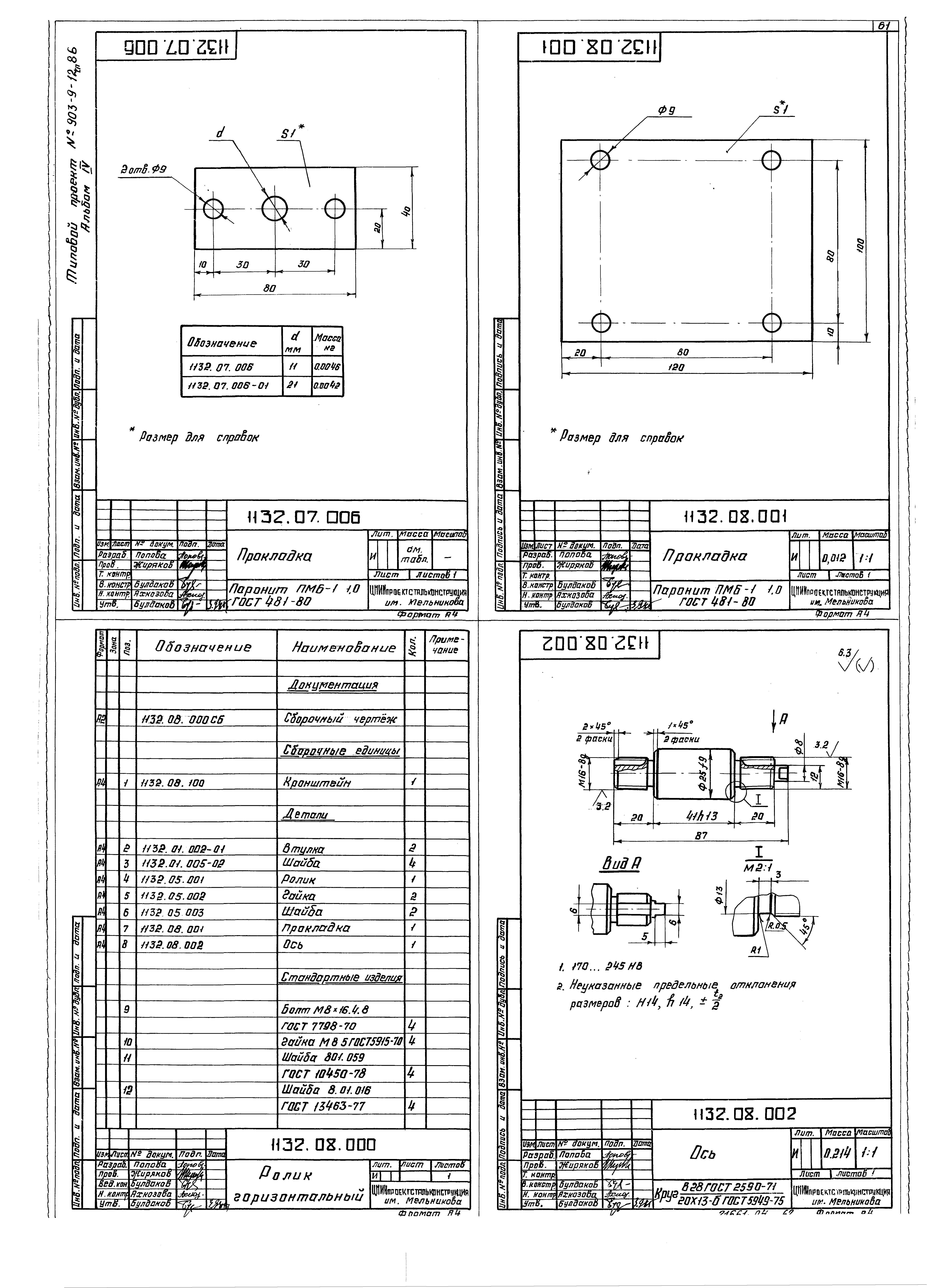
1132.00.001 Прокладка
1132.00.002 Прокладка
1132.00.003 Прокладка
1132.00.004 Бобышка
1132.00.005 Болт специальный
1132.00.006 Прокладка
1132.00.009 Прокладка
1132.00.011 Подкос
1132.00.100 Болт специальный
1132.00.100 СБ Болт специальный. Сборочный чертеж
1132.00.101 Флажок
1132.00.102 Шайба
1132.00.103 Звено переходное
1132.00.104 Болт
1132.00.200 Кронштейн
1132.00.201 Ребро
1132.01.000 Лестница откидная
1132.01.000 СБ Лестница откидная. Сборочный чертеж
1132.01.001 Ось
1132.01.002 Втулка
1132.01.003 Серьга
1132.01.004 Палец
1132.01.005 Шайба
1132.01.100 Кронштейн
1132.01.100 СБ Кронштейн. Сборочный чертеж
1132.01.102 Площадка
1132.01.103 Уголок
1132.01.104 Ребро
1132.01.200 Лестница
1132.01.200 СБ Лестница. Сборочный чертеж
1132.01.201 Стойка
1132.01.204 Поручень
1132.01.205 Накладка
1132.01.206 Кронштейн
1132.01.300 Зацеп
1132.01.301 Ручка
1132.01.302 Крюк
1132.02.000 Ограждение
1132.02.000 СБ Ограждение. Сборочный чертеж
1132.02.001 Хомут
1132.02.002 Хомут
1132.03.000 Стремянка
1132.03.000 СБ Стремянка. Сборочный чертеж
1132.03.001 Хомут
1132.03.002 Хомут
1132.03.003 Скоба
1132.03.100 Лестница
1132.03.100 СБ Лестница. Сборочный чертеж
1132.03.101 Ступенька
1132.03.102 Подкладка
1132.03.103 Уголок
1132.03.200 Площадка
1132.03.200 СБ Площадка. Сборочный чертеж
1132.03.201 Ребро
1132.04.000 Ограничитель
1132.04.000 СБ Ограничитель. Сборочный чертеж
1132.04.001 Ребро
1132.04.002 Уголок
1132.05.000 Ролик горизонтальный
1132.05.000 СБ Ролик горизонтальный. Сборочный чертеж
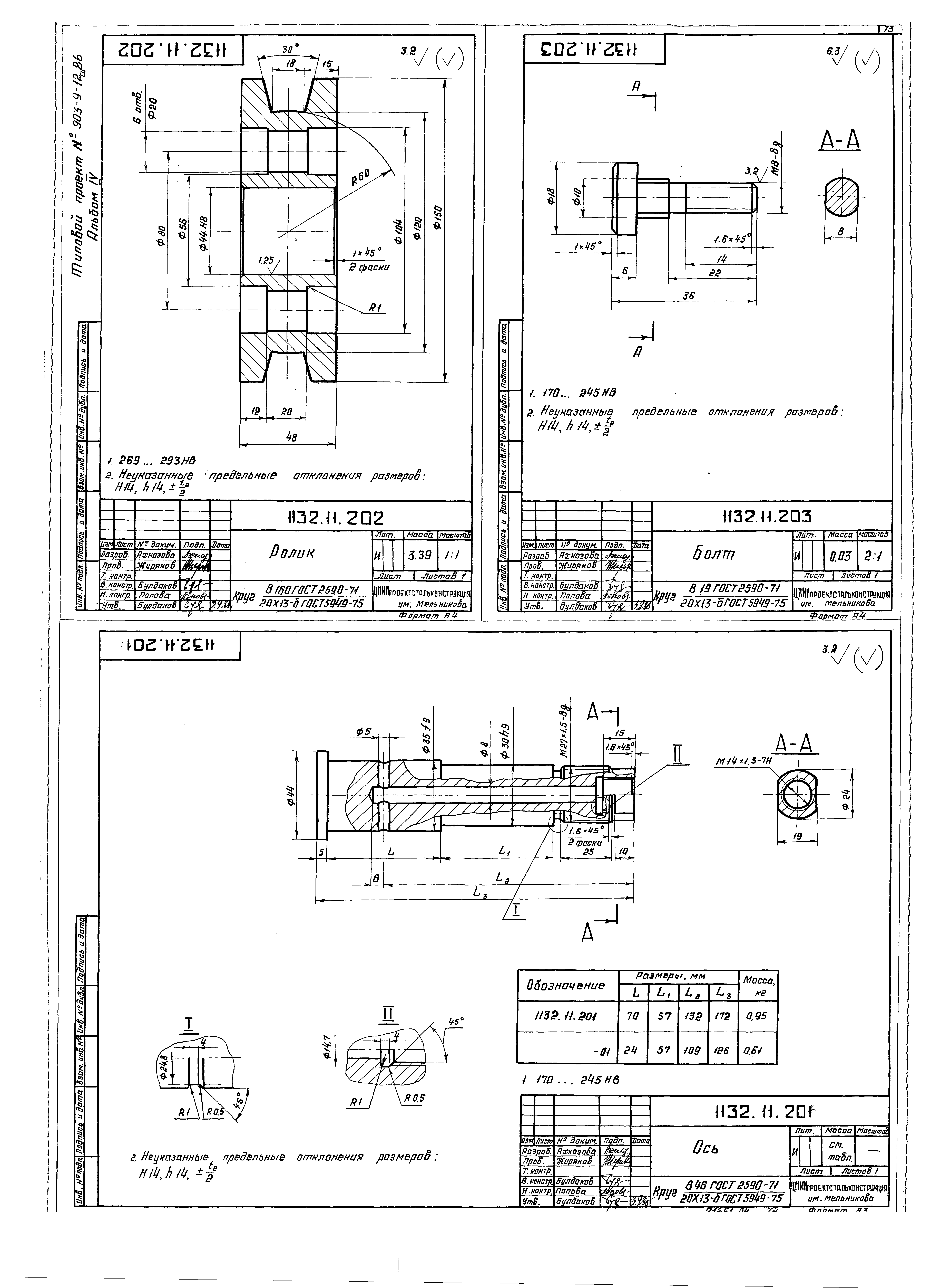
1132.05.001 Ролик
1132.05.002 Гайка
1132.05.003 Шайба
1132.05.004 Ось
1132.05.100 Кронштейн
1132.05.100 СБ Кронштейн. Сборочный чертеж
1132.05.101 Ребро
1132.05.103 Ребро
1132.06.000 Площадка выдвижная
1132.06.000 СБ Площадка выдвижная. Сборочный чертеж
1132.06.001 Заклепка
1132.06.002 Болт сферический
1132.06.003 Рукоятка
1132.06.100 Рама
1132.06.100 СБ Рама. Сборочный чертеж
1132.06.101 Ребро
1132.06.102 Косынка
1132.06.103 Планка
1132.07.000 Фиксатор
1132.07.000 СБ Фиксатор. Сборочный чертеж
1132.07.001 Кольцо
1132.07.002 Рукоятка
1132.07.003 Винт
1132.07.004 Плита
1132.07.005 Шайба
1132.07.006 Прокладка
1132.08.000 Ролик горизонтальный
1132.08.000 СБ Ролик горизонтальный. Сборочный чертеж
1132.08.001 Прокладка
1132.08.002 Ось
1132.08.100 Кронштейн
1132.08.100 СБ Кронштейн. Сборочный чертеж
1132.08.101 Щека
1132.11.000 Каретка
1132.11.000 СБ Каретка. Сборочный чертеж
1132.11.001 Плита
1132.11.100 Ролик опорный
1132.11.100 СБ Ролик опорный. Сборочный чертеж
1132.11.101 Фланец
1132.11.102 Ось
1132.11.103 Крышка
1132.11.104 Крышка
1132.11.105 Прокладка
1132.11.106 Кольцо
1132.11.107 Винт
1132.11.108 Болт
1132.11.109 Гайка
1132.11.111 Пробка
1132.11.112 Шайба
1132.11.113 Втулка
1132.11.114 Ролик
1132.11.120 Масленка
1132.11.121 Корпус
1132.11.122 Втулка
1132.11.123 Втулка
1132.11.124 Винт
1132.11.200 Ролик нижний
1132.11.200 СБ Ролик нижний. Сборочный чертеж
1132.11.201 Ось
1132.11.202 Ролик
1132.11.203 Болт
1132.11.300 Шестерня паразитная
1132.11.300 СБ Шестерня паразитная . Сборочный чертеж
1132.11.301 Шестерня
1132.11.400 Привод ручной
1132.11.400 СБ Привод ручной. Сборочный чертеж
1132.11.401 Шпонка
1132.11.402 Фланец
1132.11.403 Ось
1132.11.404 Ось
1132.11.405 Труба
1132.11.406 Шестерня ведущая
1132.11.407 Эксцентрик
1132.11.408 Штырь
1132.11.420 Рычаг
1132.11.421 Ребро
1132.11.422 Планка
1132.11.500 Фиксатор
1132.11.500 СБ Фиксатор. Сборочный чертеж
1132.12.000 Кронштейн
1132.12.000 СБ Кронштейн. Сборочный чертеж
1132.12.001 Упор
1132.12.004 Ребро
1132.12.005 Ребро
1132.12.006 Косынка
1132.12.008 Раскос
Разработан: ЦНИИпроектстальконструкция
Утверждён:18.06.1985 Минэнерго СССР (USSR Minenergo 58)
Издан: ГП ЦПП (1995 г. )
Расположен в:Техническая документация Строительство Справочные документы Типовые строительные конструкции, изделия и узлы Общероссийский строительный каталог Промышленные предприятия, здания и сооружения Здания и сооружения санитарно-технические Теплоснабжение Здания и сооружения разные
Типовой проект 903-9-12сп.86Типовой проект 903-9-12сп.86Типовой проект 903-9-12сп.86Типовой проект 903-9-12сп.86Типовой проект 903-9-12сп.86Типовой проект 903-9-12сп.86Типовой проект 903-9-12сп.86Типовой проект 903-9-12сп.86Типовой проект 903-9-12сп.86Типовой проект 903-9-12сп.86Типовой проект 903-9-12сп.86Типовой проект 903-9-12сп.86Типовой проект 903-9-12сп.86Типовой проект 903-9-12сп.86Типовой проект 903-9-12сп.86Типовой проект 903-9-12сп.86Типовой проект 903-9-12сп.86Типовой проект 903-9-12сп.86Типовой проект 903-9-12сп.86Типовой проект 903-9-12сп.86Типовой проект 903-9-12сп.86Типовой проект 903-9-12сп.86Типовой проект 903-9-12сп.86Типовой проект 903-9-12сп.86Типовой проект 903-9-12сп.86Типовой проект 903-9-12сп.86Типовой проект 903-9-12сп.86Типовой проект 903-9-12сп.86Типовой проект 903-9-12сп.86Типовой проект 903-9-12сп.86Типовой проект 903-9-12сп.86Типовой проект 903-9-12сп.86Типовой проект 903-9-12сп.86Типовой проект 903-9-12сп.86Типовой проект 903-9-12сп.86Типовой проект 903-9-12сп.86Типовой проект 903-9-12сп.86Типовой проект 903-9-12сп.86Типовой проект 903-9-12сп.86Типовой проект 903-9-12сп.86Типовой проект 903-9-12сп.86Типовой проект 903-9-12сп.86Типовой проект 903-9-12сп.86Типовой проект 903-9-12сп.86Типовой проект 903-9-12сп.86Типовой проект 903-9-12сп.86Типовой проект 903-9-12сп.86Типовой проект 903-9-12сп.86Типовой проект 903-9-12сп.86Типовой проект 903-9-12сп.86Типовой проект 903-9-12сп.86Типовой проект 903-9-12сп.86Типовой проект 903-9-12сп.86Типовой проект 903-9-12сп.86Типовой проект 903-9-12сп.86Типовой проект 903-9-12сп.86Типовой проект 903-9-12сп.86Типовой проект 903-9-12сп.86Типовой проект 903-9-12сп.86Типовой проект 903-9-12сп.86Типовой проект 903-9-12сп.86Типовой проект 903-9-12сп.86Типовой проект 903-9-12сп.86Типовой проект 903-9-12сп.86Типовой проект 903-9-12сп.86Типовой проект 903-9-12сп.86Типовой проект 903-9-12сп.86Типовой проект 903-9-12сп.86Типовой проект 903-9-12сп.86Типовой проект 903-9-12сп.86Типовой проект 903-9-12сп.86Типовой проект 903-9-12сп.86Типовой проект 903-9-12сп.86Типовой проект 903-9-12сп.86Типовой проект 903-9-12сп.86Типовой проект 903-9-12сп.86Типовой проект 903-9-12сп.86Типовой проект 903-9-12сп.86Типовой проект 903-9-12сп.86Типовой проект 903-9-12сп.86Типовой проект 903-9-12сп.86Типовой проект 903-9-12сп.86Типовой проект 903-9-12сп.86Типовой проект 903-9-12сп.86

© 2013 Ёшкин Кот :-) Карта сайта