Информационная система
«Ёшкин Кот»

Скачать базу одним архивом
Скачать обновления
История создания базы
Карта сайта

Скачать Типовой проект 903-9-12сп.86 Альбом III. Конструкции металлические

Дата актуализации: 10.08.2017

Типовой проект 903-9-12сп.86

Альбом III. Конструкции металлические

Обозначение: Типовой проект 903-9-12сп.86
Обозначение англ: 903-9-12сп.86
Статус:не определен законодательством
Название рус.:Альбом III. Конструкции металлические
Дата добавления в базу:01.09.2013
Дата актуализации:05.05.2017
Дата введения:18.06.1985
Оглавление:ТП 903-9-12сп86 КМ1 Общие данные (начало)
ТП 903-9-12сп86 КМ1 Общие данные (окончание)
ТП 903-9-12сп86 КМ1 Техническая спецификация стали и материалов (начало)
ТП 903-9-12сп86 КМ1 Техническая спецификация стали и материалов (окончание)
ТП 903-9-12сп86 КМ1 Ведомость металлоконструкций по видам профилей (снег 1.00 и 1.50 кПа, ветер 0.45;0.55;0.70 кПа)
ТП 903-9-12сп86 КМ1 Ведомость металлоконструкций стали и материалов (снег 2.00кПа и ветер 0.45кПа)
ТП 903-9-12сп86 КМ1 Общий вид
ТП 903-9-12сп86 КМ1 Покрытие. Монтажные узлы. Опорная конструкция стремянки
ТП 903-9-12сп86 КМ1 Стенка
ТП 903-9-12сп86 КМ1 Днище
ТП 903-9-12сп86 КМ1 Покрытие. Центральное кольцо
ТП 903-9-12сп86 КМ1 Покрытие. Таблица сечений и расчетных усилий элементов щита
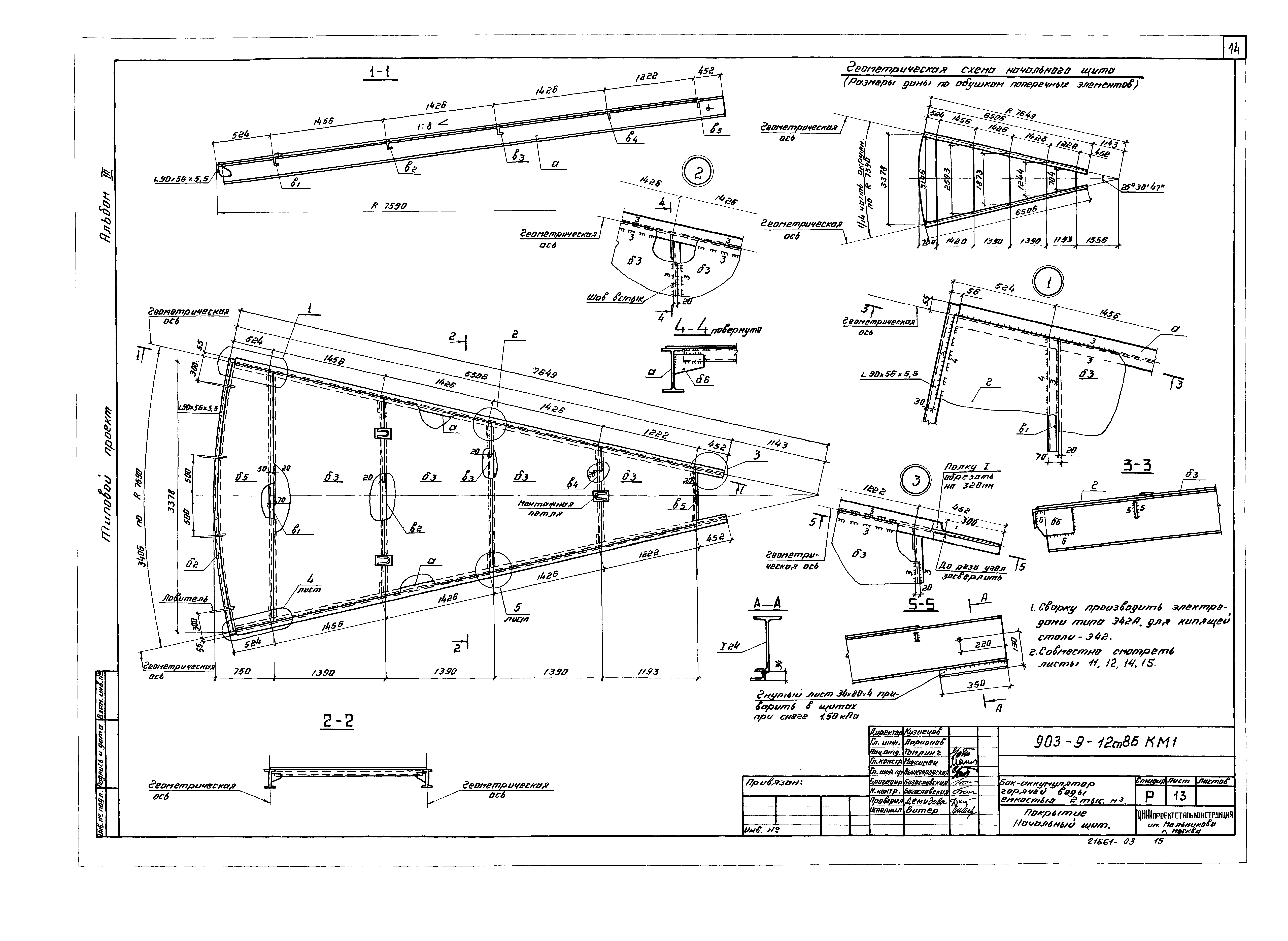
ТП 903-9-12сп86 КМ1 Покрытие. Начальный щит
ТП 903-9-12сп86 КМ1 Покрытие. Промежуточный щит
ТП 903-9-12сп86 КМ1 Покрытие. Замыкающий щит
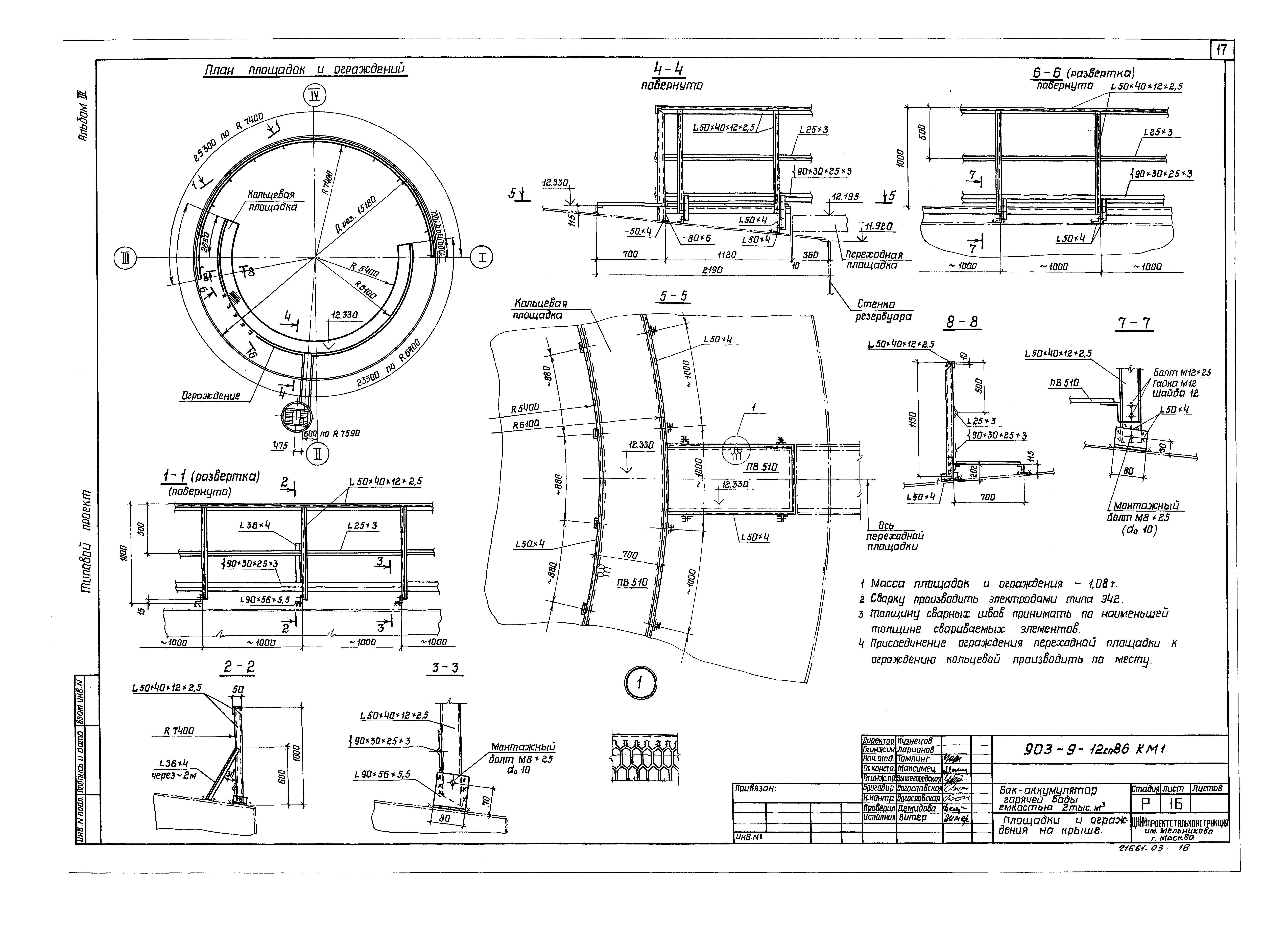
ТП 903-9-12сп86 КМ1 Площадки и ограждения на крыше
ТП 903-9-12сп86 КМ1 Исходные данные для проектирования основания и фундаментов
ТП 903-9-12сп86 КМ1 Люк-лаз Ду500, в 1 поясе стенки. Люк монтажный Ду400
ТП 903-9-12сп86 КМ1 Люк-лаз овальный 600х900 в 1 поясе стенки
ТП 903-9-12сп86 КМ1 Врезка патрубков
ТП 903-9-12сп86 КМ2 Сооружения противокоррозионной защиты. Общие данные
ТП 903-9-12сп86 КМ2 Техническая спецификация металла
ТП 903-9-12сп86 КМ2 Техническая спецификация металла для специализированных заводов
ТП 903-9-12сп86 КМ2 Ведомость металлоконструкций по видам профилей
ТП 903-9-12сп86 КМ2 Схема расположения элементов площадки обслуживания и опор резервуара герметизирующей жидкости. Опора трубопроводов
ТП 903-9-12сп86 КМ2 Узел 1 (опора резервуара неподвижная)
ТП 903-9-12сп86 КМ2 Узел 2 (опора резервуара катковая)
ТП 903-9-12сп86 КМ2 Узлы 3,4,5
ТП 903-9-12сп86 КМ2 Узлы 6-10
ТП 903-9-12сп86 КМ3 Общие данные и ведомость металлоконструкций по видам профилей. Опора СК1
ТП 903-9-12сп86 КМ3 Техническая спецификация стали и материалов
ТП 903-9-12сп86 КМ3 Схема элементов
ТП 903-9-12сп86 КМ3 Узлы 1;2
Разработан: ЦНИИпроектстальконструкция
Утверждён:18.06.1985 Минэнерго СССР (USSR Minenergo 58)
Издан: ГП ЦПП (1995 г. )
Расположен в:Техническая документация Строительство Справочные документы Типовые строительные конструкции, изделия и узлы Общероссийский строительный каталог Промышленные предприятия, здания и сооружения Здания и сооружения санитарно-технические Теплоснабжение Здания и сооружения разные
Типовой проект 903-9-12сп.86Типовой проект 903-9-12сп.86Типовой проект 903-9-12сп.86Типовой проект 903-9-12сп.86Типовой проект 903-9-12сп.86Типовой проект 903-9-12сп.86Типовой проект 903-9-12сп.86Типовой проект 903-9-12сп.86Типовой проект 903-9-12сп.86Типовой проект 903-9-12сп.86Типовой проект 903-9-12сп.86Типовой проект 903-9-12сп.86Типовой проект 903-9-12сп.86Типовой проект 903-9-12сп.86Типовой проект 903-9-12сп.86Типовой проект 903-9-12сп.86Типовой проект 903-9-12сп.86Типовой проект 903-9-12сп.86Типовой проект 903-9-12сп.86Типовой проект 903-9-12сп.86Типовой проект 903-9-12сп.86Типовой проект 903-9-12сп.86Типовой проект 903-9-12сп.86Типовой проект 903-9-12сп.86Типовой проект 903-9-12сп.86Типовой проект 903-9-12сп.86Типовой проект 903-9-12сп.86Типовой проект 903-9-12сп.86Типовой проект 903-9-12сп.86Типовой проект 903-9-12сп.86Типовой проект 903-9-12сп.86Типовой проект 903-9-12сп.86Типовой проект 903-9-12сп.86Типовой проект 903-9-12сп.86Типовой проект 903-9-12сп.86Типовой проект 903-9-12сп.86

© 2013 Ёшкин Кот :-) Карта сайта