Информационная система
«Ёшкин Кот»

Скачать базу одним архивом
Скачать обновления
История создания базы
Карта сайта

Скачать Типовой проект 704-1-150с Альбом IV. Оборудование резервуара с понтоном для нефти и бензина

Дата актуализации: 10.08.2017

Типовой проект 704-1-150с

Альбом IV. Оборудование резервуара с понтоном для нефти и бензина

Обозначение: Типовой проект 704-1-150с
Обозначение англ: 704-1-150с
Статус:не действует
Название рус.:Альбом IV. Оборудование резервуара с понтоном для нефти и бензина
Дата добавления в базу:01.09.2013
Дата актуализации:05.05.2017
Оглавление:ТП 704-1-150с Обложка
ТП 704-1-150с Содержание альбома
ТП 704-1-150с Пояснительная записка
ТП 704-1-150с ТХ Технологическая часть
ТП 704-1-150с ТХ-1 Оборудование резервуара с понтоном для нефти и бензина. Общий вид
ТП 704-1-150с ТХ-2 Оборудование резервуара с понтоном для нефти и бензина. Общий вид
ТП 704-1-150с ТХ-3 Установка приемо-раздаточного устройства Ду=100
ТП 704-1-150с ТХ-4 Установка огнепреградителя ОПХ-150
ТП 704-1-150с КА КИП и автоматика
ТП 704-1-150с КА-1 Функциональная схема автоматизации
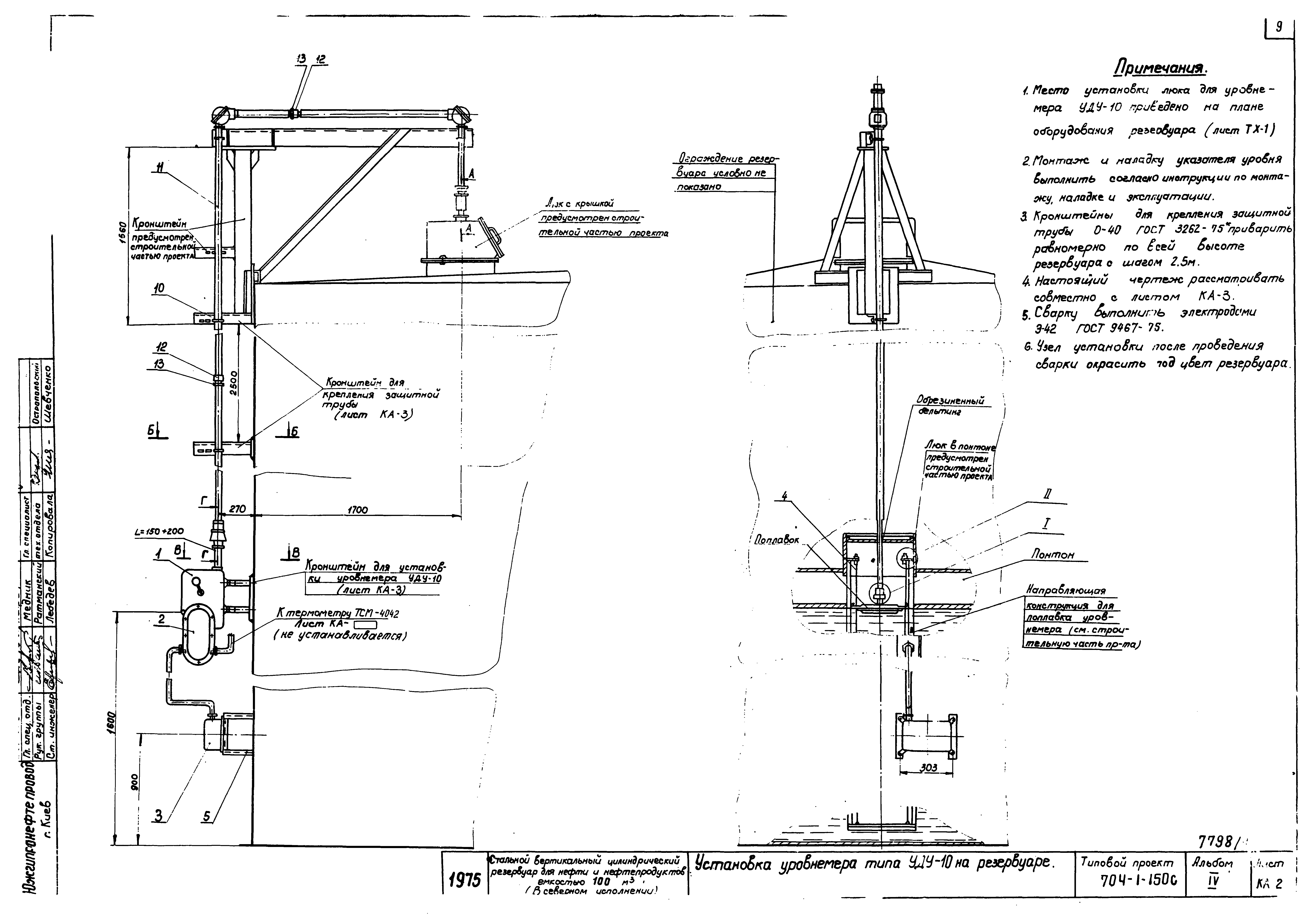
ТП 704-1-150с КА-2 Установка указателя уровня типа УДУ-10
ТП 704-1-150с КА-3 Установка указателя уровня типа УДУ-10. Детали
ТП 704-1-150с КА-4 Установка пробоотборника ПСР-7
ТП 704-1-150с КА-5 Установка термометра на стенке резервуара
ТП 704-1-150с ЭТ Электротехническая часть
ТП 704-1-150с ЭТ-1 Молниезащита и защита от статического электричества
ТП 704-1-150с АС Строительная часть
ТП 704-1-150с АС-1 Молниеотвод
Разработан: Южгипронефтепровод Миннефтепрома СССР
Утверждён:21.03.1977 Миннефтепром (Minnefteprom )
Расположен в:Техническая документация Строительство Справочные документы Типовые строительные конструкции, изделия и узлы Общероссийский строительный каталог Промышленные предприятия, здания и сооружения Предприятия, здания и сооружения складские Резервуары и склады для нефти и нефтепродуктов Резервуары стальные для нефти и нефтепродуктов
Типовой проект 704-1-150сТиповой проект 704-1-150сТиповой проект 704-1-150сТиповой проект 704-1-150сТиповой проект 704-1-150сТиповой проект 704-1-150сТиповой проект 704-1-150сТиповой проект 704-1-150сТиповой проект 704-1-150сТиповой проект 704-1-150сТиповой проект 704-1-150сТиповой проект 704-1-150сТиповой проект 704-1-150сТиповой проект 704-1-150сТиповой проект 704-1-150с

© 2013 Ёшкин Кот :-) Карта сайта