Информационная система
«Ёшкин Кот»

Скачать базу одним архивом
Скачать обновления
История создания базы
Карта сайта

Скачать 313.ТС-017.000 Типовые решения прокладки трубопроводов тепловых сетей в изоляции из пенобетона Совби диаметром Ду 50 - 600 мм. Конструкции и детали

Дата актуализации: 10.08.2017

313.ТС-017.000

Типовые решения прокладки трубопроводов тепловых сетей в изоляции из пенобетона "Совби" диаметром Ду 50 - 600 мм. Конструкции и детали

Обозначение: 313.ТС-017.000
Обозначение англ: 313.ТС-017.000
Статус:не определен законодательством
Название рус.:Типовые решения прокладки трубопроводов тепловых сетей в изоляции из пенобетона "Совби" диаметром Ду 50 - 600 мм. Конструкции и детали
Дата добавления в базу:01.09.2013
Дата актуализации:05.05.2017
Дата введения:01.01.2008
Область применения:Типовые технические решения по проектированию и строительству тепловых сетей в изоляции из монолитного заливочного пенобетона "Совби" для труб Ду 50 - 600 мм разработаны для применения в районах, имеющих расчетные температуры для наружного воздуха до минус 47 градусов Цельсия
Оглавление:313.ТС-015.000.ПЗ Пояснительная записка.
313.ТС-015.001 Трубы в изоляции из ПБ "СОВБИ" в полиэтиленовой оболочке
313.ТС-015.002 Трубы в изоляции из ПБ "СОВБИ" в полиэтиленовой оболочке с усилениями.
313.ТС-015.003 Трубы в изоляции из ПБ "СОВБИ" в оболочке из оцинкованной стали.
313.ТС-015.004 Изолированные отводы трубопроводов.
313.ТС-015.005 Тройники прямые равнопроходные.
313.ТС-015.006 Тройники прямые разнопроходные.
313.ТС-015.007 Компенсатор сильфонный Ду 50-400мм Тульского патронного завода.
313.ТС-015.008 Компенсатор сильфонный Ду 50-400мм АО "Металкомп".
313.ТС-015.009 Осевые сильфонные компенсационные устройства (СКУ) ООО "Изоляционные технологии".
313.ТС-015.010 Полиэтиленовые соединительные термоусаживающиеся манжеты.
313.ТС-015.011 Изоляция стыков труб Ду 50 - 1000мм.
313.ТС-015.012 Муфты разрезные приварные полиэтиленовые (РПП) для изоляции стыков труб.
313.ТС-015.013 Скользящая хомутовая опора для трубопроводов Ду50-80мм.
313.ТС-015.014 Скользящая хомутовая опора для трубопроводов Ду80-600мм..
313.ТС-015.015 Скользящая хомутовая опора для трубопроводов Ду50-600мм в футлярах.
313.ТС-015.016 Устройство неподвижной щитовой опоры. Вариант I.
313.ТС-015.017 Устройство неподвижной щитовой опоры. Вариант II.
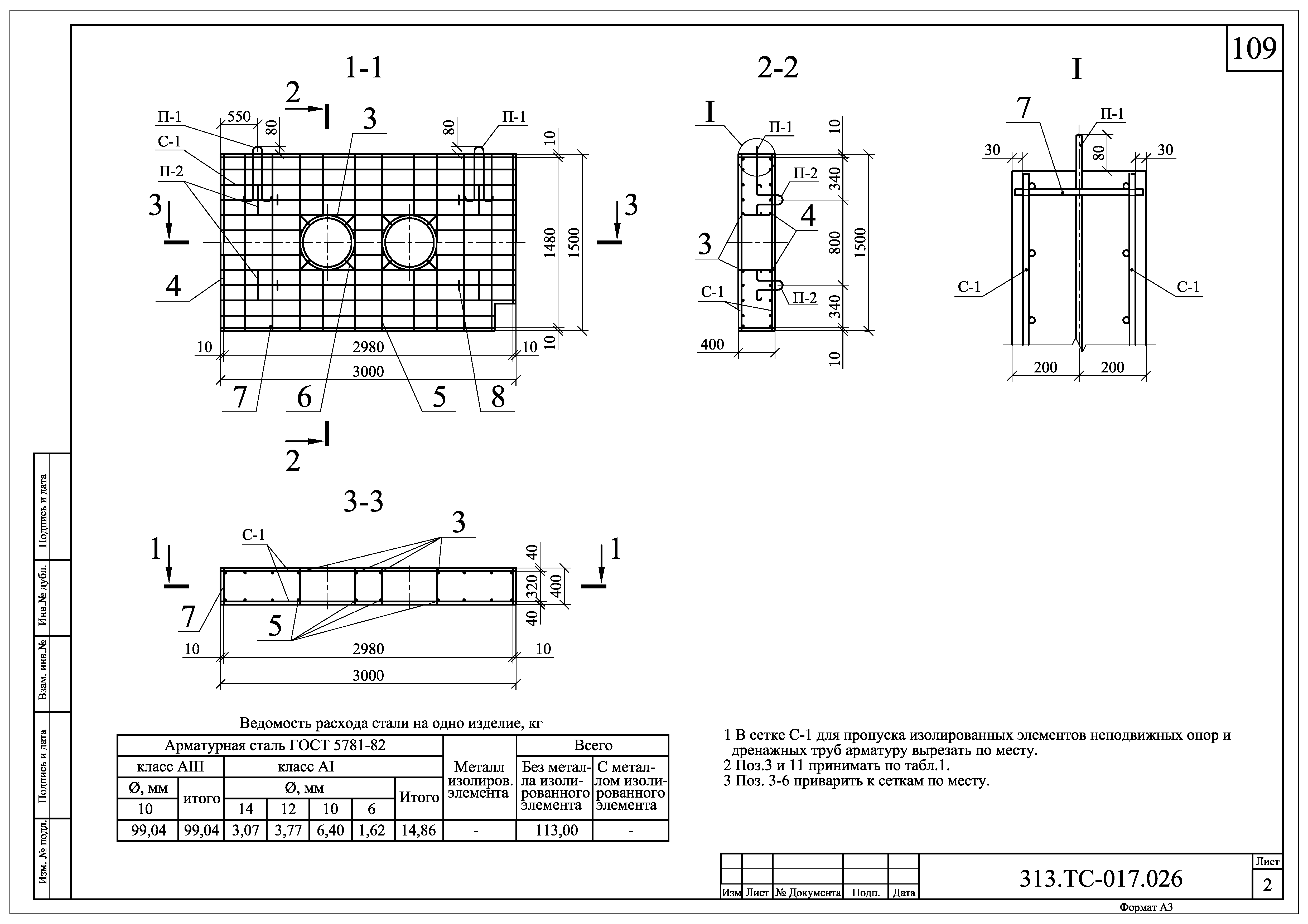
313.ТС-015.018 Сборные железобетонные щиты неподвижных опор.
313.ТС-015.019 Неподвижная сборная щитовая опора.
313.ТС-015.020 Изолированные элементы заводского изготовления для неподвижных опор Ду50-400мм.
313.ТС-015.021 Изолированные элементы заводского изготовления для неподвижных опор Ду500-600мм. Металлоконструкции.
313.ТС-015.022 Стальной элемент для неподвижных опор Ду50-600мм. Металлоконструкции.
313.ТС-015.023 Неподвижная сборная щитовая опора на усилие до 15т. Ду50-400мм. Сборочный чертеж.
313.ТС-015.024 Неподвижная сборная щитовая опора на усилие до 25т. Ду200-400мм. Сборочный чертеж.
313.ТС-015.025 Неподвижная сборная щитовая опора на усилие до 50т. Ду500-600мм. Сборочный чертеж.
313.ТС-015.026 Установка задвижек в колодцах.
313.ТС-015.027 Устройство приямка в траншее для сварки трубопроводов.
313.ТС-015.028 Бесканальная прокладка трубопроводов при высоком уровне грунтовых вод. Вариант I.
313.ТС-015.029 Бесканальная прокладка трубопроводов при высоком уровне грунтовых вод. Вариант II.
313.ТС-015.030 Устройство траншеи с креплением для бесканальной прокладки трубопроводов.
313.ТС-015.031 Устройство траншеи с креплением для бесканальной прокладки трубопроводов при высоком уровне грунтовых вод.
313.ТС-015.032 Устройство траншеи с креплением для канальной прокладки трубопроводов.
313.ТС-015.033 Устройство траншеи с креплением для канальной прокладки трубопроводов при высоком уровне грунтовых вод.
313.ТС-015.034 Устройство траншеи с креплением для прокладки трубопроводов в футлярах.
313.ТС-015.035 Конструкция сопряжения бесканальной прокладки с каналом.
Разработан: ОАО Объединение ВНИПИэнергопром
Холдинг СОВБИ
Расположен в:Техническая документация Строительство Справочные документы Типовые строительные конструкции, изделия и узлы Разработанные другими министерствами, ведомствами и организациями
313.ТС-017.000313.ТС-017.000313.ТС-017.000313.ТС-017.000313.ТС-017.000313.ТС-017.000313.ТС-017.000313.ТС-017.000313.ТС-017.000313.ТС-017.000313.ТС-017.000313.ТС-017.000313.ТС-017.000313.ТС-017.000313.ТС-017.000313.ТС-017.000313.ТС-017.000313.ТС-017.000313.ТС-017.000313.ТС-017.000313.ТС-017.000313.ТС-017.000313.ТС-017.000313.ТС-017.000313.ТС-017.000313.ТС-017.000313.ТС-017.000313.ТС-017.000313.ТС-017.000313.ТС-017.000313.ТС-017.000313.ТС-017.000313.ТС-017.000313.ТС-017.000313.ТС-017.000313.ТС-017.000313.ТС-017.000313.ТС-017.000313.ТС-017.000313.ТС-017.000313.ТС-017.000313.ТС-017.000313.ТС-017.000313.ТС-017.000313.ТС-017.000313.ТС-017.000313.ТС-017.000313.ТС-017.000313.ТС-017.000313.ТС-017.000313.ТС-017.000313.ТС-017.000313.ТС-017.000313.ТС-017.000313.ТС-017.000313.ТС-017.000313.ТС-017.000313.ТС-017.000313.ТС-017.000313.ТС-017.000313.ТС-017.000313.ТС-017.000313.ТС-017.000313.ТС-017.000313.ТС-017.000313.ТС-017.000313.ТС-017.000313.ТС-017.000313.ТС-017.000313.ТС-017.000313.ТС-017.000313.ТС-017.000313.ТС-017.000313.ТС-017.000313.ТС-017.000313.ТС-017.000313.ТС-017.000313.ТС-017.000313.ТС-017.000313.ТС-017.000313.ТС-017.000313.ТС-017.000313.ТС-017.000313.ТС-017.000313.ТС-017.000313.ТС-017.000313.ТС-017.000313.ТС-017.000313.ТС-017.000313.ТС-017.000313.ТС-017.000313.ТС-017.000313.ТС-017.000313.ТС-017.000313.ТС-017.000313.ТС-017.000313.ТС-017.000313.ТС-017.000313.ТС-017.000313.ТС-017.000313.ТС-017.000313.ТС-017.000313.ТС-017.000313.ТС-017.000313.ТС-017.000313.ТС-017.000313.ТС-017.000313.ТС-017.000313.ТС-017.000313.ТС-017.000313.ТС-017.000313.ТС-017.000313.ТС-017.000313.ТС-017.000313.ТС-017.000313.ТС-017.000313.ТС-017.000313.ТС-017.000313.ТС-017.000313.ТС-017.000313.ТС-017.000313.ТС-017.000313.ТС-017.000313.ТС-017.000

© 2013 Ёшкин Кот :-) Карта сайта