Скачать Альбом Часть I. Проектирование, конструкции водоотводных устройств и их укреплениеДата актуализации: 10.08.2017 Альбом
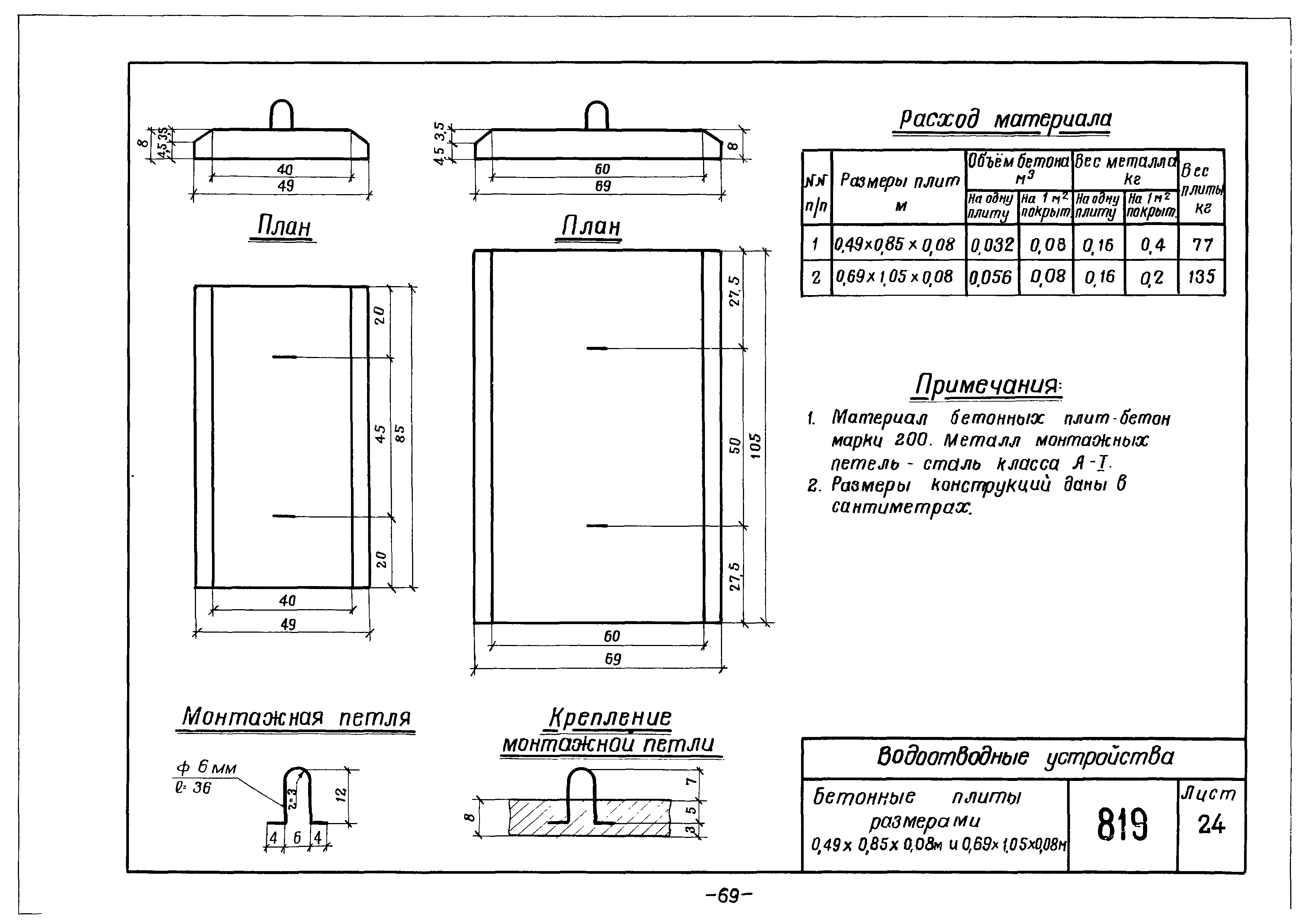
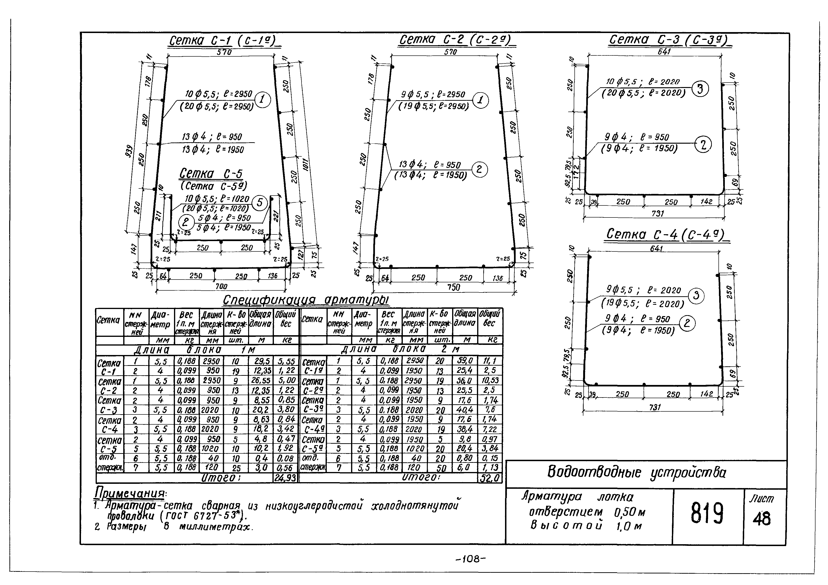
Часть I. Проектирование, конструкции водоотводных устройств и их укреплениеОбозначение: | Альбом | Статус: | не определен законодательством | Название рус.: | Часть I. Проектирование, конструкции водоотводных устройств и их укрепление | Дата добавления в базу: | 01.09.2013 | Дата актуализации: | 05.05.2017 | Дата введения: | 10.12.1971 | Область применения: | Альбом водоотводных устройств на железных и автомобильных дорогах общей сети Союза ССР предназначается для использования проектными организациями Министерства транспортного строительства и Министерства путей сообщения в качестве пособия при проектировании водоотводных устройств земляного полотна на вновь строящихся магистральных железных дорогах I - IV категорий и автомобильных дорогах I - V категорий общей сети Союза ССР | Оглавление: | Предисловие I. Проектирование водоотводных устройств: A. Общие положения Б. Основные нормы проектирования плана и продольного профиля B. Основные положения по гидравлическим расчетам и примеры расчетов: 1. Определение расчетного расхода воды 2. Гидравлические расчеты канав, кюветов и лотков 3. Примеры гидравлических расчетов и схемы специальных устройств Гидравлический расчет перепада высотой 0,50 м в канаве трапецеидального сечения Схема перепада высотой 0,50 м в канаве трапецеидального сечения Гидравлический расчет железобетонного быстротока прямоугольного сечения с водобойным колодцем Схема железобетонного быстротока прямоугольного сечения с водобойным колодцем Гидравлический расчет бетонного быстротока прямоугольного сечения с водобойной стенкой Схема бетонного быстротока прямоугольного сечения с водобойной стенкой Гидравлический расчет бетонного быстротока трапецеидального сечения с водобойным уступом Схема бетонного быстротока трапецеидального сечения с водобойным уступом Гидравлический расчет бутового быстротока прямоугольного сечения Схема бутового быстротока прямоугольного сечения Гидравлический расчет коротких быстротоков Гидравлический расчет многоступенчатого перепада колодезного типа прямоугольного сечения Схема многоступенчатого перепада колодезного типа прямоугольного сечения Гидравлический расчет стенки падения Схема стенки падения II. Конструкции водоотводных устройств и их укрепление Крепление кюветов и канав бетонными плитами. Крепление кюветов и канав торкрет - бетоном Крепление кюветов и канав монолитным бетоном Крепление кюветов и канав асфальтобетонными плитами Крепление дна канав щебневанием и откос семенами многолетних трав Бетонный армированный лоток-желоб Железобетонные лотки-полутрубы Железобетонные лотки прямоугольного сечения Железобетонные рамные лотки Железобетонный длинномерный телескопический лоток Железобетонные телескопические и бетонные водосбросные лотки Схема отвода воды с разделительной полосы автомобильных дорог I категории Сброс воды с разделительной полосы на автодорогах I категории по конусу между мостами Схема отвода воды с проезжей части и разделительной полосы шириной 5 м на виражах дорог I категории III. Справочные и вспомогательные материалы Допускаемые /неразмывающие/ скорости течения воды для неукрепленных русел Допускаемые /неразмывающие/ скорости течения воды для искусственных укреплений Коэффициенты гидравлической шероховатости п к формуле Павловского График для определения коэффициента С по формуле Павловского Значение показателя степени "У", скоростного множителя С, величин C2R и СVR Таблица значений Vj График для определения критической глубины hк в руслах трапецеидального сечения при крутизне откосов 1:1 График для определения критической глубины hк в руслах трапецеидального сечения при крутизне откосов 1:1,5 График для определения критической глубины hк в руслах прямоугольного сечения График для определения вспомогательной величины Z - Р для русел прямоугольного сечения График для определения глубины в сжатом сечении после перепада hc в руслах прямоугольного сечения Таблица значений взаимных /сопряженных/ глубин hс после перепадов в руслах прямоугольного сечения График для определения высоты водобойной стенки после перепада в руслах прямоугольного сечения Значение функции a/r/ для прямого уклона Дна водотока /j>о / При различных значениях гидравлического показателя х График для определения гидравлического показателя X в прямоугольных и трапецеидальных руслах и таблица значений коэффициента затопления bn Образец продольного профиля канавы Форма ведомости расчета канав Форма ведомости расчета лотков Форма ведомости для подсчета земляных и укрепительных работ по устройству канав Форма ведомости для подсчета объемов работ по устройству лотков Карта ливневых районов Опалубка железобетонного длинномерного телескопического лотка Конструкции водоприемных колодцев. Технические указания по изготовлению, укладке и омоноличиванию сборных армированных асфальтобетонных плит Состав битумных мастик для изоляции температурных швов Состав битумных эмульсия. | Разработан: | Мосгипротранс
| Утверждён: | 10.12.1971 Мосгипротранс (181)
| Расположен в: |
|
                                                                                                                                                                                                                         
|